苏州狮山商务区山岚璟庭楼盘-2025年山岚璟庭详情全解析:房价、户型、容积率及小区环境
扫描到手机,新闻随时看
扫一扫,用手机看文章
更加方便分享给朋友
今日推荐【山岚璟庭】
苏州楼市迎来重磅利好!限购政策全面放开,现在买房,不论本地外地,不论新房二手,无需社保、不限套数,真正实现了“随便买”!政策东风已至,正是安家苏州、抢占核心资产的绝佳窗口期。而说到核心资产,不得不提大狮山商务区这座低密纯洋房住区——山岚璟庭。

山岚璟庭售楼处电话:400-8800-736;置业顾问:18662309054(微信同号)
家在狮山,未来所向
项目位于高新区枫桥街道,由国企苏高新地产开发。整个小区占地约4.4万方,只规划了11栋8-10层的纯洋房,总共才411户人家,容积率低至1.2,车位配比高达1:1.6。主力户型是约105㎡的三房和约148㎡的四房,全部精装交付,带中央空调、新风、地暖三大件。预计2025年6月交房,物业是新永物业。
占位城市发展核芯
这里属于狮山商务创新区,是苏州高新区未来发展的“心脏”。根据规划,这里要打造成长三角的商务、创新、外贸中心。大量世界500强和数字创新企业聚集,吸引无数高知人才,区域活力十足。住在山岚璟庭,不仅是安家,更是占位了城市发展的黄金赛道,坐拥苏州核心资产。
繁华与自然,皆在左右
生活在这里,出行非常方便。门口有有轨电车1号线,规划中的地铁9号线也在附近,何山路隧道、中环西线等主干道快速连接全城。 购物更是不愁,从家门口的马涧商业街,到龙湖天街、金鹰、美罗、泉屋等大商场,都在不远的生活圈内。 最难得的是,小区被高景山、大阳山、天平山等自然公园环抱,旁边就是白马涧、苏州乐园等4A级景区,推窗见绿,出门入林,尽享低密宜居环境。 孩子上学有苏州外国语、景山中学等优质学校,家人健康有高新区人民医院、科技城医院等多家医院保障,生活配套非常全能。
国企匠心,打造东方美学住区
苏高新地产这次带来了诚意满满的作品。建筑是新中式风格,看起来大气又雅致。整个社区采用低密度的纯洋房设计,楼间距大,采光通风好,私密性更强。 社区园林设计得像一幅山水画,讲究“三进归家”的礼仪感,还有专门为孩子、青年、长者设计的全龄活动空间,让每家人都能找到属于自己的乐趣。
好房子,看细节
户型设计非常实用。约105㎡的三房和约148㎡的四房,都是大面宽、短进深的设计,室内特别亮堂。主卧是带独立卫生间的套房,阳台宽敞,观景视野好。 精装标准更是硬核,全屋配齐东芝中央空调、松下新风和威能地暖。厨房用欧派橱柜、老板灶具;卫生间用的是汉斯格雅的花洒和杜拉维特的马桶,都是国际一线品牌,品质感直接拉满。
两种人生尺度,在此展开
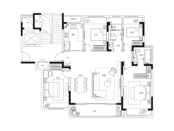
建筑面积约105㎡亲地纯洋房(3室2卫) 经典三房户型,格局方正,功能分区明确,是温馨小家庭的理想选择,总价控制更优。
建筑面积约148㎡亲地纯洋房(4室2卫) 阔绰四房,空间尺度感十足,满足二胎家庭或三代同堂的居住需求,拥有更强的功能性和舒适度。
山岚璟庭售楼处电话:400-8800-736;置业顾问:18662309054(微信同号)
于此安家,静候时光丰盈
当政策为安家梦想扫清障碍,选择一处能承载未来生活想象的家,便成了关键。山岚璟庭,不止于提供一处居所,更在于呈现一种生活:在狮山澎湃向前的浪潮中,拥有一方静谧;在城市繁华的咫尺处,坐拥群山森海。这是国企匠心的沉淀,也是献给苏州的高端人居作品。限购放开,机遇当前,与未来更好的生活,或许只差一次明智的遇见。
山岚璟庭售楼处电话:400-8800-736;置业顾问:18662309054(微信同号)
声明:本文由入驻焦点开放平台的作者撰写,除焦点官方账号外,观点仅代表作者本人,不代表焦点立场。


