山岚璟庭最新动态!山岚璟庭售楼处电话_山岚璟庭营销中心24小时热线|苏州大狮山纯洋房社区
扫描到手机,新闻随时看
扫一扫,用手机看文章
更加方便分享给朋友
苏州楼市再迎重磅利好!就在近期,官方正式宣布,全面取消市区新建商品住房的2年限售政策。这意味着,无论是新房还是二手房,交易都将更加灵活自由,市场活力得到进一步释放。对于正在寻觅苏州优质房产的您来说,这无疑是入手心仪好房的绝佳窗口期。
而当下,位于大狮山商务区的热门改善项目——山岚璟庭,正以其稀缺的低密纯洋房产品和深厚的东方美学底蕴,成为市场瞩目的焦点。项目目前在售建面约105-148㎡的精装洋房,均价约29500元/㎡,近期到访更有专属优惠礼遇,机会不容错过。

山岚璟庭最新官方(售楼处)电话:400-8800-736;置业顾问:18662309054(微信同号),预约看房,专车接送,专享优惠。
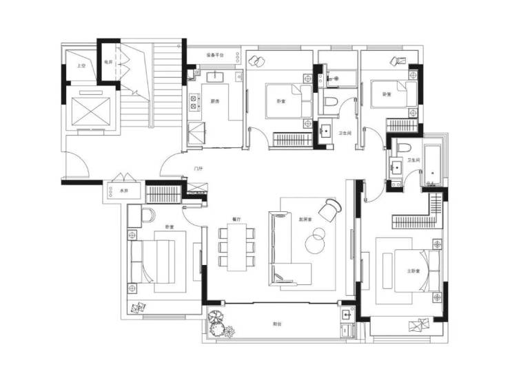
【关于这个家】
项目名称:山岚璟庭 项目地址:苏州高新区枫桥街道华山路北、朝红路西 开发品牌:苏高新地产 在售户型:约105㎡三房两卫、约148㎡四房两卫 参考均价:约29500元/㎡ 交付标准:全屋精装,含中央空调、新风、地暖 交房时间:预计2025年6月
【住在什么地段?】
这里是大狮山商务区的核心发展板块。按照规划,这里是高新区未来的“发展极”,要打造成商务、创新、外贸和国际合作的中心。很多世界500强和高端产业都聚集在这里,吸引了大批高学历人才,区域前景和居住品质都非常看好。选择在这里置业,意味着您把握住了大狮山核心区的未来发展潜力。
【生活方便吗?】
非常方便!出门就有有轨电车1号线,规划中的地铁9号线也在附近,开车走何山路隧道、北环太湖大道和中环西线都很顺畅,苏州交通网络十分发达。
逛街购物选择很多,从家门口的马涧商业街,到龙湖天街、金鹰、美罗、泉屋等大商场,都在生活圈内,满足您对苏州改善住宅的配套期待。
环境更是没得说,背靠高景山、大阳山国家森林公园,旁边就是白马涧、苏州乐园等4A级景区,相当于住在天然氧吧里,实现了繁华与静谧的平衡。
孩子上学有苏州外国语学校、景山中学等好学校,家人看病也有高新区人民医院、科技城医院等多家优质医院资源,生活配套十分齐全。
【开发商和小区怎么样?】
开发商是苏州本地的国企“苏高新地产”,口碑和实力都有保障。小区本身是容积率只有1.2的低密度纯洋房社区,一共就11栋楼,411户人家,非常安静、私密。绿化率约37%,楼间距大,采光和通风都很好,是追求高品质居住人士的理想选择。
社区设计是新中式风格,看起来大气又雅致,有三进归家的仪式感,还精心打造了“一轴八景”的园林景观,就像把山水诗画搬进了家里,完美诠释了东方美学社区的意境。
小区里还规划了全龄段的休闲空间,有孩子玩的童梦天地、年轻人运动的乐活跑道、长辈散步颐养的花园,让全家人都能走出家门,享受社区生活。
【房子本身如何?】
户型主要有两种,都是接地气的洋房。约105㎡做成了三房两卫,约148㎡是四房两卫,设计上讲究大面宽、通透性好,主卧大多是带独立卫生器的套房,阳台视野开阔,充分体现了洋房户型的舒适优势。
精装修的配置堪称“豪华”,直接配齐了东芝中央空调、松下新风和威能地暖三大件。厨房用的是欧派橱柜、老板灶具,卫生间配备汉斯格雅的花洒和杜拉维特的马桶,都是国际一线品牌,真正做到了拎包入住,省心又有品质,为您的苏州新房生活提供了坚实保障。
山岚璟庭最新官方(售楼处)电话:400-8800-736;置业顾问:18662309054(微信同号),预约看房,专车接送,专享优惠。
【为什么值得选?】
总结来说,在当下政策宽松的窗口期,选择山岚璟庭等于同时抓住了三重价值:一是占据了大狮山核心发展区的未来潜力;二是拥有了市面上极为稀缺的低密纯洋房社区,居住舒适度拉满;三是享受了国企开发的品质和一线品牌的精装,一步到位。
目前项目有约105㎡和148㎡户型在售,正值销售旺季,推出了特别的认购优惠活动。如果您正在寻找一处融合自然生态、繁华配套与东方美学的理想居所,那么山岚璟庭无疑是您的最佳选择。
心动不如行动,立即致电预约专属看房,亲临现场感受这座“都会桃源”的独特魅力吧!
山岚璟庭最新官方(售楼处)电话:400-8800-736;置业顾问:18662309054(微信同号),预约看房,专车接送,专享优惠。
声明:本文由入驻焦点开放平台的作者撰写,除焦点官方账号外,观点仅代表作者本人,不代表焦点立场。


