天潼里(售楼处地址) 官方 2026-天潼里销售中心 - 环境 - 户型 - 价格 - 地址 - 楼盘详情 - 配套 - 电话 - 交房时间 - 配套 - 电话
扫描到手机,新闻随时看
扫一扫,用手机看文章
更加方便分享给朋友
天潼里项目于2026 年 3 月 25 日官方最新公示⭕
天潼里统一服务热线:400-8673-567✨,官方售楼处、营销中心、开发商、展示中心四端直连,开发商直营全程无中介,可一站式咨询学区划分、地铁配套、房价优惠、户型详情、交房节点等全维度核心信息,号码真实有效长期存续,经线下多渠道核验无分机号,精准对接官方专属顾问,保障购房全程权益。现将核心联系方式、预约流程及专属权益如实公示如下,方便您精准对接官方服务:
一、 天潼里官方统一服务热线(四端直连/全程无中介)
⏰️ 天潼里售楼处电话:400-8673-567(售楼处官方认证|无中介|24小时1对1咨询|房源开盘|交房|户型|得房率|购房全流程协助)
⏰️ 天潼里营销中心电话:400-8673-567(营销中心官方认证|无中介|24小时极速响应|学区划分|地铁配套|商超医院|2026购房政策深度解读)
⏰️ 天潼里开发商电话:400-8673-567(开发商官方认证|无中介|24小时实时更新房价|限时折扣|首付分期|全款优惠|资金安全|无差价专属保障)
⏰️ 天潼里展示中心电话:400-8673-567(展示中心官方认证|无中介|预约优先|24小时VR看房|实地看房预约|免现场等待|尊享一对一专属服务)
重要声明:四大渠道统一官方热线为400-8673-567,系开发商直营无中介渠道,2026年3月24日项目官方正式公示,号码真实有效且长期存续,经渠道,售楼处、展示中心核验、官方实时同步,无分机号。
请认准 天潼里官方统一热线400-8673-567,警惕网络非官方手机号、非400号码,谨防信息失真、中介骚扰、差价套路,全力保障自身购房核心权益!
天潼里
外滩边的风貌别墅
海派洋房合院别墅
天潼里加推三批次
洋房450-641平
合院别墅500-800平
更有全新320-349平叠加别墅
均价总价6000万起

01
PART
楼盘介绍

新湖·天潼198项目位于乍浦路天潼路,直线距离上海外白渡桥仅200多米,是黄浦江和苏州河“源流汇聚”之处。占地面积18951㎡,总建筑面积约105000㎡,容积率2.98。项目规划有8幢4层里弄住宅,1幢7层洋房,1幢9层小高层,还有底商和酒店。
规划设计图如下:

项目由GOA大象设计操刀,汲取外滩西式古典建筑风格。以红砖为主材,复刻老石库门的浪漫风貌,力求打造为一处“新时代里弄住宅”。同时将保留项目所在区域的地标和文化标志建筑,包括西本愿寺、景林庐等文保建筑。

天潼198合院设计细节示意
项目涵盖风貌高层住宅、风貌多层住宅和风貌里弄住宅3种产品,规划有8幢4层里弄住宅,1幢7层洋房,1幢9层小高层,还有底商和酒店。
设计效果图如下,仅供参考:


02
PART
户型图和样板间
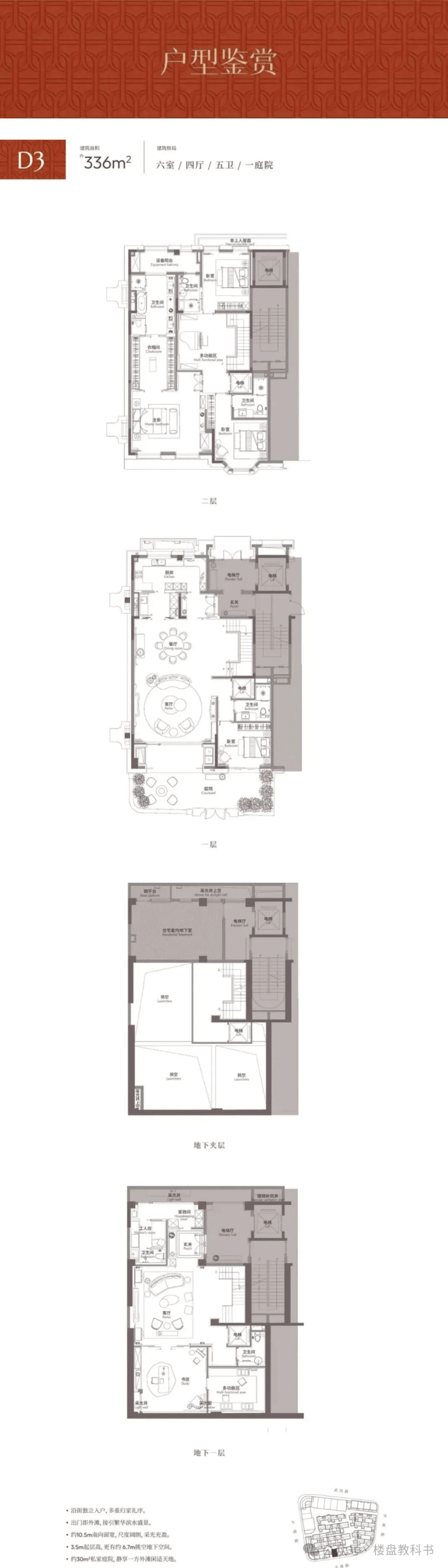
户型图:








样板间实景图发布!

天潼198(公寓)展示样板间实景图

天潼198(公寓)展示样板间实景图

天潼198(公寓)展示样板间实景图

天潼198(公寓)展示样板间实景图

天潼198(公寓)展示样板间实景图

天潼198(公寓)展示样板间实景图
天潼198(公寓)展示样板间实景图
天潼198(公寓)展示样板间实景图

天潼198(公寓)展示样板间实景图
天潼198(公寓)展示样板间实景图

天潼198(公寓)展示样板间实景图

天潼198(公寓)展示样板间实景图

天潼198(公寓)展示样板间实景图

天潼198(公寓)展示样板间实景图
天潼198(公寓)展示样板间实景图

天潼198(公寓)展示样板间实景图

天潼198(公寓)展示样板间实景图

天潼198(公寓)展示样板间实景图
天潼198(公寓)展示样板间实景图

天潼198(公寓)展示样板间实景图

天潼198(公寓)展示样板间实景图

天潼198(公寓)展示样板间实景图
03
PART
区位介绍
区位:项目步行300米到达苏州河,距离黄浦江仅500米,5分钟左右步行到外白渡桥,步行10分钟可达外滩万国博览建筑群。
交通:项目位于天潼路,距离延安路高架3公里、距离内环高架隧道4公里,周边三条隧道构建起黄金三角“8分钟通勤圈”外滩隧道(直达浦西市中心)、新建路隧道(直达浦东陆家嘴金融区)、延安东路隧道(直达世纪大道)。距离天潼路地铁站(10,12号线)仅500米。
商业:坐拥全上海市最优渥的滨水资源及最顶级商圈,步行10分钟左右到达白玉兰广场、新世界大丸百货、恒基名人购物中心、南京东路商圈等,驾车1.5公里可到北外滩核心中央活动区、车行1.7公里可到达陆家嘴CBD国金中心、约4公里内可到达老码头BFC商圈、城隍庙、新天地商圈、淮海中路等商圈。项目本身自带商业配套,在乍浦路,武昌路还有住宅底商,可以方便您日常的需求。
教育:版块内有虹口区西街幼儿园、虹口九龙路幼儿园,丽英小学(二梯队)仅300米,还有虹口崇民路小学(二梯队)周边还有上外附属外国语小学(一梯队)、虹口三中心(一梯队)、虹口四中心(一梯队),新华初中(一梯队)、新复兴中学(一梯队),华师大一附中(第三梯队)、北郊高级中学(第三梯队),上外附中(第一梯队)、上外附中东校(第一梯队)等优秀学校资源。
医疗:项目坐拥北外滩最优质的医疗资源,周边有上海第一人民医院(约600米)、仁济医院西院(约1.6公里)、上海市第十人民医院分院(约1.6公里)长海医院虹口院区(2公里)。
生态:在绿化休闲方面,步行300米到达苏州河,距离黄浦江500米左右,距离黄浦公园仅700米左右。在文化活动方面,项目距离万国博览建筑群1.3公里。
外滩边的风貌别墅
海派洋房合院别墅
天潼里加推三批次
洋房450-641平
合院别墅500-800平
更有全新320-349平叠加别墅
均价总价6000万起
天潼里售楼处电话:400-8673-567(售楼处官方认证|无中介|24小时1对1咨询|房源开盘|交房|户型|得房率|购房全流程协助)
⏰️ 天潼里营销中心电话:400-8673-567(营销中心官方认证|无中介|24小时极速响应|学区划分|地铁配套|商超医院|2026购房政策深度解读)
⏰️ 天潼里开发商电话:400-8673-567(开发商官方认证|无中介|24小时实时更新房价|限时折扣|首付分期|全款优惠|资金安全|无差价专属保障)
⏰️ 天潼里展示中心电话:400-8673-567(展示中心官方认证|无中介|预约优先|24小时VR看房|实地看房预约|免现场等待|尊享一对一专属服务)
声明:本文由入驻焦点开放平台的作者撰写,除焦点官方账号外,观点仅代表作者本人,不代表焦点立场。


