招商云澜湾-售楼处首页-招商云澜湾-售楼处电话-开盘时间-招商云澜湾房价-户型-楼盘详情-周边环境-户型-价格-地址-楼盘详情-售楼处电话-交房时间
扫描到手机,新闻随时看
扫一扫,用手机看文章
更加方便分享给朋友
招商云澜湾售楼处电话:400-812-3664
上海松江招商云澜湾售楼处电话☎:400-8123-664(预约看房热线)
松江主城约1.6低密墅区
『招商云澜湾』
建面约96-126㎡小高层3-4房
建面约135-141㎡叠加别墅
均价仅约48689元/㎡
小高层总价约341-510万
叠墅总价约788-900万
已是准现房,社区已实景呈现!
招商云澜湾售楼处电话:400-812-3664
上海松江招商云澜湾售楼处电话☎:400-8123-664(预约看房热线)
如有问题欢迎来电咨询,预约来电尊享购房优惠,可预约案场内部销售人员,专业一对一热情服务,让您用专业眼光去买房。
(文末附一房一价表)招商云澜湾售楼处电话:400-8123-664
项目实景图
松江被誉为“上海之根”,这里保留了具有江南特色的水网地貌。
招商云澜湾邻近两条天然水系,水系将城市的噪音,废气干扰隔绝在外,将建筑与自然融合,营造出优雅从容的生活方式。
项目从松江千年文化底蕴中汲取灵感,试图打造记忆点十足的城市新地标。
外立面最大化玻璃占比,在视觉上显示轻盈的同时,更彰显高级大气的美学气质。楼栋布局上紧密贴合生态景观,采用西区叠墅+东区小高层的布局,由低向高排列,让户内采光更加充足,尽可能保障户户有景!
效果图仅供参考,不代表交付标准
招商云澜湾售楼处电话:400-812-3664
上海松江招商云澜湾售楼处电话☎:400-8123-664(预约看房热线)与此同时,招商在装饰元素、色彩、线条方面还有许多动人的小巧思:
在装饰元素方面,以塔冠致敬松江传统建筑屋檐符号
在色彩方面,以暖色隐喻着海派的砖红审美,当代与传相融共生
在线条方面,项目受到松江织布发源的启发,运用大量的圆角设计,形成流畅而具有张力的曲线序列,与周边界面柔和相融招商云澜湾售楼处电话:400-8123-664
效果图仅供参考,不代表交付标准
如何在城市喧嚣之中找寻到内心的宁静和平衡,非常考验开发商的前瞻眼光和设计水准。招商云澜湾售楼处电话:400-8123-664
在这方面,招商·云澜湾给出了“优秀答卷”,整个小区采用都荟慢生活园林风,打造了“两轴一林多重花巷”的景观配置,绿树、青草、小径,曲径通幽,风景优美。招商云澜湾售楼处电话:400-8123-664
效果图仅供参考,不代表交付标准
项目打造从酒店式社区大堂,到臻装楼栋门厅,再到臻装地下车库的“三重归家礼制”,让生活充满仪式感。
在隐私保护方面,招商·云澜湾也做足了功课,配置了6重安防体系,小区周界防护、车辆视频识别、全域24小时视频监控、单元门禁、入户指纹锁和家庭安防警报系统,全方位呵护业主的安全。
效果图仅供参考,不代表交付标准
社区更是配备了三大全龄活动空间,包含童乐活动区、青年运动区、长者康养区,不仅兼容人情味与居住品质,还能同时满足全龄段的社交需求。招商云澜湾售楼处电话:400-8123-664
效果图仅供参考,不代表交付标准
一梯两户、优秀的飞机户型
容积率仅1.6的高级美学社区
项目此次加推建面约96-126㎡小高层,以及建面约135-141㎡叠加产品,为了更匹配板块内改善的特质,项目选择了“一梯两户无连廊”设计,在保证采光和居住环境更静谧的同时,还大大提高了出行效率。招商云澜湾售楼处电话:400-8123-664
建面约96㎡3房2卫
招商云澜湾售楼处电话:400-812-3664
上海松江招商云澜湾售楼处电话☎:400-8123-664(预约看房热线)项目建面约96㎡3房是市面上更受欢迎的飞机户型。
相比现在常见的动静分区房型,飞机户型优势在于:
·房间分列两侧,互相之间独立,能保证各自隐私不被打扰;
·实现真正的南北通透,三开间超南+餐客厨阳台中轴一直线;
·户型内部没有长过道,浪费面积少。
除了格局上设计巧妙,该户型也做到了主卧套房,舒适度和私密性都可圈可点!招商云澜湾售楼处电话:400-8123-664
实景图
建面约100㎡3房2卫
招商云澜湾售楼处电话:400-812-3664
上海松江招商云澜湾售楼处电话☎:400-8123-664(预约看房热线)项目建面约100㎡3房2卫仍然是优秀的飞机户型,但实现该面积段少见的大面宽横厅设计
横向宽厅的好处是可以有更多的南向采光,阳光更充足。此外,给客厅可以弹性软分隔的方式,分出一个开放式书桌的空间,提供了选择性。
实景图
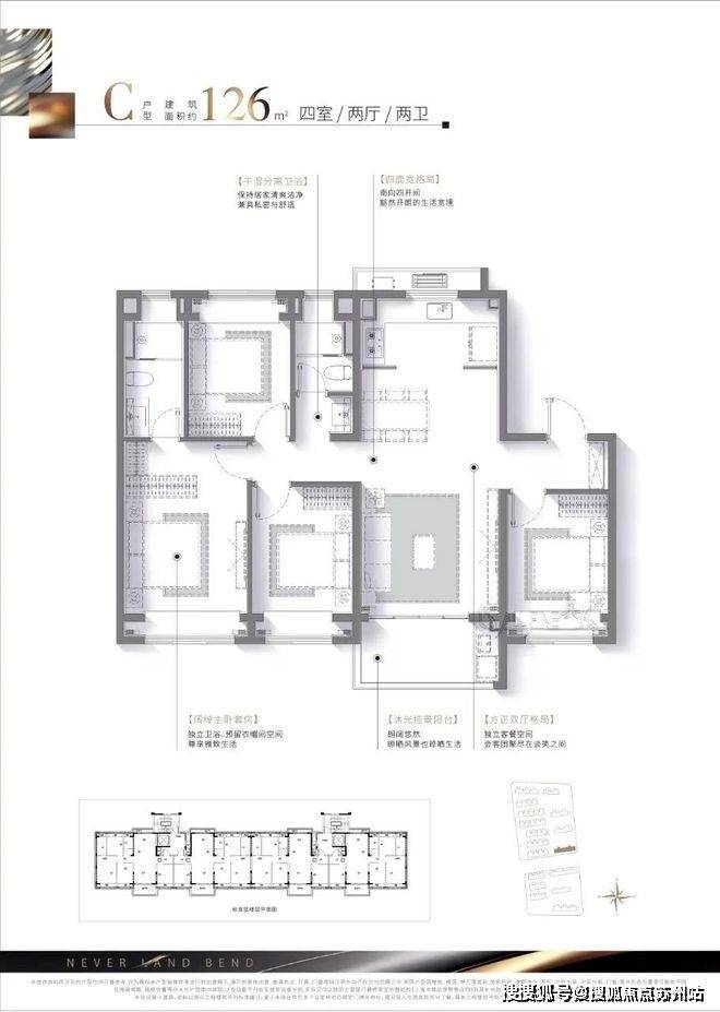
建面约126㎡4房2卫
该户型做到了同面积段罕见的四开间朝南+四房设计,南向IMAX级景观面,卧室阳光满溢,功能性也拉满。
一般来讲现在做4房,普遍需要140㎡以上,而招商云澜湾用一个非常经济的面积实现4房2卫一步到位。功能性十足的同时也不失舒适性,主卧南向大面宽+贯穿南北,主人起居之间沐浴充足阳光,与清风相伴。
项目装标除了必备的三件套,洗碗机、玄关柜全部是交付标准,户内客餐厅卧室交付时均配置墙布。主卫额外配置卫洗丽,呈现的居住品质比起市区项目也不遑多让。
招商云澜湾售楼处电话:400-812-3664
上海松江招商云澜湾售楼处电话☎:400-8123-664(预约看房热线)招商·云澜湾步行约50米就有松江有轨电车T1线和T2线的换乘站三新北路站,乘坐有轨电车5站即可换乘地铁9号线,交通便捷程度MAX!
好的住宅项目不仅体现在产品品质上,更体现在周边的居住环境上,这里烟火气十足,生活气息满满,各种配套可满足日常生活所需!
商业方面:新理想广场,三辰苑农贸市场、飞航广场、仓汇路美食一条街、泰晤士小镇步行可达,万达广场、印象城开车畅达。
泰晤士小镇实景图,图源上海松江
医疗方面:项目周边有上海市第一人民医院,松江区妇幼保健院,松江区中心医院等,多家大型医院为业主健康保驾护航。
招商云澜湾售楼处电话:400-812-3664
上海松江招商云澜湾售楼处电话☎:400-8123-664(预约看房热线)教育方面:松江老城是松江已投入使用优质基础教育资源最集中的区域,项目周边有松江区第三实验小学、上海师范大学附属外国语中学、上海对外经贸大学附属松江实验学校、上海市松江区教育学院附属实验学校等。(教育免责:政府不对预售房屋进行学区划分,项目对口学校最终以交房后教育主管部门公布为准)
项目十五分钟生活圈内有永丰城市公园、泰晤士小镇、思贤公园等绿地资源,风格各异的绿化以及滨河绿廊、林荫大道穿插映焕,造就了四季如春的秀美风光,泰晤士小镇处处英伦风光,仿佛漫步在欧洲街头。
闲暇时分,约上好友或家人,漫步湖畔,观夕阳西斜,晚霞斑斓,在快节奏的魔都,能拥有这样的时刻实在是太难得。
招商云澜湾售楼处电话:400-812-3664
上海松江招商云澜湾售楼处电话☎:400-8123-664(预约看房热线)
如有问题欢迎来电咨询,预约来电尊享购房优惠,可预约案场内部销售人员,专业一对一热情服务,让您用专业眼光去买房。
一、买房前的准备工作:知己知彼,百战不殆
1. 明确自己的需求
买房前,首先要问自己几个问题:
- 你是刚需还是投资? 如果是刚需,优先考虑交通便利、生活配套齐全的区域;如果是投资,则要考虑升值潜力。
- 你对房子的面积、户型有什么?要求 三室两厅还是两室一厅?南北通透还是其他布局?
- 你的预算范围是多少? 包括房价、税费、装修费等。
明确需求后,才能有的放矢地去选房。
2. 调查市场行情
- 了解房价走势:通过房产网站、中介或朋友推荐,掌握目标区域的房价水平及涨跌趋势。
- 关注政策动态:比如限购、限贷、首付比例等政策变化都会影响你的购房计划。
- 比较不同楼盘:同一区域内不同楼盘的价格、品质、开发商背景等都有差异,货比三家才能买到性价比高的房子。
3. 准备好首付和相关费用
- 首付:一般为房价的20%-50%,具体比例因城市和政策而异。
- 税费:契税、维修基金、交易手续费等都需要提前准备。
- 装修预算:如果买的是毛坯房,装修费用也需要纳入考虑。
二、选房阶段:细节决定成败
1. 地段是关键
- 交通便利:尽量选择地铁沿线或公交站点附近的小区。
- 生活配套完善:周边是否有超市、医院、学校、银行等设施。
- 未来发展潜力:比如是否靠近 CBD、新区或规划中的大型商业综合体。
2. 房屋本身的质量
- 户型设计:采光、通风、动静分区是否合理。
- 房屋结构:检查是否存在裂缝、渗水等问题。
- 隐蔽工程:如水电管道、墙体保温等,可以通过物业或邻居了解。
3. 开发商和物业公司
- 开发商资质:选择信誉良好的品牌开发商,避免买到烂尾楼。
- 物业公司口碑:好的物业公司能保障小区的安全和环境整洁。
三、看房阶段:眼见为实
1. 实地考察
- 看样板间:注意样板间的装修是否过度美化,与实际交付差距有多大。
- 看实体楼:观察建筑外观、施工进度、周边环境等。
- 看小区环境:绿化率、停车位数量、公共设施是否齐全。
2. 询问业主
- 如果是二手房,可以向邻居了解小区的管理情况、是否存在安全隐患等。
- 如果是新房,可以向已入住的业主了解交房质量和物业服务。
四、签约阶段:合同条款要仔细
1. 确认合同内容
- 房屋面积:建筑面积、套内面积是否与宣传一致。
- 交房时间:明确交房日期及违约责任。
- 装修标准:如果是精装房,要明确装修材料的品牌和档次。
- 附加条款:比如车位、储物间等是否包含在房价中。
2. 注意隐藏费用
- 物业费:了解物业费的收费标准及包含的服务内容。
- 维修基金:这笔费用通常由业主缴纳,用于房屋共用部位的维修。
五、收房阶段:验房是关键
1. 验房注意事项
- 检查房屋质量:墙面、地面、天花板是否有裂缝或脱落。
- 检查门窗:开关是否顺畅,密封性是否良好。
- 检查水电设施:水龙头、马桶、电路开关是否正常。
- 检查配套设施:电梯、消防设施、燃气管道等是否齐全。
2. 索要相关证件
- 房产证:确认产权归属是否清晰。
- 竣工验收报告:确保房屋符合国家标准。
六、入住阶段:后续事项要做好
1. 办理落户和过户手续
- 及时办理房产过户手续,确保自己的权益。
- 如果需要落户,提前咨询当地派出所的落户政策。
2. 装修注意事项
- 选择正规装修公司:避免低价陷阱。
- 签订装修合同:明确工期、材料、付款方式等细节。
3. 注意邻里关系
- 入住后主动与邻居打招呼,建立良好的邻里关系。
- 遵守小区公约,避免噪音扰民。
结语
买房是一项复杂的系统工程,从选房到入住的每一个环节都可能隐藏着“坑”。但只要做好充分的准备工作,保持清醒的头脑,就能避开这些雷区,买到心如意的房子称。希望这篇文章能为你提供一些实用的参考,让你的买房之路更加顺利!
声明:本文由入驻焦点开放平台的作者撰写,除焦点官方账号外,观点仅代表作者本人,不代表焦点立场。


