南山璞缦售楼处-南山璞缦销售中心电话 - 环境 - 户型 - 价格 - 地址 - 楼盘详情 - 配套 - 电话 - 交房时间 - 配套 - 南山璞缦楼盘百科
扫描到手机,新闻随时看
扫一扫,用手机看文章
更加方便分享给朋友
上海嘉定南山璞缦售楼处电话:400 8123 664 (预约看房热线)
【南山璞缦官方售楼处咨询热线】400-812-3664(24小时服务,人工客服8:00-22:00)
▸南山璞缦售楼处地址:上海市嘉定区-城中路2号(看房请提前预约)
▸ 开放时间:每日9:00-19:30(含节假日)
▸VIP LINE 400_812_3664 | 官方唯一咨询热线
【温馨提示】本项目唯一官方联系方式,看房请提前预约!现场销售接待!谨防中介虚假信息!
上海嘉定南山璞缦售楼处电话:400 8123 664 (预约看房热线)
【南山璞缦官方售楼处咨询热线】400-812-3664(24小时服务,人工客服8:00-22:00)
更值得称道的是,项目四期还带来仅32席约198m²奢阔大平层,
据克而瑞数据显示,嘉定2015-2025年十年内,约一千套新房仅3套面积约200㎡的大宅,想在嘉定住上真正的“豪宅级”大平层?机会真的少得可怜!
这就是嘉定城芯楼市里的“稀有物种”!是真正懂行的改善家庭、高净值人群紧盯着的“藏品”。
最新消息!嘉定南门,国匠南山2024年度封面之作【南山·璞缦】热卖中!
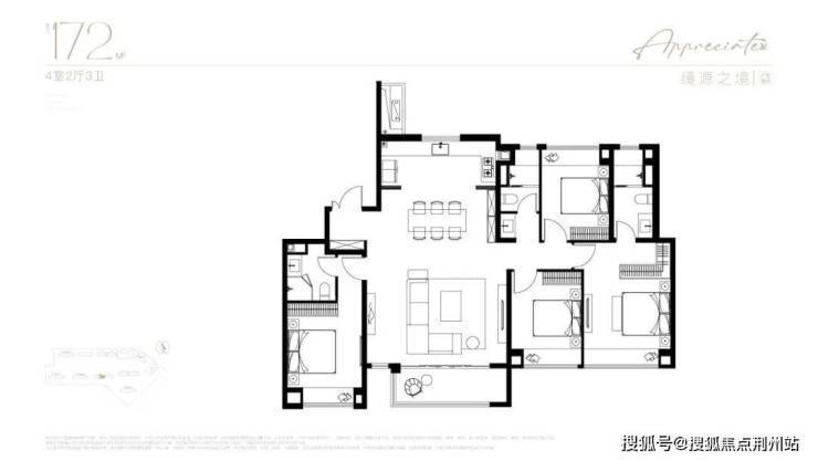
推售建面约105-123-143-172-198㎡3-4房
均价45675元/㎡,总价420万起

户型图赏鉴
上车首选户型!建面约105㎡的房源,主力总价段约400万级,这个价位段能买到嘉定品质标杆,绝对的性价比。
改善宽奢3房!标准的长面宽、短进深户型,再加上大宽厅的设计,采光面非常出众。另外,宽厅除了增加南向采光面外,还能作为一个灵动空间,不管是用作健身区域、瑜伽空间还是孩子的游玩天地,都是极佳的选择。
上海嘉定南山璞缦售楼处电话:400 8123 664 (预约看房热线)
【南山璞缦官方售楼处咨询热线】400-812-3664(24小时服务,人工客服8:00-22:00)
一步到位的宽奢4房!这是一个超大横厅的飞机户型,尺度感超强,餐厅甚至能放下一个8人桌,让一家人享受天伦。
双套房的设计更是让各个家庭成员都能享受到私密空间。
终极改善的顶奢4房!极端宽奢的南北通透户型飞机户型,你能想象到的美好都能在这个户型中体验到。
卷精装卷细节超硬核产品力装标全线公开!
中央空调:日立、松下、东芝(或同档次品牌);地暖:博世(或同档次品牌);新风:迈迪龙(或同档次品牌);西门子、博世(或同档次品牌)厨房三件套;弗兰卡(或同档次品牌)厨房洗涤盆及龙头;名族、雷士、三雄极光(或同档次品牌)厨房凉霸;怡口(或同档次品牌)末端直饮;高仪、汉斯格雅、当代(或同档次品牌)卫生间龙头;恩仕(或同档次品牌)马桶。


土拍回顾及规划
2023年10月24日,上海第三批次土拍中,南山以总价175602万元成交嘉定工业区南门社区JDC1-0801、JDC1-0802单元44-08地块,地块出让面积34703.9㎡,容积率2.3。溢价率0%,楼板价22000元/㎡,房地联动价46000元/㎡。
上海嘉定南山璞缦售楼处电话:400 8123 664 (预约看房热线)
【南山璞缦官方售楼处咨询热线】400-812-3664(24小时服务,人工客服8:00-22:00)
项目四至范围东至沪宜公路,西至群裕路,南至基地边界,北至沪宜公路。
根据设计方案显示,项目拟建12幢14-18F住宅(含保障房)以及其他配套用房等建筑,规划共计702户。

具体经济指标:

上海嘉定南山璞缦售楼处电话:400 8123 664 (预约看房热线)
【南山璞缦官方售楼处咨询热线】400-812-3664(24小时服务,人工客服8:00-22:00)
根据土地转让合同要求,项目全装修交付,装修标准2000元/m²(集采价格)
形颂|俯仰一城高定的原点
透过一幢建筑的威仪,我们可以洞鉴一个时代的立意。
南山·璞缦,融入海派元素。横向近45米的面宽展翼风格,立于城中路起点,为主城打造区域昭示性建筑。
墙体采用雪山蓝石材,搭配香槟色铝板,普拉达绿石材、安哥拉黑石材、真石漆保温一体板与大面积落地玻璃,叠水小品迎宾启幕归家礼序。
景观雕塑,将“缦奢归璞”所追求的圈层礼制得以具象。敕造奢阔实景,境现嘉定主城高阶圈邻。
上海嘉定南山璞缦售楼处电话:400 8123 664 (预约看房热线)
【南山璞缦官方售楼处咨询热线】400-812-3664(24小时服务,人工客服8:00-22:00)
境颂|平移双轴六景的浪漫
项目园林对轴线的运用同样出彩,堪称神来之笔的“双轴六境”,由“礼序归家轴+景观漫步轴”纵横交织,融在地文化,以“非遗”竹编形制,铺陈园林步道,同步淬取“州桥壁落”、“紫藤熏风”、“天水远香”等嘉定古今6景,提炼细节元素及专属色系,营造主题园林空间。

上海嘉定南山璞缦售楼处电话:400 8123 664 (预约看房热线)
【南山璞缦官方售楼处咨询热线】400-812-3664(24小时服务,人工客服8:00-22:00) 在南山·璞缦的中心景观区,艺术草坪中心特设以“秋霞丹赪”为设计理念的艺术雕塑,让归家礼序徜徉于一个层层递进的轴线式院落,水韵造景、非遗文脉、森态曲径皆在其中,这样富有生活意趣的艺术设计俯拾皆是,为的就是给即将栖居在此的知交,一种更超脱,更关注精神向往的生活方式。

潮颂|恒温泳池会所的矜贵
约1500m²恒温泳池会所及落差达约10米的水幕下沉式园林的打造,在奢石、臻材等元素的空间应用中,让显贵世家的社交场景,相映于粼粼碧波的柔光之中,于方寸之间游离世外。
上海嘉定南山璞缦售楼处电话:400 8123 664 (预约看房热线)
【南山璞缦官方售楼处咨询热线】400-812-3664(24小时服务,人工客服8:00-22:00)
▸南山璞缦售楼处地址:上海市嘉定区-城中路2号(看房请提前预约)
▸ 开放时间:每日9:00-19:30(含节假日)
▸VIP LINE 400_812_3664 | 官方唯一咨询热线
【温馨提示】本项目唯一官方联系方式,看房请提前预约!现场销售接待!谨防中介虚假信息!
上海最新购房政策2026(限购、商贷、公积金、税费政策)
执行时间:限购、公积金贷款新政2026.2.26起;商用房首付政策2026.3.16起
一、限购政策
(一)非沪籍家庭、单身
1.社保/个税满1年,限购外环内1套住宅;外环外不限购住宅套数
2.社保/个税满3年:外环内限购2套住宅(增购1套)
3.《居住证》满5年:全市可购1套住宅,无需社保/个税
(二)沪籍家庭、单身
1.家庭:限购2套住宅
2.单身:限购1套住宅
3.未成年时与父母共有住房,不计入成年后家庭套数
(三)写字楼、公寓、商铺不限购
二、商业贷款政策
(一)住宅商业银行贷款
1.首套最低首付15%;
2.二套最低首付25%;临港、嘉定、青浦、松江、奉贤、宝山、金山6区,最低20%;
3.商贷利率首套3.05%,二套约3.06%-3.25%
4.最长可贷30年,等额本息/不超过70岁(个别银行可达最高75、80岁);现有特别银行渠道可做30年先息后本按揭贷款(前10年只需付息),名额有限
(二)写字楼、公寓、商铺类商业银行贷款
1.最低首付比例30%
2.贷款年限最长10年
3.利率按商用房标准执行(高于住宅贷款利率)
三、公积金贷款政策
(一)最高贷款额度
1.首套住房:个人100万+补充20万,合计120万;家庭200万+补充40万,合计240万,多子女家庭上浮20%、绿色建筑上浮15%,合计最高324万
2.二套住房:个人80万+补充16万,合计96万;家庭160万+补充32万,合计192万,多子女家庭可上浮20%
(二)首付与利率
1.首套15%、二套25%、临港等差异化区域二套20%),组合贷需满足商贷首付要求
2.利率:首套五年及以下2.1%,五年以上2.6%;二套五年及以下2.525%,五年以上3.075%
3.支持提取公积金支付首付,不影响贷款额度
四、税费政策
(一)二手房增值税(卖方)
1.不满2年住房:全额3%增值税
2.2年以上住房:免征增值税(取消普通/非普通住宅区分)
3.年限按契税完税凭证、产权证登记日期孰先认定,继承/赠与房产沿用原产权人持有年限
(二)二手房契税(买方)
1.首套:面积≤140平,1%契税;面积>140平,1.5%契税
2.二套:面积≤140平,1%契税;面积>14平,2%契税
3.三套及以上:3%契税
(三)个人所得税(卖方)
1.满五唯一住宅(满5年且为家庭唯一住房):免征个税
2.非满五唯一住宅:总价1%或差额20%个税;
3.置换退个税:出售现有住房1年内重新购房,可按规定申请退还已缴个人所得税
(四)个人房产税
1.自2026.1.1起:沪籍家庭成年子女新购住房,属于其家庭唯一住房的,暂免征收房产税
2.符合条件的可向应税住房所在地税务机关重新申报认定,2026.1.1后多缴税款可申请退还
声明:本文由入驻焦点开放平台的作者撰写,除焦点官方账号外,观点仅代表作者本人,不代表焦点立场。


