展厅已开放,溪前雅居,旭辉又一叠墅大成之作公开在即!
扫描到手机,新闻随时看
扫一扫,用手机看文章
更加方便分享给朋友
▲项目效果图,图源网络
▋园区北宜居片区,配套完善
溪前雅居由旭辉建管联袂太平国投共同打造,位于相城区太平街道聚金路东、新开路南,地处阳澄国际生态新区,未来高新智能产业集聚。
从交通上来说,接驳园区,紧邻新城。近达高铁北站,靠近中环北线、苏州北站高架路、阳澄西湖第三隧道(在建)、苏台高速、常台高速等路网,快速通达各区,过隧道直达苏州中心,畅享园区黄金生活圈。未来还有地铁10号线(在建中)太东路站,实现高效换乘。
▲阳澄湖第三隧道,图源姑苏晚报
除了交通之外,周边商业也同样丰富。太平邻里中心、邻里家购物中心、太平老街等一站式生活主场,足以满足生活所需。
▲太平邻里中心,图源今日相城
盛泽湖、月季公园、盛泽湖文化体验区等自然景观在侧,生活充满诗情画意。
▲盛泽湖,图源网络
▋低密墅区作品,高端宜居
根据规划,溪前雅居拟建44栋5-26F住宅,其中,28栋5F叠墅、7栋6-10F洋房,9栋20-26F高层,以低密叠墅和洋房为主。
▲项目总平图,图源网络
目前规划公示有三种户型,分别为洋房及叠墅,高层户型暂未公示。
叠墅外立面由白色铝板+米色仿石涂料+香槟金铝板+香槟金金属漆+灰色仿石涂料+灰色金属型材组成。叠墅公示为一层户型,1室1卫,大横厅+开敞阳台+超大U型厨房。可以说空间是相当的大,阳光充足。
▲13#叠墅一层平面图,图源网络
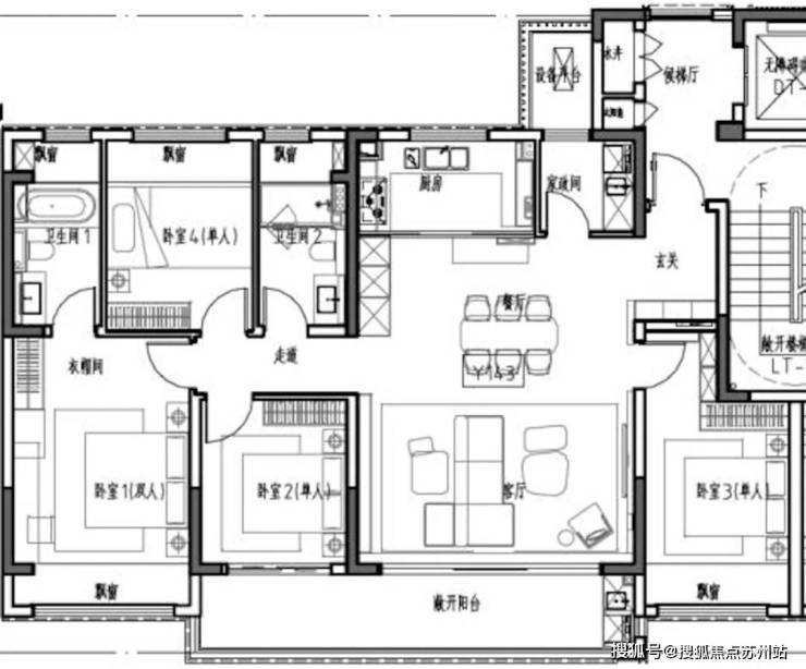
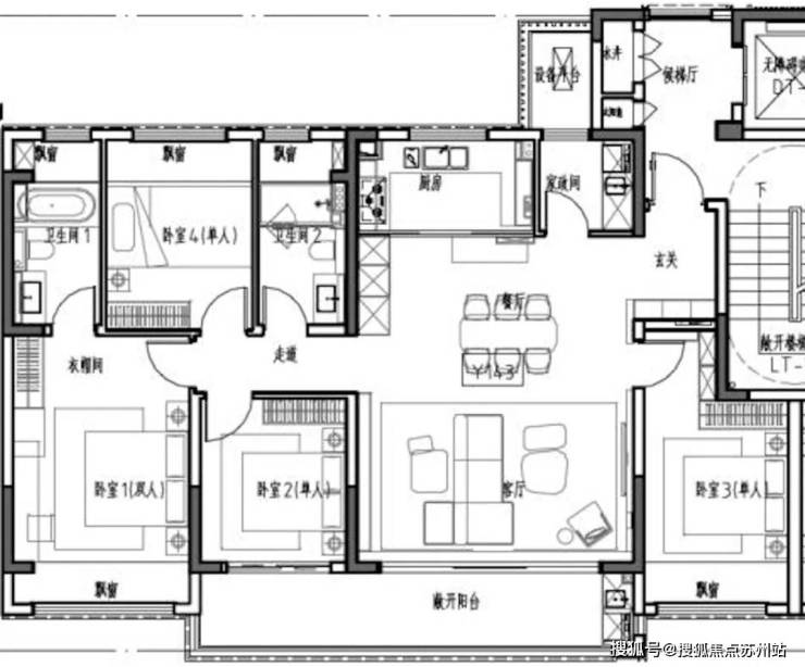
洋房公示有2个户型,均为4房2卫,3卧朝南+全飘窗设计+超大双联阳台;其中洋房户型2还设有家政间,可谓是周边改善首选了。
▲洋房户型图,图源网络
▲洋房户型图,图源网络
高层效果图也已经公布,大面玻璃设计,绝对的区域高颜值。
▲高层效果图,图源网络
总的来说,虽然溪前雅居北侧紧邻华发两个地块,对方同样有低密叠墅产品,未来将互为竞品。但是溪前雅居约8500元/m²的成交楼面价,相较华发10000元/㎡的价格,未来更有优势。
并且旭辉的产品力大家也有目共睹,不管是板块内的铂悦湖前,还是同在相城区的和悦塘前雅院,都在市场上收获了不俗口碑,大家不妨未来期待一下~
咨询热线:18662309054
声明:本文由入驻焦点开放平台的作者撰写,除焦点官方账号外,观点仅代表作者本人,不代表焦点立场。


