建发檀府-相城黄桥(建发檀府)楼盘详情-建发檀府房价+户型图+交通+小区环境
扫描到手机,新闻随时看
扫一扫,用手机看文章
更加方便分享给朋友
相城黄桥「建发檀府」
售楼处电话:400-9696-224【预约热线】(一对一热情服务)
如有问题欢迎来电咨询,专业一对一热情服务,让您用专业眼光去买房。
相城黄桥建发檀府售楼处电话:400-9696-224【预约热线】项目打造稀缺4-6F低密洋房+叠墅,地段紧邻虎丘湿地公园,低密宜居属性直接拉满。

刚刚曝光的效果过程稿,可以看到,这一次的大门和园林和以往作品很不一样。
作为新中式专家,建发·檀府新品实在太令人期待了。
型面积在115-178平:
相城黄桥建发檀府售楼处电话:400-9696-224【预约热线】平墅产品有147-158三种户型,均为四房产品。
建面约147平4房2卫
建面约158平4房2卫
建面约158平4房2卫
叠墅产品分为上叠中叠下叠,最大178平。
上叠:建面约178平4房4卫
上叠:建面约144平3房2卫
下墅:建面约162平4房3卫
洋房产品也有两种户型,115平起步。
建面约115平3房2卫
建面约125平4房2卫
相城黄桥建发檀府售楼处电话:400-9696-224【预约热线】作为继建发·独墅湾、建发·悦江南之后,建发的又一数据产品。建发·檀府将品类、户型、建筑、园林做为突破口,以独树一帜的“四大创新维度”,不断迭代高阶墅品。

相城黄桥建发檀府售楼处电话:400-9696-224【预约热线】规划出炉
①吴中花港东运36号地块规划出炉,拟建20栋16-26F高层
在拿地2年多之后,吴江花港的纯新盘东运36号地块项目的建设工程规划批前公示了,这也是项目信息首次曝光。

相城黄桥建发檀府售楼处电话:400-9696-224【预约热线】这也是吴江花港板块在多年未有纯新盘之后,终于有纯新盘补仓了!
2021年11月26日,吴江东运房产投资有限公司竞得该地块,成交总价约18.42亿元,成交楼面价约9499元/平。
根据规划,项目拟建20栋16-26F住宅,其中,2栋16F小高层、4栋17F小高层、4栋20F高层、1栋25F高层、9栋26F高层。

大体量、低地价,未来刚需客可以关注一下。
楼市大事
相城黄桥建发檀府售楼处电话:400-9696-224【预约热线】①姑苏卖旧买新细则出炉,容积率低于0.8不享受补贴
就在今日,姑苏区官方发布“卖旧买新”契税补贴细则,至此苏州六大区契税补贴细则全部出炉,最高可补贴100%契税。
姑苏细则:
相城黄桥建发檀府售楼处电话:400-9696-224【预约热线】根据规划,建发檀府拟建22幢4-6F低密洋房、叠墅,其中1、2#为4F,其余均为6F,总户数仅404户。
相城黄桥建发檀府售楼处电话:400-9696-224【预约热线】据总平面图,北侧A区设置有2个出入口,分别位于永青路和苏埭路;南侧B区设置1个出入口,位于永兴路。
相城黄桥建发檀府售楼处电话:400-9696-224【预约热线】外立面参考如下,屋顶的中式飞檐造型,浓浓建发风。
立面材质采用了浅灰色真石漆、深灰色金属线条、浅色仿石铝板一体板等。

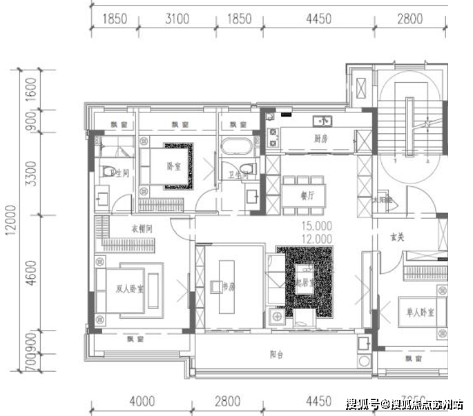
2大主力户型曝光,均为4房2卫户型设计,目前面积段未知。
户型一位于12#,一梯一户,4房2厅2卫。

该户型2大看点:客厅三联大阳台+大面宽主卧,厨房带家政间。
四开间朝南,三房朝南,次卧面宽3.4m;主卧大套房设计,4.8m大面宽。
南向面宽约16.4m,约11.6m超宽三联大阳台,市场罕见,尺度感直接封神。

户型二位于20#,一梯二户,同样为4房2厅2卫。

南向四开间,三房朝南,主卧套房面宽4m,全屋5个大飘窗,赠送面积较多。
南面宽14.3m,7.25m双联大阳台,空间感也还可以。

相城黄桥建发檀府售楼处电话:400-9696-224【预约热线】目前板块在售+待售多达8盘,楼市热度相对一般,多盘都在“艰难”去化中。
相城黄桥建发檀府售楼处电话:400-9696-224【预约热线】建发檀府距离湿地公园一路之隔,环境优势明显;低密墅类产品板块内独一份,叠加建发品质加持,相当有竞争力。
一、实施时间:
2023年12月1日起至2024年12月31日
二、补贴对象:
2023年1月1日以来在苏州大市范围内出售自有住房后(出售时间以不动产转移登记时间为准),并在2024年12月31日(含)前在姑苏区购置新建商品住房的购房家庭(购置时间以住建部门商品房网签合同时间为准,不包括人才房、安置性商品房等政策性住房),可分层次享受契税补贴。
三、补贴标准:
1.在2023年1月1日~2023年12月31日期间出售自有住房后,并在2023年12月1日~2024年3月31日、4月1日~6月30日、7月1日~12月31日期间购置新建商品住房的购房家庭,分别给予新房契税缴纳份额100%、80%、50%的购房补贴。
2.在2024年1月1日~2024年12月31日期间出售自有住房,并在出售后3个月内、3~6个月内、6~12个月内购置新建商品住房的购房家庭,分别给予新房契税缴纳份额100%、80%、50%的购房补贴。
四:补充说明:
1. 本次契税补贴要求购房者先“卖旧”后“买新”,先“买新”再“卖旧”不属于本政策补贴范围。
2. 每套自有住房出售后,原产权人在姑苏区只能享受一次“买新”购房契税补贴,夫妻及其未成年子女之间相互出售住房的,不得享受“卖旧买新”购房契税补贴政策。补贴仅针对通过市场交易购置的新建商品住房,房源不包括通过司法拍卖、赠与、转让、继承等方式获得的商品住房。
3.补贴采取先缴后补的方式实施,符合“卖旧买新”购房契税补贴条件的购房家庭应在取得新购商品住房不动产权属证书(以不动产权证书登记时间为准)后3个月内向姑苏区住建委提出领取申请,逾期视作放弃申领补贴资格。
4. 政策实施之日前购房家庭已经有“新房”网签合同备案记录,注销备案后在政策实施期间同一购房家庭在同一商品房项目重新网签备案的,不在补贴范围。
5. 售房时间以在不动产登记部门完成转移登记时间为准;购房时间以新购商品住房网上备案管理系统的合同备案时间为准;家庭成员以新购商品住房办理不动产权属登记时的家庭成员为准。
6.申请购房契税补贴时,申请人须提供真实、有效的材料。对弄虚作假、虚报冒领、重复享受补贴的,取消补贴资格,已发放补贴的按要求退回,并依法追究法律责任。
相城黄桥建发檀府售楼处电话:400-9696-224【预约热线】(一对一热情服务)
如有问题欢迎来电咨询,专业一对一热情服务,让您用专业眼光去买房。
声明:本文由入驻焦点开放平台的作者撰写,除焦点官方账号外,观点仅代表作者本人,不代表焦点立场。


