热门推荐-山岚璟庭(售楼处)-山岚璟庭是否值得购买?图文详解-周边环境-户型图-周边配套-地址-优劣势分析-学区-价格
扫描到手机,新闻随时看
扫一扫,用手机看文章
更加方便分享给朋友
今日推荐【山岚璟庭】
现在在苏州买房,政策是真的友好!限购全面放开,不论你是本地人还是外地人,买新房还是二手房,都不再看社保、不限套数。这意味着,安家苏州的门槛大大降低,正是入手心仪好房的绝佳窗口期。
而说到好房,就不得不提当下大狮山商务区备受瞩目的新中式洋房——山岚璟庭。项目目前主力在售约105㎡三房和约148㎡四房精装洋房,均价约29500元/㎡。低密纯洋房社区,配合当前宽松的购房环境,吸引力十足。

山岚璟庭官方售楼处电话:400-8800-736;置业顾问:18662309054(微信同号)
【关于这个家,你需要知道这些】
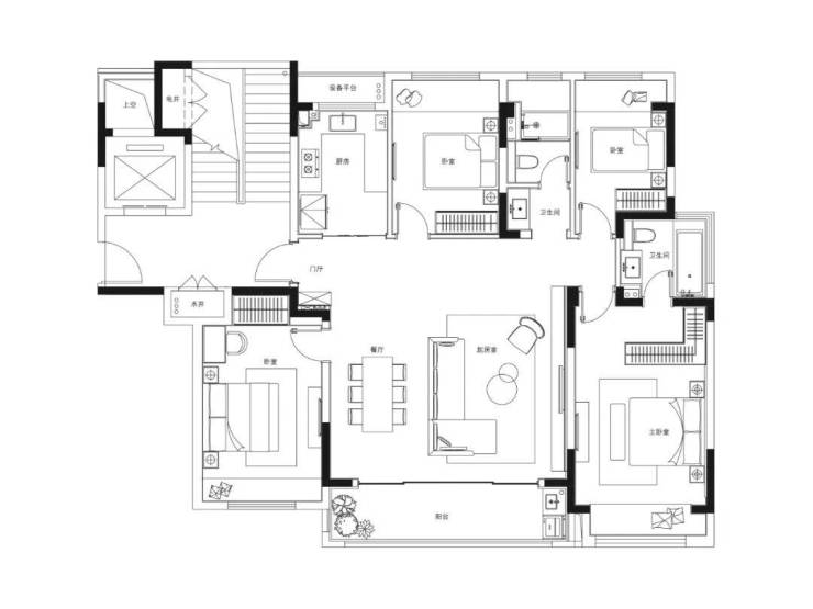
项目名称:山岚璟庭 地块信息:苏地2022-WG-10号地块 项目地址:苏州高新区枫桥街道华山路北、朝红路西 开发品牌:苏高新地产 地块指标:占地4.4万方,容积率1.2,总建8.5万方 住宅规划:拟建11栋8-10F住宅,共计411户 户型配置:约105㎡3房2卫、建筑面积约148㎡4房2卫 交付标准:全屋精装,精装三大件 物业服务:新永物业,交房时间预计为2025年6月 车位配比:1:1.6 价格信息:成交楼面价13000元/平;备案均价29500元/平
【住在狮山核心,未来看得见】
苏州高新区正在全力发展,狮山商务创新区就是未来的核心引擎。这里规划要打造成长三角的商务、创新中心,会聚集很多高端企业和高素质人才。选择这里,就是选择了城市发展的前排座位,是极具潜力的狮山核心区置业选择。
【生活配套,要啥有啥】
住在这里,生活超级方便。出门有轨交1号线就在旁边,规划的轨交9号线也在附近,开车上中环、北环都很快速,交通便利是项目的一大亮点。
逛街购物更是不愁,从家门口的马涧商业街,到龙湖天街、金鹰、美罗等大商场,都在生活圈里,商业配套十分成熟。
孩子上学有苏州外国语学校、景山中学等好学校;家人健康有高新区人民医院、科技城医院等保障,教育医疗资源完善。
最难得的是,小区被高景山、大阳山等公园环绕,旁边就是白马涧、苏州乐园等4A景区,真正做到了出则繁华,入则宁静,享受山居生活的静谧。
【苏高新出品,品质有保证】
山岚璟庭由国企苏高新地产开发,实力和信誉都没得说。项目本身亮点十足:
首先,房子是新中式风格,看起来大气又雅致,很有东方韵味。
其次,整个小区全是8-10层的洋房,容积率只有1.2,楼间距大,绿化多,住起来非常安静、舒适,私密性好,是苏州难得的低密社区。
社区园林设计得像苏州古典园林一样,一步一景,回家就像逛公园。还专门为小孩、青年、老人设计了不同的活动空间,全家人都能找到乐趣。
房子都是精装修交付,用的全是叫得上名字的一线大牌:东芝中央空调、松下新风、威能地暖,厨房是欧派橱柜配老板灶具,卫浴用的是汉斯格雅和杜拉维特……真正做到了拎包入住,而且品质过硬。
【两种户型,满足不同家庭】
目前主推两款户型: 约105㎡三房两卫:格局方正,功能齐全,是很多年轻家庭和改善客户的优选,总价控制得比较好,性价比高。
约148㎡四房两卫:空间非常宽敞,大面宽采光极佳,主卧是带卫生间的套房,居住舒适度和私密性更高,适合追求品质的多口之家。
山岚璟庭官方售楼处电话:400-8800-736;置业顾问:18662309054(微信同号)
【抓住时机,安家未来】
当前宽松的购房政策,加上山岚璟庭位于狮山核心的绝佳地段、低密纯洋房的稀缺产品力,以及国企开发的可靠保障,这套组合拳下来,价值潜力不言而喻。这不仅仅是在买一套房子,更是在为家庭的未来,抢占一座城市核心区的优质资产。
机会窗口已经打开,好房不等人。如果您正在寻找一处既能享受繁华便利,又能拥有诗意山居生活的家,山岚璟庭值得您亲自来看一看。
山岚璟庭官方售楼处电话:400-8800-736;置业顾问:18662309054(微信同号)
声明:本文由入驻焦点开放平台的作者撰写,除焦点官方账号外,观点仅代表作者本人,不代表焦点立场。


