涌潮府售楼处电话:400-8673-5672023年7月13日,浙江钱江房地产集团有限公司、宁波维科置业有限公司以及杭州市城建开发集团有限公司竞得浦东新区曹路基地12-01地块,联动价5.15万/㎡,规划中包含4栋16层住宅和1栋社区配套。
涌潮府售楼处电话:400-8673-567
上海涌潮府24小时vip热线☎:400-867-3567
城芯奢居,学府环伺,繁华在握。品质样板敬呈,臻稀房源递减!
一房一价表&认购规则公示
建面约87-125㎡3-4房
指导价5.15万/㎡
编辑

户型图抢鲜看!
编辑

涌潮府售楼处电话:400-867-3567
编辑

涌潮府售楼处电话:400-867-3567
编辑

涌潮府售楼处电话:400-867-3567
编辑

涌潮府售楼处电话:400-867-3567
1前情回顾
2023年7月13日,浙江钱江房地产集团有限公司、宁波维科置业有限公司以及杭州市城建开发集团有限公司以总价77033万元竞得浦东新区曹路基地12-01地块,联动价5.15万/㎡。
编辑

涌潮府售楼处电话:400-867-3567
地块四至范围:东至12-02地块,南至12-03地块,西至金开南路,北至:海福路。
目前设计方案已发布,计容面积约2.72万方,普通商品房用地占地面积约1.36万方,容积率2.0,限高50米,住宅套数下限288套,套均面积约94.4㎡,主要由4栋16层住宅和1栋社区配套组成。
编辑

涌潮府售楼处电话:400-867-3567
根据出让合同显示,项目还需配建5%以上的保障性住房,全装修比例50%,并要求中小套户型不得低于住宅总建筑面积的60%。
具体要求如下:
编辑

地块周边实拍:
编辑

编辑

编辑

编辑

涌潮府售楼处电话:400-867-3567
编辑

编辑

涌潮府售楼处电话:400-867-3567
编辑

编辑

总价约400万起入住浦东地铁房
错过不再的价格!
涌潮府售楼处电话:400-867-3567☎的价格有多惊喜?
分2个层面看:
第一,如果把浦东如今的新房供应和价格放在一张地图上,是这样的;
编辑

首先,整个浦东除了遥远的临港外,几乎没有约400万起的新房了,涌潮府售楼处电话:400-867-3567☎就是这个价位段年末上车的仅有选择。
其次,涌潮府售楼处电话:400-867-3567☎距离金桥申江路地区仅2站、距离金桥副中心仅有3站。
编辑

涌潮府售楼处电话:400-867-3567
要知道,在浦东金色中环带上,金桥副中心与张江副中心同能级,这里是浦东第二个30年发展的重中之重。
换句话说,涌潮府售楼处电话:400-867-3567☎是整个上海约400万起新房中,距离城市核心更近的新房。
第二,不仅是轨交盘,更是能级远超众多约600万级新房的轨交盘。
项目距离崇明线(在建)直线约600米,这个距离恰到好处,既不会受到轨交噪音的直接影响,也能做到步行可达。
编辑

涌潮府售楼处电话:400-867-3567
示意图
对于偌大的浦东而言,轨交旁的烫金置业地早已开发殆尽,如今在浦东直线约600米的轨交盘凤毛麟角。
上车后,2站即可直达金桥副中心的申江路地区中心,这里有一个总体量约275万方航母级TOD综合体上海·金鼎(在建)。
同时,2站就能换乘12号线:
换乘后2站换乘在建中的轨交21号线,直达金桥、张家浜、张江核心。
3站换乘6号线,沿着浦东的滨江带一路直达前滩、徐汇滨江。
通过12号线,6站直达杨浦滨江。
另外,崇明线3站即可直达金吉路站与9号线换乘,直达世纪大道、陆家嘴。
编辑

涌潮府售楼处电话:400-867-3567
示意图
总的来说,在约400万起的新房中,涌潮府售楼处电话:400-867-3567☎是距离城市核心更近、轨交通勤度更好的新房,这个地段能级,就值得您的一张房票。
而好地段的优势,不仅仅在于通勤,更在于接受利好的能力上。
编辑

三大千亿产业集群环绕
更具价值和潜力的宜居之地
浦东不是一个纯以环线定价值的区域。例如唐镇,外环外的板块,新房却卖着接近7万的价格,二手房房价就更是夸张。
而究其原因,就是因为产业。
而在这个“浦东买房看产业”的置业逻辑之下,涌潮府售楼处电话:400-867-3567☎的优势更是巨大。
项目被张江、金桥、外高桥三大产业高地环伺:
编辑

示意图
张江,世界级的大产业区!
金桥,以商务办公、文化休闲、会议展示、创意研发、生态游憩为主要功能的城市副中心。这片区域不管是产业量级、能级还是定位高度,都是比肩张江的存在。
编辑

示意图
外高桥,作为全国首个"国家进口贸易促进创新示范区"和上海国际航运、贸易中心的重要载体,成就了包括森兰、碧云联洋等一众国际住区。
这三大重磅产业区未来究竟会为涌潮府售楼处电话:400-867-3567☎带来多大的红利,太让人期待了。
更让人惊喜的不只是未来的高度,还有现在的丰盛配套,已经达到了宜居的标准:
以涌潮府售楼处电话:400-867-3567☎为中心,周边有恒越荣欣广场、欧亚玛特购物广场、招商花园城(在建)、宝龙广场等商业体。
如果说要满足更丰富的消费需求,未来通过地铁换乘到上海金鼎(在建)、嘉里巨峰路商业(在建)等商业中心,自驾也比较方便。
编辑

涌潮府售楼处电话:400-867-3567
项目邻建成幼儿园,周边在建小学、初中,以及浦东复旦附中分校、浦东模范中学东校等。
(本项目不做任何学区承诺,实际以政府规划为准)
编辑

涌潮府售楼处电话:400-867-3567
项目直线距离约3km范围内上海市第七人民医院,海军军医大学第二附属医院,三甲级综合医院上海长征医院浦东新院(在建中),预计24年投入使用,护航家人健康。
项目直线距离约5km上海浦东金海湿地公园,未来周边将围绕浦东运河、秦家港河打造体育公园、森林公园和极地公园等。(数据来源浦东发布)
编辑

编辑

杭派精工创新作品
建面约88-129㎡3-4房!
杭州城建(大家房产),秉承“杭派精工,大美为家”,续承至高府系基因,于杭州和上海先后打造了包括武林府、金麟府、传宸府、上海文澜府等经典著作。
其中,文澜府曾取得了74分的超高分,创下了惠南的积分记录,这是杭州城建(大家房产)实力的见证。
而本次,涌潮府售楼处电话:400-867-3567☎仅为焕新浦东人居高度而来,先来欣赏下项目的最新效果图:
编辑

编辑

编辑

编辑

涌潮府售楼处电话:400-867-3567
编辑

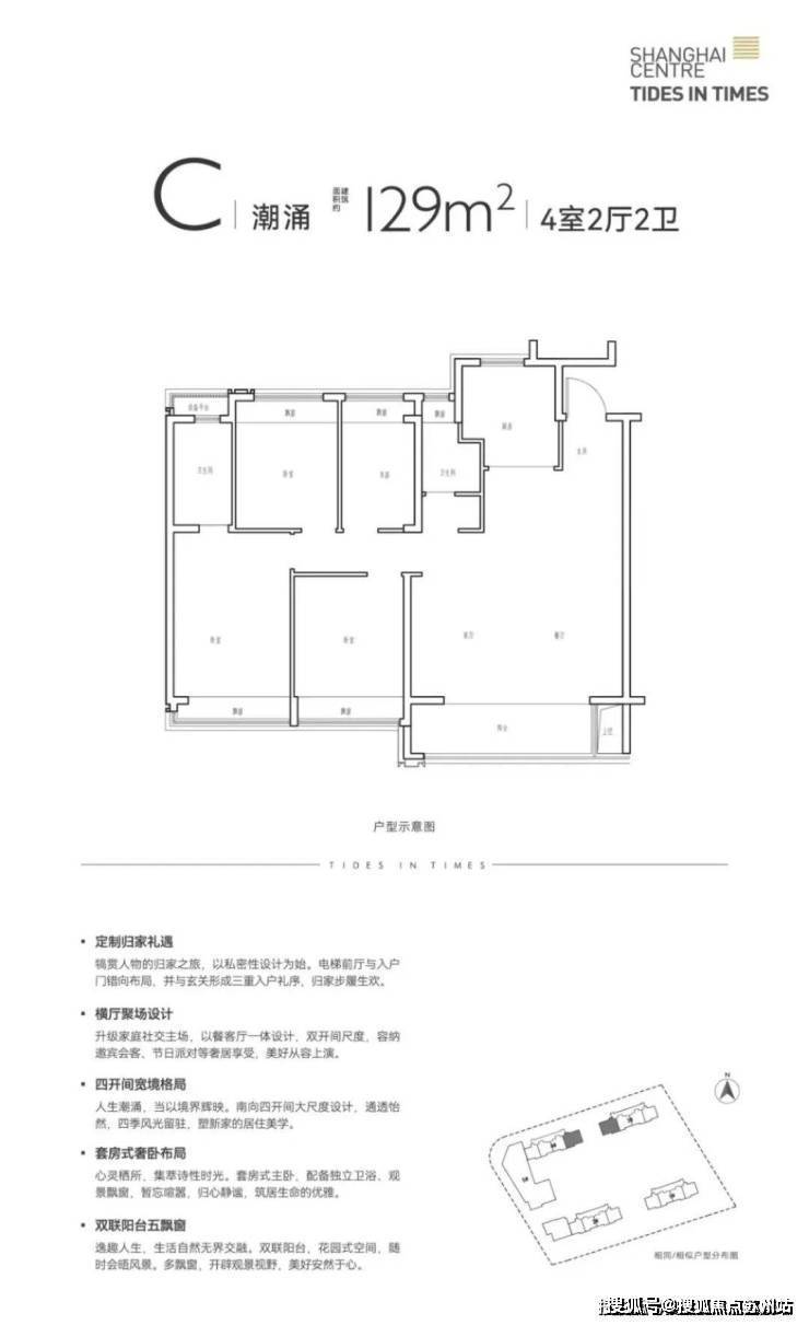
项目共约253套可售房源,主力户型为建面约88㎡3房2厅1卫,95、97㎡3房2厅2卫以及129㎡4房2厅2卫。
关于户型有几点值得一提:
第一,当下市场,花大价钱但得房率低已被诟病已久,无疑变相拉高了房价。
市场上目前普通新房的得房率普遍都在约73-74%左右,项目户型的得房率高达约79-80%。高得房率为你省下的可是真金白银!
第二,项目本次推出的建面约129㎡4房,是区域目前在售的4房户型。
最新户型图过程稿如下(以实际开发商发布为准):
编辑

建面约88㎡3房产品,总价或许仅约400万级,价格惊喜,适合刚需客户上车。
3房3飘窗+宽面阳台的设计,在保证实用性的同时,也让室内的通风以及视野都做到了更好。
编辑

编辑

涌潮府售楼处电话:400-867-3567
建面约95-97㎡3房2卫,2卫的设计保证了早晚高峰抢厕所的问题,并且主卧套房设计也保证了主人的私密空间。
在格局上,户型三开间朝南+动静分离,室内通风、私密性俱佳。
值得一提的是3房4飘窗1阳台,这个得房率以及视野的延伸,相当出色。
编辑

建面约129㎡真4房产品,并且四开间朝南的设计,这个户型的南向面宽和尺度感堪比别墅。
涌潮府售楼处电话:400-8673-567
上海涌潮府24小时vip热线☎:400-867-3567
一、买房前须知
1、民用住宅建筑权属年限为70年,商用房屋建筑权属年限为40年,工业用建筑是50年。
2、在国家有关房地产法律法规中,没有“意向金”的提法,要么是定金,要么是保证金。
3、挑选户型至少少需要以下几种图:规划图、单元平面图、户型平面图。
4、低层为一层-三层;多层为四层-六层;小高层为七层-九层;高层为十层及以上。
5、别以为九到十一楼不错,这是阳光最强烈的位置。
6、大家购房所付的保险费其实是可以打八五折的,外面的保险公司都可以为你打折。
7、别以为实测面积是对的,自己带上卷尺测量。
8、购房时大都会有一些面积是赠送的,如阳台。阳台分为封闭和半封闭两种,封闭阳台要全部算面积,半封闭阳台只算一半面积,半封闭阳台越多越超值。
二、关于住宅的长宽高
9、住宅的净高,是指下层地板表面或楼板上表面到上层楼板下表面之间的距离
10、住宅的开间,是指一间房屋内一面墙皮到另一面墙皮之间的实际距离。
11、住宅的长度和进深,是指一间独立的房屋或一幢居住建筑从前一墙皮到后一墙皮之间的实际长度。
12、住宅的层高,是指下层地板表面或楼板表面到上层楼板表面之间的距离。
三、住房公积金冷知识
13、提取公积金缴付房租的条件是房租超出家庭工资收入规定比例的。14、职工死亡或者被宣告死亡的,职工的继承人、受遗赠人可以提取职工住房公积金账户内的存储余额,无继承人也无受遗赠人的,职工住房公积金账户内的存储余额纳入住房公积金增值收益。15、目前装修自住住房不能办理住房公积金提取,也不能申请住房公积金贷款。
14、购买门面房不符合住房公积金提取的条件,不能提取住房公积金。
15、职工办理离退休的,可以提取住房公积金,并注销其住房公积金账户,但办理提前退养或内退的职工不能提取住房公积金。
16、住房公积金组合贷款是指个人申请住房公积金贷款不足以支付购买住房所需资金时,其不足部分向贷款银行申请住房商业性贷款的两种贷款之总称。
17、职工考取了研究生,但户口并未迁出本市或考取的是本地院校的研究生,这种情况是不能提取住房公积金。
18、凡在本区域内购买建造、翻建、大修自住住房的职工,可以申请公积金贷款。
四、关于过户
19、继承过户费用:继承权公证。200元公证费、280元登记费,总计480元。
20、赠与过户费用:个税契税公证费。1050元公证费(交易金额的千分之三)、280元登记费、契税10500元,总计11830.
21、二手房过户费用:营业税个税契税。房子买入超过5年后卖出,无营业税、契税1%(购房)3500元、个人所得税(35-25)*20%=20000元、交易费420元、登记费80元。总计24000元。
五、关于贷款
22、目前个人住房贷款还款方式主要为等额本金还款和等额本息还款两种。
23、区别:等额本息,就是每个月还款的“本息”之和始终保持不变。而等额本金,就是每月的还款总额里,本金部分始终保持不变,利息另算。
24、配偶买过房且贷款未还清,另一方买房仍算作二套房,不能享受购房的各种优惠政策。
25、向银行贷款过程中可能出现的各项手续费:公证费/律师费/保险费/评估费/手续费等。
26、正常买房按揭贷款一般只产生两类费用:手续费、评估费。
涌潮府售楼处电话:400-8673-567
上海涌潮府24小时vip热线☎:400-867-3567