甪直37号项目案名曝光:吴风书香和苑|建屋和朗诗合作,朗诗操盘
扫描到手机,新闻随时看
扫一扫,用手机看文章
更加方便分享给朋友
刚刚,甪直建屋甪直37号项目继规划出炉后,项目正式曝光!
确切消息,该项目将由建屋和朗诗合作,朗诗负责操盘,产品打造绿色科技住宅!
恭喜甪直,首度迎来科技住宅!
该项目(苏地2023-WG-37号)地块位于吴中区甪直镇长虹北路东、海藏西路北,是2023年8月四批次土拍中,建屋以总价约7.08亿竞得,成交楼面价10300元/m²,溢价率0%。
此外,项目占地面积34394.8平,总建面约98247.8平,计容建筑面积68748.08平,容积率2.0。

根据公示,项目打造9栋14-26F小高层和高层,总户数不大于570户,具体楼栋如下:
14F:5#
17F:1、3、7、9#
26F:2、4、6、8#
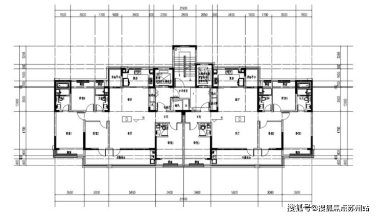
据总平面图,地面设置有机动车停车位;出入口就1个,在南侧海藏西路上。
项目部分楼栋的标准层户型图同步公示,有3房2卫、4房2卫、4房3卫,小高层和高层4大户型。
2#/4#/6#,26F高层 三房两厅两卫,2梯4户
整体是非常实用紧凑的方正户型。三开间朝南,面宽约11.2m,餐客厅一体开间约4.6m,等宽开敞阳台,让户型的通风采光都不错。
主卧做了套房设计,带独立卫浴,开间约3.1m。剩下两个次卧一个朝南一个朝北,开间均为2.8m,比较宽敞。
独立入户玄关,L型实用厨房,卧室带飘窗设计等,细节满满,适合首置和初改客群。
8#,26F高层 四房两厅两卫,2梯2户

8#西边户,四房两厅两卫,2梯2户
经典四房户型,大面宽、短进深。南向算4开间朝南,整体面宽约13.05m。
第一眼就非常惊艳的约6.4m大横厅设计,餐客一体化;以及跑道式双联大阳台,联通次卧,整体9.55m非常气派!
主卧依旧做了套房,带独立卫浴;双卧朝南、双卧朝北,满足三代同堂。
8#东边户 四房两厅三卫
东边户整体比西边户更加奢阔,格局类似,但不同点在于,南向次卧做了套房设计,阳台与大横厅等宽。
因此这个户型优势在于双套房,更加舒适方便。
大横厅约8.45m,尺度惊人!主卧开间约4m,南向次卧套房开间约3.7m。
朝北的两个房间可做次卧或套房,预算高的朋友,可以冲这个大户型。
7#,17F小高层四房两厅三卫,2梯2户

也是一个舒适的双套房,整体是四房设计,适合三代同堂的改善。
南向四开间朝南,开间约15.8m;LDKB一体化,客厅开间约5.8m,双联阳台约8.8m!
三大卧室朝南,生活享受更多阳光;主卧大套房,面宽约3.6m;另一个南向次卧套房开间约3.4m,空间尺度上非常舒适。
该户型会是整个小区最宽敞的!
规划条件:
根据此前土拍要求,该项目住宅单套户型面积不得低于100㎡,总户数不大于570户。
装修交付,装标不低于2000元/㎡。
同一地块中不低于地上建筑总面积40%的单体建筑预制装配率应不低于50%,住宅建筑应全部成品化建设和交付使用。
建屋&朗诗37号项目,位于吴中区甪直镇长虹北路东、海藏西路北。
位置上属于甪直核心居住区,一路之隔为甪直实验小学及甪直实验幼儿园。此前备受关注的吴中区与园区联手合作的——星泽实验学校在地块东北侧500m处。

周边生活配套比较成熟:
交通:向北约500米左右即是金鸡湖大道,南约1.5公里处是东方大道,东边即是绕城高速、西侧不远处为中环高架,驾车至园区约20-30分钟,自驾出行比较便利。
商业:北面有南山维乐城和阳光城丽景湾生活广场,均已开业。南面则靠近陆巷湾集贸市场,可以满足日常生活所需。
教育:南面有甪直实验小学和贝尔陶浜幼儿园,北面则靠近在建的星泽实验学校,这是独墅湖开放创新协同发展示范区首个九年一贯制学校。
新房市场:
目前板块主力在售万盛江南;创元地块规划已出,案名刚定,就叫熙和云起雅园。
价格的话,万盛江南主打洋房、叠墅均价2.9w+;老盘均价2.2w+左右,新项目可参考。
而且建屋37号地块地价有优势,作为目前苏州为数不多的低地价地块,未来房价不知会不会有惊喜。
吴风书香和苑咨询热线:18662309054
声明:本文由入驻焦点开放平台的作者撰写,除焦点官方账号外,观点仅代表作者本人,不代表焦点立场。


