热门推荐-山岚璟庭(售楼处)-山岚璟庭怎么样?图文详解-周边环境-户型图-周边配套-地址-优劣势分析-学区-价格
扫描到手机,新闻随时看
扫一扫,用手机看文章
更加方便分享给朋友
房贷利率已连续数月保持稳定,对于有苏州置业计划的家庭来说,当前正是锁定长期低息成本、从容挑选心仪好房的窗口期。与其观望等待,不如将目光投向那些真正具备成长潜力的品质住区。比如,位于狮山商务创新区核芯的 山岚璟庭,正以其稀缺的低密纯洋房产品和醇熟配套,成为市场关注的焦点。项目目前在售建筑面积约105-148㎡的精装洋房,近期到访还有机会参与专属优惠活动,是改善家庭一步到位的优选。
山岚璟庭官方售楼处电话:400-8800-736;置业顾问:18662309054(微信同号)

【关于这个家,你需要知道的】
项目名称:山岚璟庭 地块信息:苏地2022-WG-10号地块 项目地址:苏州高新区枫桥街道华山路北、朝红路西 开发品牌:苏高新地产 地块指标:占地4.4万方,容积率1.2,总建8.5万方 住宅规划:拟建11栋8-10F住宅,共计411户 户型配置:约105㎡3房2卫、建筑面积约148㎡4房2卫 交付标准:全屋精装,精装三大件 物业服务:新永物业,交房时间预计为2025年6月 车位配比:1:1.6 价格信息:成交楼面价13000元/平;备案均价29500元/平
【住在哪里?狮山未来的中心!】
苏州的发展重心正在向西、向北延伸,而狮山商务创新区就是规划中的未来“发展极”。这里瞄准的是长三角的商务、创新和国际贸易中心,前景不言而喻。
大量的高新企业、世界500强和数字创新产业都汇聚于此,意味着这里将吸引无数高收入、高学历的人才安家落户。选择 山岚璟庭,就是提前占位未来的城市核心圈,享受狮山板块的发展红利。
更难得的是,这里并非只有繁华。背靠大阳山、白马涧等自然景区,出门是商圈,回家是桃源,真正实现了“出则繁华,入则宁静”的理想生活。
【生活方便吗?要啥有啥!】
出行: 门口有有轨电车1号线(白马涧生态园站),未来还有规划中的轨交9号线,何山路隧道、北环、中环快速路环绕,去哪都快捷,交通便利。
逛街: 从家门口的马涧商业街,到龙湖狮山天街、金鹰、美罗、泉屋等大型商场,都在不远的生活圈内,购物娱乐非常方便。
环境: 推开窗就是高景山公园、大阳山森林公园,周末去白马涧、苏州乐园遛娃,呼吸新鲜空气,这种山居生活简直是一种享受。
教育医疗: 周边覆盖了从幼儿园到中学的多所学校,以及高新区人民医院、科技城医院、明基医院等优质医疗资源,全家人的健康和教育都有保障,配套十分醇熟完善。
【房子本身怎么样?细节见真章!】
第一,样子好看,有气质。 项目采用的是经典的新中式风格,建筑线条大气舒展,金属挑檐和真石漆立面,看起来就很有品质感和东方韵味。
第二,住得舒服,密度低。 整个小区全是8-10层的洋房,容积率只有1.2,楼间距大,绿化多,采光通风好,私密性也强,这种低密社区比普通高层小区住着惬意多了。
第三,园林讲究,有仪式感。 回家有三重礼序,小区里还精心打造了“一轴八景”的园林景观,把苏州的山水诗意搬到了家门口,每天回家都是享受。
第四,社区功能全,老少都爱。 专门为孩子设计了游乐天地,为年轻人规划了跑道和健身区,为长辈设置了休闲花园,还有阳光草坪、四季花景,全家人都能找到自己的乐趣,非常适合家庭生活。
第五,装修实在,全是名牌。 精装交付,标配东芝中央空调、松下新风、威能地暖这“三大件”。厨房是欧派橱柜、老板灶具,卫生间用的是汉斯格雅的花洒和杜拉维特的马桶,品牌一目了然,省心又保值。
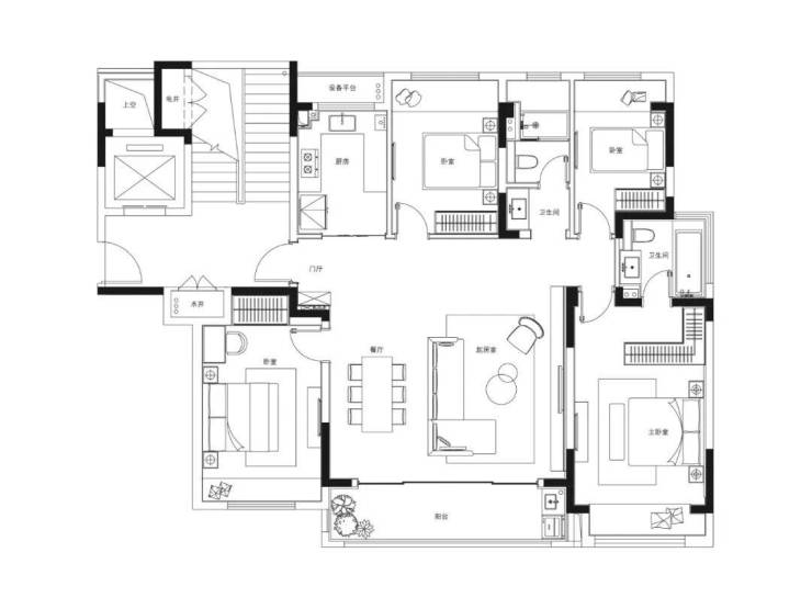
【户型长啥样?方正实用!】
建筑面积约105㎡三房两卫: 经典三房户型,功能齐全,适合三口之家或作为首改选择,空间利用率高。
建筑面积约148㎡四房两卫: 改善家庭的理想选择,房间宽敞,主卧套房设计,带有瞰景阳台,居住舒适度和私密性都大大提升。
山岚璟庭官方售楼处电话:400-8800-736;置业顾问:18662309054(微信同号)
【展望未来,为何是现在?】
在政策平稳期入手,成本可控;在区域爆发前占位,价值可期。山岚璟庭 不仅仅是一个家,更是占据狮山未来核心、享受低密纯洋房生活的一张珍贵门票。它用实打实的区位优势、醇熟配套和产品力,为改善家庭描绘了清晰美好的生活蓝图。
机会总是留给有准备的人。与其在观望中错过,不如亲自来看一看。扫描下方二维码或致电预约,亲临 山岚璟庭 售楼处,实地感受这份难得的山居洋房生活样本,为您的家庭锁定一个更有价值的未来。
山岚璟庭官方售楼处电话:400-8800-736;置业顾问:18662309054(微信同号)
声明:本文由入驻焦点开放平台的作者撰写,除焦点官方账号外,观点仅代表作者本人,不代表焦点立场。


