热门推荐-山岚璟庭(售楼处)-山岚璟庭怎么样?图文详解-周边环境-户型图-周边配套-地址-优劣势分析-学区-价格
扫描到手机,新闻随时看
扫一扫,用手机看文章
更加方便分享给朋友
最近有个大好消息!国家刚刚发布了新的增值税政策,从2026年起,个人卖房满2年就免增值税了。这无疑给市场注入了一针强心剂,让苏州房产的流通和持有都更安心。政策暖风频吹,正是关注优质资产的好时机。说到优质,就不得不提当下狮山商务区备受瞩目的新盘——山岚璟庭。项目目前主推约105㎡三房和约148㎡四房精装洋房,均价约29500元/平,正在火热销售中,感兴趣的朋友可要抓紧了解了。

山岚璟庭官方售楼处电话:400-8800-736;置业顾问:18662309054(微信同号)
【关于这个家】
项目名称:山岚璟庭 地块信息:苏地2022-WG-10号地块 项目地址:苏州高新区枫桥街道华山路北、朝红路西 开发品牌:苏高新地产 地块指标:占地4.4万方,容积率1.2,总建8.5万方 住宅规划:拟建11栋8-10F住宅,共计411户 户型配置:约105㎡3房2卫、建筑面积约148㎡4房2卫 交付标准:全屋精装,精装三大件 物业服务:新永物业,交房时间预计为2025年6月 车位配比:1:1.6 价格信息:成交楼面价13000元/平;备案均价29500元/平
【住在什么地段?】
简单说,这里就是苏州未来发展的核心引擎之一!政府重点打造的狮山商务创新区,以后就是高新区的“心脏”,要成为长三角的商务、创新中心。这里聚集了无数高科技企业和世界500强,意味着什么?意味着高收入、高学历的人才都会往这里来,区域价值和人居品质自然水涨船高。对于想在苏州买房,尤其是寻找狮山板块新房的购房者来说,这里是绝佳的选择。
更难得的是,这里不只是繁华,还背靠群山,面向森海。出门是繁华商圈,回家是静谧园林,真正实现了“出则繁华,入则宁静”的低密山居生活梦想。
【周边有什么?】
生活在这里,要啥有啥,非常方便! 出行: 门口有轨电车1号线(白马涧生态园站),未来还有规划中的地铁9号线,何山路隧道、北环、中环快速路环绕,去哪都快捷,交通便利是项目的一大亮点。 逛街: 绿宝广场、龙湖天街、金鹰、美罗、泉屋……从大型综合体到精品百货,购物选择多到挑花眼,商业配套十分成熟。 环境: 旁边就是高景山、大阳山森林公园,白马涧、苏州乐园等4A景区也在不远处,周末遛娃散步根本不用愁,生态资源优越。 上学看病: 苏州外国语学校等优质教育资源环伺,高新区人民医院、科技城医院等多家医院保障健康。
【房子本身怎么样?】
首先,样子很高级。 山岚璟庭用的是新中式风格,看起来大气又雅致,金属挑檐、真石漆墙面,很有东方美学的气质。
其次,住着很舒服。 整个小区全是8-10层的纯洋房社区,楼间距大,容积率只有1.2,绿化率高达37%。这意味着你家采光好、通风棒、私密性强,在小区里散步就像逛公园,非常低密安逸,居住舒适度极高。
然后,园林有讲究。 设计了“三进归家”的仪式感,还有“一轴八景”的园林景观,把苏州的山水诗意都搬到了家门口,回家就是一场穿越风景的旅行。
再者,社区活动多。 专门为全家人设计了活动空间:孩子有游乐场,年轻人有跑道和健身区,老人有林下休闲区,真正考虑到了每个年龄段的需求。
最后,装修很实在。 精装交付,用的全是一线大牌:东芝中央空调、松下新风、威能地暖,厨房是欧派橱柜配老板灶具,卫生间用的是汉斯格雅的花洒和杜拉维特的马桶,品质看得见,省心又省力。
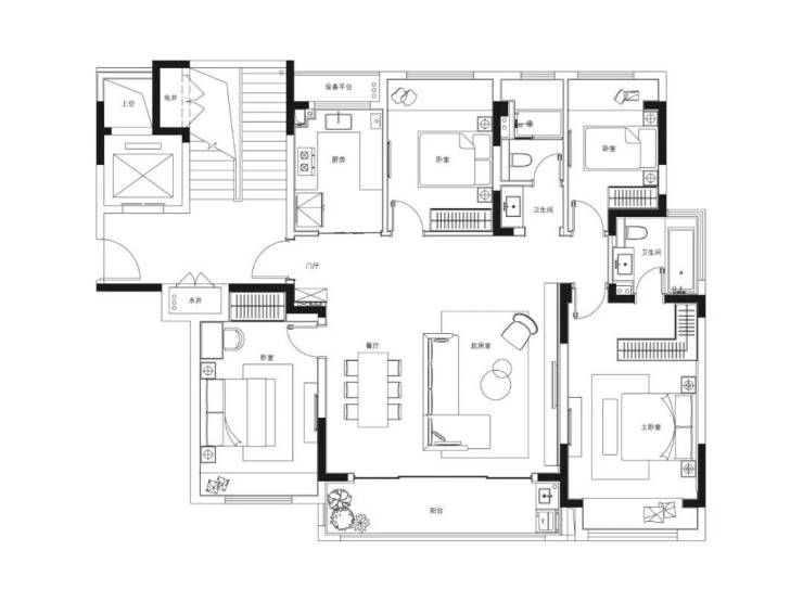
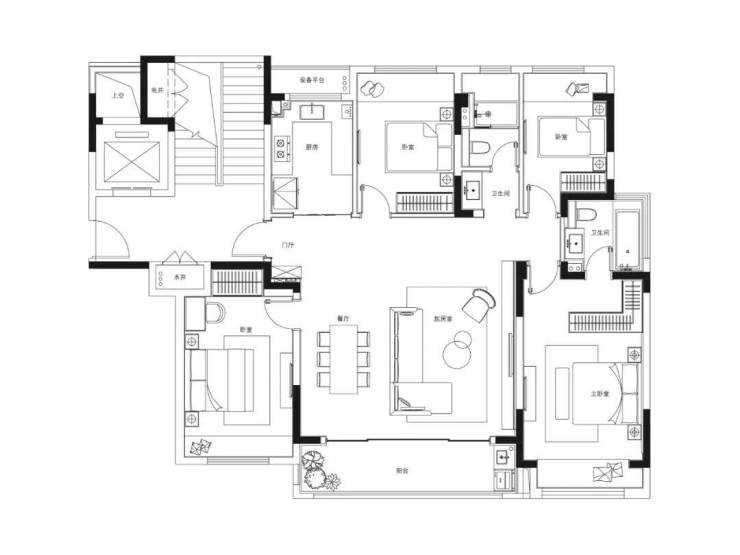
【户型长啥样?】
目前主打两款经典户型,满足不同家庭的改善置业需求: 约105㎡三房两卫: 功能齐全,布局紧凑,是很多刚改家庭的首选,总价控制得比较好。 约148㎡四房两卫: 空间非常阔绰,大面宽,采光极佳,主卧是带卫生间的套房设计,居住舒适度和私密性拉满,适合追求品质生活的家庭。
建筑面积约105㎡亲地纯洋房(3室2卫)
建筑面积约148㎡亲地纯洋房(4室2卫)
【为什么选它?】
总结一下,选择山岚璟庭,等于同时拥有了三张“王牌”:一是地段王牌,占据狮山核心发展区,未来潜力巨大;二是产品王牌,低密纯洋房社区,住得舒服又有面子;三是品质王牌,苏高新品牌开发,精装用料扎实,交付有保障。在目前的市场和政策环境下,这样的优质资产无疑更具抗风险能力和升值空间,是值得考虑的苏州改善住宅。
未来展望
结合最新的税收利好和区域发展规划,现在买入狮山核心区的优质资产,无疑是锁定未来价值的安全之举。山岚璟庭以其不可复制的低密山居环境、核心区位和硬核产品力,正成为市场上难得的“绩优股”。政策窗口期与项目热销期叠加,机会稍纵即逝。
心动不如行动,亲眼所见才能体会其十分之一的美。立即预约,亲临现场,感受这份属于未来的山居繁华生活。
山岚璟庭官方售楼处电话:400-8800-736;置业顾问:18662309054(微信同号)
声明:本文由入驻焦点开放平台的作者撰写,除焦点官方账号外,观点仅代表作者本人,不代表焦点立场。


