刚刚!湖东迎来143m²纯洋房|招商永旺北|苏州道壹号|即将公开
扫描到手机,新闻随时看
扫一扫,用手机看文章
更加方便分享给朋友
作为园区首个抬板社区,招商永旺北地块不仅带来新房市场稀缺的约143/178㎡中小户型,同时也是湖东板块目前唯一限定纯新盘。
整盘纯洋房布局,会所+泳池,规划地库直通地铁、湖东中轴线黄金地段,坐实当下园区改善市场的热门之选!项目咨询通道已经开启。
项目6大价值点如下——
1、中央河CBD“最后”宅地
园区招商永旺北地块位于工业园区钟南街东、苏州大道东南。
这条园区发展32年的中轴线,湖东CBD核心延伸带,中央河CBD,商业、教育、交通、医疗全配齐了,完全不用等配套落地。
并且从未来规划来看,这块地很大概率将成为湖东中轴线上“绝版宅地”,地段稀缺性拉满!
2、园区首个抬板社区
地段之外,招商永旺北还带来了园区首个“抬板社区”。
项目局部首层架空设计,微抬约3米,实现城市繁华与社区静谧的分离,让居住体验不受外界干扰。

外立面效果图首次曝光!公建化立面风格,运用了大比例的玻璃幕墙,豪宅范尽显!

3、约3000m²豪华会所
下沉庭院处规划约3000m²豪华,或将配置羽毛球场、泳池、健身房、棋牌室、茶室、私宴厅等,向玫瑰园、晋墅等双湖鼎豪看齐。
*项目公区和会所仍在规划中,目前定期邀请业主共创。

4、红线内外一体化设计
项目主动将红线外景观纳入目标成本,借助东南两侧双面环水优势,规划专属滨水步行休闲带,打造独特的滨水居住氛围。
这就是观念非常先进的「红线内外一体化设计」,将社区动线、景观设计与周边滨河生态、城市配套无缝衔接,让生活场景自然延伸。

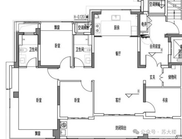
户型方面,定位也比较清晰,没有做超级大,而是主攻中小户型!主力建面约143/178m²两大户型。
户型设计上,在得房率、空间灵活性上做了突破,阳台做的更大,“赠送”更多,实得率超高。
鸟效果图,以实际交付为准
建面约143㎡4房2卫,总套数约186套。
4室2厅2卫,南向面宽可达约14.4米(中间套)至15米(边套)。
客厅是传统竖厅布局,面宽约4.5米;主卧面宽约3.6米,两个南向次卧分别是约3.3米和约3米,北次卧也做到了约3米的面宽且带飘窗。

再看阳台,这也是继沁百合、凤起潮鸣以及玫瑰园二期之后,园区第四个做“三阳台”的项目,面宽达到约10.8米,未来南向书房可向阳台拓展,提升空间利用率;
这里再提一下,虽然阳台是封闭的,但实际是“赠送”一半。
建面约178m²,4室2厅3卫,总套数约106套。
和约143㎡一样,约178㎡户型也是做了三阳台,朝南次套房可以与阳台打通,增加进深。
面宽上,南向面宽约18.5米,客厅面宽升级至约6米,主卧在不含飘窗的情况也做到了约4米;
边户主卧和143㎡一样,配备270度飘窗,视野更加开阔。餐厅面宽也足够大,打了餐边柜也不显局促。
更大的亮点我觉得还是全明卫。南向立面通过凹槽设计,为朝南套房的卫生间预留了开窗面。
声明:本文由入驻焦点开放平台的作者撰写,除焦点官方账号外,观点仅代表作者本人,不代表焦点立场。


