最新!吴中太湖新城纯新盘规划出炉!联排+叠墅!容积率1.02!2026年要变天了?!
扫描到手机,新闻随时看
扫一扫,用手机看文章
更加方便分享给朋友
吴中太湖新城迎来了板块内首个纯别墅项目!
在拿地1年多之后,吴中区太湖新城板块的纯新盘太璞置地22号地块项目的建设工程规划批前公示了,这也是项目的规划首次官方公示了。
从规划来看,项目拟建25栋3-6F住宅,分为联排和叠墅两种产品,这也是板块内首个规划正式出炉的纯别墅盘,别墅的风也吹到了吴中太湖新城了!
联排+叠墅!低密度项目
太璞置地太湖新城22号地块项目,即,苏地2024-WG-Z22号地块,位于吴中太湖新城太湖街道箭浮山路东侧、子文街南侧,是2024年10月18日,苏州吴中滨湖置业有限公司以底价65303万元竞得,成交楼面价18000元/平。

项目的地块用途为城镇住宅用地,占地面积35568.16平,总建筑面积68547.43平,计容建筑面积36279.52平,容积率1.02.
根据规划,项目拟建25栋3-6F住宅,其中,21栋3F住宅、4栋6F住宅。咨询热线:18662309054

1,太湖新城板块的纯新盘,其容积率为1.02,即,板块内的纯低密住宅社区;
2,项目规划了25栋3-6F的住宅,其产品为3F联排、6F的叠墅,以联排产品为主,仅有4栋叠墅产品。
3,根据要求,项目的住宅单套户型建筑面积不得低于120平方米;
4,先前的公示信息,项目将于2026年开工;
5,项目总投资约为130750万元,则简单粗暴计算,保底的价格为36039元/平;
6,项目的外立面色彩需符合太湖新城整体素颜要求,外立面材质鼓励采用以玻璃、金属板材、石材等高品质材料为主;

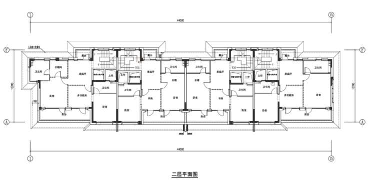
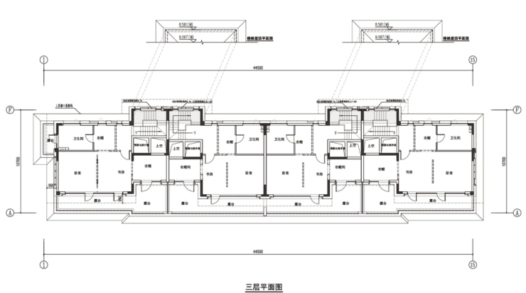
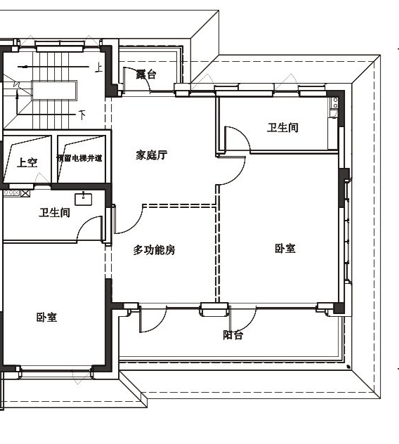
规划户型出炉
项目公示了联排和叠墅的部分户型图平面示意图。

联排户型















叠墅户型,下叠






吴中太湖新城板块!居住氛围浓
太璞置地太湖新城22号地块项目,即,苏地2024-WG-Z22号地块,位于吴中太湖新城太湖街道箭浮山路东侧、子文街南侧,属于吴中太湖新城板块。

周边界面来看,也是比较不错的,北面是建设中的住宅小区金融街融悦沁庭,东面是仙玩港,南面也是河流和规划宅地,目前还没挂牌,西面同样是宅地,也没出让。整体来看,未来基本都是住宅小区也生活配套,居住氛围比较好。

配套上来看,目前很多设施都还在落地过程之中,未来还是比较值得期待的。
交通上来看,项目距离最近的地铁是东面4号线支线(7号线)木里站,步行即可到达!
自驾上面,北侧就是主干道东太湖路,往东可连接友新快速路和江陵西路,链接市区和吴江。
商业设施上面,小区东面有水街睦邻坊,周边规划有几宗商业用地,在北面有苏州湾中心广场。比较大型的商业设施,则主要依靠东面的天鹅港华庭商业和地下空间橙天里。此外板块东部还有金融街商业和已经开业的永旺梦乐城、歌林小镇。
教育设施上,项目东面是已经投入使用的华中师范大学苏州实验小学,北面也有一宗小学用地和中学用地,西北面比较靠近华中师大太湖中学新校区。
其他方面,周边还规划有高端康养中心、儿童专科医院、图书馆、体育中心和360剧场等。
总的来看,板块规划的是比较宜居的,而且基本没有工厂等,近太湖,生态环境也比较好,各类设施配置的也比较齐全,但是需要时间落地,未来可期!咨询热线:18662309054
声明:本文由入驻焦点开放平台的作者撰写,除焦点官方账号外,观点仅代表作者本人,不代表焦点立场。


