露香园天誉售楼处-首页网站-露香园天誉-售楼中心欢迎您-2025楼盘测评-楼盘详情-房价
扫描到手机,新闻随时看
扫一扫,用手机看文章
更加方便分享给朋友
露香园天誉售楼处电话:400-812-3664
上海黄浦露香园天誉售楼处电话☎:400-8123-664(预约看房热线)
黄浦顶豪露香园·天誉
150套 天际大平层
建面约260-882㎡ 均价17.6万/㎡
顶着近乎5000万起步的总价
大多人群坚定选择露香园·天誉
上海黄浦【露香园天誉】
售楼处电话☎:400-8123-664【售楼处预约热线】(一对一热情服务)
如有问题欢迎来电咨询,专业一对一热情服务,让您用专业眼光去买房。
露香园天誉售楼处电话:400-8123-664

露香园天誉售楼处电话:400-8123-664
露香园·云宸
LUXURY HOUSE
预售详情
黄浦豫园钻石级地块
露香园二期【露香园·云宸】
首推高层262套房源,均价16.3万/㎡
开盘选房已结束,去化约80%
加推12套风貌别墅
仅剩3席
建面约410m²联排别墅共5套
建面约430- 450m²双拼别墅共4套
建面约510-540m²类独栋别墅共3套
单价24~32万元/m²
总价约1.08亿元起
露香园天誉售楼处电话:400-8123-664

露香园天誉售楼处电话:400-8123-664
露香园二期整体规划10.94 万方高层住宅、2.44万方低层住宅(联排别墅)、5.22万方商业以及历史风貌建筑。
项目整体分为6个地块,即A、B、C1、C2、D1和 D2。
项目B、D1地块公寓已于2024年3月上市,目前基本售罄。
现D1地块风貌别墅即将上线,建面约410-540㎡。
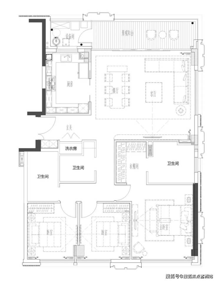
户型介绍
露香园天誉售楼处电话:400-8123-664
露香园天誉售楼处电话:400-8123-664
风貌别墅效果图
露香园天誉售楼处电话:400-8123-664
露香园天誉售楼处电话:400-8123-664
露香园天誉售楼处电话:400-8123-664
露香园天誉售楼处电话:400-8123-664
露香园天誉售楼处电话:400-8123-664
露香园天誉售楼处电话:400-8123-664
露香园天誉售楼处电话:400-8123-664
露香园天誉售楼处电话:400-8123-664
露香园二期可售住宅部分为A、B、C、D四个大地块分别开发建造。首开入市的为B地块和D1地块。

露香园天誉售楼处电话:400-8123-664
▲ 露香园二期地块分布信息
项目首开已入市平层情况
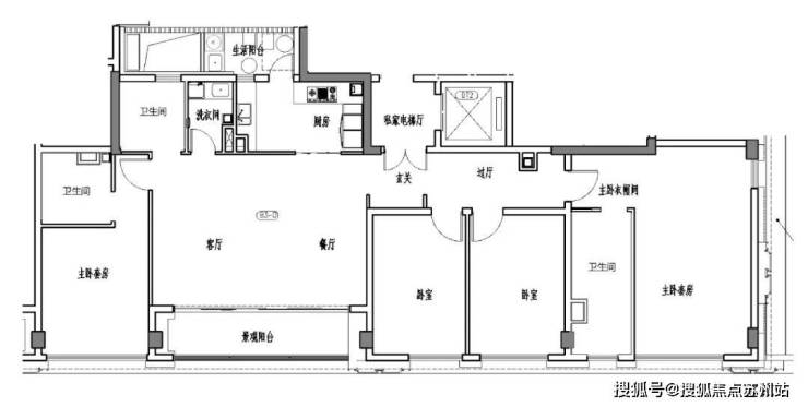
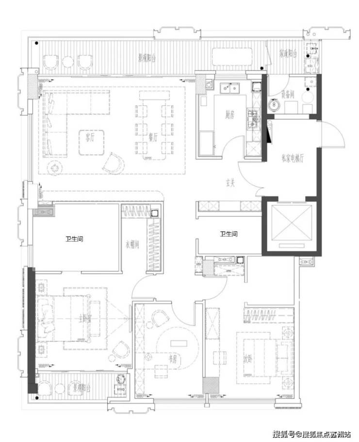
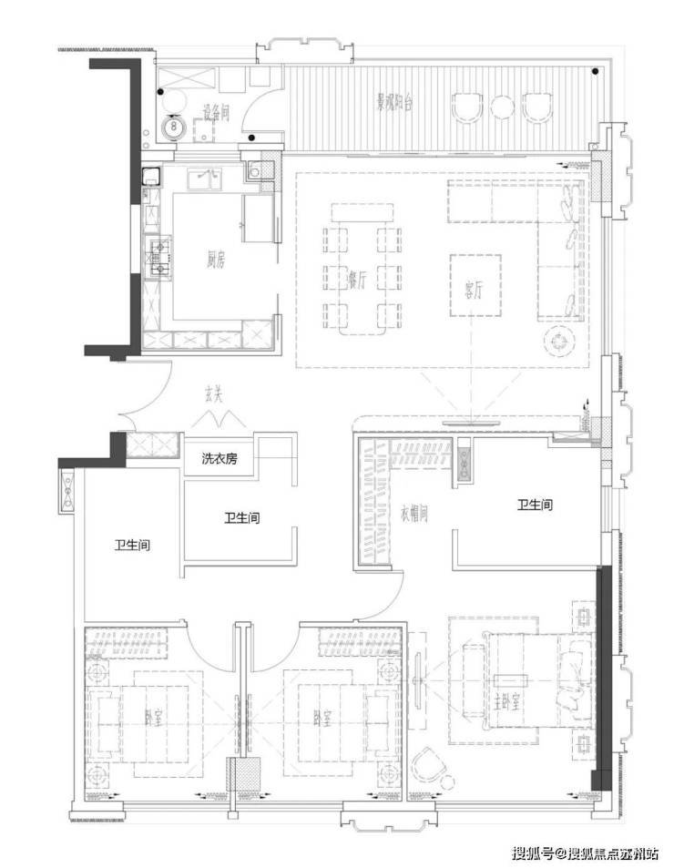
露香园二期首开入市的B地块,主要提供约166-213㎡的三房两厅两/三卫高层公寓,共103套;提供约216-254㎡的四房两厅三卫高层公寓,共74套。该地块共177套房源。
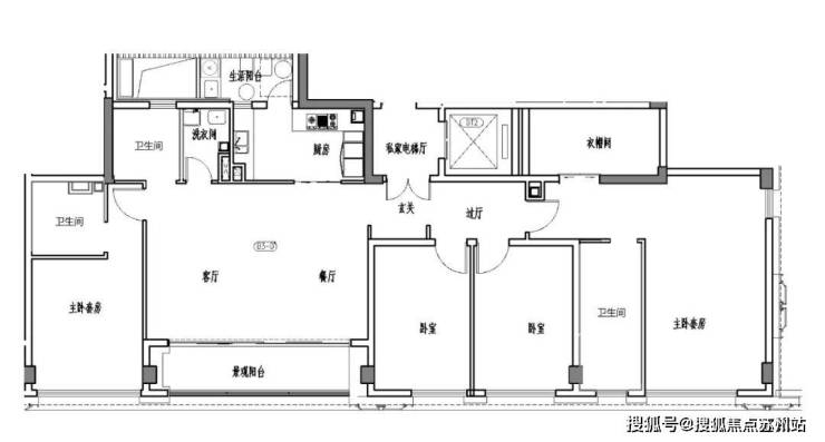
B地块户型图参考
露香园天誉售楼处电话:400-8123-664
▲ 建面约253㎡4房2厅3卫
▲ 建面约234㎡4房2厅3卫
露香园天誉售楼处电话:400-8123-664
▲ 建面约213㎡3房2厅3卫
▲ 建面约182㎡3房2厅2卫
▲ 建面约186㎡3房2厅2卫
▲ 建面约166㎡3房2厅2卫
露香园天誉售楼处电话:400-8123-664
▲ 建面约199㎡3房2厅3卫
▲ 建面约217㎡4房2厅3卫
露香园天誉售楼处电话:400-8123-664▲ 建面约229㎡4房2厅3卫
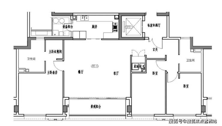
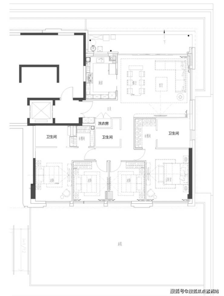
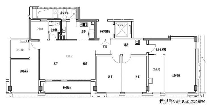
露香园二期首开入市的D1地块,主要提供约159-206㎡的三房两厅两/三卫高层公寓,共84套;提供约215-224㎡的四房两厅三卫高层公寓,共2套;提供约400+或500+㎡的五房三厅五/六卫别墅产品,共12套,相信也会是和一期类似的石库门风格别墅。该地块共98套房源。
D1地块户型图参考
露香园天誉售楼处电话:400-8123-664
▲ 建面约208㎡3房2厅3卫
露香园天誉售楼处电话:400-8123-664
▲ 建面约159㎡3房2厅2卫
露香园天誉售楼处电话:400-8123-664
▲ 建面约196㎡3房2厅3卫
▲ 建面约224㎡4房2厅3卫
露香园天誉售楼处电话:400-8123-664
▲ 建面约215㎡4房2厅3卫
露香园天誉售楼处电话:400-8123-664
▲ 建面约198㎡3房2厅3卫
▲ 建面约164㎡3房2厅2卫
▲ 建面约177㎡3房2厅3卫

露香园天誉售楼处电话:400-8123-664
▲ 网传露香园二期首开地块面积段分布
*以上部分信息来源于互联网,最终以开发商公示为准
不过,露香园二期的开发商,典型的上海本地国企——上海城投作风一向稳健踏实,并不激进,步调扎实潜心做产品,敬请期待。
露香园天誉售楼处电话:400-8123-664
前情回顾
2021年1月5日,上海城投拿下豫园“钻石级”地块(《露香园》二期),因报名房企只有一家,最终上海城投以176亿的底价获得该地块,溢价率为0,以地上计容面积计算,楼板价约为89,567元/㎡,以地上商业+住宅计容面积,楼板价约93,500元/㎡,若扣除保障房面积,楼板价则为约97,000元/㎡!

露香园天誉售楼处电话:400-8123-664
露香园二期规划方案曝光,项目总投资额(含地价)高达280亿,是露香园一期总投资额的2.5倍以上。以经营性面积计算,二期的平均开发成本(含商业)高达15.17万元/㎡!

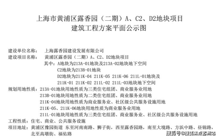
先来看已经公示的A、C2、D2地块:

露香园天誉售楼处电话:400-8123-664
其中右上角的A地块是高层住宅,据悉约5.45万㎡,共150套,套均面积364㎡。C2地块为纯低密产品。南侧的D2地块是大量商业和保障房。
整体效果图可以参考这张:

露香园天誉售楼处电话:400-8123-664
从开发指标来看,露香园二期共包含:
10.79万平方米的高层住宅
2.44万平方米的低层住宅(联排别墅)
5.22万平方米的商业
露香园二期一共可分为A、B、C、D四个大地块。

露香园天誉售楼处电话:400-8123-664
地块户型规划及解读
项目考虑功能性的同时兼顾舒适度,参考案例套数下限进行本项目户型配比分析:
高层公寓户型建议
本项目地块位置优越, 且位于风貌保护区, 为打造市中心顶级豪宅, 高层面 积段均为大房型。
其中, A 地块高层公寓视野及地理位置均最佳, 户型以四房户型为主, 主力 产品面积段为260-500 ㎡,私家电梯厅入户,礼仪性玄关,多套房设计。顶层设置豪华顶复套型,彰显尊贵及稀缺特性。
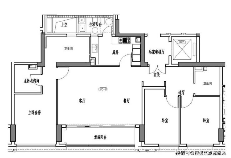
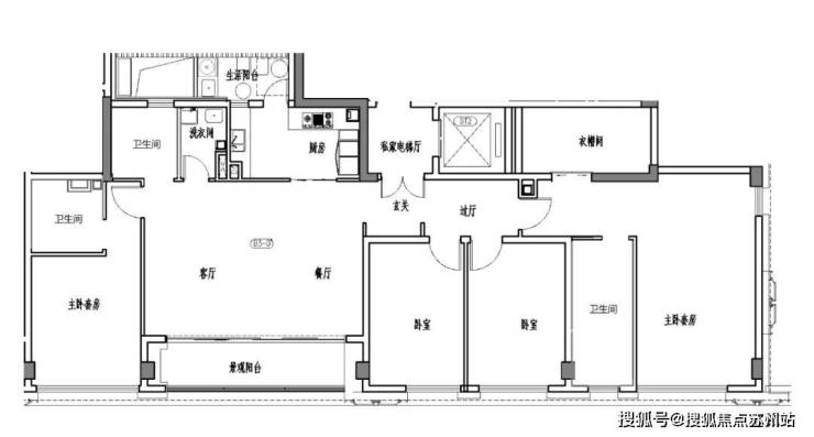
B 地块高层公寓户型主要为三房及四房, 面积段为 166-254 ㎡, 强化房间功 能性,私家电梯厅入户,礼仪性玄关,主卧套房设计。
露香园天誉售楼处电话:400-8123-664
户型亮点为礼仪性入户,南北通透,大尺度空间,卧室舒适度和私密性高,大面积玻璃窗可实现更好的视野与采光。
别墅户型建议
本项目别墅凭借风貌保护区的核心天然优势和老上海记忆成为了市中心不 可多得的收藏品。
其中,【开明里】为历史建筑, 经过原有建筑及院落合并升级、内部空间改造提升后, 满足现代品质生活功能性、安全性、舒适性及耐久性的需求。别墅产品有联排及独栋,户型面积段主要集中在 210-560 ㎡,带私人花园及地下室。
C2 及 D1别墅,延续海派石库门风格,与开明里风格统一,充分体现历史风貌与街巷肌理。户型配置主要为三房至五房,面积段主要集中在 350-540㎡。庭院方正,房型通透;挑高客厅,尽显奢华。
户型亮点针对高端人群需求, 通过形态升级、功能分层带来空间舒适度和居住私密性的改善以及花园、露台、地下室的附赠, 突显尊享性,满足生活方式升级和身份认同感。
六维产品体系
露香园天誉售楼处电话:400-8123-664
产品细化:搭建六维产品体系, 从装修、立面、公共空间、景观、物业、车位等方面推动产品品质升级,树立黄浦区城市更新封面之作。
装修标准
露香园二期【露香园·云宸】
项目装修从业主需求多样性及控制成本角度考虑,建议采用基础装标, 满足验收要求,交房后业主可根据个人风格喜好进行改造升级。
露香园天誉售楼处电话:400-8123-664
对标周边项目装修标准, 本项目采用品牌保障的国际知名品牌,整体装修充分满足基本需求配套。
露香园天誉售楼处电话:400-8123-664
立面风格
露香园二期【露香园·云宸】
项目高层公寓产品 立面风格建议采用铝板+大面积玻璃式现代风格

露香园天誉售楼处电话:400-8123-664
公共空间建议
露香园二期【露香园·云宸】
项目用类似五星级酒店大堂的形式打造, 设置服务台和会客区, 电梯内部装修。地上地下双大堂,地下车库直接刷卡入户,使住户归家拥有舒适体验,第一印象良好。
景观生态
露香园天誉售楼处电话:400-8123-664露香园二期【露香园·云宸】
本项目景观注重功能区的品质感和高级感,同时兼顾舒适性和社区互动性,打造全年龄段的主题区域,提升整体空间品质,促进社区文化的和谐发展。
物业服务
露香园天誉售楼处电话:400-8123-664露香园二期【露香园·云宸】
项目物业着眼于客户诉求, 加强基础物业服务, 尤其是维修、快递收件服务。其次建议加入24h 便利店、24h维修服务、入户保洁等物业服务,提高居住舒适度,同时提高安全保障,为业主提供品质保障生活。此外,针对不同年龄段的业主的需求,提供差异化的服务,如学龄儿童托管及培训服务, 中青年团体活动、汽车服务、老龄业主医疗服务等。

车位空间
露香园天誉售楼处电话:400-8123-664露香园二期【露香园·云宸】
车库建议采用人车分流模式、并设置地下停车空间, 采用车库智能通行系统、 新风系统等,打造科技、舒适的品质生活。
地块具体规划情况
A地块概况
露香园二期【露香园·云宸】

露香园天誉售楼处电话:400-8123-664

▲ A 地块沿街效果图
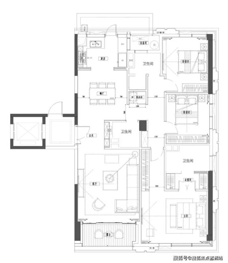
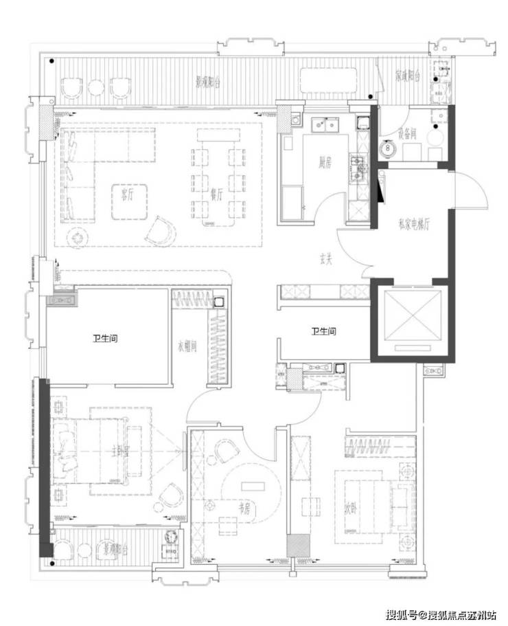
▲ A 地块户型分布图

露香园天誉售楼处电话:400-8123-664
A 块集中商业均设置于裙房 B1至 4F层,主要为满足本社区高端住宅居民日常消费以及周末便捷消费需求,商业业态为高附加值商品销售和私人高端定制服务。其中:
B1层考虑到与地铁10号线豫园站接口,主要为轻食简餐、甜品饮品、人气零食、便利店等业态;
1F 层主要为花店、咖啡店、面包烘焙、画廊、婚纱礼服高端定制、高端家具、餐具、书店等业态;
2F 层主要为皮具护理、轻餐、下午茶、烘焙学校、拍卖行、高端 SPA、插花 DIY、小众家电、西式料理等业态;
3F 层为精品超市、西装高珠定制、休闲娱乐(冲浪、滑翔伞、高尔夫、马术、钓鱼用具及配件和威士忌、红酒、咖啡、茶、雪茄吧) 以及以健身为主题的会所(包括 4F 层部分区域)。
商铺将根据业态布局要求委托招商代理单位租赁给相应品牌商户,确保露香园社区品质;会所因仅为露香园社区业主适用,将委托物业管理单位统一经营管理,相应功能场所可有业主预约使用。
B(210-F-01 地块)
露香园二期【露香园·云宸】
▲ B 地块沿街效果图
露香园天誉售楼处电话:400-8123-664
▲ B 地块户型分布图

露香园天誉售楼处电话:400-8123-664
B 块商业用房将以长租公寓的形式通过公开比选方式委托由相应品牌和管理经验的经营单位进行经营管理, 在不影响露香园社区品质的条件下,确保持有商业资产的保值增值。
C1(210G-01)地块
露香园二期【露香园·云宸】
▲ 地块里弄效果图
露香园天誉售楼处电话:400-8123-664
C1 地块为【开明里】, 目前为方案设计阶段。
开明里南北向行列式的肌理完整、内部里弄结构清晰, 体现了老城厢里弄街坊典型的“外市内里”和“街巷弄院”空间肌理特征。开明里共有三类保护等级, 内里为黄浦区文物保护点,南部沿街为保留历史建筑,西侧沿街为一般历史建筑。 本地块历史建筑通过合并三开间或双开间、优化建筑间距、地库整体开挖等更新 策略,提升居住品质。
▲ C1 地块户型分布图

露香园天誉售楼处电话:400-8123-664
功能业态由 2-3 层住宅、3 层商业及 B1 层地下住宅及 B2 层地下车库组成。 总建筑面积为31970 ㎡, 其中地上建筑面积为4650 ㎡, 地下建筑面积为 17320 ㎡。地上计容建筑面积 14050 ㎡,其中低层住宅 11050 ㎡,商业 3000 ㎡(其中 含 1 户商墅 340 ㎡) ;地下建筑面积 17320 ㎡, 其中地下车库 11220 ㎡, 地下住宅 6100 ㎡。住宅总户数 27 户,主力产品户型为低层别墅。
C1 块沿大境路的商铺主要为高端私人定制服务、设计师工作室、创意餐饮 和西式咖啡简餐等业态,将根据业态布局要求委托招商代理单位租赁给相应品 牌商户,确保露香园社区品质。
C2(213B-01地块)
露香园二期【露香园·云宸】
露香园天誉售楼处电话:400-8123-664
C2 地块延续 C1 开明里的行列式规划肌理, 形成风貌肌理的统一。目前为方案设计阶段。
功能业态由 2-3 层住宅、3 层商业及 3 层地下车库组成。总建筑面积为 40041 ㎡, 其中地上建筑面积为 13211 ㎡, 地下建筑面积为 26830 ㎡。地上计容建筑面 积 12511 ㎡, 其中低层住宅 8010 ㎡, 商业 4501 ㎡(其中含 1 户商墅 452 ㎡); 地下建筑面积 26830 ㎡,其中地下车库 18430 ㎡,地下住宅 8400 ㎡。住宅总户数 19 户,主力产品户型为低层别墅。

露香园天誉售楼处电话:400-8123-664
▲ 地块鸟瞰图

▲ C2 地块户型分布图
C2 块沿河南南路和大境路的沿街商铺主要为国际潮流品牌零售、美学生活 馆、高奢美妆品牌零售、主题概念咖啡餐饮等业态, 将根据业态布局要求委托招 商代理单位租赁给相应品牌商户,确保露香园社区品质。
D1地块
露香园二期【露香园·云宸】
露香园天誉售楼处电话:400-8123-664D1 地块目前为施工阶段。
东地块(211J-02 地块) 为两栋高层住宅塔楼及公配裙房。北侧为 D1-1# (19 层) 、南侧为 D1-2# (18 层),其中 1-3 层为住宅大堂及核心筒, 4 层为结构转 换层,余层为住宅。D1-3# (3 层)裙房为公共配套,其中社区网格化管理中心 200 ㎡,文化设施 4500 ㎡,另有地下菜场 1500 ㎡;
西地块(211J-02 地块)为 四栋 3 层住宅及 3 层商业。其中北侧沿大境路为商业功能, 其余为住宅。总建筑 面积为 46557.33 ㎡,其中地上建筑面积为 29370.18 ㎡,地下建筑面积为 17187.15 ㎡。住宅总面积 21207.16 ㎡,总户数 98 户,主力产品房型为高层公 寓及低层别墅。
露香园天誉售楼处电话:400-8123-664
▲ D1 地块整体效果图

▲ D1 地块户型分布图
商代理单位租赁给相应品牌商户,确保露香园社区品质。D1 地块商业主要为高端零售、轻餐饮等业态,将根据业态布局要求委托招。
D2地块
露香园天誉售楼处电话:400-8123-664露香园二期【露香园·云宸】
D2 (211K-04 地块、 211K-05 地块、 211K-06 地块、211L-01 地块、 211L-02 地块、 211L-03 地块)
D2 地块目前为方案设计初期阶段。其中 211L-02 地块上现有原南市区图书馆(保留历史建筑) ,2021 年 8 月 10 日已通过《黄浦区露香园二期历史建筑细 化甄别成果专家评审会》,专家意见为:增加方浜路图书馆的分析,其中木梁架、 轩廊应仔细测绘记录位置,并做好落架修缮的准备工作。
D2 地块内、位于方浜路以南的保留历史建筑,原为华强纸栈、南市区图书 馆,现存院落格局完整,局部保存有精美的门头、墙面装饰,是 1920 年老城厢 内中西结合式住宅的典型代表,但后期改建较多,房屋结构破损严重。拟对有特色的装饰构件进行保留,其余外立面采用整体原貌复建的方式。
▲ 地块入口效果图
露香园天誉售楼处电话:400-8123-664
D2 地块从北向南,结合 D1 “露香池”统筹打造整体风貌片区,围绕慈修庵 设置 2~3 层的休闲开放商业街区, 在方浜中路中设置公共生活广场, 与方浜中路 600 号历史保留建筑共同塑造露香园地区的南门户。211L-01 地块靠近昼锦路设 置一栋 16 层高层塔楼,裙房设置 300㎡助餐服务点, 800㎡老年人日间服务中心, 1000㎡豫园街道社区服务中心,塔楼为公租房,共 86 户。总建筑面积为 41664.09㎡,其中地上建筑面积为19307.8 ㎡,地下建筑面积为 22356.29㎡。 公租房总面积 7078.81㎡,总户数约94 户。

露香园天誉售楼处电话:400-8123-664▲ D2 地块户型分布图
D2 地块商业主要为画廊/个人艺术展、创意餐饮和咖啡简餐、茶室/俱乐部、 新概念生活展示馆等,并将配置米其林餐厅/黑珍珠餐厅以提升餐饮品质,将根 据业态布局要求委托招商代理单位租赁给相应品牌商户, 确保露香园社区品质。
建筑配置标准参考
露香园二期【露香园·云宸】




室内配置标准及指标
(一)大区普通基础交付标准:2000 元/㎡
(二)大区精装交付标准:5000 元/㎡
(三)装修包展示样板房交付标准:8500 元/㎡
露香园天誉售楼处电话:400-8123-664
露香园天誉售楼处电话:400-8123-664
露香园二期目前正在建设中,预计有望于二季度入市:
露香园项目历史背景
露香园二期【露香园·云宸】
露香园天誉售楼处电话:400-8123-664露香园·缘起
露香园1559-2015。始建于明嘉靖,是“明代上海三大名园”之一,“顾振海墨”、“顾绣”等艺术佳品皆诞生于此,由此书写了一段有关名仕名园的精致生活。
明嘉靖年间卸任道州太守顾名儒,购得城北黑山桥地块,共计九亩,盖起了万竹山房,其弟顾名世在万竹山房东西开辟旷地,凿池得石,上有“露香池”三字,据说还是赵孟頫的手迹,便称此园“露香园”,这个地方也俗称“九亩地”。
露香园天誉售楼处电话:400-8123-664

露香园天誉售楼处电话:400-8123-664
鸦片战争期间,上海为加强海防设立火药局,火药仓库就建在露香园内,1842年4月18日,火药仓库突然爆炸,露香园被夷为平地,此园遂废。
露香园园林废弃后,此地陆续建起房屋,经过近代大量的营造,整个街区的马路、弄堂、街坊、石库门与宅院,是上海老城厢的一个缩影。
开发商对街区中有文化价值的建筑,采用保留的方式予以修复改造。
走在露香园与历史文化古迹不期而遇,心底总会涌起一份感动,这份感动,源于对这座城市的热爱,更源于对厚重历史的尊重。露香园的开发者、建设者,背负着这样一个使命——那就是尊重城市文化,善待城市历史,创新城市未来。
露香园今生
【露香园】位于黄浦区老城厢畔,东临外滩、西接新天地、南傍豫园、北衔人民广场。
现在的露香园住宅是在闻名遐迩的露香园园林原址上建起来的。此外,还将会对原有的六幢老式建筑进行修缮保留,如沈醉旧居、严氏旧居及民国时期颜料大王赵竹林所居的赵公馆等。
露香园天誉售楼处电话:400-8123-664
露香园天誉售楼处电话:400-8123-664
【露香园】北向西沿人民路、南到方浜中路,东至河南路;距离8号线大世界站直线距离约550米,离10号线豫园路站直线距离约450米。
魔都顶级繁华环绕其中,如同“恍若隔世”般的存在,几百米外车水马龙人声鼎沸、现代化高楼大厦林立周围,转眼就是沧桑历尽的古城墙,喧嚣的灵魂仿佛在这里都得到了完美的休憩。
露香园-豫园板块的绝对标杆
露香园二期【露香园·云宸】
露香园AROMA就是豫园板块的绝对标杆,命名来源于明代上海三大名园之一的露香园,坐落在露香园路,原汁原味,静谧奢华。
露香园天誉售楼处电话:400-8123-664露香园一期开盘售价:
平层14.5万/㎡,建面约160-180㎡;
叠墅16万/㎡ ,建面约103-282㎡;
联排别墅21万/㎡建面约172-688㎡。

露香园天誉售楼处电话:400-8123-664
露香园1-2期都由本地国企的上海城投开发,1期为干挂石材外立面的小高层和高层,2期为石库门风格的别墅。前低后高依次排布,最南边是别墅地块,1期前排是15-18层的小高层,后排25、35层高层两栋。


露香园配套:双会所尊崇礼遇
露香园二期【露香园·云宸】
从室内泳池到健身俱乐部,从红酒雪茄房到VIP宴客区,露香园在上海首次引入了“专业健身房+上层社交场”的双会所服务理念,业主不仅可近享“品牌健身会所”内的全套专业设备,还能在仅对业主开放的“泛会所”内款待亲朋。

露香园天誉售楼处电话:400-8123-664
所谓“泛会所”,即每四幢楼的二层室外部分以廊相通,形成围合式的花园平台,地面采用石材铺装,除精致的绿化小品外,增设多种户外活动设施,如儿童游乐区、高尔夫推杆区、BBQ烧烤区等;
本次二期产品大概率还是延续老上海格调的石库门+现代代摩登风格,格调依旧非常高,相信价格也将会超越一期21万元/㎡的均价(大概率是要涨的),预计套均总价接近亿元!
▲ 万竹街41号

▲ 露香园一期

▲ 露香园一期低区
▲ 露香园一期低区夜景
本次二期产品风格预计还是延续老上海格调的石库门+现代代摩登风格,格调依旧非常高,预计套均总价接近亿元,感兴趣的朋友们可以提前了解~
▲ 露香园一期实景图
露香园天誉售楼处电话:400-8123-664
二期认购细则及要求
LUXURY HUSE
在售详情
黄浦豫园钻石级地块
香园二【露香园·云宸】
首推高层262套房源均价1.3万/㎡
开盘选房已结束,去化约80
加推2套风貌别墅
仅剩3席
建面约410m联排别共5套
建面约430- 450m²双拼黄浦墅共4套
建面约510-540m²类独栋别墅共3套
单价24~32万元/m²
总价约1.08亿元起
上海黄浦【露香园天誉】
售楼处电话☎:400-8123-664【售楼处预约热线】(一对一热情服务)
如有问题欢迎来电咨询,专业一对一热情服务,让您用专业眼光去买房。
露香园天誉售楼处电话:4008123664【开发商售楼中心热线】露香园天誉营销中心热线400-812-3664露香园天誉售楼处地址400-8123-664,楼盘项目全面介绍,本电话为开发商提供线上预约售楼电话,楼盘项目全面介绍(包含楼盘简介,均价,房价,现房,期房,别墅,叠墅,大平层,价格,楼盘地址,户型图,交通规划,备案价,备案名,项目配套,样板间,开盘时间,认筹时间,楼盘详情,售楼处电话,最新消息,最新详情,周边配套,一房一价,最新进展等详情咨询)楼盘详情丨价格丨更多优惠丨机不可失丨欢迎致电丨诚邀品鉴!售楼处位置丨特价房丨工抵房丨剩余房源丨户型图丨最新消息丨免责声明:将文章内容综合来源于网络、只作分享,版权归原作者所有!!如有侵权,请联系我们,我们第一时间处理如有问题欢迎来电咨询,专业一对一热情服务,让您用专业眼光去买房。如果您想了解更多楼盘详情,欢迎提前预约拨打露香园天誉售楼处电话☎400_812_3664✔✔✔
房地产专业知识200问
100、阳台的分类有:封闭式阳台和半封闭式阳台。
101、封闭阳台是指:在围护栏、墙上部用铝合金玻璃窗等围闭的阳台。
102、封闭阳台面积如何计算:全部计算建筑面积。
103、半封闭阳台是指:除围护栏、墙以外没有进行围闭的阳台。
104、半封闭阳台面积如何计算:计算一半建筑面积。
105、楼梯是指:是指房屋层之间供垂直交通用的通道,
106、室外楼梯是指:依靠房屋外墙体搭建的永久性楼梯。
107、屋顶楼梯间是指:突出房屋屋面有顶盖,四周有围护结构,层高在2.20米以上供上屋顶维修或安全出口用的用房。
108、屋顶楼梯间算不算总层高:不算。
109、屋顶电梯间:指突出房屋屋面,层高在2.20米以上,供停放、检修、升降电梯的用房。
110、屋顶电梯间算不算总层高:不算。
111、设备间是指:一幢大楼内放置各种应用设备以及进行综合布线交接的房屋。
112、功能区的意思是:根据各共有建筑部位的用途而划分的服务范围称为功能区。
113、连廊是指:连接两幢房屋的走廊。
114、连楼是指:连接两幢房屋的楼房。
115、过街楼是指:底层局部为通道的楼房。
116、架空通廊是指:指以两端房屋为支撑,有围护结构,有顶盖无支柱的架空通道。
117、围护结构是指:将空间竖向分割成相对独立,不易通行的两个或多个部分的实体,起隔离作用。
118、墙和栏杆算不算围护结构:算。
119、基地面积是指:一个小区总的占地面积。
120、间距是指:建筑平面外轮廓线之间的距离。
121、国家间距标准的比例是:楼高:间距=1:1.2。
122、国家日照标准是:2个以上居住空间大寒日底层满窗连续日照不低于1小时,全天满足2小时。
123、结构面积是指:房屋建筑中外墙、内墙、柱等结构构件所占面积的总和。
124、公用面积是指:住宅楼内为住户方便出入,正常交往而设置的公共走廊、楼梯、电梯间等所占面积总和。
125、公用面积是如何分摊的:按栋或单元户数面积按比率分摊。
126、套内建筑面积是指:套门内范围的建筑面积。
127、套内建筑面积包括:套内使用面积、套内墙体面积和阳台建筑面积。
128、套内使用面积是指:指套内住户独自使用的面积。
129、套内使用面积的计算包括:卧室、厨房、卫生间、过厅、起居室、内走道、阳台、壁柜等净面积的总和。
130、套内墙体面积是指:套内使用空间周围的维护或承重墙体或其它承重支撑体所占的面积。
131、套内墙体面积的计算:全部。
132、各套之间的分隔墙按多少计入套内墙体面积:一半。
133、套与公共建筑空间的分割墙以多少计入套内墙体面积:一半。
134、外墙以多少计入套内墙体面积:一半。
135、套内自由墙体以多少计入套内墙体面积:全部。
136、套内阳台建筑面积是指:阳台外围与房屋外墙之间的水平投影面积。
137、公用建筑面积是指:各产权主体共同占有或共同使用权的建筑面积,指各套(单元)以外为各户共同使用,不可分割的建筑面积。
138、容积率是指:项目规划建设用地范围内全部建筑面积与规划建设用地面积之比。
139、一个项目总建筑面积为64000㎡,占地面积为40亩,容积率是多少:2.4
140、建筑密度又称:建筑覆盖率。
141、建筑密度是指:项目用地范围内所有基底面积之和与规划建设用地之比。
142、人口毛密度的计算公式:人口毛密度=小区内总居住人数÷小区内占地面积。
143、平均每平方米造价(元):平均每平方米造价=建筑物总造价÷建筑面积。
144、使用面积系数K1(%):使用面积系数=总使用面积(平方米)÷总建筑面积(平方米)×100%。
145、居住面积系数K2(%):居住面积系数=总居住面积(平方米)÷总建筑面积(平方米)×100%。
146、绿地率:指公共绿地、宅旁(宅间)绿地、公共服务设施所属绿地和道路绿地等四类绿地面积的总和占居住区用地总面积的比率。
147、公共绿地的介定:最小的要求是宽度不小于8米,面积不小于400平方米,
148、哪些绿化不能算入绿地面积:距建筑外墙1.5米和道路边线1米以内的用地,地下车库、化粪池等地表覆土达不到3米深度的设施不能计入。
149、绿化覆盖率:所有绿化面积与建设用地面积之比。即绿化面积÷基地面积×100%
150、绿化覆盖面积:所有植被垂直投影面积的总和。
151、得房率:指套(单元)内建筑面积与套建筑面积的比率。
152、公共能耗:是小区共用部位、共用设备和公共设施及在公共性服务中所发生的水、电、煤等能源消耗。
153、公共能耗费:因公共能耗而产生的费用
154、公共能耗费由谁承担:由全体业主承担。
155、规划形态是指:项目的具体建筑构成。
156、单元式住宅:是指在多层、高层楼房中的一种住宅建筑形式
157、居住单元:每个楼梯的控制面积称为一个居住单元。
158、一梯几户是指:一个单元里平层有几户的俗称。
159、房型(户型):是指一套住宅由多少卧厅、厨、卫等组成的总称。
160、面积配比:指的是各种房型面积在项目或单元中所占比例的多少。
161、房型配比:指的是各种房型在项目或单元中所占的比例的多少。
162、阁楼:是指位于房屋坡屋顶下部的房间。
163、普通住宅:是指按一般民用住宅标准造的居住用住宅。
164、准现房:准现房是指房屋主体已基本封顶完工,工程正处在内外墙装修和进行配套施工阶段的房屋。
165、居住组团:指一般被小区道路分隔,配建有居民所需的基层公共服务设施的居住生活聚居地。
166、公寓:是指二层以上供多户人家居住的楼房建筑。
167、纯办公楼:是指专为各类公司的日常营运提供办公活动空间的大楼。
168、商场:是指规划为对外公开进行经营的建筑物。
169、综合楼:是指兼有住家、办公甚至商场的大楼。
170、商住住宅:是住宅观念的一种延伸,它属于住宅,但同时又融入写字楼的诸多硬件设施,使居住者在居住同时又能从事商业活动的住宅形式。
171、别墅:是指在郊区或风景区建造的供住宿休养用的花园住宅。
172、联排别墅:三户或三户以上连体的别墅。
173、双拼别墅:二户连体的别墅。
174、独栋别墅:单楼独栋的别墅。
175、跃层式产品:住宅占有上下两层楼南,卧室、起居室、客厅、卫生间、厨房、及其它辅助用房可以分层布置,上下层之间的交通采用户内独用小楼梯联接。
176、跃层式产品的优点:跃层式住宅的优点是每户都有较大的采光面,通风较好,户内居住面积和辅助面积较大,布局紧凑,功能明确,相互干扰较小。
177、复式产品(LOFT):在建造上仍每户占有上下两层,实际是在层高较高的一层楼中增建一个夹层,两层合计的层高要大大低于跃层式住宅。
178、错层式住宅:是指楼面高度不一致错开之处有楼梯联系的住宅。
179、SHOPPING MALL:大型购物广场的英文名称。
180、共有房产:共有房产是指某一房产属于两个或两个以上的所有人共同所有。
181、半地下室:是指房间地面低于室外地平面的高度超过该房间净高的1/3,且不超过1/2者。
182、地下室:地下室是指房间地面低于室外地平面的高度超过该房间净高的1/2者。
183、一地下室室内净高2.6米,2米低于室外地平面,属于半地下室还是地下室:属于地下室。
184、商品房验收合格指的是:单体(即单幢楼盘)验收合格。
185、商品房综合验收合格指的是:包含所有配套设施在内的全部建筑物的验收合格。
186、空鼓:局部面与基层没有胶合剂或胶合剂没有起作用。
187、地基:建筑物下面直接承受建筑物重量的土层称为地基。
188、基础:建筑物的最下端与土壤直接接触的部分称为基础。
189、基础的作用:基础的作用是承受建筑物全部重量并将之分散传递给地基。
190、墙体是构件,也可以是构件:是维护分割构件,同时也可以是承重构件。
191、在一般砖混结构房屋中,墙体也是主要的:承重构件。
192、停车场:指在建设用地内为停放机动车和非机动车须配置的场地。
193、停车场小型机动车位面积计算:按每车位25平方米计算。
194、自行车位按每车位多少平方计算:1.2平方米计算。
195、商品房销售面积又称之为:套建筑面积
196、套建筑面积包括哪两部份:套内建筑面积和分摊的公用建筑面积。
197、商品房预售许可证是由什么单位向什么单位发放的一项证书:是房地产管理部门向房地产开发公司颁发的一项证书。
198、商品房预售许可证的作用是:用以证明列入证书范围内的正在建设中的房屋已经可以预先出售给承购人。
199、契税是指:房屋所有权发生变更时,就当事人所订契约按房价的一定比例向产权承受人征收的一次性税收。
声明:本文由入驻焦点开放平台的作者撰写,除焦点官方账号外,观点仅代表作者本人,不代表焦点立场。


