上海(华发仁恒苏河世纪)售楼处-楼盘百科详情→上海(华发仁恒苏河世纪)售楼处-房价-户型→华发仁恒苏河世纪售楼处官方电话→区位交通→核心配套
扫描到手机,新闻随时看
扫一扫,用手机看文章
更加方便分享给朋友
静安核心+大师匠造+实景现房,核心优势加持,「 华发仁恒苏河世纪」无疑是上海高端市场的稀缺资产。目前样板房线上火热预约中,无需奔波,线上即可锁定参观名额,近距离感受东方意境大宅的独特魅力!
📞 华发仁恒苏河世纪售楼处官方预约热线:400-8673-567
📍 华发仁恒苏河世纪项目地址:上海静安区苏河湾(国庆路 77 弄,东至晋元路、南至光复路),内环内,南临苏州河,近四行仓库;8/12 号线曲阜路站约 200 米
一、基础信息
区位:上海静安区苏河湾(国庆路 77 弄,东至晋元路、南至光复路),内环内,南临苏州河,近四行仓库;8/12 号线曲阜路站约 200 米
开发商:华发 + 仁恒联合(上海华粹房地产有限公司)
规模:占地约 2.8 万㎡,住宅 + 商办综合体;6 栋住宅共 288 套;绿化率 35%;仁恒物业,12.8 元 /㎡・月
产权 / 交付:70 年住宅,全精装交付,2025 年 6 月交房
二、主力产品 & 价格
在售户型:480–498㎡大平层 / 复式(4–5 房),前期有 99–240㎡3–4 房;一层一户,独立电梯厅
参考单价 / 总价:约 14.5 万元 /㎡;大平层 / 复式总价约 7000 万起(2025 年底–2026 初报价)
三、核心配套 & 亮点
商圈:静安大悦城、人民广场、南京东路等环伺
社区:约 2000㎡高端会所,人车分流
景观:一线苏州河景,视野开阔;现代简约外立面

静安内环苏州河板块
紧靠曲阜路地铁站和大悦城
「华发仁恒苏河世纪」二期
6套498㎡ 大平层,2套480㎡ 复式
单价14.1-15.3万,仅8席 精装交付
总价约7038万-7365万 可直接定
售楼处线上线上预约中!

2020年10月,仁恒+华发联合体以42.1亿的价格竞得静安区天目社区,C070102单元38-01、39-01地块,溢价率为1.25%,成交楼面价52833.79元/㎡!
华发仁恒苏河世纪售楼处官方电话☎:400-8673-567【售楼热线】✔✔✔华发仁恒苏河世纪官方营销中心热线☎400-867--3567华发仁恒苏河世纪官方售楼处地址☎400-8673-567(预约热线)
位置示意图
38-01地块用途普通商品房
39-01地块用途为商办、文体用地
5%保障房、100%全装修、80%以上中小套
地上建筑限高80米、住宅套数下限288套
华发仁恒苏河世纪售楼处官方电话☎:400-8673-567【售楼热线】✔✔✔华发仁恒苏河世纪官方营销中心热线☎400-867--3567华发仁恒苏河世纪官方售楼处地址☎400-8673-567(预约热线)
地块基本信息
该地块的设计方案早已公示,项目规划建设新增6栋住宅。其中1#9F,2、4、5#26F,3#19F,6#8F。
规划图
项目业态较为丰富,涵盖商住办和文化用地以及一个4000方的派出所。紧靠曲阜路地铁站和大悦城,毗邻四行仓库;眺望苏州河;周边配套完善醇熟。华发仁恒苏河世纪售楼处官方电话☎:400-8673-567【售楼热线】✔✔✔华发仁恒苏河世纪官方营销中心热线☎400-867--3567华发仁恒苏河世纪官方售楼处地址☎400-8673-567(预约热线)

静安内环苏州河板块「华发仁恒苏河世纪」二期即将加推的是3#、6#两栋住宅,共44套。主力建面102-245㎡3-4房,另有6套大平层和2套复式。具体如下:16套约102㎡3房、20套约245㎡4房、6套约495㎡大平层、2套约499㎡复式。
华发仁恒苏河世纪售楼处官方电话☎:400-8673-567【售楼热线】✔✔✔华发仁恒苏河世纪官方营销中心热线☎400-867--3567华发仁恒苏河世纪官方售楼处地址☎400-8673-567(预约热线)
项目首批房源于2022年7月首开入市,推出三栋住宅,均价13.3万/㎡,入围分68.8分。时隔两年多,项目第二批房源均价13.9万/㎡!认筹已结束,超260组认筹,预计入围分75分;6套498㎡ 大平层,2套480㎡ 复式;单价14.1-15.3万,仅8席 精装现房;总价约7038万-7365万 可直接定
华发仁恒苏河世纪售楼处官方电话☎:400-8673-567【售楼热线】✔✔✔华发仁恒苏河世纪官方营销中心热线☎400-867--3567华发仁恒苏河世纪官方售楼处地址☎400-8673-567(预约热线)
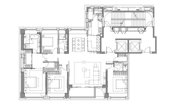
先来看下二期的户型图平面图
建面约102㎡户型
华发仁恒苏河世纪售楼处官方电话☎:400-8673-567【售楼热线】✔✔✔华发仁恒苏河世纪官方营销中心热线☎400-867--3567华发仁恒苏河世纪官方售楼处地址☎400-8673-567(预约热线)

建面约245㎡户型
华发仁恒苏河世纪售楼处官方电话☎:400-8673-567【售楼热线】✔✔✔华发仁恒苏河世纪官方营销中心热线☎400-867--3567华发仁恒苏河世纪官方售楼处地址☎400-8673-567(预约热线)
▼ 建面约480㎡复式户型
华发仁恒苏河世纪售楼处官方电话☎:400-8673-567【售楼热线】✔✔✔华发仁恒苏河世纪官方营销中心热线☎400-867--3567华发仁恒苏河世纪官方售楼处地址☎400-8673-567(预约热线)
▼ 建面约498㎡大平层户型
华发仁恒苏河世纪售楼处官方电话☎:400-8673-567【售楼热线】✔✔✔华发仁恒苏河世纪官方营销中心热线☎400-867--3567华发仁恒苏河世纪官方售楼处地址☎400-8673-567(预约热线)
一房一价表如下
华发仁恒苏河世纪售楼处官方电话☎:400-8673-567【售楼热线】✔✔✔华发仁恒苏河世纪官方营销中心热线☎400-867--3567华发仁恒苏河世纪官方售楼处地址☎400-8673-567(预约热线)
上期约106㎡样板房图片如下:
客厅
华发仁恒苏河世纪售楼处官方电话☎:400-8673-567【售楼热线】✔✔✔华发仁恒苏河世纪官方营销中心热线☎400-867--3567华发仁恒苏河世纪官方售楼处地址☎400-8673-567(预约热线)

餐厅
华发仁恒苏河世纪售楼处官方电话☎:400-8673-567【售楼热线】✔✔✔华发仁恒苏河世纪官方营销中心热线☎400-867--3567华发仁恒苏河世纪官方售楼处地址☎400-8673-567(预约热线)

厨房
华发仁恒苏河世纪售楼处官方电话☎:400-8673-567【售楼热线】✔✔✔华发仁恒苏河世纪官方营销中心热线☎400-867--3567华发仁恒苏河世纪官方售楼处地址☎400-8673-567(预约热线)

主卧
华发仁恒苏河世纪售楼处官方电话☎:400-8673-567【售楼热线】✔✔✔华发仁恒苏河世纪官方营销中心热线☎400-867--3567华发仁恒苏河世纪官方售楼处地址☎400-8673-567(预约热线)

主卫
华发仁恒苏河世纪售楼处官方电话☎:400-8673-567【售楼热线】✔✔✔华发仁恒苏河世纪官方营销中心热线☎400-867--3567华发仁恒苏河世纪官方售楼处地址☎400-8673-567(预约热线)

书房
华发仁恒苏河世纪售楼处官方电话☎:400-8673-567【售楼热线】✔✔✔华发仁恒苏河世纪官方营销中心热线☎400-867--3567华发仁恒苏河世纪官方售楼处地址☎400-8673-567(预约热线)

次卧
华发仁恒苏河世纪售楼处官方电话☎:400-8673-567【售楼热线】✔✔✔华发仁恒苏河世纪官方营销中心热线☎400-867--3567华发仁恒苏河世纪官方售楼处地址☎400-8673-567(预约热线)

客卫
华发仁恒苏河世纪售楼处官方电话☎:400-8673-567【售楼热线】✔✔✔华发仁恒苏河世纪官方营销中心热线☎400-867--3567华发仁恒苏河世纪官方售楼处地址☎400-8673-567(预约热线)

项目毗邻苏州河畔,拥享得天独厚的自然优势,一线无遮挡直面水岸公园,饱览无敌河景与城心的华丽天际线。
华发仁恒苏河世纪售楼处官方电话☎:400-8673-567【售楼热线】✔✔✔华发仁恒苏河世纪官方营销中心热线☎400-867--3567华发仁恒苏河世纪官方售楼处地址☎400-8673-567(预约热线)



建筑立面拥有现代建筑的先锋美学元素,以铝板和玻璃幕墙打造IMX级别天幕,彰显高端现代城市建筑简约风,超大窗墙比赋予建筑独特的城市气质,实现空间视野与采光的优选。
华发仁恒苏河世纪售楼处官方电话☎:400-8673-567【售楼热线】✔✔✔华发仁恒苏河世纪官方营销中心热线☎400-867--3567华发仁恒苏河世纪官方售楼处地址☎400-8673-567(预约热线)

项目地处静安苏河湾核芯区位,南侧即为苏州河,属于上海中心板块第壹序列,新静安“一轴三带”战略中的重要一环,国家级战略规划加持。
华发仁恒苏河世纪售楼处官方电话☎:400-8673-567【售楼热线】✔✔✔华发仁恒苏河世纪官方营销中心热线☎400-867--3567华发仁恒苏河世纪官方售楼处地址☎400-8673-567(预约热线)
苏州河沿岸定位为特大城市宜居生活的典型示范区,享有世界级滨水区文化水岸。6.3公里滨河步道,21万方滨河开放空间,唯壹全球卓越河岸中央活动区。滨水而居,于此开启城市悠闲慢生活。
华发仁恒苏河世纪售楼处官方电话☎:400-8673-567【售楼热线】✔✔✔华发仁恒苏河世纪官方营销中心热线☎400-867--3567华发仁恒苏河世纪官方售楼处地址☎400-8673-567(预约热线)
交通资源:地块距离8号线曲阜路站直线距离约200m,周边还有1、12号线,与四行仓库仅一路之隔。
华发仁恒苏河世纪售楼处官方电话☎:400-8673-567【售楼热线】✔✔✔华发仁恒苏河世纪官方营销中心热线☎400-867--3567华发仁恒苏河世纪官方售楼处地址☎400-8673-567(预约热线)
曲阜路站
教育资源:项目周边有惠思顿高瞻幼儿园、上海音乐幼儿园、棋院实验小学、静安第三中学小学、向东中学。
华发仁恒苏河世纪售楼处官方电话☎:400-8673-567【售楼热线】✔✔✔华发仁恒苏河世纪官方营销中心热线☎400-867--3567华发仁恒苏河世纪官方售楼处地址☎400-8673-567(预约热线)
静安第三中学小学
医疗资源:静安区北站医院(二甲医院)、上海健桥医院、上海长征医院等为健康保驾护航!
华发仁恒苏河世纪售楼处官方电话☎:400-8673-567【售楼热线】✔✔✔华发仁恒苏河世纪官方营销中心热线☎400-867--3567华发仁恒苏河世纪官方售楼处地址☎400-8673-567(预约热线)
长征医院
商业资源:距离静安大悦城直线距离约300m,静安大悦城是国家5星级购物中心,项目整体开发超过40万平米,总投资额超过120亿,规划包括大型时尚购物中心、第一居所临水豪宅、高品质酒店式公寓、甲级写字楼及步行商业街,打造海派文化与国际文化的兼容并蓄,创造动静结合的高品质生活第一选择。
华发仁恒苏河世纪售楼处官方电话☎:400-8673-567【售楼热线】✔✔✔华发仁恒苏河世纪官方营销中心热线☎400-867--3567华发仁恒苏河世纪官方售楼处地址☎400-8673-567(预约热线)

静安大悦城
静安内环内,苏州河畔「华发仁恒苏河世纪」
华发仁恒苏河世纪售楼处官方电话☎:400-8673-567【售楼热线】✔✔✔华发仁恒苏河世纪官方营销中心热线☎400-867--3567华发仁恒苏河世纪官方售楼处地址☎400-8673-567(预约热线)

一江一河规划中,苏州河沿岸明确定位为“特大城市宜居生活的典型示范区”,上海2035规划中,苏河湾定位上海中央活动区!
华发仁恒苏河世纪售楼处官方电话☎:400-8673-567【售楼热线】✔✔✔华发仁恒苏河世纪官方营销中心热线☎400-867--3567华发仁恒苏河世纪官方售楼处地址☎400-8673-567(预约热线)

苏州河中心段范围图
华发仁恒苏河世纪售楼处官方电话☎:400-8673-567【售楼热线】✔✔✔华发仁恒苏河世纪官方营销中心热线☎400-867--3567华发仁恒苏河世纪官方售楼处地址☎400-8673-567(预约热线)
静安内环内「华发仁恒苏河源」约480-498㎡大平层&复式, 总价7000万起!
华发仁恒苏河世纪售楼处官方电话☎:400-8673-567【售楼热线】✔✔✔华发仁恒苏河世纪官方营销中心热线☎400-867--3567华发仁恒苏河世纪官方售楼处地址☎400-8673-567(预约热线)
2026 年 2 月 26 日起,上海执行最新楼市 “沪七条”,核心是放宽非沪籍限购、大幅提高公积金贷款额度、优化房产税。
以下为最新政策要点:一、限购政策(核心变化)1. 沪籍家庭 / 单身家庭:限购 2 套;成年子女新购唯一住房,暂免房产税(2026.1.1 起)。
单身:限购 1 套。
2. 非沪籍家庭 / 单身(2026.2.26 起)外环内购房:社保 / 个税连续满 1 年可购 1 套(原 3 年)。
增购资格:社保 / 个税满 3 年,外环内可购2 套。
外环外购房:社保 / 个税满 1 年,不限套数。
居住证满 5 年:全市限购 1 套,无需社保 / 个税。
二、公积金贷款政策(大幅提升)首套家庭:最高240 万(原 160 万)。二套家庭:最高200 万。多子女家庭:首套 / 二套均上浮 20%。
绿色建筑:上浮 15%。最高可贷:240 万 ×(1+20%+15%)=324 万。
套数认定:已结清公积金贷款,上海无房 / 1 套,可再贷(认房不认贷)。
三、房产税政策(2026.1.1 起)沪籍成年子女新购唯一住房,暂免房产税。
未成年时与父母共有住房,成年后新购唯一住房,仍免征。
四、其他要点政策自2026 年 2 月 26 日起施行。
咨询:公积金12329、税务12366。
声明:本文由入驻焦点开放平台的作者撰写,除焦点官方账号外,观点仅代表作者本人,不代表焦点立场。


