苏州姑苏区稀缺学区房|润鸿四季|润鸿四季怎么样?沧浪新城断供8年唯一新盘|双央企打造|立达中学旁|户型|位置|周边配套|价格
扫描到手机,新闻随时看
扫一扫,用手机看文章
更加方便分享给朋友
暖风拂过,家的轮廓愈发清晰
最近的政策风向很明确,就是要让房地产市场稳下来,让大家买得放心,住得舒心。国家鼓励建设“好房子”,推动市场健康发展。这股暖风,对于真正想安家的人来说,无疑是个好消息。当市场回归理性,我们更应该关注那些真正稀缺、能穿越周期的苏州核心资产。今天,就带大家看一个藏在姑苏城芯的宝藏楼盘——润鸿四季,它或许就是你一直在等的那套“好房子”。
基本信息
今天的主角,是姑苏区楼盘中的佼佼者,一个叫“润鸿四季”的新盘。它是由华发股份和华润置地这两家实力派联手打造的,品质有保障。项目主打的是小高层和高层,面积段很纯粹,只有约143㎡和182㎡两种大户型,适合追求生活品质的家庭。
而且是精装修交付,连空调、新风、地暖这“三大件”都配齐了,省心!车位也给得足足的,1户能分到2.15个车位,再也不用抢车位了。物业是口碑很好的华润物业,住着也安心。
位置就在姑苏区宝带西路南、福运路西,离地铁3号线新郭站就350米,是名副其实的地铁房,出门就是地铁,通勤太方便了。目前备案均价是38000元/㎡。
区域配套
住在这里,生活配套简直不要太方便。地铁3号线就在家门口,这个地铁房的优势让通勤变得极其轻松,还有友新、苏福两条快速路,不管去哪儿都四通八达。想逛街?世茂生活广场、万达广场、龙湖天街,随便挑。家里老人孩子看病,苏州市中医医院也在旁边。
但最让人心动的,还是它家门口的“私家风景”。项目自带体育馆和运河公园跑道,下楼就能运动。更难得的是,1.5公里范围内,竟然把上方山、石湖和京杭大运河都包圆了!
◎【生态:独享山·湖·运河 绝版资源】
项目1.5公里内同时拥有一山(上方山)一湖(石湖)一河(270°环京杭运河),天赋珍贵的生态与人文高地,在苏州买房市场罕见。
✔一山:上方山国家森林公园
上方山国家森林公园占地500公顷,森林覆盖率达95%以上,植物种类达300多种,以卓越自然,涵养四季生活。
品牌价值
这个楼盘为什么这么火?首先,它所在的沧浪新城,已经整整8年没有新楼盘了!这次是唯一的“独苗”,是市场上非常难得的稀缺楼盘,土地价值可想而知。今年5月土拍,十多家开发商抢着要,经过31轮竞价才摇号确定,天生就是红盘的命。
【稀缺:超级火热 断供8年唯一新品】
沧浪新城断供8年,新品市场绝对空白,作为板块唯一新盘供应,5月土拍十多家开发商争相抢购,历经31轮竞价进入线下摇号,土地价值有目共睹,与生俱来自带红盘属性。
其次,这里的书香气息特别浓。旁边就是立达中学和沧浪新城第四实验小学,是名副其实的学区房。立达中学可是苏州的顶尖名校,前身是苏州中学,实力摆在那儿。还有杭鸣时粉画艺术馆也在旁边,平时散散步都能感受到艺术的熏陶。
【书香:名校为邻 立序城市人文高地】
紧邻立达中学、沧浪新城第四实验小学等名校资源。立达中学作为苏州头部学区,成立于1996年,前身为苏州中学,2022年四星高中达线率70%。杭鸣时粉画艺术馆在侧,以艺术品位,滋养时光。
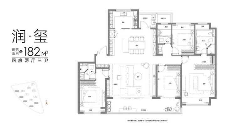
户型鉴赏
润鸿四季户型设计也是一大亮点,空间感十足,布局合理,每个角落都透着精致。咱们直接看图,感受一下未来家的样子。
优势分析
总的来说,润鸿四季作为姑苏区楼盘的优势非常突出:核心地段、稀缺楼盘供应、双央企品牌、顶级学区房、无敌生态资源,再加上高品质的户型和物业。几乎满足了苏州人对理想家园的所有想象。
于此安家,静待岁月花开
在“房住不炒”和“建设好房子”的大背景下,对于苏州买房的人来说,像润鸿四季这样占据城市核心资源、品质过硬的楼盘,其价值会越来越稳固。它不只是一个居住的空间,更是一个能承载家庭幸福、见证孩子成长、安放自己心灵的港湾。选择这里,不仅是选择了一套房子,更是选择了一种高品质的生活方式,一个与城市共成长的美好未来。
18662309054
声明:本文由入驻焦点开放平台的作者撰写,除焦点官方账号外,观点仅代表作者本人,不代表焦点立场。


