城投悦江湾-杨浦城投悦江湾楼盘详情-悦江湾小区环境-房价-地址-户型-容积率
扫描到手机,新闻随时看
扫一扫,用手机看文章
更加方便分享给朋友
杨浦城投悦江湾
售楼处电话:400-8787-554
案场限流 看房请务必提前来电预约登记
杨浦五角场城市副中心双轨交全新盘,城投长海项目——杨浦城投悦江湾,可售住宅290套!
建面约108m²3房洋房
建面约99-142m²3-4房(高层)
房地联动价9.9万/m²
预计四季度入市
项目效果图
项目销售团队已组建,有兴趣的伙伴们,文中扫码预约销售了解项目详情!
项目效果图
项目效果图
杨浦城投悦江湾
售楼处电话:400-8787-554
案场限流 看房请务必提前来电预约登记
目前仅接待预约客户
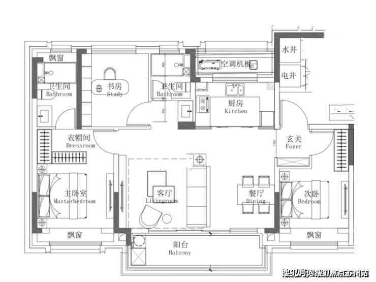
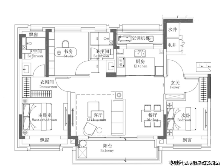
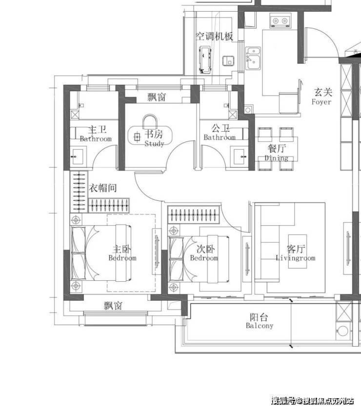
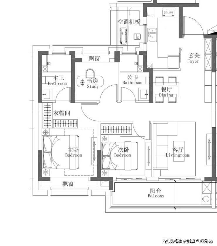
户型图赏鉴
约99m²3房2厅2卫(高层)

杨浦城投悦江湾
售楼处电话:400-8787-554
案场限流 看房请务必提前来电预约登记
土拍回顾及规划
2022年7月25日,杨浦城投以20.8816亿元竞得杨浦区长海社区025-07地块(长海路街道332街坊),溢价率0%,成交楼板价50200元/㎡,地块房地联动价99000元/㎡。
项目四至范围:东至国和路,南至三门路、西至025-01地块,北至025-08、025-09地块。
地块总用地面积约16638.7平方米,容积率2.5,计容面积约41596.75平方米,
根据土地转让合同要求显示:本地块内中小套型住宅建筑面积不得低于该地块住宅总建筑面积的70%,规划住宅套数下限400套。
根据设计方案显示,项目拟建三栋17层商品住宅 、一栋5层商品住宅、一栋18层公租房、自持租赁住宅及配套楼(其1-2层为菜场)和一栋1层的KT电站,并设置2层地下车库。在三门路设置机动车出入口、消防应急出入口及人行出入口。
杨浦城投悦江湾
售楼处电话:400-8787-554
案场限流 看房请务必提前来电预约登记
生活配套
交通方面:双轨环绕,项目距离到10号线三门路站直线约870米,8号线嫩江路站直线距离约1.4公里,
自驾,向南距离中环线国和路上匝道也只有1公里左右的距离,属于闹中取静,出行较为便捷的地段。
商业方面:直线距离地块约300米就是中原城市广场,国华国际广场距离项目的直线距离约800米。此外,太平洋森活天地、百联又一城购物中心、合生汇综合广场、五角场万达广场等都在项目约2公里范围内,吃喝玩乐购需求可以得到很好的满足。
教育方面:项目周边的教育资源十分丰富,上体附中附属小学直线距离地块约百米;此外,国和小学、六一小学、上海市第二师范学校附属小学(杨浦北校),兰生复旦中学、同济中学、上海市国和中学等学府都在地块约1.5公里范围内。
医疗方面:约2公里范围内有上海长海医院、杨浦区市东医院以及三级甲等的上海市肺科医院等医疗机构可满足周边居民的就医需求。

杨浦城投悦江湾
售楼处电话:400-8787-554
案场限流 看房请务必提前来电预约登记
声明:本文由入驻焦点开放平台的作者撰写,除焦点官方账号外,观点仅代表作者本人,不代表焦点立场。


