苏州高新区山岚璟庭楼盘-2025年山岚璟庭详情全解析:房价、户型、容积率及小区环境
扫描到手机,新闻随时看
扫一扫,用手机看文章
更加方便分享给朋友
最近苏州楼市又出好消息了!国家三部委联合发文,从明年开始,一直到2027年底,卖旧房买新房可以退个税了。这意味着,改善家庭换房的成本又降低了,正是入手高品质新房的好时机。而说到高品质改善之选,位于大狮山商务区的 山岚璟庭 ,无疑是一个值得你重点关注的东方美学洋房住区。

山岚璟庭售楼处电话:400-8800-736;置业顾问:18662309054(微信同号)
【项目速览】 项目名称:山岚璟庭 地块信息:苏地2022-WG-10号地块 项目地址:苏州高新区枫桥街道华山路北、朝红路西 开发品牌:苏高新地产 地块指标:占地4.4万方,容积率1.2,总建8.5万方 住宅规划:拟建11栋8-10F住宅,共计411户 户型配置:约105㎡3房2卫、建筑面积约148㎡4房2卫 交付标准:全屋精装,精装三大件 物业服务:新永物业,交房时间预计为2025年6月 车位配比:1:1.6 价格信息:成交楼面价13000元/平;备案均价29500元/平
占据城市发展核心,未来潜力看得见
苏州高新区正在重点打造“狮山商务创新区”,这里将是未来的城市中心和发展引擎,汇聚商务、创新、外贸和国际合作。大量世界500强和数字创新企业落户,带来的是高收入、高学历的人才聚集。山岚璟庭 就坐落在这个核心区域,一边享受大都会的繁华便利,一边坐拥群山森林的生态美景,堪称藏在城市里的“桃源秘境”。对于寻求苏州改善住宅的家庭而言,这里的地段价值不言而喻。
生活配套一应俱全,繁华与宁静兼得
住在这里,出行、购物、游玩、上学、看病都非常方便。山岚璟庭的生活配套堪称全能。
出行便捷:门口有有轨电车1号线,规划中的地铁9号线也在附近,何山路隧道、北环、中环西线让开车通勤四通八达。
商圈环绕:绿宝广场、龙湖天街、金鹰、美罗等大商场都在生活圈内,逛街购物选择多多。
生态优越:背靠高景山、大阳山国家森林公园,旁边就是白马涧、苏州乐园等4A级景区,周末休闲去处丰富,完美契合山居诗意的生活向往。
教育医疗:周边从幼儿园到中学都有配套,还有高新区人民医院、科技城医院等优质医疗资源保驾护航。
苏高新匠心打造,品质细节满满
山岚璟庭 由本土国企苏高新地产开发,品质有保障。小区是新中式风格,看起来大气又雅致。最大的亮点是超低密度,整个小区全是8-10层的纯洋房,容积率只有1.2,楼间距大,采光好,私密性更强,住起来非常舒服,是名副其实的低密住区。 社区里设计了“一轴八景”的园林,有三重归家礼仪,充满东方美学意境。还为全家人规划了活动空间,孩子有游乐场,年轻人有跑道和健身区,长辈有林下花园,真正照顾到每个年龄段的需求。
精装洋房户型,一步到位省心省力
项目主打两个经典户型,都是市面上很受欢迎的格局,充分考虑了不同改善家庭的需求。
约105㎡三房两卫:功能紧凑,总价相对可控,适合首改家庭或追求高品质的三口之家。
约148㎡四房两卫:空间阔绰,通常是套房式主卧,居住舒适度极高,能满足多代同堂或二胎家庭的改善需求。 更重要的是,房子是带精装修交付的,用的都是像东芝中央空调、威能地暖、汉斯格雅卫浴这样的一线大牌,省去了自己装修的麻烦,品质感十足。
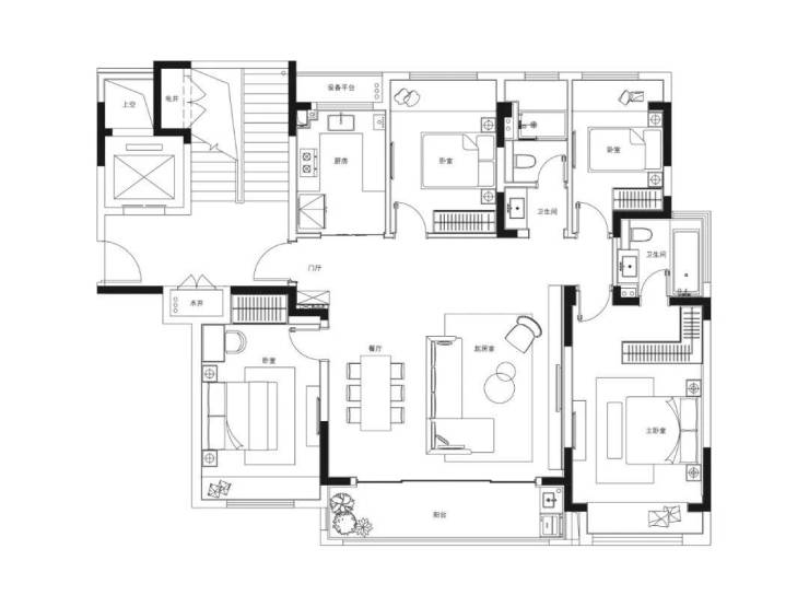
户型鉴赏
建筑面积约105㎡亲地纯洋房(3室2卫)
建筑面积约148㎡亲地纯洋房(4室2卫)
山岚璟庭售楼处电话:400-8800-736;置业顾问:18662309054(微信同号)
在山岚之间,预见未来的诗意栖居
当前“卖旧买新”的退税政策,为改善居住打开了窗口。选择 山岚璟庭,不仅仅是换一套更大的房子,更是选择了一种生活方式的升级。在苏州城市发展的核心板块,拥有一处低密、宁静、充满东方美学意境的洋房家园。这里既有眼前的繁华与便利,更有未来可期的资产价值和山居诗意。当政策东风遇上匠心之作,此刻的抉择,或许就是通往未来理想生活的最佳路径。
山岚璟庭售楼处电话:400-8800-736;置业顾问:18662309054(微信同号)
声明:本文由入驻焦点开放平台的作者撰写,除焦点官方账号外,观点仅代表作者本人,不代表焦点立场。


