中铁·咏月台售楼处电话400-8673-567是苏州首个421规划首层全架空项目,主打洋房与叠墅,定位高端,规划容积率1.5,总户数超210户,打造现代化高品质住宅社区。
【中铁·咏月台】
售楼处电话☎:400-8673-567
目最大的亮点在于,这 是421规划后,苏州首个首层全架空项目!社区整体抬高5米,将地下车库全部置于地面。从规划上来看,项目产品分为叠墅和洋房,其中叠墅也是以4F叠墅为主,洋房则有第四代住宅,这个项目能在城南杀出来吗?详细测评来了!

规划确定!洋房+叠墅
中铁·咏月台,即,苏地2024-WG-Z30号地块项目,位于吴中经开区城南街道枫津路东侧、天灵路南侧,是2024年11月28日,中铁&天鸿伟业以底价42638万元竞得,成交楼面价14500元/平。

项目的地块用途为城镇住宅用地,占地面积19603.7平。
根据公示,项目总建筑面积44926平,计容建筑面积29405.55平,容积率1.5.
根据规划,项目拟建 8栋4-11F住宅,其中,3栋4F叠墅、1栋10F洋房、4栋11F洋房。
中铁·咏月台售楼处电话☎:400-8673-567【售楼热线】中铁·咏月台营销中心热☎400-8673-567中铁·咏月台售楼处地址☎400-8673-567


1,项目的产品为洋房、叠墅,其中,以洋房产品为主;
2,项目2栋洋房产品为第四代住宅,另外3栋则不是;
3,项目的容积率为1.5;
4,根据要求,住宅建筑立面鼓励采用金属板材、石材、真石漆等中高端建材,这是一个高品质的住宅社区;其风格为现代化的风格;
5,根据要求,住宅建筑总层数6层以上的,须建设成品住宅,装修标准不低于2000元/平。所以项目洋房为装修交付!
住宅建筑总层数6层及6层以下的,鼓励建设成品住宅,装修标准不低于2000元/平。
6,根据要求,项目住宅单套户型面积不得低于120平;
7,总户数大于210户;
8,项目日照分析如下:
中铁·咏月台售楼处电话☎:400-8673-567【售楼热线】中铁·咏月台营销中心热☎400-8673-567中铁·咏月台售楼处地址☎400-8673-567

中铁·咏月台售楼处电话☎:400-8673-567【售楼热线】中铁·咏月台营销中心热☎400-8673-567中铁·咏月台售楼处地址☎400-8673-567

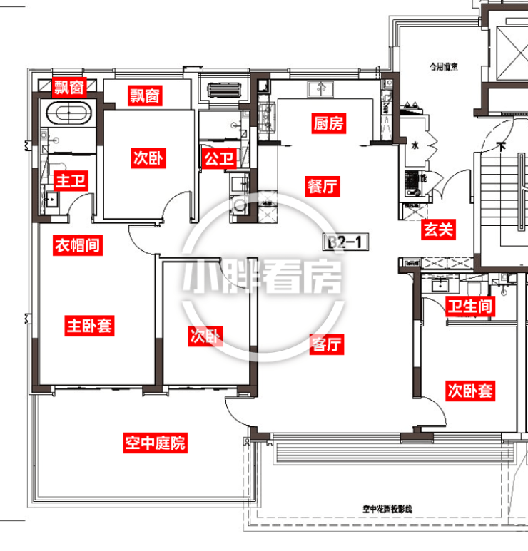
四代洋房+叠墅
中铁·咏月台项目主推约162/164平四代洋房及约176-192平叠墅产品。
项目规划3种户型:
四代洋房:约162/164平;
四层叠墅:约176-192平;
基础改善洋房:约132平;

4#,4F叠墅
3梯6户 层高3.2米
建面约176-192平

纯4层真叠墅设计,分上下两叠,均有超高赠送空间
中铁·咏月台售楼处电话☎:400-8673-567【售楼热线】中铁·咏月台营销中心热☎400-8673-567中铁·咏月台售楼处地址☎400-8673-567

下叠(建面约187/192平):
1楼带私家庭院,因首层为车库,下叠赠送的“地下室”实则为地上一层,告别传统地下室潮湿压抑,可做多元功能空间;
中铁·咏月台售楼处电话☎:400-8673-567【售楼热线】中铁·咏月台营销中心热☎400-8673-567中铁·咏月台售楼处地址☎400-8673-567


上叠(建面约176平):
客厅挑高,南北双露台+星空屋顶露台,解锁空中花园、星空派对等多元生活场景。
中铁·咏月台售楼处电话☎:400-8673-567【售楼热线】中铁·咏月台营销中心热☎400-8673-567中铁·咏月台售楼处地址☎400-8673-567



5#,10F洋房
2梯4户 层高3.05米
约162/164平
中铁·咏月台售楼处电话☎:400-8673-567【售楼热线】中铁·咏月台营销中心热☎400-8673-567中铁·咏月台售楼处地址☎400-8673-567

偶数层户型

奇数层户型

项目洋房户型做的是四代宅设计,都是带空中花园的!一梯两户的设计,带独立电梯前室,可以用作外玄关或者北花园!
南向四开间,三卧室朝南,采光条件不错。主卧设计了独立内卫和衣帽间, 270度采光设计(仅东西边户,中间两户为墙壁)。次卧也设计为套房,不过为 暗卫。
中铁·咏月台售楼处电话☎:400-8673-567【售楼热线】中铁·咏月台营销中心热☎400-8673-567中铁·咏月台售楼处地址☎400-8673-567

6#,11F洋房
1梯2户
建面约132平


南向四开间,约13.4⽶⾯宽;赠送近24平南北双阳台;约9.9⽶贯通式三开间阳台;LDKB一体化布局,演绎家庭社交中心。
中铁·咏月台售楼处电话☎:400-8673-567【售楼热线】中铁·咏月台营销中心热☎400-8673-567中铁·咏月台售楼处地址☎400-8673-567

4房2厅2卫
这一户型是比较方正的四房两卫设计,比较大的亮点是南向设计了三阳台,北向还多了一个服务阳台,赠送空间是比较多的!
中铁·咏月台售楼处电话☎:400-8673-567【售楼热线】中铁·咏月台营销中心热☎400-8673-567中铁·咏月台售楼处地址☎400-8673-567

周边界面成熟
中铁·咏月台,即,苏地2024-WG-Z30号地块项目,位于吴中经开区城南街道枫津路东侧、天灵路南侧,属于吴中城南板块!
周边界面来看,也是比较成熟了。北面是天灵路,东面是河流,南面是7号线,西面是枫津路。
中铁·咏月台售楼处电话☎:400-8673-567【售楼热线】中铁·咏月台营销中心热☎400-8673-567中铁·咏月台售楼处地址☎400-8673-567

周边配套来说,也是比较齐全的的。
交通上面,小区南面靠近地铁7号线枫津路站,往南1站是红庄,可以换乘4号线,往东3站可以换乘2号线!整体来看,轨道交通出行是比较便利的!
自驾上面,小区附近有石湖东路、吴东快速路和东吴南路等主干道,日常出行也是比较便利的!
中铁·咏月台售楼处电话☎:400-8673-567【售楼热线】中铁·咏月台营销中心热☎400-8673-567中铁·咏月台售楼处地址☎400-8673-567

商业上面,小区周边也是板块top级别!
南面就有吴风生活广场,北面靠近龙湖东吴天街和海星生活广场,吃喝玩乐一站式补齐!西面还有万达广场,北面有丽丰购物中心!此外,北面还有吴中区公共文化中心和现代文体中心。
教育资源上,周边有枫津实验小学、碧波实验小学(澄湖路校区)、碧波中学(澄湖路校区)、苏州外国语学校(吴中校区)和苏苑中学新校区等。
整体来看,中铁·咏月台要面临的竞争压力还是比较大的,板块内已经有四个项目了,速度上来说,这个项目是最慢的。
板块几个项目产品重叠度比较高,项目的叠墅和洋房,另外三个项目基本都有,而从区位上来看,项目也相对比较一般。目前来看,就看项目的价格会不会与其他项目拉开差距了!3W+稳稳地?
中铁·咏月台售楼处电话☎:400-8673-567【售楼热线】中铁·咏月台营销中心热☎400-8673-567中铁·咏月台售楼处地址☎400-8673-567
楼盘项目全面介绍 ,本电话为开发商提供线上预约售楼电话,楼盘项目全面介绍(包含楼盘简介,均价,房价,现房,期房,别墅,叠墅,大平层,价格,楼盘地址,户型图,交通规划,备案价,备案名,项目配套,样板间,开盘时间,认筹时间,楼盘详情,售楼处电话,最新消息,最新详情,周边配套,一房一价,最新进展等详情咨询)楼盘详情丨价格丨更多优惠丨机不可失丨欢迎致电丨诚邀品鉴!售楼处位置丨特价房丨工抵房丨剩余房源丨户型图丨最新消息丨免责声明:将文章内容综合来源于网络、只作分享,版权归原作者所有!!如有侵权,请联系我们,我们第一时间处理如有问题欢迎来电咨询,专业一对一热情服务,让您用专业眼光去买房.如果您想了解更多楼盘详情,欢迎提前预约拨打售楼处电话400-8673-567