重磅推荐|太湖朗郡(售楼处)首页网站-太湖朗郡|图文详解-楼盘信息-户型图-周边配套-销售中心-恭迎品鉴
扫描到手机,新闻随时看
扫一扫,用手机看文章
更加方便分享给朋友
最近公积金政策迎来重大利好,个人最高可贷120万,家庭最高150万,高学历人才还能再提升额度!更重要的是,现在办理“商转公”手续更简便了,甚至可以实现“以贷冲贷”,无需提前结清,大大减轻了购房者的资金压力。政策东风已至,正是安家好时机。而位于太湖度假区核芯的太湖朗郡,凭借其卓越的科技住宅品质,无疑是承接这波红利的理想之选。
太湖朗郡官方售楼处电话:400-8800-736;置业顾问:18662309054(微信同号)
家在太湖畔,生活更舒坦 项目坐落于孙武路与后塘桥路交汇处,是一个总建面约22.4万方的大社区。小区规划了17层的小高层和10层的洋房,容积率仅2.0,绿化率高达37%,住起来非常宽敞舒适。车位配比达到1:1.43,完全不用担心停车问题。这里交付的是朗诗精装科技住宅,户型面积从95平到148平都有得选,能满足不同家庭的改善需求。
周边要啥有啥,一站配齐 孩子上学不用愁,家门口一河之隔就是度假区第三小学和实验中学,全龄段教育一步到位。逛街购物也方便,板块内最大的商业综合体——太湖中心Mall已经开业,12万方的体量,吃喝玩乐购全能满足。有个头疼脑热,1公里左右的度假区人民医院就能解决,每周还有苏州大医院的专家坐诊,医疗有保障。对于在苏州买房的购房者来说,这里的配套非常成熟。
出行四通八达,畅联全城 开车出门,5分钟就能上子胥快速路,4公里直达绕城高速,去哪都快捷。地铁也已经通到了家门口,苏州轨道交通5号线就在板块内,公共交通同样便利。太湖朗郡地处狮山南,与木渎板块紧密相连,可以轻松共享两大成熟区域的繁华配套,像木渎的山姆、大运城等大型商圈,都能快速抵达。便捷的交通网络让这里成为理想的安家之选。
朗诗科技系统,重新定义舒适 这才是太湖朗郡的核心魅力。它全系搭载了朗诗知名的“三恒系统”,打造出恒温、恒氧、恒湿、低噪、适光的健康居住环境。不同于普通空调,它采用地源热泵和顶棚辐射技术,没有吹风感和噪音,室内温度常年保持在体感最舒适的18-26℃。新风系统更是采用下送上排的循环模式,24小时不间断置换新鲜空气,还能自动调节湿度,让家永远像春天一样清新宜人。这正是朗诗科技住宅带来的恒舒适体验。
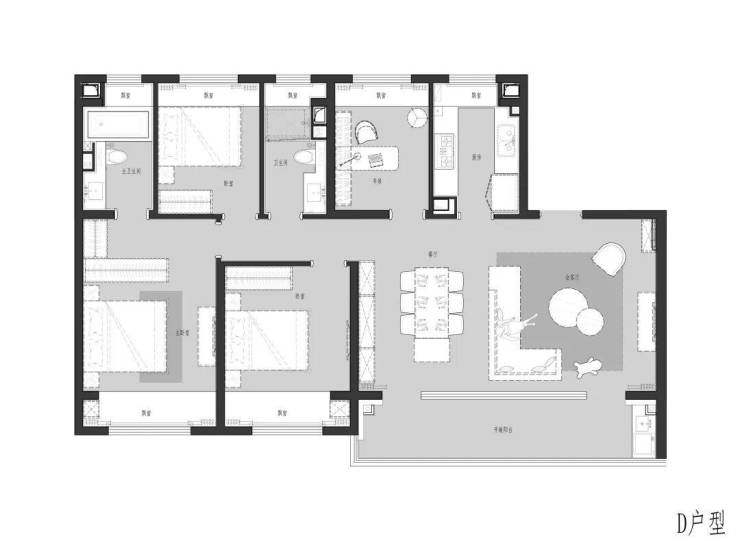
多种户型,满足不同家的想象 项目提供了丰富的户型选择,无论是温馨三口之家,还是二胎改善家庭,都能找到心仪的那一款。从紧凑实用的95平三房到宽敞舒适的148平洋房,太湖朗郡的户型面积覆盖广泛。 95平A1户型(3房2厅1卫)👇👇 95平A2户型(3房2厅1卫)👇👇 95平A3户型(3房2厅1卫)👇👇 117平B1户型(3+1房2厅2卫)👇👇 117平B2户型(3+1房2厅2卫)👇👇 洋房117平C户型(4房2厅2卫)👇👇 139平D户型(4房2厅2卫)👇👇 洋房148平E户型(4房2厅3卫)👇👇
置业顾问:18662309054(微信同号)
与未来舒适生活,在此相遇 当友好的购房政策,遇上不可复制的太湖度假区生态资源与朗诗顶尖的科技住宅系统,选择太湖朗郡,不仅仅是买下一处房子,更是为全家预定了一份持续增值的健康资产与未来数十年的恒舒适生活。这里既有眼前的繁华便捷,更有长久的静谧与安康,是您在苏州买房、实现改善居住梦想的优质选择。
太湖朗郡官方售楼处电话:400-8800-736;置业顾问:18662309054(微信同号)
声明:本文由入驻焦点开放平台的作者撰写,除焦点官方账号外,观点仅代表作者本人,不代表焦点立场。


