天潼198售楼处电话☎:400-812-3664✔✔位于上海一江一河黄金交汇处,拥有风貌高层住宅、风貌多层住宅、风貌里弄住宅3种产品,是上海百年一遇,且今后不再有的绝版宝地。项目特邀世界鼎级酒店品牌首选设计公司PLA创始人gig亲自操刀,用现代简约的手法、中西合
上海虹口新湖·天潼198
售楼处电话☎:400-812-3664✔✔
如有问题欢迎来电咨询,来电即可享受买房优惠!
预约来电尊享购房优惠,可预约案场内部销售人员,专业一对一热情服务,让您用专业眼光去买房。

新湖·天潼198 售楼处电话☎:400-812-3664✔✔
距离外滩最近的一手风貌别墅
外滩百年万国建筑群旁
北外滩的起点!300米到外白渡桥
【新湖·天潼198 】 首推
洋房面积约:
209-250-320-450-550-641㎡
别墅面积约:
主力建面约:497~887㎡
使用面积段约:800~1200㎡
花园面积约;40—120㎡
展厅已开启线上预约参观
新湖·天潼198 售楼处电话☎:400-812-3664✔✔
【天潼里198】
位于上海一江一河黄金交汇处,
东面黄浦江,南面苏州河;
距离外白渡桥约300米,
与外滩的直线距离约600米,
紧邻外滩历史文化风貌区,陆家嘴的城市天际线近在咫尺,
是上海百年一遇,且今后不再有的绝版宝地!
新湖·天潼198 售楼处电话☎:400-812-3664✔✔
小区还可以步行至外滩,享受外滩的夜晚美景和顶级配套。
周边密布上海大厦、浦江饭店和俄罗斯领事馆等历史建筑,
对望“陆家嘴三件套”。



03
项目简介
新湖·天潼198 售楼处电话☎:400-812-3664✔✔
天潼198项目涵盖:
风貌高层住宅、风貌多层住宅、风貌里弄住宅3种产品;
规划有:
8幢4层里弄住宅,
1幢7层洋房,
1幢9层小高层,
还有底商和酒店。

59套小洋房,总价在3400万~1.3亿
15套风貌合院别墅,总价高达1.8~2.9亿
是一个非常非常纯粹的豪宅小区。
项目特邀世界鼎级酒店品牌首选设计公司PLA创始人gig亲自操刀,
用现代简约的手法、中西合璧的元素,
呼应石库门的空间特色,
重现里弄生活底色。
产品方面,
天潼198容积率2.98,
总建筑面积10.5万方,
外立面是经典的海派红砖,
特别的围合型社区设计,
让产品户型、朝向会很个性化。
风貌里弄浓缩了中西合璧的石库门文化,
采用原汁原味的红色陶砖镶嵌灰砖再现传统墙面。
巷道尺度关系亲密而不拥挤,承载着海派生活的高级烟火气。

新湖·天潼198 售楼处电话☎:400-812-3664✔✔
里弄建筑从地块的历史信息出发,
选择了三角形山花、弧形山花两款最为经典的石库门做法,
采用保加利亚进口沉香米黄石材干挂工艺,
整石荒料雕刻,线条流畅饱满,
奠定高雅大气的建筑底蕴。

项目的风貌高层保留了古典建筑的三段式立面,
基座的连续拱券以及头部的柱头,无疑是历史留下的印迹。
而当代材料工艺的引进,则让建筑的美有了更丰富的层次。

在高层的底层商业部分,项目选用了
来自巴西的奢石波多尔红,
搭配高难度的双曲面工艺,
呈现出独特的优雅与魅力。

新湖·天潼198 售楼处电话☎:400-812-3664✔✔
商业以上的建筑立面,
用巴西进口玫瑰金麻造型石材
搭配局部铝板及金属线条,
强化了现代感,
传递出新旧交融的气质。


02
样板间实拍
洋房户型 320平4房,大平层
天潼里户内装修
由大师季裕堂设计,
整体原木色调,当然墙面也确实是实木的,
整体设计兼具老钱风和现代风。

新湖·天潼198 售楼处电话☎:400-812-3664✔✔





新湖·天潼198 售楼处电话☎:400-812-3664✔✔




新湖·天潼198 售楼处电话☎:400-812-3664✔✔



新湖·天潼198 售楼处电话☎:400-812-3664✔✔


新湖·天潼198 售楼处电话☎:400-812-3664✔✔


新湖·天潼198 售楼处电话☎:400-812-3664✔✔
产品交付上,
项目装修标准2万/平
用的也都是嘉格纳400系列烤箱、
嘉格纳200系列油烟机与灶具组合、
卡莉斯塔龙头这些顶级品牌硬货,
得房率超过85%

新湖·天潼198 售楼处电话☎:400-812-3664✔✔


新湖·天潼198 售楼处电话☎:400-812-3664✔✔


新湖·天潼198 售楼处电话☎:400-812-3664✔✔


新湖·天潼198 售楼处电话☎:400-812-3664✔✔
03
户型介绍
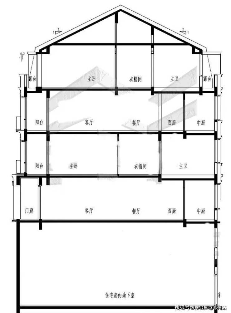
【天潼里198】 住宅产品户型图特别多,达到42种,共125套住宅单元。
产品供应量供应组成为:38套叠墅、27套里弄合院别墅、59套小高层。
高层住宅:110-433㎡
高层住宅:205-569㎡
多层住宅:231-400㎡
叠加别墅:110-433㎡(含平层)
合院别墅:497-887㎡
高层G-4户型:约297㎡ 4房2厅4卫
高层G-8户型:约544㎡ 4房3厅6卫
叠墅D-3户型:约297㎡(下叠)
叠墅D-4户型:约433㎡(2-3-4楼殊户型约)

新湖·天潼198 售楼处电话☎:400-812-3664✔✔


新湖·天潼198 售楼处电话☎:400-812-3664✔✔


新湖·天潼198 售楼处电话☎:400-812-3664✔✔


新湖·天潼198 售楼处电话☎:400-812-3664✔✔
新湖·天潼198 售楼处电话☎:400-812-3664✔✔


新湖·天潼198 售楼处电话☎:400-812-3664✔✔


新湖·天潼198 售楼处电话☎:400-812-3664✔✔


新湖·天潼198 售楼处电话☎:400-812-3664✔✔


新湖·天潼198 售楼处电话☎:400-812-3664✔✔新湖·天潼198 售楼处电话☎:400-812-3664✔✔



新湖·天潼198 售楼处电话☎:400-812-3664✔✔

新湖·天潼198 售楼处电话☎:400-812-3664✔✔

04
项目板块介绍
THE NORTH BUND

新湖·天潼198 售楼处电话☎:400-812-3664✔✔
作为虹口北外滩的上佳地段,「天潼198」坐享北外滩4平方公里的城市规划,更是成为了媲美陆家嘴的中央活动区,直面黄浦江+外滩,拥有特别的优势!
项目是内环内外滩旁历史文化保护区唯一在售的一手新房,隔江对望陆家嘴,占据外滩、北外滩黄金三角的核心位置,坐享上海三大核心CBD的同时步行200米到达苏州河,离黄浦江仅500米左右,大概3分钟步行到外白渡桥,步行5分钟到达外滩万国建筑群,陆家嘴地标三件套百年风貌尽收眼底。
1、交通配套
北外滩地区已建成以“二横三纵”主干路为骨架的路网系统及外滩隧道、新建路隧道、大连路隧道3条越江、越河隧道,实现“黄金三角”之间的交通联动。
按照顶级中央活动区需求,系统组织滨江两岸路网。以外滩隧道、在建东西向北横通道、延安高架路、延安东路隧道、浦东大道,以及规划的南北通道为“井”字形快速路网骨架,促进北外滩、陆家嘴、外滩地区交通一体化建设,形成均衡、高效的综合交通网络。
高架:大概三公里到达延安路高架(可到达虹桥国际枢纽)、约4公里到达内环高架
隧道:在我们项目周边三条隧道构建起黄金三角“8分钟通勤圈”外滩隧道(直达浦西市中心)、新建路隧道(直达浦东陆家嘴金融区)、延安东路隧道(直达世纪大道)
地铁:项目周边有三条轨道交通可以连接上海各大商务区,距离地铁天潼路站仅500米,10、12号线天潼路地铁站距离本项目步行500m,还有南京东路2号线。
2、商业配套
现有:商业配套:坐拥全上海市最优渥的滨水资源及最顶级商圈,步行5分钟可抵外滩万国建筑群、步行十分钟左右到达白玉兰广场、新世界大丸百货、恒基名人购物中心、南京东路商圈等,驾车1.5公里可到北外滩核心中央活动区、车行1.7公里可到达陆家嘴CBD国金中心、约4公里内可到达老码头BFC商圈、城隍庙、新天地商圈、淮海中路等商圈。
未来:投资近百亿的北京SKP华贸中心也坐落在项目旁,约20万方的商业集群,离项目大约不到2公里,在东长治路跟新建路上。
并且本项目本身也自带商业配套,在乍浦路,武昌路还有住宅底商,可以方便您日常的需求。
3、酒店
项目周边也是五星级奢华酒店云集,并且基本上都是江景酒店
离项目仅一条马路之隔就是Bellagio宝丽嘉酒店、步行5分钟左右即可到到外滩茂悦大酒店、上海半岛酒店、和平饭店、宝格丽酒店、上海外滩W酒店等等...可以满足业主不同的商务需求。
4、教育资源
教育方面,加快推进教育现代化,“十四五”期间虹口要增设10所幼儿园,7所中小学。包括同济大学附属澄衷中学、上海中学国际部等。
周边现有的教育资源也非常丰富
幼儿园:离我们项目大概三四百米就是虹口区西街幼儿园、虹口九龙路幼儿园。
小学:离我们项目最近的是丽英小学(二梯队)仅300米,还有虹口崇民路小学(二梯队)周边还有上外附属外国语小学(一梯队)、虹口三中心(一梯队)、虹口四中心(一梯队)
初中:新华初中(一梯队)、新复兴中学(一梯队)等。(车行约5-10分钟)
高中:华师大一附中(第三梯队)、北郊高级中学(第三梯队),上外附中(第一梯队)、上外附中东校(第一梯队)
优质的教育资源可以满足不同年龄孩子的教育需求。
5、医疗配套
项目坐拥北外滩最优质的医疗资源,周边的两公里以内的三甲医院有:上海第一人民医院(约600米)、仁济医院西院(约1.6km)、上海市第十人民医院分院(约1.6)长海医院虹口院区(2km)
外滩【天潼198】项目不仅是外滩的历史风貌保护区,更享有上海优质的配套资源。
新湖·天潼198 售楼处电话☎:400-812-3664✔✔
【天潼里】位于 虹口北外滩的上佳地段,坐享 北外滩4平方公里的城市规划,更是成为了媲美陆家嘴的CAZ,直面黄浦江+外滩,项目拥有特别的优势!
其实,说豪宅,我们经常提到陆家嘴,因为上海已经有一个成熟的可供模仿与超越的全球规划模板。但实际上,到目前为止,真正可以 称为世界级规划的在上海只有三个:苏河湾、外滩和北外滩!
新湖·天潼198 售楼处电话☎:400-812-3664✔✔
北外滩是继1990年陆家嘴开发建设之后,上海最大规模的城建规划,将对标纽约、伦敦、东京等国际大市, 建成为“世界级会客厅”、“顶级中央活动区”、具有全球影响力的世界级滨水区,与外滩、陆家嘴共同构筑上海“黄金三角!
1、与外滩和陆家嘴错位联动,居职相融、孵化创新思维的新时代顶级中央活动区;
2、汇聚现代化国际大都市核心发展要素的世界级会客厅闪亮的一幅画卷;
3、全球超大城市精细化管理的典型示范区!

新湖·天潼198 售楼处电话☎:400-812-3664✔✔
相比于其他版块, 北外滩发展后劲尤其强势,特别在2021年7月份上海市人民政府发布“北外滩4平方公里热土开发机制”后,规划从纸上走向落地, 未来的北外滩,更将成为规划承诺兑现的高地。
家门口就是外白渡桥,家门巷口的这道湾就是黄浦江精华之所在,从这里出家门就可以直接悠闲步行至外滩。这里是上海市中芯真正核芯的优质地段!
未来将超越新天地的上海时尚新打卡地——洛克外滩源就在项目门口!
新天地依托的是上海石库门老房子,虽然稀缺,但还是能在老城厢找到,而外滩源依托的是圆明园路,其上现存的14幢历史保护建筑,包括真光大楼、兰心大楼、青年协会大楼等是不可复制不可再生的。

新湖·天潼198 售楼处电话☎:400-812-3664✔✔
在保留原始风貌的前提下,外滩源将融入时尚现代元素,打造成多功能的高雅文化与时尚生活的聚集地。
而在它的周边,也是产业能级的至高点, 北外滩沿线的甲级写字楼现状大约是200万㎡;3年内再建成100万㎡,规划中预计增添200万㎡,总计相当于约500万㎡甲级写字楼,或将提供约50万个高收入岗位。


新湖·天潼198 售楼处电话☎:400-812-3664✔✔
再看项目的位置,选址于黄浦江与苏州河交汇处,距离上海著名的外白渡桥仅约260米,家门巷口的这道湾就是黄浦江精华之所在,从这里可以直接步行至外滩。这里是上海市中心真正核心的优质地段!

新湖·天潼198 售楼处电话☎:400-812-3664✔✔
项目在如火如荼的建设中:

新湖·天潼198 售楼处电话☎:400-812-3664✔✔
新湖·天潼198 售楼处电话☎:400-812-3664✔✔
新湖·天潼198 售楼处电话☎:400-812-3664✔✔
项目信息
项目名称:天潼里
行政区域:虹口区北外滩
物业类型:住宅
在售体量:洋房50套,合院15套
在售面积:洋房建面约233-641平,合院建面约500-800平
总价:洋房总价约3500万-1.3亿,合院总价约1.8亿-2.9亿
定金要求:洋房500万,合院1000万
梯户比:1梯1户/2梯2户/2梯 1户
付款要求:首套30%,二套50%, 洋房可以正常贷款;别墅接受全款,贷款最多贷5千万
竣工时间:2027年底
新湖·天潼198 售楼处电话☎:400-812-3664✔✔
得房率:86%
物业公司:新湖绿城物业
总层数:洋房 9层,别墅4层
层高:洋房层高3.15米,合院层高3.6米
物业费:洋房约20元,别墅约25元(暂定)
绿化率:30%
交房时间:2027年底

上海虹口新湖·天潼198
售楼处电话☎:400-812-3664✔✔
如有问题欢迎来电咨询,来电即可享受买房优惠!
预约来电尊享购房优惠,可预约案场内部销售人员,专业一对一热情服务,让您用专业眼光去买房。
天潼198 售楼处电话:4008123664【售楼中心热线】新湖·天潼198营销中心热线400-812-3664新湖·天潼198售楼处地址400-8123-664,楼盘项目全面介绍,本电话为开发商提供线上预约售楼电话,楼盘项目全面介绍(包含楼盘简介,均价,房价,现房,期房,别墅,叠墅,大平层,价格,楼盘地址,户型图,交通规划,备案价,备案名,项目配套,样板间,开盘时间,认筹时间,楼盘详情,售楼处电话,最新消息,最新详情,周边配套,一房一价,最新进展等详情咨询)楼盘详情丨价格丨更多优惠丨机不可失丨欢迎致电丨诚邀品鉴!售楼处位置丨特价房丨工抵房丨剩余房源丨户型图丨最新消息丨免责声明:将文章内容综合来源于网络、只作分享,版权归原作者所有!!如有侵权,请联系我们,我们第一时间处理如有问题欢迎来电咨询,专业一对一热情服务,让您用专业眼光去买房。如果您想了解更多楼盘详情,欢迎提前预约拨打新湖·天潼198售楼处电话☎400_812_3664✔✔✔
买房注意事项
1、买房子尽量买一期开发的,一般说来价格便宜而且质量好。
2、买房前试验隔音情况,否则会很痛苦。
3、不要买二层,一般厨房下水道是二层往上一条,一层独立一条。这样二层是最容易发生堵塞的,如发生堵塞倒灌,其状惨不忍睹。
4、买房子要注意不要买临街的,噪音太大,即使是一条小路,也有发展成菜市场的潜力。
5、窗子外侧一定要是往外倾斜,否则窗子上的密封胶老化了就会水淹七军。
6、窗户的纱窗一定要买内置的,否则掉在地上还好,掉在人上就难办了。
7、窗户应是推拉式,在中间关的,密封性好。
8、注意你所买的房子的位置,小心你的楼下空地成为停车场。
9、不要买顶层,顶层容易出现漏水现象,虽然能修理但耗时耗力,修理时间极可能被无限延长不要买带厨房下水道的地下室,否则崩溃是早晚的事情。
10、卫生间的防水很重要!!!一定要鼓动你的楼上和你一起在交房时做足48小时的闭水试验,确定其防水性能,否则一旦漏水后果会非常痛苦。
11、要注意小区里的车位数量,也许近期你不买车但不带表以后不会。
12、家里的水管,暖气管道都要打压试一下,尤其是暖气。个别暖气片,会直接影响室温,如果安反了,想要改过来极其困难,全安反了还可以在外面改,但如果安错了一两片,则要砸地面。
13、如果你的房子是带单元对讲的,那别买一层,关门声能让你疯掉,报警声威力更是惊人。
14、房子里的对讲系统一定要问明性能和使用方法,并且仔细试验,否则那些宣传中优越的性能可能只是宣传而已。
15、厨房一定要有地漏,这样有个万一水管爆裂,还有个地方漏水,不至于让家里成了太平洋。
16、千万不要相信那些售楼小姐说的什么外国进口门窗,越是如此,门窗配件越难买,后期物业根本弄不了。
17、家里的入户门带猫眼的是防盗门,不带猫眼的是防火门,如果发生火灾猫眼会爆炸,但如果有陌生人,猫眼看得见。看你需要。
18、装修时不要动卫生间的地砖,不要自己重新做防水—除非你有钱没地方花,要知道开发商并不是心甘情愿的为你保修防水的,他们正愁找不到理由呢。