润鸿四季(售楼处)官方网站-润鸿四季|苏州古城芯八年唯一新盘-生态人文高地-户型配套深度解析
扫描到手机,新闻随时看
扫一扫,用手机看文章
更加方便分享给朋友
换房的好时机,真的来了!国家刚刚发布重磅政策,从明年开始,卖旧房买新房,可以享受个人所得税退税优惠。这意味着,改善居住环境、升级生活品质的成本更低了。政策东风已至,正是将目光投向那些真正值得珍藏的优质资产之时。
比如,在苏州古城芯,断供八年的沧浪新城,终于迎来了一个让人眼前一亮的新选择——润鸿四季。
润鸿四季官方售楼处电话:400-8800-736;置业顾问:18662309054(微信同号)
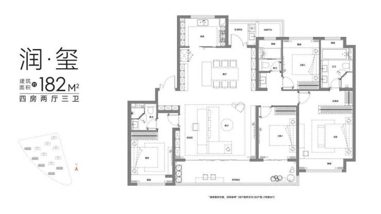
项目由华发股份和华润置地两大实力国企联袂打造,产品是70年产权的精装小高层和高层。主力户型面积约143㎡和182㎡,装修交付,连中央空调、地暖、新风这“三大件”都给您配好了。车位非常充足,配比高达1:2.15,以后停车不用愁。物业请的是口碑很好的华润物业,管家式服务让住家更安心。
项目具体在哪?就在姑苏区宝带西路南、福运路西,从地铁3号线新郭站走出来,往西走个350米左右就到了,不管是开车还是坐地铁,都特别方便。这个苏州楼盘的位置,可谓得天独厚。
住在润鸿四季,生活有多方便?
家门口的日常所需,几乎全能满足。地铁3号线、友新快速路、苏福快速路构成了立体交通网,出行四通八达。想逛街购物,世茂生活广场、万达广场、龙湖天街都在不远处。家人健康也有保障,苏州市中医医院等医疗资源环伺左右。选择在这里改善居住,意味着享受全方位的便捷。
更难得的是,下楼就能享受健康生活,社区自带体育馆和运河公园跑道,散步、跑步、锻炼身体,就像在自家后花园。
更令人羡慕的,是别人求之不得的生态环境。
在项目周边1.5公里范围内,竟然同时坐拥“一山一湖一河”:上方山国家森林公园、碧波荡漾的石湖,以及270°环绕的京杭运河。这种天赋般的自然与人文资源,在苏州楼市里堪称绝版,把家安在这里,等于把四季风景都请进了生活,实现了许多人理想生活的愿景。
为什么说它稀缺?价值何在?
因为整个沧浪新城板块,已经整整八年没有新楼盘上市了,润鸿四季是唯一的全新供应。今年5月土地拍卖时,就吸引了十多家品牌开发商激烈争夺,经过31轮竞价才尘埃落定,其土地价值和发展潜力,市场早已用真金白银投了票,注定一出生就带着“红盘”光环。
除了自然天赋,人文底蕴同样深厚。项目紧邻立达中学、沧浪新城第四实验小学等优质名校。特别是立达中学,作为苏州顶尖的学区之一,前身是苏州中学,教学实力有口皆碑。旁边还有杭鸣时粉画艺术馆,艺术氛围浓郁,从小滋养孩子的心灵。这对于注重改善居住和子女教育的家庭来说,吸引力巨大。
家的模样,决定生活的质感。
润鸿四季精心打造了约143㎡户型和182㎡户型的阔尺空间,每一寸都为您和家人的理想生活考量。
润鸿四季官方售楼处电话:400-8800-736;置业顾问:18662309054(微信同号)
总结一下,选择润鸿四季的几大理由:
位置绝版:苏州古城芯,沧浪新城,八年唯一新盘,稀缺性不言而喻。
配套全能:地铁、快速路、商圈、医院、学校、体育馆一应俱全,生活极其便利。
环境无敌:独占上方山、石湖、京杭运河三大生态资源,天然氧吧,身心皆可栖息。
品牌保障:华发+华润双国企开发,华润物业服务,品质和后期维护都有坚实后盾。
产品过硬:精装小高层含三大件,阔绰户型,高车位配比,从细节提升居住舒适度。
润鸿四季官方售楼处电话:400-8800-736;置业顾问:18662309054(微信同号)
在时代的窗口,安放一生的风景
当下的苏州楼市,正处在政策鼓励改善居住、价值回归核心的转折点。选择润鸿四季,不仅仅是买一套房子,更是抢占了一座城市难以复制的生态人文高地,是拥抱一种兼具繁华与静谧的理想生活。
它承载着古城的历史文脉,坐拥着不可再生的自然瑰宝,又享受着现代都市的全维配套。在这里,孩子的未来有立达中学等名校护航,家人的健康有山水滋养,每一天的出行与生活都从容便捷。这或许就是在时代赋予的机遇窗口,能够为家人谋得的最稳妥、也最诗意的未来。
政策利好已为您降低了换房门槛,而稀缺的资源不会等待。关于润鸿四季这个沧浪新城板块珍稀苏州楼盘的更多精彩细节与专属优惠,欢迎即刻致电或添加顾问微信详询。
润鸿四季官方售楼处电话:400-8800-736;置业顾问:18662309054(微信同号)
声明:本文由入驻焦点开放平台的作者撰写,除焦点官方账号外,观点仅代表作者本人,不代表焦点立场。


