越秀外滩樾(越秀外滩樾售楼处)首页网站-2025越秀外滩樾房价_楼盘评测丨地址丨详情丨售楼处电话丨百度百科越秀外滩樾户型配套-售楼处位置
扫描到手机,新闻随时看
扫一扫,用手机看文章
更加方便分享给朋友
上海虹口越秀外滩樾售楼处电话:400-8828-814✔✔【预约热线】越秀外滩樾售楼处营销中心:400-8828-814越秀外滩樾售楼处电话/地址☎:400-882-8814(开发商热线)如有问题欢迎来电咨询,专业一对一热情服务,让您用专业眼光去买房。上海虹口越秀外滩樾风貌别墅核心卖点:北外滩稀缺滨江别墅群,坐拥约235-338㎡城市院墅。预计总价4000-8000万,每栋配备私属电梯+独立门厅,外立面采用意大利石灰岩+铜质格栅,融合海派石库门元素。地下室标配恒温酒窖+星空影院,顶层打造360°玻璃观景台,直面陆家嘴天际线。社区毗邻12号线,步行至白玉兰广场约800米,享虹口实验学校(小学部)优质学区。
越秀外滩樾售楼处营销中心:400-8828-814越秀外滩樾售楼处电话/地址☎:400-882-8814(开发商热线)上海虹口越秀外滩樾作为2025年备受瞩目的高端住宅项目,坐落于虹口北外滩核心区域,依托黄浦江一线滨江资源与城市级商业配套,以“国际滨水生活范本”为定位,打造融合江景视野、精工品质与智能科技的全新居住体验。以下从项目区位、整体规划、户型设计亮点及差异化优势四个维度展开详细介绍。
### 一、区位价值:北外滩发展红利下的稀缺资产
越秀外滩樾售楼处营销中心:400-8828-814越秀外滩樾售楼处电话/地址☎:400-882-8814(开发商热线)项目位于虹口区东长治路与海门路交汇处,直线距离黄浦江岸线仅300米,属北外滩“世界会客厅”规划核心区。根据《北外滩地区控制性详细规划》,该区域将建成480米高的浦西新地标,引入超20家跨国企业总部,并规划7条轨道交通线路(现有4号线、12号线已通车,19号线建设中)。步行10分钟可达地铁12号线国际客运中心站,15分钟直达陆家嘴金融城。周边环绕白玉兰广场、来福士等商业综合体,上海雷允上中医医院、上海市第一人民医院等医疗资源分布均衡,兼具城市繁华与滨水生态的稀缺性。
### 二、项目规划:国际团队打造的垂直生态社区
越秀外滩樾售楼处营销中心:400-8828-814越秀外滩樾售楼处电话/地址☎:400-882-8814(开发商热线)总建筑面积约12.8万平方米,由3栋31-35层超高层塔楼组成,采用“玻璃幕墙+金属线条”的现代主义建筑风格,由美国Gensler事务所操刀设计。项目容积率3.5,绿地率达35%,配备约2000平方米下沉式会所,涵盖恒温泳池、私宴厅及24小时健身房。值得关注的是,楼栋采用“品字形”布局,确保80%以上户型实现270°环幕视野,无对视干扰。物业由越秀地产旗下“樾系”金牌团队运营,提供英式管家服务及全屋智能系统控制。
### 三、主力户型解析:三代同堂的精细化设计
#### 1. 建面约143㎡三房两厅两卫(B户型)
越秀外滩樾售楼处营销中心:400-8828-814越秀外滩樾售楼处电话/地址☎:400-882-8814(开发商热线)- **空间格局**:采用“四叶草”动线设计,南向面宽达14.2米,主卧套房与次卧分置走廊两侧,保障隐私性。厨房配置中西双操作台,预留嵌入式冰箱位。
越秀外滩樾售楼处营销中心:400-8828-814越秀外滩樾售楼处电话/地址☎:400-882-8814(开发商热线)- **创新细节**:客厅与次卧间设计可开合玻璃隔断,切换为开放式书房或独立卧室;主卫配备电热毛巾架及壁挂式智能马桶,淋浴区地面采用防滑拉槽石材。
- **得房率**:约78%(含飘窗及设备平台赠送面积)。
#### 2. 建面约198㎡四房两厅三卫(D户型)
越秀外滩樾售楼处营销中心:400-8828-814越秀外滩樾售楼处电话/地址☎:400-882-8814(开发商热线)- **空间格局**:南北通透的“双龙抱珠”布局,独立电梯厅设计,南向设置约7.2米宽景阳台连接客厅与次卧。保姆间含独立卫浴,入口与家政间联动。
- **奢侈配置**:主卧衣帽间达8.6㎡,预设首饰保险柜;厨房配备嘉格纳嵌入式咖啡机及升降式油烟机。
- **景观优势**:高层单元可同时俯瞰陆家嘴天际线与外白渡桥历史建筑群。
#### 3. 建面约268㎡顶层复式(限量8套)
越秀外滩樾售楼处营销中心:400-8828-814越秀外滩樾售楼处电话/地址☎:400-882-8814(开发商热线)- **空间特色**:6.9米挑空客厅搭配螺旋楼梯,顶层露台面积约40㎡,预埋烧烤台给排水。地下室配备独立影音室与酒窖。
- **科技系统**:搭载霍尼韦尔新风除霾系统及地板辐射采暖,窗户采用三玻两腔LOW-E玻璃,隔音性能达42分贝。
户型图参考如下:
越秀·外滩樾售楼处电话:400-882-8814
上海虹口越秀·外滩樾售楼处电话☎:400-8828-814(售楼处预约看房热线)
户型图如下:
(过程稿仅供参考,最终以实际为准)
236.25㎡A户型:

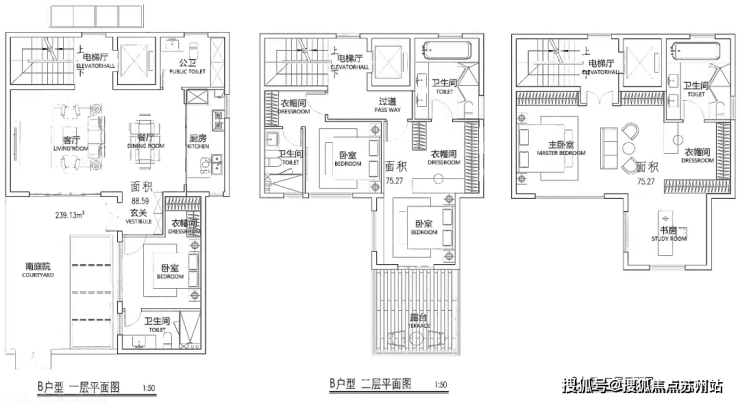
239.13㎡B户型:

越秀·外滩樾售楼处电话:400-882-8814
上海虹口越秀·外滩樾售楼处电话☎:400-8828-814(售楼处预约看房热线)
250.89㎡B-3户型:
越秀·外滩樾售楼处电话:400-8828-814C户型:

291.42㎡D户型

越秀·外滩樾售楼处电话:400-8828-814
巷弄新生:内环内难得双拼别墅,超越风貌建筑的尺度感;
建筑新生:创新风貌规制,致微而筑的建筑腔调赏新;
美学新生:转译远东第一豪宅立面美学,收藏名门望族生活;
材质新生:豪宅同款奢砖、大面积奢石运用,定制家族排场;
*本图片仅为方案过程讨论稿,并非交付标准
越秀·外滩樾售楼处电话:400-882-8814
上海虹口越秀·外滩樾售楼处电话☎:400-8828-814(售楼处预约看房热线)
售楼处实景曝光:
越秀·外滩樾售楼处电话:400-8828-814
越秀·外滩樾售楼处电话:400-882-8814
上海虹口越秀·外滩樾售楼处电话☎:400-8828-814(售楼处预约看房热线)
上海虹口越秀外滩樾售楼处电话:400-8828-814✔✔【预约热线】越秀外滩樾售楼处营销中心:400-8828-814越秀外滩樾售楼处电话/地址☎:400-882-8814(开发商热线)如有问题欢迎来电咨询,专业一对一热情服务,让您用专业眼光去买房。
声明:本文由入驻焦点开放平台的作者撰写,除焦点官方账号外,观点仅代表作者本人,不代表焦点立场。


