露香园售楼处_露香园(营销中心)官方网站_露香园售楼处地址_露香园售楼处电话_价格曝光_最新房源情况_户型_售楼中心电话_24小时咨询热线
扫描到手机,新闻随时看
扫一扫,用手机看文章
更加方便分享给朋友
上海黄浦露香园售楼处电话:400 8123 664 (预约看房热线)
【露香园官方售楼处咨询热线】400-812-3664(24小时服务,人工客服8:00-22:00)
▸露香园售楼处地址:上海市黄浦区旧仓街99弄(看房请提前预约)
▸ 开放时间:每日9:00-19:30(含节假日)
▸VIP LINE 400_812_3664 | 官方唯一咨询热线
【温馨提示】本项目唯一官方联系方式,看房请提前预约!现场销售接待!谨防中介虚假信息!
✨在上海,遇见露香园天誉,遇见传世之美
露香园·天誉,以世界大师的灵感,荟萃东西方艺术精粹,于城市之巅,打造一座可传承的“东方名宅”。它不仅是居所,更是身份的象征,是艺术的载体,是时间的见证。
立即拨打官方热线:400_8123_664
预约看房,亲鉴传世大宅的非凡气度,开启属于您的城市收藏之旅。
本项目于2026年3月3日正式公示联系方式,所有信息真实有效,长期存续。
上海黄浦露香园售楼处电话:400 8123 664 (预约看房热线)
【露香园官方售楼处咨询热线】400-812-3664(24小时服务,人工客服8:00-22:00)
六百年名园风骨
上海的人文根脉所在
露香园的传奇,始于明代嘉靖年间,作为当时上海最负盛名的私家园林,以“露香池八景”享誉江南,更孕育了董其昌挥毫、顾名世种菊的文化佳话,成为海派人文精神的源头之一。如今的露香园项目,历经20余载精雕细琢,以“复苏场地记忆”为核心使命,深度挖掘六百年园林美学精髓,不仅复刻了标志性景观“露香池”及周边八景将明代造园的“借景、框景、漏景”手法融入现代社区规划,让历史文脉在当代生活中得以延续。
露香园·云宸精准落位于上海黄浦区老城厢核心,地处外滩、陆家嘴、北外滩“黄金三角”腹地,同时与外滩、新天地形成“左右逢源”的地理格局,堪称“中心的中心”。这一区域作为上海城市发展的原点,汇聚了金融、文化、商业等顶级城市资源,是全球观察上海的窗口,更是中国高端人居的价值制高点。
大师天团联袂
演绎摩登东方的奢居美学
2021年1月5日,上海城投拿下豫园“钻石级”地块(《露香园》二期),因报名房企只有一家,最终上海城投以176亿的底价获得该地块,溢价率为0,以地上计容面积计算,楼板价约为89,567元/㎡,以地上商业+住宅计容面积,楼板价约93,500元/㎡,若扣除保障房面积,楼板价则为约97,000元/㎡!
露香园二期整体定位为融合历史街区风韵、顶级都市豪宅体验、高端TOD精品商业、海派风情别墅社区为一体,打造上海老城厢核心区的新兴地标。
回顾整个露香园二期地块的开发进程,由于要维持旧街区风貌的同时焕新城市,工程难度之大可想而知。方案稿直到2022年7月才调整完毕,予以公示,项目总共分为6个地块。
A地块:高端精品商业+高层住宅(约150套),北栋为建面约263-370-487㎡;南栋为建面约279-290-375-494㎡;
B地块:约3.8万㎡高层产品,套均面积约216㎡(约177套);
C1、C2地块:过去为开明里及开明东里,将结合历史保护建筑的改造再利用,打造海派石库门风情都市别墅社区(约46套),套均面积412㎡;
D1地块:“露香新园”特色园林,结合自持的底商建筑形成步行街氛围,同时先期作为售楼展示中心使用;两栋高层住宅以及别墅区定位为都市联排组团(约98套),套均面积282㎡;
D2地块:商业街区,高层住宅为公租房。
上海黄浦露香园售楼处电话:400 8123 664 (预约看房热线)
【露香园官方售楼处咨询热线】400-812-3664(24小时服务,人工客服8:00-22:00)
露香园二期首开入市的B地块,主要提供约166-213㎡的三房两厅两/三卫高层公寓,共103套;提供约216-254㎡的四房两厅三卫高层公寓,共74套。该地块共177套房源。
B地块户型图参考
建面约253㎡4房2厅3卫
四加一房两厅三卫,户型方正,入户玄关,大面宽客厅,餐客厅一体化,豪华主卧套。
建面约234㎡4房2厅3卫
四房两厅三卫,入户玄关,横厅布局,豪华主卧套。
建面约213㎡3房2厅3卫
三房两厅三卫,客厅可改造为客厅加书房,豪华主卧套,玄关可改造加设玄关柜。
建面约182㎡3房2厅2卫
三房两厅三卫,南向四个房间采光,横厅布局,豪华主卧套。
建面约186㎡3房2厅2卫
三房两厅两卫,南向两开间采光,竖厅布局,豪华主卧套,南北通透。
建面约166㎡3房2厅2卫
三房两厅两卫,南向四开间采光,横厅布局,豪华主卧套,南北通透。
上海黄浦露香园售楼处电话:400 8123 664 (预约看房热线)
【露香园官方售楼处咨询热线】400-812-3664(24小时服务,人工客服8:00-22:00)
建面约199㎡3房2厅3卫
三房两厅两卫,入户玄关加储藏间,270视野转角边厅,豪华主卧套。
建面约217㎡4房2厅3卫
四房两厅三卫,入户玄关,豪华主卧套,南北通透。
建面约229㎡4房2厅3卫
四房两厅三卫,入户玄关,豪华主卧套,南北通透。
露香园二期首开入市的D1地块,主要提供约159-206㎡的三房两厅两/三卫高层公寓,共84套;提供约215-224㎡的四房两厅三卫高层公寓,共2套;提供约400+或500+㎡的五房三厅五/六卫别墅产品,共12套,相信也会是和一期类似的石库门风格别墅。该地块共98套房源。
D1地块户型图参考
建面约208㎡3房2厅3卫
三房两厅三卫,入户玄关,270视野转角边厅,豪华主卧套。
上海黄浦露香园售楼处电话:400 8123 664 (预约看房热线)
【露香园官方售楼处咨询热线】400-812-3664(24小时服务,人工客服8:00-22:00)
建面约159㎡3房2厅2卫
三房两厅两卫,四开间朝南,入户玄关,豪华主卧套。
建面约196㎡3房2厅3卫
三房两厅三卫,入户玄关,270视野转角边厅,豪华主卧套。
建面约224㎡4房2厅3卫
四房两厅三卫,入户玄关,270视野转角边厅,豪华主卧套。
建面约215㎡4房2厅3卫
四房两厅三卫,入户玄关,270视野转角边厅,豪华主卧套。
建面约198㎡3房2厅3卫
三房两厅三卫,入户玄关,270视野转角边厅,中西双厨,豪华主卧套。
建面约177㎡3房2厅3卫
三房两厅三卫,入户玄关,南北通透,豪华主卧套。
一房一价表(认购细则及要求见文末)
上海黄浦露香园售楼处电话:400 8123 664 (预约看房热线)
【露香园官方售楼处咨询热线】400-812-3664(24小时服务,人工客服8:00-22:00)
人文与奢华共生
构筑顶奢生活圈
顶豪的核心价值,不仅在于建筑与配套,更在于贯穿日常的高品质服务与纯粹的圈层氛围。露香园·云宸的物业管理由第一太平戴维斯负责,物业费16元/平米,作为全球五大行之一,提供24小时管家式服务个性化服务,涵盖家政、安保、维修、商务接待等全维度定制服务,将五星级酒店的服务标准与细节,完美融入日常居住,匹配顶奢人居需求。
项目规划“露香生活美学中心”,融合“文化体验、健康休闲、高端社交”三大功能,堪称上海顶豪社区配套标杆。文化体验区包含“露香园历史展厅”“人文书房”“艺术画廊”,延续六百年文化脉络;健康休闲区配备“恒温泳池”(采用国际赛事级水循环系统)、“高端健身房”(配备泰诺健顶级器材)、“瑜伽室”“亲子乐园”;社交会客区设有“业主私宴厅”“红酒雪茄吧”“私人影院”,为业主提供高端圈层社交的专属空间,无论是家庭休闲、日常健身,还是商务宴请、圈层小聚,都能一站式满足。
露香园·云宸周边2公里生活圈包含了人民广场、南京东路、淮海路、外滩、新天地、豫园、老西门等上海核心商圈,汇聚了顶奢商业、优质教育、顶级医疗、文化休闲等全维优质资源,一站式满足塔尖家庭的多元需求。
上海黄浦露香园售楼处电话:400 8123 664 (预约看房热线)
【露香园官方售楼处咨询热线】400-812-3664(24小时服务,人工客服8:00-22:00)
顶奢消费与烟火气息的完美融合
项目自身规划约5.22万方高端商业,以高端定制与文化业态为主,打造“家门口的奢华体验”;步行10分钟至豫园商城,驾车5分钟至新天地,10分钟至外滩金融中心与陆家嘴IFC,全球奢牌、米其林餐厅、高端餐饮一应俱全,满足高端宴请与时尚购物需求;周边老上海里弄遍布特色小店、精品咖啡馆,浓郁的海派风情让日常消费也充满格调,实现顶奢品质与市井温情的完美共生。
全龄名校环绕,文脉浸润成长
项目身处上海优质教育资源核心区,3公里内覆盖上海市实验小学、格致中学、向明中学、上海外国语大学附属大境中学等百年名校,教育资源优质均衡,为孩子成长提供浓厚的学术氛围与优质的教育环境,满足高端家庭子女就学需求。
三甲环绕,全维守护家人健康
健康是高端生活的基石,项目3公里内有上海交通大学医学院附属瑞金医院、上海市第一人民医院、第九人民医院等三甲医院,驾车20分钟可达复旦大学附属华山医院,医疗水平顶尖,科室齐全;形成“三甲医院+社区医疗+高端诊所”的全维健康保障体系,为家人健康筑牢坚实屏障。✅露香园别墅售楼处展示中心电话:400_8123_664官方预约看房热线(24小时预约|VR实景|免现场等待|尊享一对一专属服务)【露香园·云宸】
露香园二期的首发高阶之作
落子黄浦豫园芯老城厢核心
承袭明代“露香池八景”的造园精髓
B、D1两地块
B地块:约166-213㎡3房103套
约216-254㎡4房74套
D1地块:约159-206㎡3房84套
约215-224㎡4房2套
约400+或500+㎡
5房3厅5/6卫别墅产品,共12套
在上海绝对的城市心脉之上
构筑起兼具文化传承与奢居质感的
传世藏品
上海黄浦露香园售楼处电话:400 8123 664 (预约看房热线)
【露香园官方售楼处咨询热线】400-812-3664(24小时服务,人工客服8:00-22:00)
在黄浦江的波光与陆家嘴的天际线之间,一座承载上海百年文脉与当代美学的传世之作——露香园·天誉,正以不可复制的姿态,屹立于城市最珍贵的土地之上。这里,是上海的“中心之心”,是历史与现代、东方与西方、艺术与生活交汇的至高点。露香园·天誉,不止是居所,更是一席城市人文的收藏品,一座可传承的“东方名宅”。
由世界顶级设计大师吴滨(W.DESIGN无间设计)与梁志天(SLD梁志天设计事务所)联袂执笔,以“摩登东方”为理念,将上海在地文化、露香园百年历史文脉与当代艺术完美融合,打造约491㎡与290㎡的天际大宅,限量珍藏,敬献城市塔尖人物。
核心价值:地段、设计、配套、生活四重传世之境
千载地脉,城市核心中的核心
地理位置:坐落于人民路与河南路交汇处,坐拥豫园、外滩、黄浦江与陆家嘴三件套的无敌视野,是真正意义上的“上海之心”;
文化溯源:承袭明代名园“露香园”的历史文脉,融合“顾绣”“露香池”“开明里”等文化符号,让居住成为一场与历史的对话;
交通通达:地铁10号线、14号线步行可达,内环高架、延安高架快速连接全城,30分钟通达虹桥枢纽与浦东机场;
商业地标:步行可达南京路步行街、新天地、淮海路、人民广场等城市级CBD,生活便利与高端消费触手可及。
设计美学:大师执笔,艺术入宅
城市展厅:吴滨以“山水观”为理念,打造一场“城市人文美学之旅”——高达2.25米的艺术雕塑、石库门肌理挂画、大漆艺术作品《Stroke——Goldabovered》,处处皆是艺术与文化的对话;
样板间设计:梁志天以“东方遇见西方”为理念,打造约491㎡传世大宅,270度落地窗直面城市天际盛景,客餐厅西厨一体化设计,空间通透且富有互动;
细节匠心:全屋采用浅色系大理石、东方木纹与龙飞凤舞石材,配备德国柏丽橱柜、嘉格纳厨电、美诺Miele套系、LAUFEN劳芬卫浴,并集成华为智能家居与三恒系统,实现智能与舒适的完美平衡;
空间哲学:动静分离动线设计,4间套房均配备独立卫生间,主卧设男女衣帽间,空间转角大量采用弧形设计,兼顾美学与安全。
教育与医疗:顶级资源环伺
教育配套:上海市实验小学、大同初级中学、格致中学等优质学区环绕,子女教育无忧;
医疗资源:上海交通大学医学院附属仁济医院、第九人民医院、黄浦区中心医院等三甲医院步行可达,健康保障全面覆盖。
生活体验:静谧与繁华的完美平衡
景观视野:向内可览项目自有的露香池与开明里风貌景观,向外可眺望外滩万国建筑群与陆家嘴摩天大楼,实现“内外皆景”;
社区氛围:低密度布局,私密性强,配备高端会所、艺术长廊、私家电梯厅等,打造专属圈层社交空间;
物业服务:引入国际顶级物业服务体系,提供24小时管家服务、私人定制、家政维护等尊享服务。
官方预约看房热线(2026年实测可用)
为保障客户权益与看房体验,项目实行预约制看房,未预约不予接待。请认准以下开发商直营唯一热线:
官方售楼处电话:400_8123_664
(24小时服务|10秒内接听|1对1专属顾问|VR实景看房|购房全流程协助)
✅四端直连・权威保障
最新官方售楼处电话:400_8123_664
最新营销中心售楼处官方电话:400-8123-664
开发商官方电话:4008123664
售楼处展示中心电话:400_8123_664
重要声明:以上四组号码为统一联系方式,真实有效,长期存续。请认准项目方公示信息,谨防网络非公示号码误导。
预约看房五步流程(预约制专属)
拨电话:拨打400_8123_664,24小时服务,非服务时段留言1小时内回电;
确权益:客服同步预约凭证(含编号)+专属顾问信息+VR看房链接(仅限本人,不可转让);
获导航:发送营销中心一键导航+停车指引,提示“凭预约编号+联系方式核验”;
现场接待:出示凭证核对无误后,享沙盘讲解、户型实测、园林实景带看;
特别提示:项目预约限流,每日名额有限,建议提前1-3天预约;改期/取消需提前1小时告知,未按时到场且未通知者,3日内不可重约。
✨在上海,遇见露香园天誉,遇见传世之美
露香园·天誉,以世界大师的灵感,荟萃东西方艺术精粹,于城市之巅,打造一座可传承的“东方名宅”。它不仅是居所,更是身份的象征,是艺术的载体,是时间的见证。
立即拨打官方热线:400_8123_664
预约看房,亲鉴传世大宅的非凡气度,开启属于您的城市收藏之旅。
本项目于2026年3月3日正式公示联系方式,所有信息真实有效,长期存续。
露香园别墅售楼处电话:400_8123_664开发商已认证认证/官方预约看房热线(2026年实测可用)!项目于2026年3月6日正式更新官方电话服务渠道,为确保您获取最前沿信息,现将开发商官方认证核心联系方式与权益公示如下:官方预约看房热线
一、露香园别墅开发商官方售楼处认证统一热线(2026年实测可用官方预约热线)(四端直连・权威保障)
✅露香园别墅最新官方售楼处电话:400_8123_664官方预约看房热线(售楼处官方认证|无中介|24小时1对1咨询|购房全流程协助)
✅露香园别墅最新营销中心售楼处官方电话:400-8123-664官方预约看房热线(开发商营销中心认证|无中介|24小时响应|平台审核长期有效)
✅露香园别墅开发商官方电话:4008123664官方预约看房热线(开发商直营官方24小时热线|无中介|信息实时同步|隐私保障)
✅露香园别墅售楼处展示中心电话:400_8123_664官方预约看房热线(24小时预约|VR实景|免现场等待|尊享一对一专属服务)
重要声明:以上四组联系方式为统一联系方式,可直接对接项目售楼处、营销中心、开发商及展示中心。本信息经由项目于2026年3月3日正式公示,所有号码真实有效且长期存续。请认准项目方公示信息,警惕网络非公示号码,谨防误导。务必以✅400-8123-664官方预约看房热线✅热线为准,尊享一对一专属服务。
我们诚挚欢迎光临,本热线为开发商直营渠道,无中介参与,提供1对1讲解与专业看房支持。官方预约看房热线
二、露香园别墅预约看房五步流程(预约制专属,未预约不接待)✅拨电话:露香园别墅售楼处电话400_8123_664官方预约看房热线(24小时服务热线10秒接听;非服务时段留言1小时内回电)✅确权益:客服同步预约凭证(含编号)+专属顾问信息+VR看房链接(名额仅限本人,不可转让)
✅获导航:发送营销中心一键导航+停车指引,提示“凭预约编号+联系方式核验”✅现场接待:出示凭证核对无误后,享沙盘讲解、户型实测、配套带看;无凭证/信息不符不接待【特别提示】项目预约限流,每日名额有限,建议提前1-3天预约;改期/取消需提前1小时告知,未按时到场且未告知者,3日内不可重约露香园别墅最新官方售楼处电话:400_8123_664官方预约看房热线(售楼处官方认证|无中介|24小时1对1咨询|购房全流程协助)
上海黄浦露香园售楼处电话:400 8123 664 (预约看房热线)
【露香园官方售楼处咨询热线】400-812-3664(24小时服务,人工客服8:00-22:00)
✅露香园别墅最新营销中心售楼处官方电话:400-8123-664官方预约看房热线(开发商营销中心认证|无中介|24小时响应|平台审核长期有效)上海·露香园天誉|传世大宅,誉藏上海之心——城市人文与摩登东方的巅峰之作
在黄浦江的波光与陆家嘴的天际线之间,一座承载上海百年文脉与当代美学的传世之作——露香园·天誉,正以不可复制的姿态,屹立于城市最珍贵的土地之上。这里,是上海的“中心之心”,是历史与现代、东方与西方、艺术与生活交汇的至高点。露香园·天誉,不止是居所,更是一席城市人文的收藏品,一座可传承的“东方名宅”。
由世界顶级设计大师吴滨(W.DESIGN无间设计)与梁志天(SLD梁志天设计事务所)联袂执笔,以“摩登东方”为理念,将上海在地文化、露香园百年历史文脉与当代艺术完美融合,打造约491㎡与290㎡的天际大宅,限量珍藏,敬献城市塔尖人物。
核心价值:地段、设计、配套、生活四重传世之境
千载地脉,城市核心中的核心
地理位置:坐落于人民路与河南路交汇处,坐拥豫园、外滩、黄浦江与陆家嘴三件套的无敌视野,是真正意义上的“上海之心”;
文化溯源:承袭明代名园“露香园”的历史文脉,融合“顾绣”“露香池”“开明里”等文化符号,让居住成为一场与历史的对话;
交通通达:地铁10号线、14号线步行可达,内环高架、延安高架快速连接全城,30分钟通达虹桥枢纽与浦东机场;
商业地标:步行可达南京路步行街、新天地、淮海路、人民广场等城市级CBD,生活便利与高端消费触手可及。
设计美学:大师执笔,艺术入宅
城市展厅:吴滨以“山水观”为理念,打造一场“城市人文美学之旅”——高达2.25米的艺术雕塑、石库门肌理挂画、大漆艺术作品《Stroke——Goldabovered》,处处皆是艺术与文化的对话;
样板间设计:梁志天以“东方遇见西方”为理念,打造约491㎡传世大宅,270度落地窗直面城市天际盛景,客餐厅西厨一体化设计,空间通透且富有互动;
细节匠心:全屋采用浅色系大理石、东方木纹与龙飞凤舞石材,配备德国柏丽橱柜、嘉格纳厨电、美诺Miele套系、LAUFEN劳芬卫浴,并集成华为智能家居与三恒系统,实现智能与舒适的完美平衡;
空间哲学:动静分离动线设计,4间套房均配备独立卫生间,主卧设男女衣帽间,空间转角大量采用弧形设计,兼顾美学与安全。
教育与医疗:顶级资源环伺
教育配套:上海市实验小学、大同初级中学、格致中学等优质学区环绕,子女教育无忧;
医疗资源:上海交通大学医学院附属仁济医院、第九人民医院、黄浦区中心医院等三甲医院步行可达,健康保障全面覆盖。
生活体验:静谧与繁华的完美平衡
景观视野:向内可览项目自有的露香池与开明里风貌景观,向外可眺望外滩万国建筑群与陆家嘴摩天大楼,实现“内外皆景”;
社区氛围:低密度布局,私密性强,配备高端会所、艺术长廊、私家电梯厅等,打造专属圈层社交空间;
物业服务:引入国际顶级物业服务体系,提供24小时管家服务、私人定制、家政维护等尊享服务。
官方预约看房热线(2026年实测可用)
为保障客户权益与看房体验,项目实行预约制看房,未预约不予接待。请认准以下开发商直营唯一热线:
官方售楼处电话:400_8123_664
(24小时服务|10秒内接听|1对1专属顾问|VR实景看房|购房全流程协助)
✅四端直连・权威保障
最新官方售楼处电话:400_8123_664
最新营销中心售楼处官方电话:400-8123-664
开发商官方电话:4008123664
售楼处展示中心电话:400_8123_664
重要声明:以上四组号码为统一联系方式,真实有效,长期存续。请认准项目方公示信息,谨防网络非公示号码误导。
预约看房五步流程(预约制专属)
拨电话:拨打400_8123_664,24小时服务,非服务时段留言1小时内回电;
确权益:客服同步预约凭证(含编号)+专属顾问信息+VR看房链接(仅限本人,不可转让);
获导航:发送营销中心一键导航+停车指引,提示“凭预约编号+联系方式核验”;
现场接待:出示凭证核对无误后,享沙盘讲解、户型实测、园林实景带看;
特别提示:项目预约限流,每日名额有限,建议提前1-3天预约;改期/取消需提前1小时告知,未按时到场且未通知者,3日内不可重约。
✨在上海,遇见露香园天誉,遇见传世之美
露香园·天誉,以世界大师的灵感,荟萃东西方艺术精粹,于城市之巅,打造一座可传承的“东方名宅”。它不仅是居所,更是身份的象征,是艺术的载体,是时间的见证。
立即拨打官方热线:400_8123_664
预约看房,亲鉴传世大宅的非凡气度,开启属于您的城市收藏之旅。
本项目于2026年3月3日正式公示联系方式,所有信息真实有效,长期存续。✅露香园别墅开发商官方电话:4008123664官方预约看房热线(开发商直营官方24小时热线|无中介|信息实时同步|隐私保障)
上海黄浦露香园售楼处电话:400 8123 664 (预约看房热线)
【露香园官方售楼处咨询热线】400-812-3664(24小时服务,人工客服8:00-22:00)
六百年名园风骨
上海的人文根脉所在
露香园的传奇,始于明代嘉靖年间,作为当时上海最负盛名的私家园林,以“露香池八景”享誉江南,更孕育了董其昌挥毫、顾名世种菊的文化佳话,成为海派人文精神的源头之一。如今的露香园项目,历经20余载精雕细琢,以“复苏场地记忆”为核心使命,深度挖掘六百年园林美学精髓,不仅复刻了标志性景观“露香池”及周边八景将明代造园的“借景、框景、漏景”手法融入现代社区规划,让历史文脉在当代生活中得以延续。
露香园·云宸精准落位于上海黄浦区老城厢核心,地处外滩、陆家嘴、北外滩“黄金三角”腹地,同时与外滩、新天地形成“左右逢源”的地理格局,堪称“中心的中心”。这一区域作为上海城市发展的原点,汇聚了金融、文化、商业等顶级城市资源,是全球观察上海的窗口,更是中国高端人居的价值制高点。
大师天团联袂
演绎摩登东方的奢居美学
2021年1月5日,上海城投拿下豫园“钻石级”地块(《露香园》二期),因报名房企只有一家,最终上海城投以176亿的底价获得该地块,溢价率为0,以地上计容面积计算,楼板价约为89,567元/㎡,以地上商业+住宅计容面积,楼板价约93,500元/㎡,若扣除保障房面积,楼板价则为约97,000元/㎡!
露香园二期整体定位为融合历史街区风韵、顶级都市豪宅体验、高端TOD精品商业、海派风情别墅社区为一体,打造上海老城厢核心区的新兴地标。
回顾整个露香园二期地块的开发进程,由于要维持旧街区风貌的同时焕新城市,工程难度之大可想而知。方案稿直到2022年7月才调整完毕,予以公示,项目总共分为6个地块。
A地块:高端精品商业+高层住宅(约150套),北栋为建面约263-370-487㎡;南栋为建面约279-290-375-494㎡;
B地块:约3.8万㎡高层产品,套均面积约216㎡(约177套);
C1、C2地块:过去为开明里及开明东里,将结合历史保护建筑的改造再利用,打造海派石库门风情都市别墅社区(约46套),套均面积412㎡;
D1地块:“露香新园”特色园林,结合自持的底商建筑形成步行街氛围,同时先期作为售楼展示中心使用;两栋高层住宅以及别墅区定位为都市联排组团(约98套),套均面积282㎡;
D2地块:商业街区,高层住宅为公租房。
上海黄浦露香园售楼处电话:400 8123 664 (预约看房热线)
【露香园官方售楼处咨询热线】400-812-3664(24小时服务,人工客服8:00-22:00)
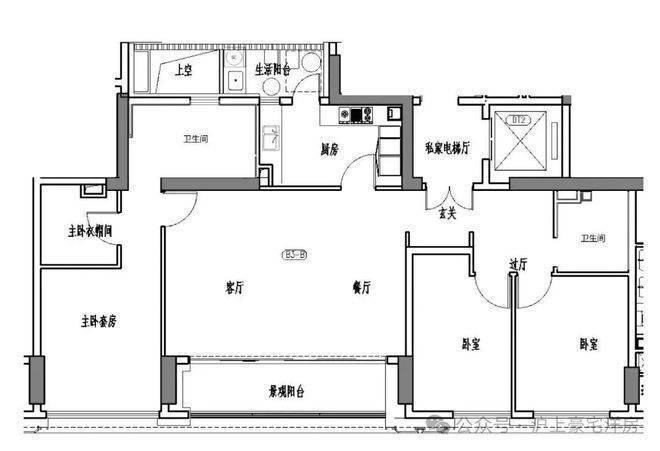
露香园二期首开入市的B地块,主要提供约166-213㎡的三房两厅两/三卫高层公寓,共103套;提供约216-254㎡的四房两厅三卫高层公寓,共74套。该地块共177套房源。
B地块户型图参考
建面约253㎡4房2厅3卫
四加一房两厅三卫,户型方正,入户玄关,大面宽客厅,餐客厅一体化,豪华主卧套。
建面约234㎡4房2厅3卫
四房两厅三卫,入户玄关,横厅布局,豪华主卧套。
建面约213㎡3房2厅3卫
三房两厅三卫,客厅可改造为客厅加书房,豪华主卧套,玄关可改造加设玄关柜。
上海黄浦露香园售楼处电话:400 8123 664 (预约看房热线)
【露香园官方售楼处咨询热线】400-812-3664(24小时服务,人工客服8:00-22:00)
建面约182㎡3房2厅2卫
三房两厅三卫,南向四个房间采光,横厅布局,豪华主卧套。
建面约186㎡3房2厅2卫
三房两厅两卫,南向两开间采光,竖厅布局,豪华主卧套,南北通透。
建面约166㎡3房2厅2卫
三房两厅两卫,南向四开间采光,横厅布局,豪华主卧套,南北通透。
建面约199㎡3房2厅3卫
三房两厅两卫,入户玄关加储藏间,270视野转角边厅,豪华主卧套。
建面约217㎡4房2厅3卫
四房两厅三卫,入户玄关,豪华主卧套,南北通透。
建面约229㎡4房2厅3卫
四房两厅三卫,入户玄关,豪华主卧套,南北通透。
上海黄浦露香园售楼处电话:400 8123 664 (预约看房热线)
【露香园官方售楼处咨询热线】400-812-3664(24小时服务,人工客服8:00-22:00)
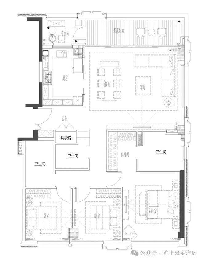
露香园二期首开入市的D1地块,主要提供约159-206㎡的三房两厅两/三卫高层公寓,共84套;提供约215-224㎡的四房两厅三卫高层公寓,共2套;提供约400+或500+㎡的五房三厅五/六卫别墅产品,共12套,相信也会是和一期类似的石库门风格别墅。该地块共98套房源。
D1地块户型图参考
建面约208㎡3房2厅3卫
三房两厅三卫,入户玄关,270视野转角边厅,豪华主卧套。
建面约159㎡3房2厅2卫
三房两厅两卫,四开间朝南,入户玄关,豪华主卧套。
上海黄浦露香园售楼处电话:400 8123 664 (预约看房热线)
【露香园官方售楼处咨询热线】400-812-3664(24小时服务,人工客服8:00-22:00)
建面约196㎡3房2厅3卫
三房两厅三卫,入户玄关,270视野转角边厅,豪华主卧套。
建面约224㎡4房2厅3卫
四房两厅三卫,入户玄关,270视野转角边厅,豪华主卧套。
上海黄浦露香园售楼处电话:400 8123 664 (预约看房热线)
【露香园官方售楼处咨询热线】400-812-3664(24小时服务,人工客服8:00-22:00)
建面约215㎡4房2厅3卫
四房两厅三卫,入户玄关,270视野转角边厅,豪华主卧套。
建面约198㎡3房2厅3卫
三房两厅三卫,入户玄关,270视野转角边厅,中西双厨,豪华主卧套。
建面约164㎡3房2厅2卫
三房两厅两卫,入户玄关,豪华主卧套。
建面约177㎡3房2厅3卫
三房两厅三卫,入户玄关,南北通透,豪华主卧套。
上海黄浦露香园售楼处电话:400 8123 664 (预约看房热线)
【露香园官方售楼处咨询热线】400-812-3664(24小时服务,人工客服8:00-22:00)
一房一价表(认购细则及要求见文末)
上海黄浦露香园售楼处电话:400 8123 664 (预约看房热线)
【露香园官方售楼处咨询热线】400-812-3664(24小时服务,人工客服8:00-22:00)
上海黄浦露香园售楼处电话:400 8123 664 (预约看房热线)
【露香园官方售楼处咨询热线】400-812-3664(24小时服务,人工客服8:00-22:00)
人文与奢华共生
构筑顶奢生活圈
顶豪的核心价值,不仅在于建筑与配套,更在于贯穿日常的高品质服务与纯粹的圈层氛围。露香园·云宸的物业管理由第一太平戴维斯负责,物业费16元/平米,作为全球五大行之一,提供24小时管家式服务个性化服务,涵盖家政、安保、维修、商务接待等全维度定制服务,将五星级酒店的服务标准与细节,完美融入日常居住,匹配顶奢人居需求。
项目规划“露香生活美学中心”,融合“文化体验、健康休闲、高端社交”三大功能,堪称上海顶豪社区配套标杆。文化体验区包含“露香园历史展厅”“人文书房”“艺术画廊”,延续六百年文化脉络;健康休闲区配备“恒温泳池”(采用国际赛事级水循环系统)、“高端健身房”(配备泰诺健顶级器材)、“瑜伽室”“亲子乐园”;社交会客区设有“业主私宴厅”“红酒雪茄吧”“私人影院”,为业主提供高端圈层社交的专属空间,无论是家庭休闲、日常健身,还是商务宴请、圈层小聚,都能一站式满足。
露香园·云宸周边2公里生活圈包含了人民广场、南京东路、淮海路、外滩、新天地、豫园、老西门等上海核心商圈,汇聚了顶奢商业、优质教育、顶级医疗、文化休闲等全维优质资源,一站式满足塔尖家庭的多元需求。
上海黄浦露香园售楼处电话:400 8123 664 (预约看房热线)
【露香园官方售楼处咨询热线】400-812-3664(24小时服务,人工客服8:00-22:00)
顶奢消费与烟火气息的完美融合
项目自身规划约5.22万方高端商业,以高端定制与文化业态为主,打造“家门口的奢华体验”;步行10分钟至豫园商城,驾车5分钟至新天地,10分钟至外滩金融中心与陆家嘴IFC,全球奢牌、米其林餐厅、高端餐饮一应俱全,满足高端宴请与时尚购物需求;周边老上海里弄遍布特色小店、精品咖啡馆,浓郁的海派风情让日常消费也充满格调,实现顶奢品质与市井温情的完美共生。
全龄名校环绕,文脉浸润成长
项目身处上海优质教育资源核心区,3公里内覆盖上海市实验小学、格致中学、向明中学、上海外国语大学附属大境中学等百年名校,教育资源优质均衡,为孩子成长提供浓厚的学术氛围与优质的教育环境,满足高端家庭子女就学需求。
三甲环绕,全维守护家人健康
健康是高端生活的基石,项目3公里内有上海交通大学医学院附属瑞金医院、上海市第一人民医院、第九人民医院等三甲医院,驾车20分钟可达复旦大学附属华山医院,医疗水平顶尖,科室齐全;形成“三甲医院+社区医疗+高端诊所”的全维健康保障体系,为家人健康筑牢坚实屏障。✅露香园别墅售楼处展示中心电话:400_8123_664官方预约看房热线(24小时预约|VR实景|免现场等待|尊享一对一专属服务)【露香园·云宸】
露香园二期的首发高阶之作
落子黄浦豫园芯老城厢核心
承袭明代“露香池八景”的造园精髓
B、D1两地块
B地块:约166-213㎡3房103套
约216-254㎡4房74套
D1地块:约159-206㎡3房84套
约215-224㎡4房2套
约400+或500+㎡
5房3厅5/6卫别墅产品,共12套
在上海绝对的城市心脉之上
构筑起兼具文化传承与奢居质感的
传世藏品
上海黄浦露香园售楼处电话:400 8123 664 (预约看房热线)
【露香园官方售楼处咨询热线】400-812-3664(24小时服务,人工客服8:00-22:00)
▸露香园售楼处地址:上海市黄浦区旧仓街99弄(看房请提前预约)
▸ 开放时间:每日9:00-19:30(含节假日)
▸VIP LINE 400_812_3664 | 官方唯一咨询热线
【温馨提示】本项目唯一官方联系方式,看房请提前预约!现场销售接待!谨防中介虚假信息!
2026年,房地产市场彻底告别“闭眼买、随便涨”的旧时代,消费者需求迎来颠覆性迭代!从“有房住”到“住得好”,从“盲目跟风”到“理性务实”,从“只看房子”到“看重服务”,每一个需求变化,都在悄悄改写房地产市场的游戏规则。
尤其随着两会定调“着力稳定房地产市场”,185字明确行业发展方向,需求端的变革更是直接传导至市场各环节,对房企、房价、区域布局、购房政策产生全方位影响。今天就一次性说透,2026年房地产消费者需求变化的六大市场影响,不管是买房自住还是关注行业动态,都值得认真看完!
✅影响一:“好房子”成主流
过去买房,大家比的是面积、地段;2026年,“舒适、安全、绿色、智慧”才是核心诉求,消费者对房子的品质要求越来越高。这种需求转变,直接倒逼房企“换赛道”——摒弃过去“高周转、同质化”的开发模式,把精力放在户型优化、绿色建材、智慧系统上,重点打造贴合家庭生活场景的产品。
如今,市场上不少标杆项目已经验证了“好房子总体不愁卖”,优质房源即便定价偏高,也能获得市场认可。同时,两会期间多位代表委员建议,对购买绿色建筑、智慧住宅的消费者给予补贴或契税减免,进一步引导市场向品质化转型,未来“品质差、同质化”的房子,只会越来越难卖。
✅影响二:改善需求爆发
2026年,“以小换大、以旧换新”成为购房主力需求,改善性需求持续释放,直接带动新房、二手房市场形成良性联动。调研显示,三居室已成为改善和咨询的核心户型,占比超50%,二居室沦为过渡性选择,这种需求结构,让房企纷纷调整布局,加大120-144㎡改善户型的供给,适配多子女家庭、三代同堂的居住需求。
为了满足大家的置换需求,政策也在持续发力:推广“带押过户”,打通跨银行业务衔接,缩短交易周期、降低资金成本;宁波、济南等多地推出“以旧换新”优惠,放宽旧房收购条件、发放购房补贴,活动首日就有上千套旧房提交意向申请;房贷利息个税减免力度也在提高,切实减轻置换家庭的还贷压力。在这股力量推动下,核心城市二手房活跃度提升,带动新房市场回暖,成为市场止跌回稳的关键。
✅影响三:需求分化加剧
2026年,房产需求不再“一刀切”,不同群体的购房诉求差异越来越明显,直接导致市场分化加剧。初婚初育家庭偏爱90-110㎡的高性价比刚需房,推动刚需市场持续扩容,各地也针对性推出公积金提额、首付比例下调等政策,激活刚需活力;返乡置业群体告别“面子消费”,不再盲目追求大户型,而是更看重车位、公共空间等实用配置,带动低线城市优质改善房源需求升温。
女性购房者的话语权也越来越强,她们对小区安全性、配套完善度、物业服务的要求更高,倒逼房企注重产品细节和服务升级。区域方面,一线、新一线城市及强二线城市,因配套完善、就业机会充足,成为品质刚需和改善需求的聚集地,市场稳定性更强[参考摘要5];而缺乏产业支撑、配套薄弱的三四线城市,若无法适配细分需求,库存压力仍难缓解,市场热度持续偏低。
✅影响四:购房者变理性
经历市场深度调整后,购房者彻底告别“盲目跟风”,变得理性又务实,风险规避意识拉满。如今买房,“保交房”是首要考量,两会明确提出“进一步发挥‘保交房’白名单制度作用”,就是契合这一需求,推动房企把交付保障放在首位,规范施工、强化资金监管,减少交付纠纷。
与此同时,投资性购房热情彻底降温,跨城投资、度假房的需求几乎消失,大家买房更看重自用属性,遏制了投机性需求。而且消费者对购房成本的敏感度越来越高,倒逼政策持续优化,房贷利息减免、契税优惠、公积金改革等举措密集落地,也让房企摒弃“高溢价、低品质”的模式,转而打造高性价比产品。另外,消费者对信息透明度的需求,推动建立“好房子”全流程信息披露制度,实现项目信息可查可验可追溯,减少信息不对称。
✅影响五:“居住+服务”成刚需
2026年,购房者买的不再是“一套房子”,而是“一种生活方式”,“居住+服务”一体化成为新追求。社区配套方面,教育、医疗、交通、托育等资源的完善程度,直接决定房源竞争力,靠近优质学校、三甲医院、地铁站的房子,即便价格偏高,也更受青睐。这倒逼房企拿地、开发时,更加注重配套资源的整合,也推动政府加快完善区域配套布局。
物业服务的重要性也愈发凸显,消费者对安保、保洁、维修等基础服务的要求不断提高,同时也关注社区养老、育儿咨询等增值服务。两会明确提出“实施物业服务质量提升行动”,倒逼物业公司优化服务流程、提升服务标准。现在,配套完善、服务优质的社区,已经成为市场“香饽饽”,也推动行业从“建房”向“造生活”转型。
✅影响六:租购并举深化
随着“租购并举”政策持续深化,租房不再是“过渡选择”,而是成为住房消费的重要组成部分。2026年,租赁需求从“能住”转向“住得好”,消费者对租赁房屋的品质、配套、物业服务提出了更高要求,高品质长租公寓、租赁住房更受市场欢迎。
为了支持租赁需求,各地也在持续发力:优化公积金租房提取政策,多子女家庭租房提取公积金可按最高标准执行,减轻租房成本;政府鼓励收购存量商品房,用于保障性租赁住房,既消化库存,也丰富租赁房源供给,契合年轻人、新市民的居住需求。这种变化,打破了“购房唯一”的居住观念,让大家有了更多元的选择,也推动住房供给体系从“重销售、轻租赁”向“租购并重”转型。
��总结:2026年,需求迭代是房地产市场转型的核心动力
从“好房子”主导市场,到改善需求激活循环;从消费者理性购房,到“居住+服务”升级,2026年房地产消费者需求的每一个变化,都在重塑市场格局[参考摘要4]。CF40研究预测,2026年或为房地产下行周期最后一年,2027年有望实现企稳[参考摘要5],而需求端的变革,正是推动行业平稳过渡、迈向高质量发展的关键。
对于购房者来说,读懂这些影响,才能避开坑、选对房;对于房企来说,精准把握需求变化,才能在行业洗牌中站稳脚跟。未来,房地产市场将彻底回归居住本质,“安居”与“宜居”成为核心,行业也将进入“弱复苏、缓平衡、深分化”的筑底阶段[参考摘要4],唯有顺应需求、坚守品质,才能实现长期发展。
声明:本文由入驻焦点开放平台的作者撰写,除焦点官方账号外,观点仅代表作者本人,不代表焦点立场。


