(和樾长宁售楼处)首页网站丨2025【和樾长宁】欢迎您/售楼处电话/地址/备案价/楼盘详情
扫描到手机,新闻随时看
扫一扫,用手机看文章
更加方便分享给朋友
上海和樾长宁售楼处电话:400-8123-664
和樾长宁售楼处电话☎:400-8123-664(官方预约看房热线)
最新消息,长宁上新!2号线北新泾站「和樾长宁」主推约120、143㎡3-4房,最快5月入市!长宁区内中环稀缺供应
2号线北新泾站约300米
越秀招商合作全新住宅定名
和樾长宁
最快5月入市!
主推建面约120、143㎡3-4房
效果图&户型首次曝光!
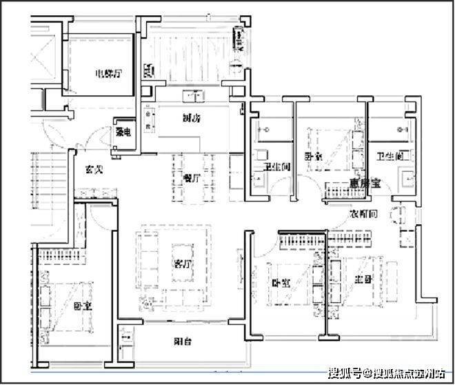
户型图如下:
(过程稿,以开发商发布为准)
约120㎡3房2厅2卫
约143㎡4房2厅2卫:
地块近邻苏州河,距离地铁2号线北新泾站直线距离仅约300米。地块占地约1.12万方,容积率2.2,成交总价218251万元,溢价率约24.53%,楼板价88495元/㎡,装修标准不低于4000元/㎡。
项目位于2号线北新泾站旁约300米,紧贴中环。一方面,环线产生的噪音值得注意。但这一点,三个项目都有影响。
另外一方面,北新泾周边主要有3个地铁上盖的商业体组成,分别是宜嘉坊广场、兆城馥邦汇和申亚珺悦18广场。年代比较久,能级和人气都不算太高。
该地块并非位于长宁的传统豪宅区,但长宁的产业和商业重心正在西移!首先是产业方面,在虹桥古北之后,长宁是抓住了互联网风口的。
最出名的当然是位于娄山关路523号的金虹桥国际中心,也就是拼多多总部,是上海税收百亿楼!
另一个重点则是2号线淞虹路站附近的临空经济园区崛起。在上世纪90年代,临空园区还是典型的江南水乡景象,彼时的古北已经一片欣欣向荣,中山公园也蓄势待发。
2010年后,依托于虹桥优势,临空经济园区迎来蓬勃发展。截止最新,园区已吸引超3千家企业入驻,集聚了联合利华、德国博世等一批国内外知名企业总部,以及爱立信、史泰博、携程网等知名信息服务业企业。俨然是长宁甚至整个西上海的产业源动力之一。
以娄山关路和淞虹路为产业支点,一东一西,长宁西正在形成一整条高端商业办公链条。
「和樾长宁」可售商品房预计共174套,另有22套保障房。
主力户型有两个:建面约120㎡三房两厅两卫、建面约143㎡四房两厅两卫。
项目拟建4幢可售住宅,总高12-14层,楼间距30米,每幢楼都可以拥有不错的采光和视野,部分楼栋底部架空/局部架空;小区内部有下沉式庭院,南侧沿街布置了商业配套,人行、车行出入口布局合理,但未完全实现人车分流!
目前长宁区待售项目极少,在售和待售新盘仅青溪雲邸、宁国府邸和西郊云庐。
青溪雲邸是建面约430-690㎡的别墅住宅;宁国府邸是建面约900-1600㎡的别墅住宅。
西郊云庐项目联动价11.8万/㎡,预计今年年中推出305套房源。
交通方面,距离地铁2号线北新泾站直线距离仅约300米,自驾可通过中环及北横通道通达全城。
混乱的涂鸦打破了常规的束缚,让简约兼具了更多的力量感。
私密场域依旧保持静谧,黑白色基础上搭配了更多的色彩,例如深棕、浅紫等,艺术品的衬托深邃迷人,热络了家的氛围。
整个空间以静、雅、柔传达着家的精气神儿,黑白的交错,棱角的柔和,都是家的本色,都是极简的象征。
示意图
商业方面,近距离有西郊百联,宜嘉坊广场,稍远距离有缤谷广场、巴黎春天、汇金百货、百盛优客城市广场、龙之梦和来福士两大超高能级商业。
医疗上,项目直线向南约600米,就有上海同仁医院,为三级乙等。附近也有一些小医院,神州医院、和睦家医院、西郊骨科医院、南山医院等。
长宁区内中环稀缺供应
2号线北新泾站约300米
越秀招商合作全新住宅定名
「和樾长宁」
主推建面约120、143㎡3-4房
效果图&户型首次曝光!
最快5月入市!
声明:本文由入驻焦点开放平台的作者撰写,除焦点官方账号外,观点仅代表作者本人,不代表焦点立场。


