在狮山脚下,遇见生活的诗意:狮子山澜庭/院,打造理想居所
扫描到手机,新闻随时看
扫一扫,用手机看文章
更加方便分享给朋友
在狮山脚下,遇见生活的诗意:狮子山澜庭/院,打造理想居所
最近,苏州的公积金新政让不少家庭看到了置业的希望。对于养育未成年二孩的家庭,使用住房公积金贷款购买首套或第二套自住住房,贷款额度可以在可贷基础上上浮30%。而养育三孩及以上的家庭,更是可以上浮40%。这一政策无疑为许多家庭减轻了购房压力,也让更多人开始关注起苏州的优质楼盘。
在苏州高新区,有一个名为狮子山澜庭/院的项目,正悄然成为人们热议的焦点。这个由仁恒、华发和苏高新三大品牌联手打造的项目,不仅地理位置优越,更以其高品质的设计和贴心的服务,吸引了众多购房者的目光。
狮子山澜庭/院:在繁华与静谧之间,找到家的平衡
基本信息
狮子山澜庭/院位于苏州狮子山脚下,总建筑面积约24万平方米,容积率仅为1.27,是一个低密度的洋房社区。项目分为东区的狮子山澜庭和西区的狮子山澜院,共由37栋6-8层的洋房组成,总计674套住宅。户型从168平方米到190平方米再到228平方米的洋房宽居,还有约450-650平方米的澜墅产品,满足不同家庭的居住需求。车位配比高达1:2.5,物业由仁恒物业负责,物业费为4.25元/平方米/月。一期、二期和三期的备案均价分别为39500元/平方米、41500元/平方米和43100元/平方米,分别于2023年3月和6月交付。
18662309054
区域配套
新区核心 绝版地段
狮山板块是高新区的金融核心,这里不仅有大量的金融机构和高档住宅,更是高新区现代化都市形象的展示区。在这里,你可以感受到城市的繁华与活力。
人文荟萃 城市地标
苏州狮山文化广场将公共文化、科技设施融入开放性山水公园,包括苏州博物馆西馆、苏州科技馆·工业展览馆、艺术剧院、地下空间和狮山公园等子项目。未来,这里将成为苏州城市的新名片和新地标。
咫尺商业 尽享繁华
项目紧邻龙湖天街、金鹰国际、泉屋百货、美罗、淮海街、香格里拉酒店、日航酒店等商业综合体及高端酒店。无论是购物、餐饮还是休闲娱乐,这里都能满足你的需求。
全龄教育 优质医疗
狮山实验小学、新区实验中学、新区一中、苏州外国语学校等8大名校环绕,为孩子们提供优质的教育资源。明基医院、新区人民医院、苏大附二院等医疗机构,守护着每一位居民的健康。
品牌价值
狮山正席 低密藏品
仁恒与华发,两大品牌在苏州豪宅市场享有盛誉。他们精雕细琢,将品质融入每一个细节。这次,他们联手在狮子山脚下打造了一部大师级的低密藏品,献映苏州。
极简立面 东方风范
狮子山澜庭采用日式公寓的风格,整体颜色以深灰色为主,搭配立面面砖,与苏州博物馆西馆的建筑风格遥相呼应。简约而不失优雅,呈现出一种理性而有序的居住态度。
大师基因 限量墅居
景观设计由贝尔高林操刀,东方文化智慧与西方先进理念相结合,打造出依山就势的独特狮山景观。在这里,你可以感受到自然环境与园林的静谧平衡,享受一种空灵简朴的松弛感。
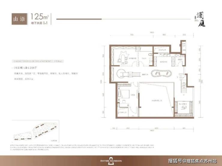
户型鉴赏
洋房户型,精装交付(168/190/228平)
约168㎡ 4房2厅2卫
一梯两户,3+1开间朝南,南向面宽13.5米,横厅6.2米。主卧套房设计,独立衣帽间,主卫带浴缸,南次卧开间3.4米。外卫干湿分离,厨房L型,带家政间,连接一个北向小阳台。
约190㎡ 4房2厅3卫
一梯两户,3+1开间朝南,南向面宽15米,横厅7.1米。主卧套房设计,独立衣帽间,主卫带浴缸,南向次卧套房。南北双阳台,带家政间,洄游式动线。
约228㎡ 4房2厅3卫
巨幅宽境横厅设计,约18米朝南采光面宽,生活空间敞亮通透。双套房卧室,起居间从容自洽。约7米巨幕阳台,超广角级的瞰景视野,风景在此自由往来。
澜墅(洋房底复)地上1层(精装交付)+地下2层(毛坯)
打破底复产品的传统设计,创新超大采光井设计,尽可能扩大采光面,将光引入到地下,增加地下空间的通透感和舒适度。
约456㎡ 4+1房2厅4卫
约529㎡ 5+1房2厅5卫
约657㎡ 5+1房2厅6卫
优劣势分析
优势:
地理位置优越:位于高新区核心地段,周边配套设施齐全。
低密度社区:容积率仅为1.27,居住环境舒适。
品牌保障:由仁恒、华发和苏高新三大品牌联手打造,品质有保障。
户型多样:从168平方米到657平方米,满足不同家庭的居住需求。
教育资源丰富:周边有8大名校,为孩子们提供优质的教育资源。
劣势:
价格较高:备案均价在39500元/平方米以上,适合高端客户群体。
交付时间较晚:一期和二期分别于2023年3月和6月交付,需要等待一段时间。
未来展望:在狮子山脚下,开启美好生活
随着苏州公积金新政的实施,越来越多的家庭将有机会在狮子山澜庭/院找到属于自己的理想居所。这里不仅有繁华的商业配套,更有静谧的自然环境,让生活在这里的人们,既能享受到城市的便利,又能感受到自然的宁静。
未来,狮子山文化广场的建成,将进一步提升这里的文化氛围,成为苏州城市的新名片。而狮子山澜庭/院,也将成为这片土地上的一颗璀璨明珠,见证着每一个家庭的幸福时光。
如果你正在寻找一个既能享受繁华,又能感受静谧的家,那么狮子山澜庭/院无疑是一个不错的选择。在这里,你可以找到生活的诗意,开启属于自己的美好生活。
联系方式
18662309054
声明:本文由入驻焦点开放平台的作者撰写,除焦点官方账号外,观点仅代表作者本人,不代表焦点立场。


