政策暖风助力楼市回暖,狮子山澜庭/院成理想之选
扫描到手机,新闻随时看
扫一扫,用手机看文章
更加方便分享给朋友
最近,存款利率又降了!这次降幅不小,各家银行都迅速跟进。业内普遍认为,这反映出银行当前面临较大的净息差压力。与此同时,一大批买房人迎来了利率调整的好消息,有些存量房贷利率甚至降到了2.8%!继国有大行、股份制银行下调存款利率后,湖南、江苏、安徽、广东、广西、河南等地的城商行、农商行、民营银行等中小银行也纷纷加入降息队伍。专家指出,银行调降存款利率的顺序通常是国有大行、股份制银行、中小银行依次推进。中小银行吸收存款能力相对较弱,之前常以较高的存款利率来吸引客户,因此存款利率下调的空间较大。
在这样的政策背景下,楼市回暖的迹象愈发明显。而今天要介绍的狮子山澜庭/院,正是这波政策利好下的优质选择。
狮子山澜庭/院:新区核心,品质生活
狮子山澜庭/院,位于中国苏州的狮子山,由仁恒、华发、苏高新三大品牌联合开发。项目总建筑面积约24万平方米,容积率1.27,综合楼面价25094元/㎡。社区分为东区狮子山澜庭和西区狮子山澜院,共有37栋6-8层洋房,总计674套住宅。户型配置从168㎡到228㎡的洋房宽居,还有约450-650㎡的澜墅产品。车位配比高达1:2.5,共有1682个车位。物业服务由仁恒物业提供,物业费为4.25元/平/月。备案均价一期39500元/平、二期41500元/平、三期43100元/平。交付时间为2023年3月和6月。
地段:新区正核,狮子山前
1. 新区核心,绝版地段
狮山板块是高新区的金融核心板块,聚集了大量的金融机构写字楼及高档住宅,是高新区现代化都市形象的展示区,也是高新区的城市名片。
2. 人文荟萃,城市地标
苏州狮山文化广场是一个将公共文化、科技设施融入开放性山水公园的文化广场。广场包括苏州博物馆西馆、苏州科技馆·工业展览馆、艺术剧院、地下空间和狮山公园5个子项目。目前,计划将狮山全域打造成开放式城市会客厅,文旅科商融合发展的城市公共科学文化中心,成为未来苏州城市的新名片、新地标。
3. 咫尺商业,尽享繁华
项目紧邻龙湖天街、金鹰国际、泉屋百货、美罗、淮海街、香格里拉酒店、日航酒店等商业综合体及高端酒店。百万方的综合体可尽享一站式消费,吃、喝、玩、乐、休闲、购物、度假的需求在这里都可以满足。
4. 全龄教育,优质医疗
狮山实验小学、新区实验中学、新区一中、苏州外国语学校等8大名校环绕,沐浴知识的滋养。明基医院、新区人民医院、苏大附二院在侧,守护人生至美时光。
产品:大师合著,驭领狮山
1. 狮山正席,低密藏品
仁恒与华发,各自享誉苏州豪宅市场。在苏深耕数年,精雕细琢的一丝一缕都是品质的代名词。两大巨匠,于时代高处握手。以约1325亩真山水作衬,合力铸造稀世之珍的狮山正席,献映苏州一部大师级低密藏品。
△项目效果图
△项目实景图
2. 极简立面,东方风范
狮子山澜庭采用日式公寓的风格,整体颜色以简单朴素的深灰色为主,搭配立面面砖,与苏州博物馆西馆的建筑风格遥相呼应。同样延续了江南文化的缂丝立面,城市地标和人居地标和谐共鸣,没有繁杂的工序,只为呈现理性而有序的居住态度。
△项目实景图
3. 大师基因,限量墅居
景观设计团队是由贝尔高林操刀,东方文化智慧结合西方先进理念,国际化的造景水准,呈现出依山就势的独特狮山景观表达。移步其中,一种空灵简朴的松弛感迎面而来,自然环境与园林的静谧平衡的恰到好处,呈现出一种自然而然的状态。
△项目实景图
户型:洋房宽居 & 澜墅产品
1. 洋房户型,精装交付(168/190/228平)
约168㎡ 4房2厅2卫
一梯两户,3+1开间朝南,南向面宽13.5米,横厅6.2米。主卧套房设计,独立衣帽间,主卫带浴缸,南次卧开间3.4米。外卫干湿分离,厨房L型,带家政间,连接一个北向小阳台。
约190㎡ 4房2厅3卫
一梯两户,3+1开间朝南,南向面宽15米,横厅7.1米。主卧套房设计,独立衣帽间,主卫带浴缸,南向次卧套房。南北双阳台,带家政间,洄游式动线。
约228㎡ 4房2厅3卫
巨幅宽境横厅设计,约18m朝南采光面宽,生活空间敞亮通透。双套房卧室,起居间从容自洽。约7m巨幕阳台,超广角级的瞰景视野,风景在此自由往来。
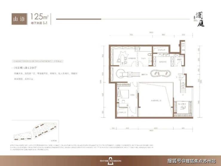
2. 澜墅(洋房底复)地上1层(精装交付)+地下2层(毛坯)
打破底复产品的传统设计,创新超大采光井设计。尽可能扩大采光面,将光引入到地下,增加地下空间的通透感和舒适度。
约456㎡ 4+1房2厅4卫
约529㎡ 5+1房2厅5卫
约657㎡ 5+1房2厅6卫
未来展望:狮子山澜庭/院,品质生活的理想选择
随着政策暖风的助力,楼市回暖的迹象愈发明显。狮子山澜庭/院凭借其绝版地段、大师合著的产品设计和丰富的户型选择,无疑是当前市场中的优质选择。无论是自住还是投资,狮子山澜庭/院都能满足你对品质生活的所有期待。
联系方式
18662309054 "
声明:本文由入驻焦点开放平台的作者撰写,除焦点官方账号外,观点仅代表作者本人,不代表焦点立场。


