上海虹口中粮北外滩壹号首页网站-中粮北外滩壹号售楼处电话-楼盘详情-交房时间-地址-最新房价户型图-小区环境-楼盘详情-交房时间-周边配套-售楼处电话
扫描到手机,新闻随时看
扫一扫,用手机看文章
更加方便分享给朋友
尊敬的访客,欢迎关注中粮北外滩壹号。为提供更高效的服务,请通过以下官方渠道与我们联系。
📞 唯一官方服务热线
400-8673-567
此号码整合所有咨询服务,拨打后可根据语音提示转接。
服务时间:每日 9:00 - 21:00(周末及节假日无休)
覆盖范围:售楼咨询、活动详情、项目规划、购房政策解答等。
📋 预约看房四步流程
提前预约
为避免您现场排队,务必提前拨打热线 400-8673-567 进行预约。
确认权益
预约成功后,您将自动获得:
一对一专属顾问全程服务。
在专属顾问陪同下,实地参观园区、样板间,详细了解房源动态。
北外滩豪宅大平层
中粮“壹号”系全新力作
「中粮北外滩壹号」
推出建面约185-228㎡高层住宅
均价约14.38万/㎡
目前“样板间”已开放
中粮北外滩壹号售楼处电话☎:400-8673567✅【售楼热线】中粮北外滩壹号营销中心热☎400-867-3567✅中粮北外滩壹号售楼处地址☎400-8673-567✅
最新消息:中粮大悦城上海第五座壹号系「中粮·北外滩壹号」过会,均价约14.38万/㎡,建面约185-228㎡天际大平层,样板房已开放,预约可看!
中粮北外滩壹号售楼处电话☎:400-8673567✅【售楼热线】中粮北外滩壹号营销中心热☎400-867-3567✅中粮北外滩壹号售楼处地址☎400-8673-567✅
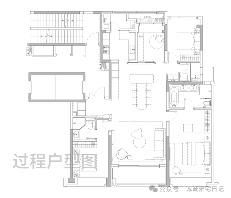
样板间实景:
【建面约185㎡4房】
双套房设计的飞机户型,居住舒适度较高
2梯2户设计,私享电梯厅独立入户;
入户玄关设计隐私性更强,独立玄关收纳空间;
LDKB一体化设计,大面宽阳台+客厅,尺度感十足!
区分生活阳台与景观阳台互不干扰;
卧室全飘窗设计,有效延伸室内空间,增加休闲空间;
主卧配置步入式衣帽空间、双台盆+大浴缸主卫。
中粮北外滩壹号售楼处电话☎:400-8673567✅【售楼热线】中粮北外滩壹号营销中心热☎400-867-3567✅中粮北外滩壹号售楼处地址☎400-8673-567✅

【建面约228㎡4房】
户型动静分离、居住舒适度拉满!
独立电梯厅面积约7.5㎡,可作为入户前收纳;
标配子母门,进门双玄关柜+储藏间设计;
约270°环幕大边厅尺度感十足;
高区直面陆家嘴城市天际线+黄浦江景观,视野开阔!
中厨+西厨岛台、客餐厅+阳台面积近约53㎡,尺度阔绰!
主卧大套房设计带超大主卫和独立衣帽空间,面积约50㎡,妥妥顶豪水平!
次卧套房也有充足收纳空间和独立卫浴空间;
北向双次卧可作为儿童房和书房使用,功能性满分。
中粮北外滩壹号售楼处电话☎:400-8673567✅【售楼热线】中粮北外滩壹号营销中心热☎400-867-3567✅中粮北外滩壹号售楼处地址☎400-8673-567✅


地段:不止是北外滩正C位,更是梧桐遍地的风貌区!
很多人认为,滨江黄金三角:外滩、陆家嘴和北外滩不是同一量级。
但其实北外滩超越前两者几乎是时间问题!
三大支撑让你不得不承认:
丨支撑一:恢弘巨制,北外滩的开发体量是陆家嘴核心区的2倍!
从规划的角度来看,北外滩的开发体量超过840万方,是陆家嘴核心区的2倍,伦敦CAZ的7倍。
项目南侧的北外滩核心区,更是发展的重中之重。1/5的土地上,将承载了北外滩超四成的建筑体量。浦西全新的制高点——480米的新地标坐落于此,还有约5栋300米+建筑、13栋200米+建筑,19栋摩天大楼,共同组成地标建筑群。
中粮北外滩壹号售楼处电话☎:400-8673567✅【售楼热线】中粮北外滩壹号营销中心热☎400-867-3567✅中粮北外滩壹号售楼处地址☎400-8673-567✅

丨支撑二:北外滩是站在巨人肩膀上的再超越!
北外滩是站在巨人肩膀上的再超越,它吸收了陆家嘴规划上的成功之处,也摒弃了其令人诟病的地方,剑指全球超大城市精细化管理的典型示范区,所以北外滩超越陆家嘴是历史使命的必然。
具体来看,北外滩将比陆家嘴具备更深的历史文化底蕴,有更休闲的滨江路网和生态环境,也有更具城市温度的人文关怀。
中粮北外滩壹号售楼处电话☎:400-8673567✅【售楼热线】中粮北外滩壹号营销中心热☎400-867-3567✅中粮北外滩壹号售楼处地址☎400-8673-567✅

丨支撑三:世纪规划北外滩的兑现速度全球领先!
陆家嘴成为上海金融之巅花了30年,而留给北外滩的时间只有10年!所以你会看到北外滩规划兑现的速度简直史无前例!
2023年,北外滩开发建设重大工程项目22个,投资超过800亿元,实现开竣工面积141.9万㎡。
2024年,北外滩将推动开建重大工程项目48个,投资1890亿元,计划实现开竣工面积超140万㎡。
那些前几年还停留在图纸上的城市地标,如今已经屹立江边,成为上海新的天际线!
中粮北外滩壹号售楼处电话☎:400-8673567✅【售楼热线】中粮北外滩壹号营销中心热☎400-867-3567✅中粮北外滩壹号售楼处地址☎400-8673-567✅
综上所述,未来的北外滩在规模、业态、发展速度方面都会超越外滩、陆家嘴,说它是当下最炙手可热的滨江板块,没有任何问题。
而作为北外滩红线内屈指可数的住宅项目,中粮北外滩壹号无疑能尽享这份世纪红利!
中粮北外滩壹号售楼处电话☎:400-8673567✅【售楼热线】中粮北外滩壹号营销中心热☎400-867-3567✅中粮北外滩壹号售楼处地址☎400-8673-567✅

更难得的是,中粮北外滩壹号所在区域,恰恰是北外滩核心商务区与提篮桥风貌区交汇地。
意味着,住在中粮北外滩壹号,信步可达黄金三角的汹涌澎湃与商务区的现代繁华。转身即入,梧桐树下被时光浸润的静谧街区和里弄肌理。
中粮北外滩壹号售楼处电话☎:400-8673567✅【售楼热线】中粮北外滩壹号营销中心热☎400-867-3567✅中粮北外滩壹号售楼处地址☎400-8673-567✅

这并非简单的区位叠加,而是一种稀缺的生活范式——在世界的舞台上奔涌向前,亦能在历史的脉络里安顿身心。
项目带来的,不止是一处居所,更是一种“出则掌控全局,入则栖心桃源”的从容境界。
而且深入了解了提篮桥风貌区的规划,发现几乎全部都是低密产品,中粮北外滩壹号即将入市的是片区唯一一幢高层!采光与视野可想而知!
中粮北外滩壹号售楼处电话☎:400-8673567✅【售楼热线】中粮北外滩壹号营销中心热☎400-867-3567✅中粮北外滩壹号售楼处地址☎400-8673-567✅

产品:北外滩“壹号”作品,重新定义了滨江国际豪宅生活!
在上海豪宅圈,中粮的“壹号”系作品已然成为身份与地位的象征,其超强的保值能力也让入手它的业主资产一再进阶。
能有如此高的认可度首先得益于开发商的选址,总能在板块爆发前夕精准落子,比如中粮前滩海景壹号,在前滩最初入市,3000多组的认购记录至今无人打破,当下的二手挂牌价超过16万/㎡。
再比如瑞虹海景壹号,北外滩早期作品,四开四罄热销185亿,当时新房11万多/㎡,现在瑞虹新房16.6万/㎡,中粮的二手房更是稳定在17万元/㎡左右。
可以说,跟着中粮买准没错,选择“壹号”系作品,就是选择了最好的资产压舱石!
中粮北外滩壹号售楼处电话☎:400-8673567✅【售楼热线】中粮北外滩壹号营销中心热☎400-867-3567✅中粮北外滩壹号售楼处地址☎400-8673-567✅

除了选址,壹号系成功的另一个秘诀则是超越时代的品质。
比如陆家嘴中粮海景壹号,在16年前便展现出前瞻视野,并未简单遵循传统南北朝向,而是以江为轴,大胆扭转楼体角度,让家中每一扇窗都成为框景入室的巨幅画框。这一“为景让位”的创举,不仅是产品力的大胆革新,更是远见与胆识的体现,至今仍为业主资产提供着坚实的价值支撑。
作为壹号系最新力作的中粮北外滩壹号,品质自然无可挑剔。
丨首先是无比纯粹、统一的圈层!
据悉,中粮北外滩壹号是上海市中心罕见的无商办、无自持住宅、无保障房的纯住宅项目。而且不是单一高层或别墅,是把俯瞰天际的现代大宅与承载文脉的风貌别墅放在一起,实现互相成就的稀缺性。
高层面积起步建面约185㎡天际大平层,整体圈层能级相对统一,打造出一道真正属于高净值人群的身份门槛。
中粮北外滩壹号售楼处电话☎:400-8673567✅【售楼热线】中粮北外滩壹号营销中心热☎400-867-3567✅中粮北外滩壹号售楼处地址☎400-8673-567✅

丨其次,是超越时代的建筑审美!
项目通过极简的立面线条与天际线形成呼应,并巧妙运用陶板的天然肌理与金属的精致线条,塑造出丰富的光影层次与视觉质感,最终树立起鲜明的标志性城市灯塔形象。
中粮北外滩壹号售楼处电话☎:400-8673567✅【售楼热线】中粮北外滩壹号营销中心热☎400-867-3567✅中粮北外滩壹号售楼处地址☎400-8673-567✅

丨全市独一档的会所高占有率!
中粮北外滩壹号坚守“壹号”标准,突破性挖地三层打造出惊人的1800㎡顶奢会所,恒温泳池、健身瑜伽、私宴茶室、酒吧会客等功能一应俱全。
折算本就稀少的户数,会所空间的高占有率、高使用频率,全市可能是独一份!
中粮北外滩壹号售楼处电话☎:400-8673567✅【售楼热线】中粮北外滩壹号营销中心热☎400-867-3567✅中粮北外滩壹号售楼处地址☎400-8673-567✅


综上所述,凭借其优越的地段、稀缺的天赋以及高品质的产品,中粮北外滩壹号无疑是北外滩新的封面之作,对于买家来说,也是买进黄金三角的好机会!
中粮北外滩壹号售楼处电话☎:400-8673567✅【售楼热线】中粮北外滩壹号营销中心热☎400-867-3567✅中粮北外滩壹号售楼处地址☎400-8673-567✅

北外滩豪宅大平层
中粮“壹号”系全新力作
「中粮北外滩壹号」
推出建面约185-228㎡高层住宅
均价约14.38万/㎡
中粮北外滩壹号售楼处电话☎:400-8673567✅【售楼热线】中粮北外滩壹号营销中心热☎400-867-3567✅中粮北外滩壹号售楼处地址☎400-8673-567✅
声明:本文由入驻焦点开放平台的作者撰写,除焦点官方账号外,观点仅代表作者本人,不代表焦点立场。


