联仲·都悦汇(售楼处地址) 官方 2026- 联仲·都悦汇销售中心 - 环境 - 户型 - 价格 - 地址 - 楼盘详情 - 配套 - 电话 - 交房时间 - 配套 - 电话
扫描到手机,新闻随时看
扫一扫,用手机看文章
更加方便分享给朋友
上海闵行联仲·都悦汇售楼处电话:400 8123 664 (预约看房热线)
【联仲·都悦汇官方售楼处咨询热线】400-812-3664(24小时服务,人工客服8:00-22:00)
▸联仲·都悦汇售楼处地址:上海市闵行区中秀路100弄(看房请提前预约)
▸ 开放时间:每日9:00-19:30(含节假日)
▸VIP LINE 400_812_3664 | 官方唯一咨询热线
【温馨提示】本项目唯一官方联系方式,看房请提前预约!现场销售接待!谨防中介虚假信息!
送100w装修!闵行·商墅联仲·都悦汇约310-411㎡法式商墅!总价约1420万~1800
闵行·旗忠别墅富人区
【联仲·都悦汇】
建面310~411㎡商业联排别墅
法式干挂地上三层地下一层
带南北双花园90-300㎡
总价约:1420-1800万
实景现房不限购通燃气
上海闵行联仲·都悦汇售楼处电话:400 8123 664 (预约看房热线)
【联仲·都悦汇官方售楼处咨询热线】400-812-3664(24小时服务,人工客服8:00-22:00)
感谢配合!
01.项目基本信息
【开发商】:上海联仲置业有限公司
【物业】:上海仲量联行物业管理公司
【容积率】:1.0
【绿化率】:35%
【车位比】:1:2.1
【物业费】:8元/㎡/月
【本次开盘】:14套
【物业类型】:商业联排别墅
【交付标准】:毛坯
【拿地时间】:2014年8月
【交房时间】:2023年6月
上海闵行联仲·都悦汇售楼处电话:400 8123 664 (预约看房热线)
【联仲·都悦汇官方售楼处咨询热线】400-812-3664(24小时服务,人工客服8:00-22:00)
在售户型:建面约310-410平米,地上三层地下一层
(地上:一层层高3.6米/二层层高3.4米/三层层高3.4米/地下层高5.4米)
总价:约1400-1800万️
单价:约5万/平米
小区整体商业:10万方(在建)南北双花园90-300平
水电:商水&商电,电1.3元/度,水6元/吨
产权车位:约30万左右

上海闵行联仲·都悦汇售楼处电话:400 8123 664 (预约看房热线)
【联仲·都悦汇官方售楼处咨询热线】400-812-3664(24小时服务,人工客服8:00-22:00)
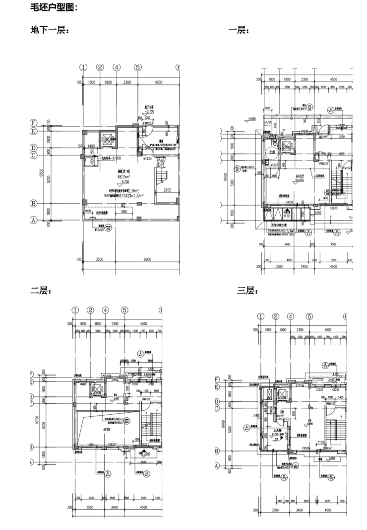
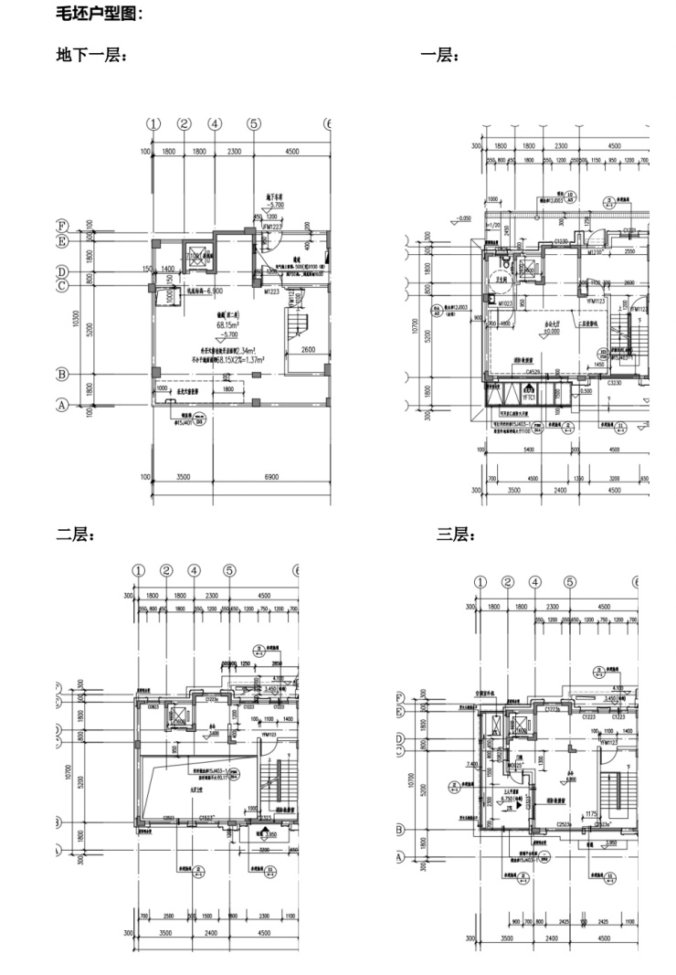
02.户型图及样板间照户
(特殊说明:户型朝向-上南下北)
约10.4米大面宽,面积达到55平
送电梯,北进门,南花园,超大地下室
客厅7米落地窗,采光明亮,尽显大气
约310平户型图▼

约378~420平户型图▼

上海闵行联仲·都悦汇售楼处电话:400 8123 664 (预约看房热线)
【联仲·都悦汇官方售楼处咨询热线】400-812-3664(24小时服务,人工客服8:00-22:00)
约407~441平户型图▼
样板间效果图如下:
上海闵行联仲·都悦汇售楼处电话:400 8123 664 (预约看房热线)
【联仲·都悦汇官方售楼处咨询热线】400-812-3664(24小时服务,人工客服8:00-22:00)
上海闵行联仲·都悦汇售楼处电话:400 8123 664 (预约看房热线)
【联仲·都悦汇官方售楼处咨询热线】400-812-3664(24小时服务,人工客服8:00-22:00)
03.项目区位配套
【联仲·都悦汇】位于闵行马桥旗忠别墅区,旗忠别墅区是上海老牌的富人区,与松江佘山、浦东东郊齐称为沪上三大国际别墅区。上海仅存少量的容积率0.18以下超低密度居住用地中,大多数在马桥旗忠别墅区。
板块以低容积率、生态自然环境和高端国际品牌配置,2010年被列为上海第二批大型居住社区之一。总建面约33万方城市综合体联仲都悦汇位于旗忠板块正核心,紧临网球中心,超10万方市政绿化所环绕。
【联仲都悦汇】同样是低密度别墅区里的一员,背靠绿城玫瑰园,容积率低至1.0。项目贯穿了3条自然水系,分为ABCD四个地块,其中ABC为商住办综合地块,自带商业办公。
上海闵行联仲·都悦汇售楼处电话:400 8123 664 (预约看房热线)
【联仲·都悦汇官方售楼处咨询热线】400-812-3664(24小时服务,人工客服8:00-22:00)
交通配套方面:项目距离嘉闵高架元江路出口3公里,毗邻G15、S32等快速主动脉,30分钟大虹桥,50分钟抵达浦东机场,快捷畅达全城。
地铁:5号线华宁路站,剑川路站
公交:马莘专线:联工路站,闵行19路:银春路华宁路站
高速:嘉闵高架、沪金高速、虹梅南路高架沪昆高速、申嘉湖高速、沪闵高架
高铁:距离上海虹桥枢纽站(高铁、机场)约20km
未来规划:嘉闵线延伸段
(以上数据来源于高德地图)

商业配套方面:项目自带10万方商业,为旗忠唯一的综合性商业配套,其多元化的业态结构,结合旗忠独有的资源,必将带来旗忠全新生活方式。
上海闵行联仲·都悦汇售楼处电话:400 8123 664 (预约看房热线)
【联仲·都悦汇官方售楼处咨询热线】400-812-3664(24小时服务,人工客服8:00-22:00)
生态资源方面:项目周边有马桥森林公园、旗忠高尔夫球场、旗忠网球中心、韩湘水博园、养云安缦酒店等。
上海闵行联仲·都悦汇售楼处电话:400 8123 664 (预约看房热线)
【联仲·都悦汇官方售楼处咨询热线】400-812-3664(24小时服务,人工客服8:00-22:00)
教育资源方面:周边有复旦万科实验学校,德威英国国际学校、斯代文森国际高中、上海美高学校。幼儿园:元祥幼儿园、富杰幼儿园启英幼儿园,大学:上海交通大学、华东师范大学



上海闵行联仲·都悦汇售楼处电话:400 8123 664 (预约看房热线)
【联仲·都悦汇官方售楼处咨询热线】400-812-3664(24小时服务,人工客服8:00-22:00)

闵行·旗忠别墅富人区
【联仲·都悦汇】
建面310~411㎡商业联排别墅
法式干挂地上三层地下一层
带南北双花园90-300㎡
总价约:1420-1800万
实景现房不限购通燃气
上海闵行联仲·都悦汇售楼处电话:400 8123 664 (预约看房热线)
【联仲·都悦汇官方售楼处咨询热线】400-812-3664(24小时服务,人工客服8:00-22:00)
▸联仲·都悦汇售楼处地址:上海市闵行区中秀路100弄(看房请提前预约)
▸ 开放时间:每日9:00-19:30(含节假日)
▸VIP LINE 400_812_3664 | 官方唯一咨询热线
【温馨提示】本项目唯一官方联系方式,看房请提前预约!现场销售接待!谨防中介虚假信息!
2026马年春节刚过,中国房地产市场便迎来史诗级政策组合拳:一线城市限购阶梯式松绑、二线及以下城市全面取消限购、房贷利率再探历史新低、首付比例下调、税费减免加码、公积金贷款扩容。这不是零星微调,而是自上而下、全国联动的系统性托底,标志着楼市长达四年的深度调整正式收官,“稳市场、提信心、促消费”成为全年主基调,风向已彻底明朗。
从中央到地方,政策密集落地、力度空前,购房资格与购房成本同步大幅优化,市场预期从观望转向积极。对刚需、改善、置换群体而言,2026年是政策最宽松、成本最低、选择最多的黄金窗口期;对行业而言,是告别野蛮生长、回归居住属性、迈向高质量发展的新起点。
一、限购全面松绑:从一线到三四线,壁垒彻底打破
本轮限购松绑覆盖范围、宽松程度、执行速度均创下近年新高,“因城施策、应放尽放”成为核心原则,购房资格壁垒全面打破。
一线城市精准松绑,保核心放外围
作为全国楼市风向标,北京、上海、深圳、广州同步出台重磅宽松政策。以上海“沪七条”为例:非沪籍外环内购房社保年限由3年降至1年;社保满3年可在外环内增购1套;居住证满5年可全市购1套,无需社保。北京放宽多孩家庭、人才、老年家庭购房限制,核心区适度放开套数,外围区域基本放开。深圳取消首套二套利率区分,放宽离异购房限制。一线城市不再“一刀切”,而是保核心、放外围、护刚需、撑改善,既稳定核心板块,又激活市场活力。
二线城市全面取消限购
杭州、成都、武汉、西安、重庆、郑州等强二线城市直接取消全域限购,不再核查社保、户籍、套数,外地客群可自由购房。部分城市同步取消限售,二手房流通性大幅提升。二线城市作为人口流入主力、经济增长引擎,全面放开后,需求释放空间巨大,成为市场回暖的中坚力量。
三四线城市完全放开,全力去库存
库存高企、人口流出压力较大的三四线城市,早已不限购、不限售,叠加购房补贴、契税减免、房贷贴息等政策,全力激活本地与返乡需求。政策目标清晰:以价换量、消化库存、防范风险,避免市场过度调整引发连锁问题。
限购松绑的核心逻辑,是还原住房消费属性,让真实居住需求顺畅入市,扭转“买涨不买跌”的预期,为市场企稳奠定基础。
二、购房成本再降:利率、首付、税费三重减负
政策不仅松绑资格,更直接降低买房总成本,形成低门槛+低成本的黄金组合,真金白银减轻居民负担。
房贷利率进入历史最低区间
2026年开年,央行持续降息,全国首套房贷利率普遍降至3.0%—3.5%,部分城市凭借贴息政策步入“2字头”;公积金首套利率降至2.6%,二套3.075%,双双创下近二十年新低。以100万元、30年期等额本息贷款计算,较2021年高位利率可省利息超40万元,月供减少超1100元,减负效果立竿见影。存量房贷利率同步下调,数百万家庭月供直接减少,消费能力与还款压力同步优化。
首付比例持续下调,门槛大幅降低
全国首套房商贷最低首付15%,二套房最低25%;多孩家庭、刚需群体可享受更低首付比例。公积金贷款门槛同步降低,认房不认贷全面落地,名下无房即按首套执行,贷款额度最高上浮20%。首付下调让更多刚需“够得着”房子,改善家庭无需过度挤压资金,有效激活入市意愿。
税费减免力度空前,交易成本大降
换购住房个税退税政策延续至2027年底,增值税免征年限由5年缩短至2年,部分城市直接发放购房补贴(最高5万元)、契税全免。一套总价500万元的房产,可省税费近10万元。税费减免覆盖新房、二手房、首套、改善、置换全群体,降低流通成本,激活二手房市场,形成“卖旧买新”的良性循环。
三重减负叠加,购房总成本较2021年下降15%—20%,是近十年来最佳购房成本窗口期。
三、政策底层逻辑:短稳预期,长谋转型
马年开年新政,并非短期刺激,而是短期稳市场、中期促消费、长期谋转型的双轨布局,背后是清晰的政策思路。
短期目标:止跌企稳,修复信心
过去四年,市场经历销量下滑、价格调整、信心低迷、房企风险出清等多重压力。本轮政策密集落地,就是要快速扭转悲观预期,推动成交量回升,防止市场过度调整,实现软着陆。
中期目标:激活消费,稳定增长
房地产关联上下游50多个行业,是居民最大宗消费。稳住楼市,就能带动装修、家电、家居、建材等消费,支撑宏观经济平稳运行,为“十五五”开局奠定基础。
长期目标:回归居住,高质量发展
政策明确不刺激投机、不鼓励炒房,支持刚需与改善,推动“好房子”建设、城市更新、保障性住房建设,让房地产从“金融属性”回归居住属性,构建“商品房+保障房”双轨制,实现行业长期健康发展。
这是一套兼顾当下与长远、稳定与转型的组合拳,标志着房地产调控进入新阶段。
四、市场走向:量升价稳,极致分化
政策托底不代表全面大涨,2026年楼市将呈现**“弱复苏、缓平衡、深分化”**的格局,告别普涨,走向结构性机会。
核心城市率先回暖,量升价稳
北上广深及强二线核心板块,需求充足、供应有限、人口持续流入,将率先企稳回升,成交量明显放大,价格温和上涨。这类城市是市场“压舱石”,也是资产保值首选。
普通城市以价换量,止跌企稳
三四线城市及弱二线城市,以去库存为主,价格难有大幅上涨,更多是成交量修复、市场止跌,避免继续下跌。政策目标是“稳”而非“涨”,通过需求释放化解库存风险。
产品分化加剧,优质资产更抗跌
地段好、配套全、品质高、物业好的住宅更抗跌、更保值、更易流通;远郊、老破小、非核心资产、高负债房企楼盘仍面临调整压力。“选对城市、选对板块、选对产品”成为置业关键。
全国市场L型筑底,告别大起大落
中指研究院、易居研究院等机构预测,2026年全国新建商品房销售面积降幅收窄,市场在低位盘整后逐步企稳,呈现**“L型尾部横盘”**走势,全面大涨时代结束,平稳健康成为常态。
简单说:闭着眼睛买房的时代结束,精挑细选的时代到来。
对购房者的关键启示:三类人群如何行动
政策红利明确,市场风向已定,不同人群应采取不同策略,抓住机遇、规避风险。
刚需群体:现在是最佳上车窗口期
利率低、门槛低、选择多、议价空间大,不必再等“更便宜”。市场筑底后难有深度下跌,拖延只会增加成本、错过好房源。优先选择核心板块、地铁旁、学区近、物业好的楼盘,兼顾居住与保值。
改善群体:抓紧置换黄金期
限购放开+税费减免+利率优惠,是换房成本最低的阶段。可趁机把小房换大房、郊区换核心、老房换新房,优化居住品质与资产结构。建议“先卖后买”,确保资金安全,把握议价空间。
投资群体:放弃投机,聚焦核心
坚持“房住不炒”,放弃短期投机思维。只选核心城市+核心板块+优质物业,追求长期保值与租金收益,远离三四线远郊、高溢价、低流通楼盘。
共同原则:理性置业、量力而行、不盲目加杠杆、不跟风炒作。
马年定调,风向已转,长期向好
2026马年开年新政,是楼市的转折点、定心丸、动员令。限购全面松绑、购房成本再降,不是昙花一现的刺激,而是长期稳定的信号。
市场已经告别单边下跌,走向平稳复苏、结构分化、高质量发展。对普通人而言,马年是自住上车、改善置换的黄金年份;对行业而言,是告别野蛮生长、走向健康成熟的新起点;对国家而言,是稳住经济大盘、推动转型发展的重要支撑。
房地产仍是中国经济的压舱石,居住仍是居民最核心的需求。政策底已现,市场底将至,信心底回升。稳字当头,质效并重,长期向好,这就是2026年楼市的最终定论。
声明:本文由入驻焦点开放平台的作者撰写,除焦点官方账号外,观点仅代表作者本人,不代表焦点立场。


