保利姑苏瑧悦(苏州)保利姑苏瑧悦房型|保利姑苏瑧悦户型图_交通地铁_楼盘详情
扫描到手机,新闻随时看
扫一扫,用手机看文章
更加方便分享给朋友
苏州「保利姑苏瑧悦」
售楼处电话:400-8228-664(预约热线)
如有问题欢迎来电咨询,专业一对一热情服务,让您用专业眼光去买房。
楼盘项目全面介绍,本电话为开发商提供线上售楼电话,楼盘项目全面介绍(包含楼盘简介,房价,价格,楼盘地址,户型图,交通规划,备案价,项目配套,楼盘详情,售楼处电话,最新消息,最新详情,周边配套,最新进展等详情咨询)
保利·姑苏臻悦是保利“悦”字系产品,此前同为悦系品牌的“琅悦”已在狮山落地。
保利·姑苏臻悦 效果图
根据此前规划公示,保利·姑苏臻悦规划打造10幢住宅产品,其中1、4#为7F,3、7、10#为16F,2、6#为9F,5、8#为10F,9#为6F,整个项目仅276户。
保利姑苏瑧悦外立面,以“苏锦”针织的横平竖直美学为灵感,演绎为框体线条造型和简洁舒展的立面肌理,极具辨识度。
保利·姑苏臻悦打造建面约143㎡、159㎡、176㎡,三大改善户型。
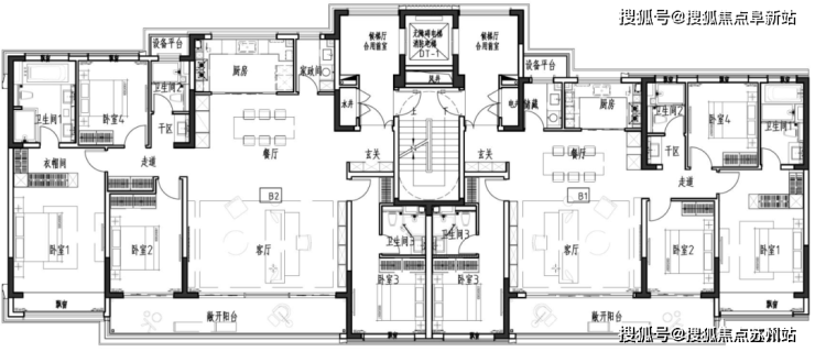
此前公示了四种户型图。
高层3、10#,两梯四户设计,标准层户型为四室两厅两卫。南向面宽约11.8米,约8.2米阔景阳台与南向次卧相连,采光十足。

高层7# 两梯两户设计,标准层户型为四室两厅三卫。南向面宽约14.3米,南向两间套房设计,无论是尺寸感还是舒适度,拿捏~

4、8、9#两梯两户设计,标准层户型为四室两厅三卫。南向面宽约14.4米。

1、2、5、6#为一梯两户设计,标准层户型为四室两厅三卫,南向面宽约16米,厨房、餐厅、客厅、阳台相连,视野与空间无限延伸。进门处还配置了家政间,增加了存储空间。

土拍回顾——
2023年8月6日,苏地2023-WG-36号地块,开拍后仅1个小时,历经28轮竞价后,被保利发展拿下,楼面价约27561.91元/㎡,溢价率12.15% !

售楼处电话:400-8228-664(预约热线)该地块属于姑苏区金门板块,位于金门路北、后文家巷西。地块一路之隔便是姑苏金茂府。地块位置也不错,生活颇为便利,但周围都是老旧小区,城市界面需提升。

2012年,金茂以总价23.2亿元,拿下苏地2012-G-98号地块(即姑苏金茂府),成为苏州当年的总价地wang,此前备案均价在2.5-3.5万/㎡,如今姑苏金茂府二手房挂牌均价在4.4万/㎡。

根据公示内容,和悦里塘雅苑拟建20幢叠拼+洋房+小高层住宅产品。其中9幢为4+1F叠拼,11幢为11F洋房、2幢为17F小高层住宅产品。

图片来源:苏州自然资源和规划局网站
叠拼方面,一梯两户,但都是双开门,有独立的入户玄关,相当于一梯一户。
整体户型设计上下叠的一层为1个卧室,大横厅,餐客厅一体,1个卫生间外加一个储藏室的设计,可满足家庭聚餐、会友等需求。

▲下叠

▲上叠
洋房方面,一梯两户的设计,但是都有双开门,设有独立的入户门厅。
户型方面为4房3卫的设计,四开间朝南,大横厅设计,阳台还连接卧室阳台,整个室内采光度通风度更高,自然居住体验也更舒适。3卧室朝南,其中2个是套房,全屋飘窗。

高层方面,为两梯两户,一层两个户型。
西边户为3房2卫的户型设计,餐客厅一体,大横厅设计,三开间朝南,两个卧室朝南,其中一个为套房主卧,全屋飘窗。
东边户也是3房2卫的户型设计,和西边户仅有的区别就是竖厅。购房者可根据自己的喜好选择。

同步公示的还有洋房的外立面,大面积玻璃,品质感还是可见一斑的。

周边配套:
和悦里塘雅苑位于相城元和片区,紧邻高铁新城,交通自然没话说。
苏州北站+地铁2号线+太阳路快速路,无论是对外还是对内交通都颇为方便快捷。

图源:今日相城
商业配套方面,吾悦广场、圆融、大悦城均已运营,板块内还有天虹、繁花等商业综合体,从规划图中也可看出,项目周边还规划了商业用地。
吾悦广场实景图
教育方面,南侧有蠡口实验小学和蠡口中学,可满足小业主的入学要求。
苏州买房必看!各板块优劣势清晰定位分析!
其实哈,各个板块它都是有抗性的,不用听信,今天说某某板块不能买,某某板块不能买,今天特地单独说说每个版块的克星,别急,都有雨露均沾。
首先:吴中太湖新城:普遍都加精装包,规划起点高,落地受疫情影响大概率会延缓。
高铁新城未来的规划是核心交通枢纽,地理位置靠北,将来是否会形成商务区有待验证。
平江新城:几乎全以大高层为主,距离地铁站最近的也要一公里,两个盘距离目的地比较近,沪宁高速以南。商业以及烂尾的比较多,以北以住宅为主,成型还要几年的时间。
科技城:交通商业配套使硬伤,地处苏州的最西端,发展空间上受到制约,现在主要靠学区调整,更多的人还是期待十年后的地铁。
太湖科学城:位置较远,板块内还有待拆迁的住宅,临近省道,大车较多。
园区要么买不到,要么在园区的边缘。娄葑周边汽车行业以及通园路上的厂区较多,一边高价一边高速。
花港:东面、北面大片的自建房一言难尽,造成了地铁站周边的整体环境一般。
胥口:工厂比较多,目前没有什么重大规划,城市界面将会保持比较长的一段目前的现状。
太湖度假区:位置相对偏远,一条地铁和高架也没有彻底盘活这个板块,学校和商业匮乏的。
木渎:古镇板块前几年冲得叫门,这几年价格一直在回落,早年的民房和小厂太多。
吴中城南:目前工厂比较多,城市界面相对一般。
尹山湖:利好基本出尽,除独墅湖第二隧道能够打通到高教区的距离外,也没有后续的其他的利好了。学区也一直受到诟病.。
甪直目前城市界面比较差,没有大型配套的商业。
浒墅关:早些年规划较乱,安置房,厂房,自建房,商品房比较混杂。
北双湖:位置偏远,除了从北面到园区比较近以外,其他配套都不是特别的完善。
中央公园及元和:基本都是以纯住宅为主,整体没有其他的配套大规划。
苏州「保利姑苏瑧悦」
售楼处电话:400-8228-664(预约热线)
如有问题欢迎来电咨询,专业一对一热情服务,让您用专业眼光去买房。
楼盘项目全面介绍,本电话为开发商提供线上售楼电话,楼盘项目全面介绍(包含楼盘简介,房价,价格,楼盘地址,户型图,交通规划,备案价,项目配套,楼盘详情,售楼处电话,最新消息,最新详情,周边配套,最新进展等详情咨询)
声明:本文由入驻焦点开放平台的作者撰写,除焦点官方账号外,观点仅代表作者本人,不代表焦点立场。


