金融街融悦沁庭|金融街融悦沁庭怎么样?吴中太湖新城纯洋房评测-户型-地铁-学校-价格
扫描到手机,新闻随时看
扫一扫,用手机看文章
更加方便分享给朋友
最近苏州的购房政策迎来了重大利好,限购全面放开!现在不论您是本地还是外地朋友,购买新房或二手房,都不再需要社保,也不限制套数和面积,真正实现了“随便买”。政策春风已至,正是安家苏州的好时机。而说到安家,吴中太湖新城这个冉冉升起的热点板块,尤其值得关注。今天要为大家介绍的,正是坐落于此的稀缺纯洋房社区——金融街融悦沁庭。
一座值得托付的醇熟住区
金融街融悦沁庭坐落于发展迅猛的吴中太湖新城,是一个纯粹的7-10层洋房社区。整个小区仅609户人家,容积率低至1.6,车位配比高达1:1.5,居住舒适度非常高。项目由“中国华尔街缔造者”金融街控股,与区域开发主力军苏州国太发展联袂打造,这是金融街在苏州的第三座“融悦系”作品,实力与品质双重保障。
双轨交汇,畅达全城
出行非常便利!项目距离地铁4号线和在建的7号线“木里站”仅约150米,是名副其实的双地铁盘。周边还有友新高架、东太湖大道、沪常高速等城市干道环绕,无论是日常通勤,还是周末前往长三角其他城市游玩,都能轻松畅行。对于考虑在苏州买房的购房者来说,这样的交通优势极具吸引力。

名校为邻,成长无忧
孩子的教育是头等大事。项目与华中师范大学苏州湾实验小学仅一路之隔,同时周边还汇聚了华中师范大学苏州实验中学、北美国际高级中学等多所优质学校,从幼儿园到中学的全龄段教育配套就在家门口,为孩子的未来成长保驾护航。选择在吴中太湖新城安家,意味着为下一代提供了优越的教育配套。

全能配套,兑现丰盈生活
在这里,生活绝不乏味。逛街有永旺梦乐城、歌林小镇;看剧有橙天嘉禾360剧场;休闲有天鹅湖公园、太湖生态大堤;未来还有在建的金融街融悦湾中心、苏州市立医院总院等重磅配套陆续落地。可以说,工作、生活、娱乐、健康所需,一切皆在掌握之中。金融街融悦沁庭所在的区域,其成熟的生活配套能满足家庭的全方位需求。
匠心精工,诠释品质生活
金融街融悦沁庭在品质上毫不妥协。外立面采用了高成本的干挂铝板和通透的三玻两腔LOW-E玻璃,不仅美观现代,更能有效保温降噪。室内则贴心标配了中央空调、新风、地暖“三大件”,甚至还配备了提升生活品质的软水系统,装修选用国际知名品牌,细节处处体现匠心。这正是金融街控股对改善型住宅品质的执着追求。


阔景户型,演绎空间艺术
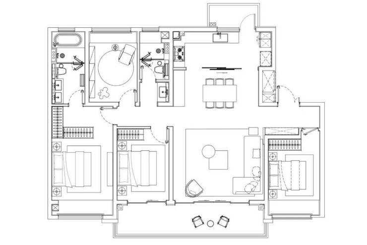
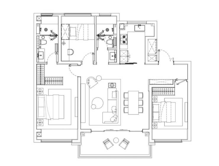
项目主打建面约115-152㎡的改善户型,得益于洋房产品的高得房率,室内空间非常阔绰。
约115㎡“心悠”户型:三开间朝南,拥有约5.5米宽厅和进深约2米的大阳台,采光极佳。
约130㎡“心悦”户型:创新LDKB一体化设计,双联阳台,可打造3+1灵动空间。
约152㎡“心雅”户型:四开间朝南,配备中岛台厨房和南北双阳台,尺度感堪比很多项目的170㎡户型,是终极改善的优选。这些户型设计充分考虑了现代家庭的居住需求。
在此,预见未来的诗意栖居
当宽松的政策遇上稀缺的产品,价值便不言而喻。在吴中太湖新城这片热土上,选择金融街融悦沁庭,不仅是选择了一处低密、舒适、配套齐全的居所,更是选择了一种面向未来的生活方式。它用纯洋房的纯粹圈层、双地铁的便捷、全维的配套和金融街的匠心,为您承载起关于家的所有美好想象。对于正在寻找苏州新房的您来说,这是一个不容错过的优质选择。
如果您对这个稀缺的纯洋房社区感兴趣,欢迎随时致电咨询。 (金融街融悦沁庭)售楼处电话:18662309054(微信同号)
(金融街融悦沁庭)售楼处电话:18662309054(微信同号)
声明:本文由入驻焦点开放平台的作者撰写,除焦点官方账号外,观点仅代表作者本人,不代表焦点立场。


