2025招商中旅·观境售楼处(招商中旅·观境)售楼处电话—招商中旅·观境最新房价-楼盘详情-户型配套-容积率
扫描到手机,新闻随时看
扫一扫,用手机看文章
更加方便分享给朋友
上海宝山招商中旅·观境售楼处电话:400-8123-664【预约看房热线】招商中旅·观境售楼处电话:4008123664【售楼处电话/地址】招商中旅·观境售楼处电话:400-812-3664【开发商认证】
同内环豪宅同级别的精装标准
超配酒廊,泳池,健身等功能的星级会所
下沉庭院、架空层、酒店式入口、奢华公区
宝山纯粹改善的会所大宅
招商中旅·观境
五批次建面89-110㎡3房
已过会 即将开启认购
上海宝山招商中旅·观境
售楼处电话:400-8123-664(预约看房热线)
上海招商中旅·观境官方售楼处电话:拨打4008123664即可咨询楼盘详情_房价、户型、周边配套及交通、地址
Shanghai Baoshan China Merchants CTS Guan Jing
Sales Office Hotline: 400-8123-664 (Property Viewing Appointment Hotline)
Shanghai China Merchants CTS Guan Jing Official Sales Office Hotline: Call 400-8123-664 for inquiries about property details, pricing, unit types, surrounding amenities, transportation, and address.
1地段
上海宝山招商中旅·观境售楼处电话:400-8123-664【预约看房热线】招商中旅·观境售楼处电话:4008123664【售楼处电话/地址】招商中旅·观境售楼处电话:400-812-3664【开发商认证】招商中旅·观境毗邻7号线潘广路站,2站顾村公园,并途经上大、长寿路,直达静安寺.
交通条件优越:紧邻地铁7号线,4站抵达中环南大、快速链接长风、静安寺、长宁古北、上海南站、紫竹高新区等多个城市节点;宝嘉线(规划中),互通嘉闵线(在建),13站通达大虹桥.
头部资源汇聚:约1.5公里菊盛公园,约2,8公里网红生活目的地顾村公园,相邻民办华曜实验学校、厚仁小学、菊泉学校、乐之中学、以及华山医院宝山园区(教育设施与社区间的招生对应关系由当地政府教育主管部门确定)
大家知道,这里规划了招商花园城X,招商时代乐章也在隔壁,可以说共筑潘广路TOD大城.
上一个招商花园城X项目位于浦东曹路,秉持“X+商业”差异化策略,打造了曹路市集、室外36米的“天环飞瀑”、屋顶星际跑道等特色场景,并以超200个的全业态品牌数量,超50%的区域首店,成功点燃区域消费热情.
招商中旅·观境售楼处电话:400-8123-664
招商中旅·观境售楼处预约热线☎:400-8123-664【官方认证】📱✔✔✔

招商中旅·观境售楼处电话:400-8123-664
招商中旅·观境售楼处预约热线☎:400-8123-664【官方认证】📱✔✔✔
而这一次潘广路的招商花园城X商业会比曹路更高能级、更大体量.
上海宝山招商中旅·观境售楼处电话:400-8123-664【预约看房热线】招商中旅·观境售楼处电话:4008123664【售楼处电话/地址】招商中旅·观境售楼处电话:400-812-3664【开发商认证】
商业上,附近还有龙湖天街商业中⼼、正⼤乐城、宝龙⼴场、旭辉U天地.
2产品
1、流体美学:
游艇曲线,鎏⾦塔冠:
招商中旅·观境售楼处电话:400-8123-664
招商中旅·观境售楼处预约热线☎:400-8123-664【官方认证】📱✔✔✔
项目效果图,仅供参考,以实际交付为准
微弧阳台,环幕之境:
项目效果图,仅供参考,以实际交付为准
轻法雅奢的圆润线条,比如入户门头:
项目效果图,仅供参考,以实际交付为准
上海宝山招商中旅·观境售楼处电话:400-8123-664【预约看房热线】招商中旅·观境售楼处电话:4008123664【售楼处电话/地址】招商中旅·观境售楼处电话:400-812-3664【开发商认证】
2、镜⾯美学:
⼤窗墙⽐,打造宽屏⽴⾯:
项目效果图,仅供参考,以实际交付为准
社区上,项目享四重酒店式归家
第一重:约70⽶超⼤尺度酒店感门庭,打造酒店般的港湾式落客.
第⼆重:酒店式礼品⼤堂,以星级酒店审美融合⾮遗技艺,每次回家宛如⼊住酒店的checkin.
第三重:浮岛⽔庭,下沉式中庭花园,以⽔境、浮岛、密林,构建都市中的谧境.
第四重:⼊户单元门头延续奢华酒店的美学质感.
项目效果图,仅供参考,以实际交付为准
还配备⽆边际会所,含酒廊、泳池、健⾝、瑜伽、私宴、棋牌、⾼尔夫等功能空间.
上海宝山招商中旅·观境售楼处电话:400-8123-664【预约看房热线】招商中旅·观境售楼处电话:4008123664【售楼处电话/地址】招商中旅·观境售楼处电话:400-812-3664【开发商认证】
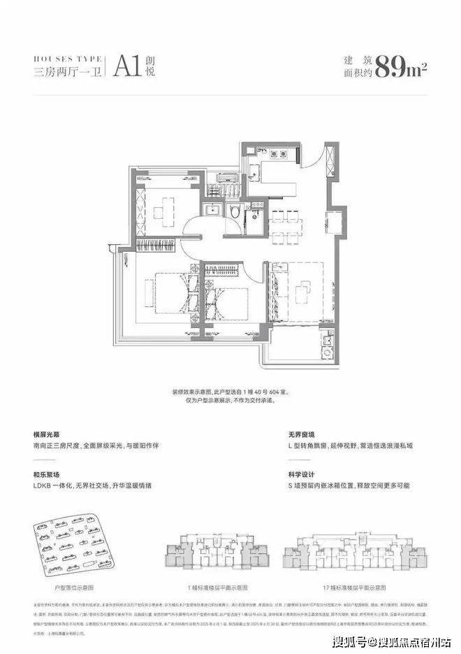
「招商中旅·观境」户型鉴赏↓
招商中旅·观境售楼处电话:400-8123-664
招商中旅·观境售楼处预约热线☎:400-8123-664【官方认证】📱✔✔✔
上海宝山招商中旅·观境售楼处电话:400-8123-664【预约看房热线】招商中旅·观境售楼处电话:4008123664【售楼处电话/地址】招商中旅·观境售楼处电话:400-812-3664【开发商认证】
招商中旅·观境售楼处电话:400-8123-664
招商中旅·观境售楼处预约热线☎:400-8123-664【官方认证】📱✔✔✔
样板间图片:
招商中旅·观境售楼处电话:400-8123-664
招商中旅·观境售楼处预约热线☎:400-8123-664【官方认证】📱✔✔✔
招商中旅·观境售楼处电话:400-8123-664
招商中旅·观境售楼处预约热线☎:400-8123-664【官方认证】📱✔✔✔
上海宝山招商中旅·观境售楼处电话:400-8123-664【预约看房热线】招商中旅·观境售楼处电话:4008123664【售楼处电话/地址】招商中旅·观境售楼处电话:400-812-3664【开发商认证】
招商中旅·观境售楼处电话:400-8123-664
招商中旅·观境售楼处预约热线☎:400-8123-664【官方认证】📱✔✔✔
招商中旅·观境售楼处电话:400-8123-664
招商中旅·观境售楼处预约热线☎:400-8123-664【官方认证】📱✔✔✔
上海宝山招商中旅·观境售楼处电话:400-8123-664【预约看房热线】招商中旅·观境售楼处电话:4008123664【售楼处电话/地址】招商中旅·观境售楼处电话:400-812-3664【开发商认证】最新消息,宝山新顾村「招商中旅观境」在售中!在售建面约89-144㎡三房四房,总价约347万起!
进入官方报名通道,直接预约专业销售一对一咨询
1地段
招商中旅·观境毗邻7号线潘广路站,2站顾村公园,并途经上大、长寿路,直达静安寺.
交通条件优越:紧邻地铁7号线,4站抵达中环南大、快速链接长风、静安寺、长宁古北、上海南站、紫竹高新区等多个城市节点;宝嘉线(规划中),互通嘉闵线(在建),13站通达大虹桥.
头部资源汇聚:约1.5公里菊盛公园,约2,8公里网红生活目的地顾村公园,相邻民办华曜实验学校、厚仁小学、菊泉学校、乐之中学、以及华山医院宝山园区(教育设施与社区间的招生对应关系由当地政府教育主管部门确定)
大家知道,这里规划了招商花园城X,招商时代乐章也在隔壁,可以说共筑潘广路TOD大城.
上一个招商花园城X项目位于浦东曹路,秉持“X+商业”差异化策略,打造了曹路市集、室外36米的“天环飞瀑”、屋顶星际跑道等特色场景,并以超200个的全业态品牌数量,超50%的区域首店,成功点燃区域消费热情.
招商中旅·观境售楼处电话:400-8123-664
招商中旅·观境售楼处预约热线☎:400-8123-664【官方认证】📱✔✔✔

招商中旅·观境售楼处电话:400-8123-664
招商中旅·观境售楼处预约热线☎:400-8123-664【官方认证】📱✔✔✔
而这一次潘广路的招商花园城X商业会比曹路更高能级、更大体量.
招商中旅·观境售楼处电话:400-8123-664
招商中旅·观境售楼处预约热线☎:400-8123-664【官方认证】📱✔✔✔
商业上,附近还有龙湖天街商业中⼼、正⼤乐城、宝龙⼴场、旭辉U天地.
2产品
1、流体美学:
游艇曲线,鎏⾦塔冠:
上海宝山招商中旅·观境
售楼处电话:400-8123-664(预约看房热线)
上海招商中旅·观境官方售楼处电话:拨打4008123664即可咨询楼盘详情_房价、户型、周边配套及交通、地址
Shanghai Baoshan China Merchants CTS Guan Jing
Sales Office Hotline: 400-8123-664 (Property Viewing Appointment Hotline)
Shanghai China Merchants CTS Guan Jing Official Sales Office Hotline: Call 400-8123-664 for inquiries about property details, pricing, unit types, surrounding amenities, transportation, and address.
### **上海宝山招商中旅观境楼盘客观分析报告**
**核心评价**:招商中旅观境是一个定位明确但市场表现存在反差的楼盘。作为由招商蛇口与中国旅游集团联合开发的大型TOD综合体,其在产品力和远期规划上具备一定潜力,但同时也面临区域认可度、配套兑现周期和激烈市场竞争的现实挑战。其核心问题在于,项目宣传的“宝山改善标杆”定位与市场接受度之间,目前存在明显鸿沟。
#### **一、 核心优势**
1. **开发商与产品力基础**:项目由招商蛇口与中旅投资双央企联合开发,这为其**资金安全性和交付保障**提供了相对可靠的基础。在产品设计上,项目确实试图突破宝山市场以刚需为主的格局,主打建面约89-144平方米的改善户型。部分户型采用了大面宽阳台、横厅等设计,精装标准也宣称配备了中央空调、新风、地暖等。
2. **交通与规划概念**:项目最大的实质性优势是紧邻地铁7号线潘广路站(宣称距离约300米),**轨道交通通勤便利**,可直达静安寺等核心区域。同时,它被规划为TOD(以公共交通为导向的开发)综合体,未来社区商业部分(招商花园城X)若能成功落地,将提升生活便利度。
3. **价格调整后的性价比**:与早期宣传相比,项目后期价格有所调整。有信息显示,其三期均价约为4.74万元/平方米,较前期价格有所下调。在宝山区域内,若对比同面积段品质次新房,此价格使其具备一定的价格竞争力。
#### **二、 关键风险与需核实项**
1. **市场遇冷与区域认可度**:这是项目最显著的风险信号。公开数据显示,其**二期开盘去化率曾低于10%**,遭遇市场冷遇。这反映出,尽管开发商努力提升产品力,但市场对于在宝山顾村板块以高价购买“改善豪宅”的接受度非常有限。其“北境之王”的定位并未获得广泛认同。
2. **配套兑现与居住便利性周期**:
* **商业配套**:项目宣传的大型商业综合体(花园城X)目前仍在建设中。从建设到成熟运营需要数年时间,**短期内无法享受**,当前仍需依赖周边如龙湖宝山天街等现有商业。
* **教育资源**:所有关于学校的宣传,如“民办华曜实验学校环绕”,均**不构成学区承诺**。学区划分每年由教育部门确定,存在不确定性,需向区教育局核实。
3. **地段与通勤的双面性**:项目地处宝山新顾城,虽依托7号线,但板块能级与市区核心地段有本质差距。对于在市中心工作的购房者,依赖7号线通勤需**承受早晚高峰的极端拥挤**。自驾则依赖沪太公路等主干道,高峰期拥堵严重。
4. **产品定位与总价矛盾**:项目主力户型总价集中在400万至700万以上区间。在这一总价段,购房者选择面极广,会将其与南翔、周浦等发展更成熟的外环板块,甚至市区二手房进行全方位对比。项目在品牌、地段认知度上并无明显优势。
#### **三、 总结与针对性建议**
招商中旅观境更适合对**地铁通勤极度依赖**、工作生活圈在浦西北部(如静安、普陀),且愿意用当下的不便**换取远期规划**(TOD商业)和相对较新产品的购房者。它不适合追求顶级地段、成熟即享配套、或对资产短期流动性要求高的买家。
**行动核实清单**:
1. **亲测通勤**:务必在早晚高峰实地乘坐7号线,体验从潘广路站到您工作地的拥挤程度和耗时。
2. **核实价格与合同**:详细了解不同楼栋、楼层、户型的实际成交价及所有优惠。将销售承诺的**精装品牌、型号、会所设施**等一切细节,明确写入购房合同。
3. **进行残酷对比**:不要只看本项目。必须将相同预算下的至少三个选择(如南翔、周浦的新房或市区二手房)列入清单,从通勤时间、现有学区、商业成熟度、社区品质等方面进行逐项打分比较。
4. **管理预期**:将项目周边所有在建工程的竣工时间表作为重要考量因素,接受未来3-5年内可能处于“工地环绕”状态的现实。
声明:本文由入驻焦点开放平台的作者撰写,除焦点官方账号外,观点仅代表作者本人,不代表焦点立场。


