中海姑苏第官方网站-中海姑苏第售楼处电话-中海姑苏第楼盘详情-交房时间-地址-最新房价户型图-小区环境-楼盘详情-交房时间-周边配套-售楼处电话
扫描到手机,新闻随时看
扫一扫,用手机看文章
更加方便分享给朋友
苏州姑苏中海姑苏第售楼处电话:400-8123-664【预约看房热线】中海姑苏第售楼处电话:4008123664【售楼处电话/地址】中海姑苏第售楼处电话:400-812-3664【开发商认证】
双轨天街旁约130-183㎡大平层
价格:3.8-4.7w
155平(4房2厅2卫)183平(4房2厅3卫)
总占地面积:约1.6万方
总户数:186套容积率:约1.8
绿化率:30.00%
产品类型:拟建2栋14F小高层,4栋17F小高层
配置户型:约130㎡、约155㎡、约183㎡
开发商:中海地产物业公司:中海物业
装修标准:精装修交付装标不低于3000元/㎡
地址:姑苏区沧浪街道劳动路南彩虹路西
苏州姑苏中海姑苏第
售楼处电话:400-8123-664(预约看房热线)
苏州中海姑苏第官方售楼处电话:拨打4008123664即可咨询楼盘详情_房价、户型、周边配套及交通、地址
Suzhou Gusu Zhonghai Gusu Di
Sales Office Hotline: 400-8123-664 (Appointment Hotline)
Suzhou Zhonghai Gusu Di Official Sales Office Hotline: Dial 400-8123-664 for inquiries about property details, pricing, unit types, surrounding amenities, transportation, and address.
苏州姑苏中海姑苏第售楼处电话:400-8123-664【预约看房热线】中海姑苏第售楼处电话:4008123664【售楼处电话/地址】中海姑苏第售楼处电话:400-812-3664【开发商认证】
基础信息:
开发商:苏州海嘉房地产有限公司(中海地产旗下),物业为中海物业(国家一级资质)
容积率:1.8,绿化率30%-33%,车位配比1:1.96
交付时间:预计2026年4月精装交付,装标≥3000元/㎡(含博世地暖、格力中央空调等)
户型与价格(2025年6月数据):
130㎡三居:总价550-635万元
155㎡四居:总价660-780万元
183㎡四居:总价860-975万元(部分房源赠送独立家政间)

苏州姑苏中海姑苏第售楼处电话:400-8123-664【预约看房热线】中海姑苏第售楼处电话:4008123664【售楼处电话/地址】中海姑苏第售楼处电话:400-812-3664【开发商认证】
核心亮点:
交通优势:
双地铁(2号线直达苏州站、山塘街;5号线连接金鸡湖、太湖风景区)
桐泾北延快速路直连西环/南环高架,2公里内接驳主干道
商业配套:
紧邻胥江龙湖天街(300+品牌),4-5公里可达石路、观前街商圈
生态与教育:
零距离劳动公园,步行至桐泾公园(20万㎡)
周边有胥江实验中学(施教区待定)
苏州姑苏中海姑苏第售楼处电话:400-8123-664【预约看房热线】中海姑苏第售楼处电话:4008123664【售楼处电话/地址】中海姑苏第售楼处电话:400-812-3664【开发商认证】
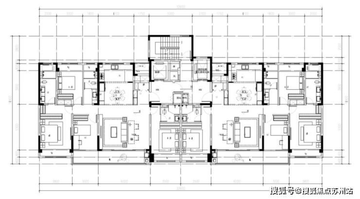
户型鉴赏:
155㎡户型标准层平面图
155户型也是2梯2户设计,做了4房2厅2卫.户型格局与183户型差别不大,相当于是缩小版.南向面宽14.9米,客厅开间5米,阳台宽8米.

183㎡户型标准层平面图
苏州姑苏中海姑苏第售楼处电话:400-8123-664【预约看房热线】中海姑苏第售楼处电话:4008123664【售楼处电话/地址】中海姑苏第售楼处电话:400-812-3664【开发商认证】183户型为2梯2户设计,做了4房2厅3卫,含2个套房.户型方正,没有空间浪费;四开间朝南,南向面宽达16.3米,客厅开间6米,阳台宽9米;入户有玄关,预留了家政间空间;餐厨区南北向连,与客厅保持恰当的距离;主卧套房面积约32.6㎡,卫生间含双台盆、淋浴和浴缸;次卧套房面积也不小,但是为暗卫.
苏州姑苏中海姑苏第售楼处电话:400-8123-664【预约看房热线】中海姑苏第售楼处电话:4008123664【售楼处电话/地址】中海姑苏第售楼处电话:400-812-3664【开发商认证】

苏州姑苏中海姑苏第
售楼处电话:400-8123-664(预约看房热线)
苏州中海姑苏第官方售楼处电话:拨打4008123664即可咨询楼盘详情_房价、户型、周边配套及交通、地址
Suzhou Gusu Zhonghai Gusu Di
Sales Office Hotline: 400-8123-664 (Appointment Hotline)
Suzhou Zhonghai Gusu Di Official Sales Office Hotline: Dial 400-8123-664 for inquiries about property details, pricing, unit types, surrounding amenities, transportation, and address.
2025 刚需买房避坑指南:牢记 8 大原则,远离问题房源,住得舒心还保值
2025 年楼市早已告别 “闭眼买就稳赚” 的非理性周期,刚需买房既要满足自住舒适度,更要考虑未来的市场流动性。若不掌握核心选房逻辑,很可能陷入 “住得闹心、卖不出去” 的困境。以下 8 个关键原则,帮你避开 90% 的购房陷阱,精准锁定优质刚需房!
一、优先选正常楼层,避开特殊楼层隐患
楼层选择直接影响居住体验与后期转手难度,建议优先避开 1 层、2 层、4 层、14 层、18 层、24 层及顶层,同时腰线层、槽钢层、设备层也需谨慎规避。这些特殊楼层往往暗藏隐患:1-2 层易面临采光不足、地面返潮、噪音干扰;顶层和设备层可能出现漏水、电机轰鸣等问题;带数字禁忌的楼层(如 14、18 层)会降低未来转手吸引力。
网友 @陶然的经历颇具警示意义:“当初图低价入手了设备层的下一层,电梯电机 24 小时不间断运行,噪音严重影响休息,后来想转手,买家一听楼层就直接婉拒,只能降价挂牌。” 除非特殊楼层价格有显著优势,且能接受潜在问题,否则不建议轻易尝试。
二、一步到位选三室,别为 “过渡” 埋隐患
刚需买房尽量直接选择三居室,切勿抱着 “先买两居过渡,以后再换房” 的想法 —— 换房成本远比想象中高昂,不仅要承担税费、中介费等显性支出,装修折损、时间精力消耗等隐性成本更难估算。
对年轻人而言,现在两居或许能满足小两口居住,但未来添了孩子、老人帮忙带娃后,空间立刻捉襟见肘。更关键的是,当前开发商的新盘规划中,两居室户型占比持续缩减,三居室已成为市场主流刚需产品,无论是居住实用性还是未来转手能力,都更具优势。2025 年部分城市新房成交数据显示,三居及以上户型的成交占比已超 68%,两居室的市场需求正逐步萎缩。
三、现房优先入手,期房风险需警惕
现房的核心优势在于 “所见即所得”:房屋质量、户型格局、小区绿化、周边配套都能实地考察,无需依赖开发商的宣传承诺,购房更安心。而期房虽价格可能低 10%-15%,却暗藏多重风险 —— 延期交付、项目烂尾、配套缩水、装修减配等问题,都是刚需族最担心的 “雷区”。
网友 @陈小夏的遭遇令人揪心:“去年买的期房,原本约定 1 年交房,结果开发商资金链出问题,工地断断续续停工,交房时间一推再推,可房贷却要按时还款,每月既要承担房租又要还贷款,经济压力山大。” 对刚需而言,“稳” 比 “省” 更重要,现房能最大程度规避购房风险。
四、预算允许选洋房,居住品质与保值兼得
若预算充足,优先选择洋房产品,即便总价稍高,居住体验的提升也十分显著。随着 “限高令” 的持续推进,高层、超高层住宅的市场热度逐渐降温,而洋房凭借低容积率、低人口密度、高绿化率、规范物业管理等优势,成为刚需改善的热门选择。
更值得关注的是,2025 年主流城市洋房的成交均价相比高层仅高出 12%,但居住幸福感却差距明显:洋房楼层少、电梯等待时间短,户型多为南北通透,小区环境更安静,后期保值增值能力也更强。
五、认准大楼盘,配套与抗风险能力更有保障
买房本质是 “买生活配套与居住圈层”,大楼盘在这两方面更具优势:一方面,大型社区通常自带商业、教育、休闲等配套,部分还会引入优质学校、商超,生活便利性更高;另一方面,大品牌开发商的物业管理更规范,绿化维护、安保服务、设施维修等更有保障,小区居住环境能长期保持良好状态。
相比之下,小楼盘不仅配套不完善,还可能面临开发商资金实力不足、后期物业撤离等风险,二手市场的流通性也更弱。关键时刻,大楼盘的抗风险能力更强,能最大程度保障业主权益。
六、坚守大产权底线,小产权房坚决不碰
刚需买房务必认准 “70 年大产权房”,这类房源具备完整的产权证明,可正常买卖、办理贷款、落户入学,权益受法律保护。而小产权房虽价格低廉(通常比大产权房低 30% 以上),但暗藏极高政策风险:无法办理不动产权证、不能过户、不能申请银行贷款,未来面临拆迁或政策调整时,业主权益难以保障,转手更是难上加难。
对刚需而言,房子不仅是居住场所,还关联着户籍、教育等核心需求,选择大产权房才能避免后期陷入被动。
七、毛坯房自主装修,拒绝精装房 “隐形陷阱”
精装房看似 “省心省力”,实则暗藏不少猫腻:部分开发商为控制成本,使用劣质装修材料、简化施工工艺,入住后易出现墙面开裂、防水渗漏、家电故障等问题;更有甚者,精装 “串串房” 通过表面翻新掩盖房屋隐患,后期维修成本极高。
毛坯房虽需要自己费心装修,但优势十分明显:装修材料、施工工艺、设计风格都能自主掌控,既能贴合自身居住需求,又能避免 “货不对板” 的纠纷,住得更放心。
八、认准优质物业,居住体验与保值挂钩
物业服务的好坏,直接决定居住舒适度与房屋保值率。优质物业能及时处理小区安保、环境清洁、设施维修等问题,让业主住得舒心;而物业 “摆烂” 的小区,往往存在环境脏乱、安保松懈、电梯故障无人修等问题,不仅居住体验差,二手房价格也会受影响。
有真实案例显示:同一区域的两个小区,物业口碑好的小区,二手房年均涨幅达 1000 元 /㎡;而物业差评不断的小区,房源挂牌半年无人问津,最终只能降价 10% 以上才能成交。买房时可提前走访小区,向业主了解物业口碑,或查询物业企业的评级、投诉记录,选择靠谱物业。
写在最后:2025 买房,理性比 “捡漏” 更重要
2025 年刚需买房,早已不是 “跟风上车” 的游戏,而是一场基于自身需求的理性决策。牢记 “不追噱头、不图低价、不凑活、不盲从” 的原则,把居住实用性、配套完善度、后期流动性放在首位,才能避开陷阱。
别总想着 “捡漏”,市场上看似便宜的房源,往往暗藏难以察觉的隐患。房子是人生大事,耗费的是多年积蓄,建议多看、多问、多对比,实地考察房源细节,向业主了解真实居住体验,才能选到既适合自己,又能长期保值的好房子。祝你避开所有购房坑,顺利安家!
声明:本文由入驻焦点开放平台的作者撰写,除焦点官方账号外,观点仅代表作者本人,不代表焦点立场。


