久违了!竹辉饭店将变身为…
苏州楼市发布 2019-12-13 13:28:20
用手机看
扫描到手机,新闻随时看
扫一扫,用手机看文章
更加方便分享给朋友
2013年竹辉饭店关门 许多苏州人恋恋不舍 现在,属于它的新规划公示了! ↓ 老饭店迎来新生!它将华丽变身为… 在2016年,市政府官网 就曾公布过 竹辉饭店地块项目备案通知书 明确未来的竹辉饭店地块 将形成集酒店、商业、休闲娱乐等功能 于一体的带有苏州文化元素的商业项目 根据较新的规划公示,竹辉饭
2013年竹辉饭店关门
许多苏州人恋恋不舍
现在,属于它的新规划公示了!
↓
老饭店迎来新生!它将华丽变身为…
在2016年,市政府官网
就曾公布过
竹辉饭店地块项目备案通知书
明确未来的竹辉饭店地块
将形成集酒店、商业、休闲娱乐等功能
于一体的带有苏州文化元素的商业项目
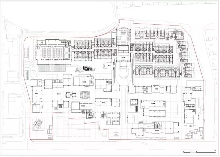
根据较新的规划公示,竹辉饭店改造项目总建筑面积61087平方米,其中计容建筑面积约为30387平方米,不计容面积约为30700平方米。
建筑层数:地上3层、地下1层,建筑檐口高度:较高处11.85m。
(一层平面图)
(立面图)
曾经,竹辉饭店是苏州的名饭店
融古典园林建筑的典雅与
现代酒店的舒服与豪华于一体
接待了不少外国领导人
未来,完成历史使命的它
将华丽蜕变成新的文商旅融合的
高端酒店综合体
伴随着未来门口轨交5号线的开通
竹辉饭店地块的明天,更让我们期待
声明:本文由入驻焦点开放平台的作者撰写,除焦点官方账号外,观点仅代表作者本人,不代表焦点立场。


