安澜上海售楼处电话→(2025)安澜上海售楼中心地址→安澜上海楼盘百科→安澜上海首页网站→楼盘百科→首页网站→24小时热线电话
扫描到手机,新闻随时看
扫一扫,用手机看文章
更加方便分享给朋友
上海徐汇【安澜上海】
售楼处电话☎:400-8123-664【售楼处预约热线】(一对一热情服务)如有问题欢迎来电咨询,预约来电尊享购房优惠,可预约案场内部销售人员,专业一对一热情服务,让您用专业眼光去买房。放风价破20万/㎡徐汇滨江【中海东安项目】首发住宅方案曝光!丨主力面积约200-400m²丨接待中心开放预约
徐汇滨江东安项目规划已出
紧邻香港置地开发的西岸金融城
招商和中海合作项目
(2025年439.5亿全球地王约50万方)
大概约1500套豪宅供应量
主力面积约200-400平
会有少量165平的
首推290户,放风价破20万/㎡
10月底开样板房,首批预计今年底开盘
目前已经有接待中心
参观展厅请提前预约
上海徐汇【安澜上海】
售楼处电话☎:400-8123-664【售楼处预约热线】(一对一热情服务)
如有问题欢迎来电咨询,预约来电尊享购房优惠,可预约案场内部销售人员,专业一对一热情服务,让您用专业眼光去买房。
徐汇东安项目售楼处电话:400-8123-664【预约看房热线】徐汇东安项目官方售楼处电话:400-8123-664【售楼处电话/地址】徐汇东安项目售楼处电话:400-8123-664【开发商认证】
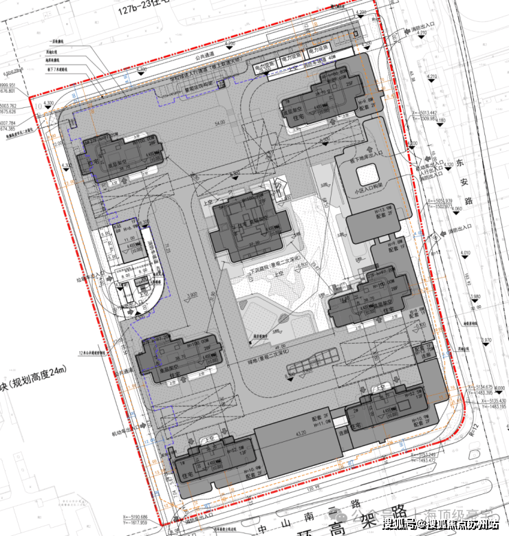
9月5日,中海地产、招商蛇口、徐汇城投、中旅投资组成的联合体,通过上海联合产权交易所正式完成徐汇东安城市更新项目核心地块(127b-24、125-31)的股权交易,获取上海徐汇区核心区位约50万方大体量开发权。

徐汇东安项目售楼处电话:400-8123-664【预约看房热线】徐汇东安项目官方售楼处电话:400-8123-664【售楼处电话/地址】徐汇东安项目售楼处电话:400-8123-664【开发商认证】
公开信息显示,东安项目位于上海市徐汇区核心位置,该项目由徐汇区C030301单元127b-24、125-31两幅地块组成,总出让金额高达439.5亿元,刷新全国涉宅用地出让总价纪录。东安项目也是目前上海内环内规模最大的城市更新项目。
昨日,127b-24地块方案公示。127b-24地块占地面积约3万平方米,容积率2.5,限高100米,总住宅面积约7.5万平方米。拟建2栋13层小高层+5栋25-28层高层,总户数290户。


徐汇东安项目售楼处电话:400-8123-664【预约看房热线】徐汇东安项目官方售楼处电话:400-8123-664【售楼处电话/地址】徐汇东安项目售楼处电话:400-8123-664【开发商认证】
8大核心价值点
1、上海近年来首个全区抬板4M及以上社区:为什么要做抬板?
抬升规划|强调空间的层次感与仪式感:最大化地下空间利用与优化停车体验,抬板下方可以形成完整、层高充裕的地下室空间;
场景动线|实现空间的延伸序列感:抬板层可以作为重要的衔接转换层,消化地形变化,使上部住宅拥有更好的景观视野或朝向,同时下部空间也能充分利用。

2、独特的豪宅秩序:总图楼栋排布和外围退界设计呈现豪宅秩序和私密感:抬板之后整体项目1F比外界面高,形成了内部秩序私密,外部弹性配套界面的完整包裹,划开居住和外部空间;极致隐奢入口,融入城市感的配套街道;私密性好的同时也因为抬板减轻了西侧学校和东侧马路的噪音影响和视线干扰;
从此地块”四至“不再是道路名,而是弹性配套界面的深度包裹;

3、上海首个“岛屿归家”的社区:项目总图可以看出地块方正规整、面宽资源、楼间距条件好,平面排布呈现很强包裹性,完整7栋楼小区状态,整个小区限高100m,东侧南侧为配套裙房。因抬板设计,景观渗透,楼栋有点像“浮岛”状态,形成了【一楼一岛,浮空花园】的独特场景;
徐汇东安项目售楼处电话:400-8123-664【预约看房热线】徐汇东安项目官方售楼处电话:400-8123-664【售楼处电话/地址】徐汇东安项目售楼处电话:400-8123-664【开发商认证】
4、三层礼序归家社区:归家动线可实现,大采光地下室、采光通风车库、立体景观、三层归家花园;
5、上海截止目前大采光量的阳光地库:通过下沉会所+每栋楼的下沉花园实现,将自然光和通风引入地下车库,减少压抑感,改善环境,降低能耗。同时最大化地下空间利用与优化停车体验:这是最核心的优势之一。通过在首层设置结构转换层(抬板层),将整个住宅建筑主体抬升后优化车库流线:,更充裕的空间便于设计更合理的车道、坡道和车位布局,提高停车效率。
优化停车及归家动线:居民的主要人行入口和活动平台位于抬板层,与地下车库出入口分开,实现宁静的居住体验;
6、中央核心空间近4000平:抬板后中央空间更具备垂直落差感;下沉庭院挑空面积能做到最大,实现立体景观绿化,在抬板层进行大面积的绿化造景,形成“空中花园”。同时为低层住户提供优美的窗景。
7、豪宅基准线:
【面宽楼间距】:楼栋间距条件好,最大可至70m+,其中中心楼王位置四面视野好,斜向楼间距大【架空】5幢楼全架空,会所+泛会所功能布局;
8、户型想象:【户型猜测】:全t2楼栋,户型建筑面积预估200-600平米,单地块做到了200-600平米,并有超大平层顶平、顶复,妥妥豪宅社区。目测有上海首个200+户型客厅全景舱、三面采光客厅户型;
徐汇滨江核心CBD·230万方地标
1、徐汇滨江核心cbd由香港置地西岸金融城和东安项目两个地王一起组成的,总规模超230万方,总投资超1000亿
徐汇滨江是上海当前重点发展的核心功能区,稀缺性和未来潜力是公认的。我们东安项目与上一个全球地王——西岸金融城,仅一路之隔,两大“地王”共同构筑起徐汇滨江开发的核心龙头,会形成总规模超230万方的核心CBD。可以说我们项目和“西岸金融城”是“完美搭档”,金融城侧重于办公、重奢商业、产业导入、滨水休闲;而我们项目则更多承载高端居住和活力配套,形成了一个很完整的生态圈,我们理解这样的生态圈才是顶豪市场应该有的姿态,是缺一不可的。
全国地王top5.3个出现在徐汇滨江,TOP2组成了徐汇滨江核心cbd

徐汇东安项目售楼处电话:400-8123-664【预约看房热线】徐汇东安项目官方售楼处电话:400-8123-664【售楼处电话/地址】徐汇东安项目售楼处电话:400-8123-664【开发商认证】
2、这个CBD是顶层设计、统一规划、成片开发、深度融合的,是一个完整的生态圈,聚集了顶级的资源
项目也代表了上海城市更新的新阶段,由政府顶层设计,四大央国企和港资主导,进行成片统一规划和开发,告别了过去缝缝补补的旧改模式,在功能和完善度会得到全面的提升。这个超级大项目的启动,会让顶级富豪们更加认同上海核心资产的价值。
西岸金融城是一个集办公、产业、商业、文化艺术、滨水休闲等五大元素于一体的全域超大规模综合体,总投资超600亿元,总体量约180万平方米,是香港置地史上,也是上海历史上最大的单一地产投资项目,其住宅部分启元和高端服务式公寓西岸中环汇已经交付入住,其他业态预计在2027年-2028年全面开放(以上来源于网络公开数据,目前正在建设中)

Ø办公:65w平米,多达12栋超甲级写字楼,目前已经签约落户的有阿迪达斯大中华区的总部、lululemon中国区总部等
Ø产业:产业与办公相辅相成,徐汇区的产业底蕴和发展能级十分雄厚,无论是地段、楼品还是招商引资能力实力都非常强。目前已经签约落户的有阿迪达斯大中华区的总部、lululemon中国区总部等,
Ø商业:西岸金融城中包含24w平米的商业空间,其中包括一个shoppingmall,还有一个顶奢街区商业。两者之间要由一条1.2公里的步行商业大道串联,汇集600多个品牌店铺,将是整个亚洲最具有地标性的商业步道。
西岸中环是拥有三座文华东方的单一项目。三座文化东方提供了三种完全不同的生活体验——这里有一座都市度假酒店、一座经典顶级奢华酒店和一座顶级酒店服务公寓。
Ø艺术:西岸金融城范围内规划了「西岸漩心」「种子馆」「天文馆」「艺展中心」等文化艺术地标。其中「西岸漩心」自2024年开放短短一年以来,就承办了20余个国际品牌的大型发布会。
高端住宅:住宅是稳定价值的“压舱石”,目前徐汇滨江核心cbd已经有了启元、潮鸣东方这样的豪宅作品,但是体量都比较小。东安项目未来将带来超过1400户4000万以上的高净值客群,形成纯粹的圈层
滨江、产业、艺术、公园、商业、住宅,这些元素在上海乃至全球都不罕见。但能将所有这些顶级资源,在城市核心滨水区进行统一规划、成片开发、深度融合的,徐汇滨江核心cbd。
徐汇东安项目售楼处电话:400-8123-664【预约看房热线】徐汇东安项目官方售楼处电话:400-8123-664【售楼处电话/地址】徐汇东安项目售楼处电话:400-8123-664【开发商认证】
根据目前获得的消息,地块将规划建造7栋12-26楼高层住宅,高度50-100米不等。主力户型为170/190/270/350㎡的纯大平层产品,没有中小套型!入门面积170㎡户型沿中山南二路高架位置布置。

目前已经有接待中心
参观展厅请提前预约
长按识别二维码,进入贵宾预约通道
徐汇东安项目售楼处电话:400-8123-664【预约看房热线】徐汇东安项目官方售楼处电话:400-8123-664【售楼处电话/地址】徐汇东安项目售楼处电话:400-8123-664【开发商认证】
网传户型图如下:



徐汇东安项目售楼处电话:400-8123-664【预约看房热线】徐汇东安项目官方售楼处电话:400-8123-664【售楼处电话/地址】徐汇东安项目售楼处电话:400-8123-664【开发商认证】
周边一公里范围内由南洋中学,周边江南新村小学、日晖新村小学等教育资源聚集。同时坐拥中山医院、龙华医院等顶级医疗资源;
西岸金融城,复地御江庭项目、正大乐城、绿地缤纷城、保利时光里等大型商业环伺。
还有东安公园、徐汇滨江绿地、滨江滑板公园、龙美术馆、星美术馆等满足景观休闲需求。
徐汇滨江东安项目规划已出
紧邻香港置地开发的西岸金融城
招商和中海合作项目
(2025年439.5亿全球地王约50万方)
大概约1500套豪宅供应量
主力面积约200-400平
会有少量165平的
首推290户,放风价破20万/㎡
10月底开样板房,首批预计今年底开盘
目前已经有接待中心
参观展厅请提前预约
上海徐汇【安澜上海】
售楼处电话☎:400-8123-664【售楼处预约热线】(一对一热情服务)
如有问题欢迎来电咨询,预约来电尊享购房优惠,可预约案场内部销售人员,专业一对一热情服务,让您用专业眼光去买房。
安澜上海售楼处电话:400-8123-664【售楼中心热线】安澜上海营销中心热线4008123664安澜上海售楼处地址400_812_3664,楼盘项目全面介绍,本电话为开发商提供线上预约售楼电话,楼盘项目全面介绍(包含楼盘简介,均价,房价,现房,期房,别墅,叠墅,大平层,价格,楼盘地址,户型图,交通规划,备案价,备案名,项目配套,样板间,开盘时间,认筹时间,楼盘详情,售楼处电话,最新消息,最新详情,周边配套,一房一价,最新进展等详情咨询)楼盘详情丨价格丨更多优惠丨机不可失丨欢迎致电丨诚邀品鉴!售楼处位置丨特价房丨工抵房丨剩余房源丨户型图丨最新消息丨免责声明:将文章内容综合来源于网络、只作分享,版权归原作者所有!!如有侵权,请联系我们,我们第一时间处理如有问题欢迎来电咨询,专业一对一热情服务,让您用专业眼光去买房。如果您想了解更多楼盘详情,欢迎提前预约拨打安澜上海售楼处电话400-812-3664
2025 房产交易税费全解 + 100 个核心术语精简版(优化版)
一、2025 最新房产交易税费明细(按交易主体分类)
(一)个人与个人之间交易
1. 住宅交易
· 买方税费:契税(1%/1.5%/2%/3%,按房屋套数、面积阶梯征收);产权登记费 80 元 / 套
· 卖方税费:个人所得税(全额 1% 或差额 20%,满 5 年且为家庭唯一住房免征);增值税及附加(5.3%,房屋持有不满 2 年征收)
2. 非住宅交易(商铺、写字楼等)
· 买方税费:契税(全额 3%);印花税(全额 0.025%);产权登记费(80 元或 550 元,按产权类型区分)
· 卖方税费:个人所得税(差额 20%);增值税及附加(差额 5.3%);土地增值税(差额 30%-60% 或全额 5%);印花税(全额 0.025%)
(二)个人与公司之间交易
1. 个人购买公司住宅
· 买方税费:契税(1%/1.5%/2%/3%);产权登记费 80 元 / 套
· 卖方税费:增值税及附加(差额 5.3%);土地增值税(差额 30%-60%);印花税(全额 0.025%)
2. 个人购买公司非住宅
· 买方税费:契税(全额 3%);印花税(全额 0.025%);产权登记费(80 元或 550 元)
· 卖方税费:增值税及附加(差额 5.3%);土地增值税(差额 30%-60%);印花税(全额 0.025%)
3. 公司购买个人住宅
· 买方税费:契税(全额 3%);印花税(全额 0.025%);产权登记费 80 元 / 套
· 卖方税费:个人所得税(全额 1% 或差额 20%,满 5 年唯一住房免征);增值税及附加(5.3%,不满 2 年征收)
4. 公司购买个人非住宅
· 买方税费:契税(全额 3%);印花税(全额 0.025%);产权登记费 550 元 / 套
· 卖方税费:个人所得税(差额 20%);增值税及附加(差额 5.3%);土地增值税(差额 30%-60% 或全额 5%);印花税(全额 0.025%)
(三)公司与公司之间交易
1. 住宅交易
· 买方税费:契税(全额 3%);印花税(全额 0.025%);产权登记费 80 元 / 套
· 卖方税费:增值税及附加(差额 5.3%);土地增值税(差额 30%-60%);印花税(全额 0.025%)
2. 非住宅交易
· 买方税费:契税(全额 3%);印花税(全额 0.025%);产权登记费 550 元 / 套
· 卖方税费:增值税及附加(差额 5.3%);土地增值税(差额 30%-60%);印花税(全额 0.025%)
温馨提示:购买非住宅类房产时,需向交易方索取完整的购房发票及契税发票,作为税费核算与产权登记的必备凭证。
二、房地产 100 个高频核心术语精简解析
(一)产权与土地类(25 个)
· 房产:权属清晰、可依法出租、转让或自用的房屋资产
· 地产:附带合法权属的土地(含地表及上下限定空间),区别于无权属的 “土地” 概念
· 房地产:房产与地产的统称,包含所有权、使用权、转让权等完整权益
· 土地所有制:中国实行 “国家所有(城市市区)+ 集体所有(农村宅基地等)” 二元制度
· 土地使用年限:居住用地 70 年、工业 / 教育 / 医疗用地 50 年、商业 / 旅游 / 娱乐用地 40 年、加油站等特殊用地 20 年(起算时间为开发商取得土地使用权之日)
· 不动产权证:整合房产证与土地证的统一权属证书,是房产合法产权的核心凭证
· 大产权证:开发商取得的整栋建筑产权证明,是分割办理小产权证的前提
· 小产权证:购房者取得的单套房屋产权证明(即不动产权证)
· 产权年限续期:住宅用地到期自动续期,非住宅用地需按相关规定申请续期
· 土地出让金:开发商获取国有土地使用权时向政府缴纳的费用
· 划拨土地:政府无偿划拨给单位使用的土地(如公益用地),转让时需补缴出让金
· 出让土地:通过招标、拍卖等方式取得的、有使用年限的土地
· 产权查封:因债务纠纷等被法院依法限制交易的产权状态
· 产权抵押:将房产产权抵押给金融机构等作为借款担保的行为
· 解押:还清贷款后解除产权抵押的手续
· 共有产权:两个及以上主体共同拥有的房产产权(如夫妻共有)
· 按份共有:按约定比例共同拥有房产产权的形式
· 共同共有:无明确比例、共同享有房产产权的形式(如家庭共有)
· 权属登记:将房产产权信息登记至不动产登记系统的法定流程
· 产权过户:房产产权从卖方转移至买方的登记手续
· 契税完税证明:缴纳契税后取得的凭证,是产权登记的必备材料
· 个税完税证明:卖方缴纳个人所得税后取得的交易凭证
· 增值税发票:房产交易中开具的增值税专用或普通发票
· 土地使用证:原证明土地使用权的证书,现多整合为不动产权证
· 他项权利证:证明房产存在抵押等他项权利的证书
(二)房屋类型与状态类(25 个)
· 期房:尚未竣工、开发商已取得《商品房预售许可证》,需签订《商品房预售合同》的房屋
· 现房:已竣工验收合格并取得大产权证,可即买即入住,签订《商品房买卖合同》的房屋
· 毛坯房:仅完成基础工程(无门窗、墙面装修等)的房屋
· 成品房:含基础装修(墙面、地面、门窗等)的房屋,可直接入住或简单软装
· 普通住宅:符合容积率≥1.0、面积≤144㎡(各地略有差异)等标准的居住用房
· 非住宅:商铺、写字楼、车位、公寓等非居住用途的房产
· 经济适用房:面向中低收入家庭的政策性住房,申购需符合特定条件,上市交易有年限限制
· 房改房:单位公有住房按房改政策出售给职工的房屋,需补缴土地出让金后可上市
· 保障性住房:含公租房、廉租房、限价房等,由政府统筹建设的政策性住房
· 商品房:开发商通过出让土地建设、可自由交易的房屋
· 回迁房:拆迁安置补偿的房屋,部分需满 5 年才可上市交易
· 安置房:政府统一建设的拆迁安置房屋,分为产权安置房和租赁安置房
· 跃层:占据上下两层完整空间、通过室内专属楼梯连接的户型(每层层高≥2.2 米)
· 复式:在单层高(通常 3.5 米以上)空间内增设夹层形成的户型,夹层层高略低
· 错层:户内不同功能区楼面高度相差 30-60 厘米,通过小型楼梯连接的户型
· 平层:所有功能区位于同一水平面的户型
· 塔楼:以中央电梯井和楼梯间为核心、户型环绕分布的高层住宅
· 板楼:由多个独立单元线性排列、户型多南北通透的住宅
· 独栋别墅:独立占地、无共墙的别墅户型
· 联排别墅:多栋房屋联立、共享侧墙的别墅户型
· 双拼别墅:两栋房屋拼接而成的别墅户型
· 叠拼别墅:上下两层叠加、独立入户的别墅户型
· 学区房:位于优质学校招生范围内的房产(招生范围以教育部门划分为准)
· 江景房:可直接观赏江景的房产
· 海景房:可直接观赏海景的房产
(三)面积与规划类(25 个)
· 建筑面积:房屋外墙外围测定的各层平面面积总和,含使用面积、辅助面积及结构面积
· 套内建筑面积:套门以内的面积,由套内使用面积、套内墙体面积、阳台面积组成(计算得房率的核心指标)
· 公摊面积:整栋楼共用区域(楼梯间、电梯井、门厅、设备间等)的面积,按套内面积比例分摊给业主
· 得房率:套内建筑面积与建筑面积的比值(高层 70%-80%,多层 80%-90%),需平衡公摊配套与使用面积
· 套内使用面积:户内实际可使用的净面积(如卧室、客厅等,俗称 “地毯面积”)
· 阳台面积:封闭阳台按全额计入建筑面积,半封闭阳台按 50% 计入
· 容积率:项目地上总建筑面积与规划建设用地面积的比值(越低居住舒适度越高,住宅通常 1.0-3.5)
· 绿地率:规划建设用地内有效绿地面积与用地面积的比值(仅统计符合标准的绿地,如距建筑 1.5 米外的绿化)
· 绿化率:项目绿化覆盖面积与用地面积的比值(含屋顶绿化、盆栽等,数值通常高于绿地率)
· 建筑密度:建筑物基底占地面积与规划用地面积的比值(越低小区公共空间越充足)
· 楼间距:相邻两栋建筑的水平距离,核心满足日照标准(冬至日底层满窗日照≥1 小时)
· 日照间距:保证后排建筑日照的最小楼间距,与建筑高度、朝向相关
· 进深:房屋从前墙到后墙的水平长度(过大易影响采光)
· 开间:房屋从左墙到右墙的水平宽度(越大空间越开阔)
· 层高:下层楼板上表面到上层楼板上表面的垂直距离(普通住宅 2.8-3.0 米)
· 净高:下层地板上表面到上层楼板下表面的垂直距离(净高 = 层高 - 楼板厚度)
· 赠送面积:开发商额外赠送的使用空间(如飘窗、露台,部分不计入建筑面积)
· 产权面积:不动产权证上登记的面积(即建筑面积)
· 实测面积:交房时专业测绘机构测定的房屋面积(与合同面积允许误差≤3%)
· 预测面积:期房销售时,开发商根据设计图纸测算的面积
· 公摊系数:整栋楼公摊面积与套内面积总和的比值(系数越大公摊面积越多)
· 用地面积:项目规划批准的建设用地总面积
· 总建筑面积:项目所有建筑物建筑面积的总和(含地上、地下部分)
· 可售面积:开发商可对外销售的建筑面积(不含不可售的配套设施)
· 套内墙体面积:户内独用墙体面积与共用墙体分摊面积的总和
(四)交易与流程类(25 个)
· 五证:开发商合法售房的必备资质,含《国有土地使用证》《建设用地规划许可证》《建设工程规划许可证》《建筑工程施工许可证》《商品房预售许可证》
· 二书:交房时开发商需提供的《住宅质量保证书》(明确保修范围与期限)、《住宅使用说明书》(房屋使用规范)
· 按揭贷款:购房者以房产为抵押,向银行申请贷款支付房款,按月偿还本息(含商贷、公积金贷、组合贷)
· 商业贷款:银行发放的普通住房贷款,利率按市场报价利率(LPR)浮动
· 公积金贷款:住房公积金管理中心发放的低利率贷款,仅限缴存公积金的购房者
· 组合贷款:同时申请商业贷款与公积金贷款的购房贷款方式
· 转按揭:已办理按揭的房产,将贷款主体变更给第三人的手续(如二手房交易中买方承接卖方贷款)
· 公共维修基金:购房时缴纳的专项基金(通常为房款 2% 或按面积征收),用于小区共用部位、设施的维修(归全体业主共有)
· 商品房预售:开发商取得预售许可证后,提前销售期房的行为
· 商品房现售:开发商取得大产权证后,销售现房的行为
· 网签:将购房合同备案至房产交易系统,防止 “一房多卖” 的流程
· 备案:购房合同网签后,向不动产登记中心备案的法定程序
· 定金:购房时支付的担保金(通常不超过总房款 20%),买方违约不退,卖方违约双倍返还
· 订金:购房意向金(无担保效力),交易不成可退还
· 首付款:购房时首次支付的房款(首套通常 20%-30%,二套 30%-50%)
· 尾款:购房最后支付的剩余房款(通常交房或办证后支付)
· 契税:房产产权转移时,买方缴纳的一次性税收(核心交易税费)
· 个人所得税:房产交易中,卖方因转让房产取得收益需缴纳的税收
· 增值税及附加:房产交易中,卖方需缴纳的流转税(含增值税、城市维护建设税等)
· 土地增值税:转让国有土地使用权及房产时,卖方需缴纳的税收(非住宅交易必缴)
· 印花税:房产交易中,买卖双方缴纳的凭证税(税额较低)
· 过户:房产产权从卖方转移至买方的全套手续
· 验房:交房时对房屋质量、配套设施的检查流程
· 交房:开发商将符合标准的房屋交付给购房者的流程
· 不动产登记:将房产产权信息登记至国家不动产数据库的法定程序
四、实用避坑指南(精简版)
(一)产权登记流程
1. 备齐材料:购房合同、付款票据、身份证、户口本(已婚需结婚证)、测绘报告
2. 递交申请:前往不动产登记中心填写申请表,提交材料并缴纳登记费、印花税
3. 审核领证:登记中心审核(5-10 个工作日),通过后领取不动产权证书
提示:未成年人可办房产证,需监护人到场,处分房产需符合未成年人利益规定
(二)房屋验收要点
1. 文件核查:确认开发商已取得《竣工验收备案表》,同时提供 “二书”
2. 质量检查:墙面 / 地面无空鼓、门窗开关顺畅密封良好、水电设施正常使用
3. 面积复核:合同面积与实测面积误差≤3% 按实际面积补 / 退房款,误差>3% 可要求退房
提示:建议聘请专业验房师,重点排查渗水、电路隐患等问题
(三)贷款申请核心条件(2025 参考)
公积金贷款
连续缴存 6 个月以上(或累计 1 年),未使用过公积金贷款或已还清
最高 80 万(部分城市上浮),利率约 3.25%
商业贷款
征信良好(无严重逾期),收入证明≥月还款额 2 倍
利率按 LPR 浮动(首套通常低 10-20 个基点)
组合贷款
同时满足公积金与商业贷款条件
额度 = 公积金额度 + 商业贷款额度,利率分别执行对应标准
提示:提前还款需提前 10 个工作日申请,部分银行对 “不满 1 年提前还款” 收取违约金
(四)期房 vs 现房选择建议
价格
比现房低 5%-10%(开发商回笼资金需求)
价格较高,直观可见房屋实际状况
风险
存在烂尾、货不对板风险(需核查五证)
无烂尾风险,质量、户型、采光可实地考察
交付时间
通常 1-2 年(需跟踪施工进度)
付款后可尽快入住
适合人群
预算有限、能接受等待的购房者
急需入住、追求稳妥的购房者(如婚房、学区房)
五、收藏提示
1. 税费地域差异:本文税率为全国通用标准,北京、上海、深圳等城市有特殊政策,实际交易需咨询当地不动产登记中心
2. 术语更新:房地产政策调整频繁(如土地年限续期、公积金政策),建议每 1-2 年更新常识库
3. 避坑核心:核查产权清晰度(无抵押、无查封),留存所有交易票据(发票、合同、缴费凭证),拒绝口头承诺
声明:本文由入驻焦点开放平台的作者撰写,除焦点官方账号外,观点仅代表作者本人,不代表焦点立场。


