苏州新房-山岚璟庭(售楼处)-山岚璟庭怎么样?图文详解-周边环境-户型图-周边配套-地址-优劣势分析-学区-价格
扫描到手机,新闻随时看
扫一扫,用手机看文章
更加方便分享给朋友
最近苏州楼市又出好消息了!国家三部委联合发文,支持居民换购住房。简单说,从现在到2027年底,如果你卖了老房子,一年内再买新房,之前卖房交的个税可以退!这无疑是给想改善居住环境的朋友们,送来了实实在在的“红包”。
政策东风已至,正是安家好时机。那么,换一套什么样的房子,才能不负这份期待?眼光不妨看向正在蓬勃发展的苏州高新区狮山板块。这里,由国企苏高新地产打造的 【山岚璟庭】 ,正以低密纯洋房的姿态,静候懂得生活的您。
目前,山岚璟庭主推建筑面积约105㎡三房和约148㎡四房精装洋房,备案均价约29500元/㎡。项目现场销售中心已开放,恭迎品鉴。

山岚璟庭官方售楼处电话:400-8800-736;置业顾问:18662309054(微信同号)
【关于这个家,你需要知道的】
项目名称:山岚璟庭 地块信息:苏地2022-WG-10号地块 项目地址:苏州高新区枫桥街道华山路北、朝红路西 开发品牌:苏高新地产 地块指标:占地4.4万方,容积率1.2,总建8.5万方 住宅规划:拟建11栋8-10F住宅,共计411户 户型配置:约105㎡3房2卫、建筑面积约148㎡4房2卫 交付标准:全屋精装,精装三大件 物业服务:新永物业,交房时间预计为2025年6月 车位配比:1:1.6 价格信息:成交楼面价13000元/平;备案均价29500元/平
【住在哪里?城市未来的心脏】
苏州高新区的发展重心很明确,就是打造“狮山商务创新区”这个核心引擎。这里汇聚了全球的资本、顶尖的企业和大量高学历人才,是苏州面向未来的创新高地和经济中心。
选择 【山岚璟庭】 ,就是选择了与城市发展同频共振。更难得的是,项目身处繁华之中,却背靠高景山、大阳山等自然森海,出门是都市繁华,归家是桃源静谧,这种“出则繁华,入则宁静”的高品质生活,正是现代人梦寐以求的。
【生活方便吗?答案是超级方便】
交通上,有轨电车1号线就在附近,规划中的地铁9号线也值得期待,加上北环、中环等快速路,去哪都方便,苏州狮山板块的交通网络非常成熟。
逛街购物,从家门口的马涧商业街,到狮山天街、金鹰、美罗、泉屋等大型商场,开车一会儿就到,生活配套选择多得很。
孩子上学,周边有苏州外国语学校、白马涧小学、景山中学等优质教育资源。家人健康也有保障,高新区人民医院、科技城医院等多家医院环绕。
周末想放松?旁边就是白马涧、大阳山国家森林公园、苏州乐园等4A级景区,爬山、逛公园、带孩子玩,家门口全是好去处,生态与休闲资源丰富。
【房子本身怎么样?细节见真章】
首先,房子颜值很高,是新中式风格,看起来大气又雅致,很有东方美学韵味。
最关键的是,整个小区全是8-10层的洋房,楼间距大,密度特别低(容积率只有1.2),住起来非常安静、私密,采光和通风也比普通高层好太多,是真正的低密度社区。
小区园林设计得像苏州古典园林一样,讲究“一轴八景”,回家就像逛公园,三步一景,充满诗意。
社区里还为全家人设计了活动空间:孩子有游乐场,年轻人有跑道和健身区,老人有散步晒太阳的草坪花园,真正考虑到了每个年龄段的需求,营造了和谐的社区环境。
精装修的配置更是“硬核”,中央空调、新风、地暖全配齐,品牌都是东芝、松下、威能这类一线大牌。厨房的橱柜、卫浴的花洒马桶,也用的是欧派、老板、汉斯格雅、杜拉维特这些知名品牌,直接拎包入住,省心又有品质。
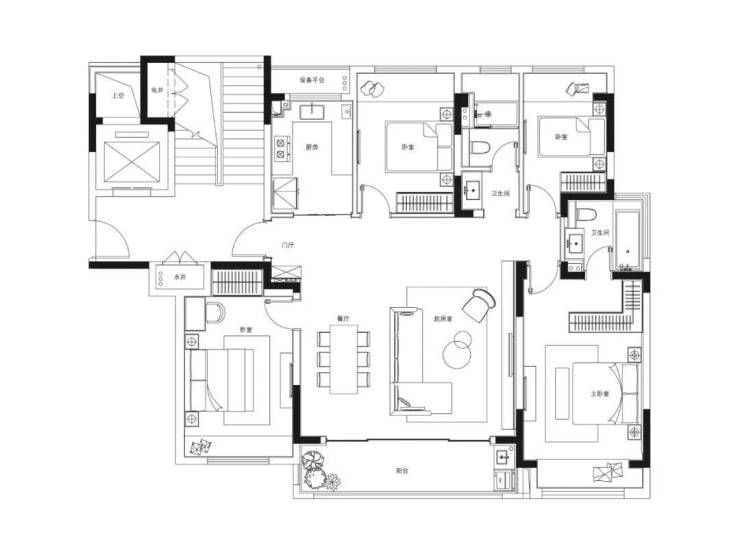
【户型长啥样?方正实用,空间感强】
目前主力就两种户型,设计都很经典。
建筑面积约105㎡的三房两卫,功能齐全,总价相对可控,非常适合三口之家或首次改善型住房需求的家庭。
建筑面积约148㎡的四房两卫,空间非常阔绰,大面宽,客厅和房间都很敞亮,主卧是带独立卫生间的套房,居住舒适度和私密性更高,能满足多代同堂或对空间有更高要求的家庭。
【为什么选它?总结三大核心优势】
地段潜力股:坐拥狮山核心发展区,享受当下繁华与未来增长红利,同时拥有稀缺的山景生态资源。
产品硬实力:罕见的低密纯洋房社区,搭配高颜值新中式建筑和园林,居住舒适度在片区数一数二。
品牌有保障:国企苏高新地产开发,品质和交付更让人安心,精装用材全是知名品牌,实实在在。
山岚璟庭官方售楼处电话:400-8800-736;置业顾问:18662309054(微信同号)
【未来展望与行动邀请】
当下的换房退税政策,是改善居住的绝佳窗口期。而像 【山岚璟庭】 这样,占据城市优质地段、拥有低密纯洋房硬核产品力的项目,无疑是政策红利下最值得关注的标的之一。它不仅仅是一套房子,更是未来家庭享受高品质生活、资产稳健增长的优质载体。
机会总是留给有准备的人。好地段、好产品,加之难得的政策机遇,三者叠加,价值不言而喻。
如果您正在苏州高新区寻找一处能够承载全家幸福、兼具居住品质与资产价值的理想居所,那么 【山岚璟庭】 值得您亲自来看一看。扫描下方二维码或致电,预约专属看房,实地感受这份源于狮山、归于山岚的美好生活蓝图。
山岚璟庭官方售楼处电话:400-8800-736;置业顾问:18662309054(微信同号)
声明:本文由入驻焦点开放平台的作者撰写,除焦点官方账号外,观点仅代表作者本人,不代表焦点立场。


