前有苏高新的荷澜庭、山水樾澜庭、狮子山澜庭珠玉在前,后有绿城在狮山有2000千万级的逸庐项目屡开屡罄,此次澜庭壹号院两大房企珠联璧合,打造合院+叠加+洋房,纯粹的低密高质,看来又来迎来抢房大战!目前狮山核心新…
刚!狮山全新合院别墅
澜庭壹号院最新动态
官方户型首爆
205套低密洋房+叠加+合院
现城市展厅已经公开
预计三季度开盘!盯紧!
售楼处电话:18662309054
1
澜庭壹号院预计三季度开盘
刚刚!狮山2025王炸明星低密楼盘,有了最新消息!
苏高新&绿城管理向阳路31号项目,案名正式曝光。
就叫:澜庭壹号院
现位于苏州日航酒店一层的
城市展厅已经公开,正在火热预约中
从案名来看,该项目不仅延续了苏高新“澜”系产品的高端基因,又注入了绿城的高端品质。
前有苏高新的荷澜庭、山水樾澜庭、狮子山澜庭珠玉在前,后有绿城在狮山有2000千万级的逸庐项目屡开屡罄,此次澜庭壹号院两大房企珠联璧合,打造合院+叠加+洋房,纯粹的低密高质,看来又来迎来抢房大战!
先来了解一下项目基本情况:
◆总 户 数:约205户
◆容 积 率:1.2
◆绿 地 率:30%
◆项目规划:17栋3F联排合院,2栋6F叠加,2栋10F洋房
◆建筑面积:约115㎡/135㎡墅境洋房
约215㎡/236㎡/259㎡见山叠墅
约271㎡/325㎡/369㎡山水合院
◆装修状态:洋房精装修、墅类毛坯
◆开发公司:苏州新高项阳建设发展有限公司
售楼处电话:18662309054

澜庭壹号院,位于新区狮山商务创新区向阳路南、是去年11月份, 苏高新&绿城管理总价10.9亿竞得,成交 楼面价25115元/㎡,溢价率0.46%。

设计美学:现代美学的东方意志
【兴造墅学】园冶为魂苏作为艺营墅境

▲项目效果图(过程稿)
【现代美学】几何构图传承与横向舒展

▲叠加效果图(过程稿)
【东方屋檐】再现身份华贵的官帽符号

▲项目效果图(过程稿)
【雅灰流金】演绎奢而有度的色彩美学


▲建筑效果图(过程稿)
售楼处电话:18662309054
2
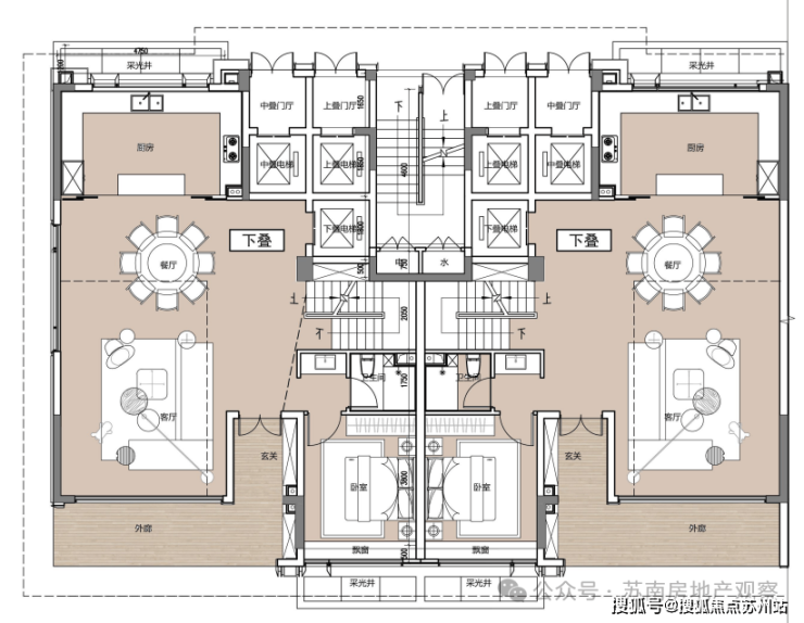
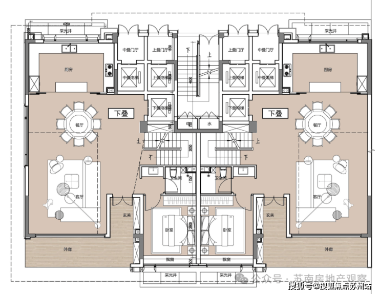
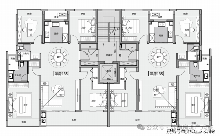
澜庭壹号院官方户型曝光!
项目整体17栋3F联排合院,2栋6F叠加,2栋10F洋房,官方户型最近也已经发布。
约115㎡/135㎡墅境洋房
约215㎡/236㎡/259㎡见山叠墅
约271㎡/325㎡/369㎡山水合院
◎联排合院265㎡ · 4房3厅4卫

◎叠加下叠275㎡ · 3房3厅3卫
▲下叠1楼


▲下叠2楼
◎洋房 135㎡ · 3+1房2厅2卫

3
狮山商务创新区
配套绝佳,有潜力
澜庭壹号院项目,位于新区狮山商务创新区向阳路南、大运路西,就在建发朗云西侧。


这块地周边就是上瑞阁、朗云,居住氛围浓厚。配套方面:
交通便捷,周边轨道 交通1/5号线汾湖路站、石城站双轨环绕,还可以快速上高架,通达全城。
◆ 5大名校云集 书香涵养:
苏州外国语学校、高新区第一中学,外国语幼儿园(在建)、狮山实验小学、高新区第一初级中学等优质学府。(非学区承诺,具体以政府划分以及批文为准)


◆ 六大商业 繁盛万象:
新区美罗、泉屋百货、狮山天街、山姆会员商店、金鹰百货、悠方购物中心、等大型城市综合体环伺,日常购物、社交聚会、娱乐休闲、品牌餐饮等一站式繁华。

◆ 智慧城央 科创企业活力区:
板块内累计集聚外资企业超1300家,吸引了近30家总部认定企业入驻,拥有市场主体达8.5万家。
◆ 人才引力 撬动未来潜力:
吸引25000+本科以上人才进驻,同时随着“一心”狮山路发展30余年,从城市地理空间上来看已然饱和。未来将依托“五园”,即从狮山路向长江路形成十字发展轴,上市企业总部园将成为狮山跃进下一站。

◆ 绿色产业 城市总部地标群
上市企业总部园,与本案仅一路之隔,总投资约13.9亿,产、学、研一体化发展定位为上市公司企业总部和数字经济企业总部园,2023年已交付竣工,2024年3月陆续入驻,目前总部园已吸引多家企业。

另外,该地块位置所在片区是狮山商务创新区,未来还有很大的发展空间,再加上这个片区新房供应陆续增加,足以说明未来这里或将是狮山的供地大户,大量的改善亟待释放。
目前狮山核心新房价格高位,供应稀缺,而绿城向阳路项目容积率仅1.2,是周边首个低密洋房+联排产品,稀缺性不言而喻!周边在售楼盘如建发朗云、中海建发禧宸,备案均价已达4.3万/㎡,而绿城项目凭借低密规划和绿城品质,有望成为狮山下一个楼市标杆!

售楼处电话:18662309054
此外,作为狮山商务创新区重点地块,这里低密住宅不断释放,很大可能将连片打造高端低密住宅区,价值可期! 入市在即