保利新江湾(营销中心)首页网站-保利新江湾销售中心(售楼处)-保利新江湾楼盘欢迎您-地址-价格-户型-小区环境-楼盘详情-交房时间-周边配套-售楼处电话

搜狐焦点苏州站 2025-12-15 11:03:06
用手机看
扫描到手机,新闻随时看

扫一扫,用手机看文章
更加方便分享给朋友

保利新江湾售楼处电话400-8673-567项目推出全新盘,拟建洋房、叠加、联排产品,定位低密,24小时售楼处电话400-8673-567。

保利新江湾

楼处电话☎:400-8673-567✔✔

如有问题欢迎来电咨询,来电即可享受买房优惠!

预约来电尊享购房优惠,可预约案场内部销售人员,专业一对一热情服务,让您用专业眼光去买房。

保利新江湾楼处电话☎:400-8673-567✔✔

保利新江湾楼处电话☎:400-8673-567✔✔

杨浦·新江湾城 全新盘

# 最新消息#

杨浦·新江湾城 全新盘

「保利发展新江湾项目」等待入市

将拟建洋房+叠加+联排产品

将推约100-300㎡左右

共计455套房源

保利新江湾售楼处电话☎:400-8673-567✔✔保利新江湾营销中心电话:400-8673-567【24小时热线】保利新江湾预约热线:400-8673-567【售楼处电话】

保利新江湾售楼处电话☎:400-8673-567✔✔保利新江湾营销中心电话:400-8673-567【24小时热线】保利新江湾预约热线:400-8673-567【售楼处电话】

基本信息

2025年9月日前,保利发展与上海地产联手,通过股权转让方式拿下新江湾城一宗地块。出让总价37亿元,成交楼面价5.89万元/㎡。这是保利发展首次在新江湾城板块拿地。

保利新江湾售楼处电话☎:400-8673-567✔✔保利新江湾营销中心电话:400-8673-567【24小时热线】保利新江湾预约热线:400-8673-567【售楼处电话】

新江湾E1-08A地块,位于新江湾城北侧,直线距10号线地铁新江湾城站约1.2公里。容积率仅约1.1,限高约20米。规划建造全部低密产品,包括洋房、叠加、联排。未来将和其南侧陆续开盘售卖中的建发海宸共同为新江湾城板块新房市场发力。

保利新江湾售楼处电话☎:400-8673-567✔✔保利新江湾营销中心电话:400-8673-567【24小时热线】保利新江湾预约热线:400-8673-567【售楼处电话】

四至范围:东至E1-09规划公共绿地,西至江湾城路,南至E1-08E公共通道,北至E1-09规划公共绿地。

而现在针对E1-08A地块的施工和监理招标也启动起来:

保利新江湾售楼处电话☎:400-8673-567✔✔保利新江湾营销中心电话:400-8673-567【24小时热线】保利新江湾预约热线:400-8673-567【售楼处电话】

杨浦区新江湾社区E1-08A地块,预计建造约238套100-139㎡6层洋房,48套160㎡叠墅(上下叠),68套170㎡叠墅(上下叠),47套190㎡联排别墅,24套215㎡联排别墅,11套260㎡联排别墅,2套350㎡联排别墅。

保利新江湾售楼处电话☎:400-8673-567✔✔保利新江湾营销中心电话:400-8673-567【24小时热线】保利新江湾预约热线:400-8673-567【售楼处电话】

网传过程稿户型图:

(仅供参考,最终以开发商发布为准)

保利新江湾售楼处电话☎:400-8673-567✔✔保利新江湾营销中心电话:400-8673-567【24小时热线】保利新江湾预约热线:400-8673-567【售楼处电话】

保利新江湾售楼处电话☎:400-8673-567✔✔保利新江湾营销中心电话:400-8673-567【24小时热线】保利新江湾预约热线:400-8673-567【售楼处电话】

约160-170㎡的叠墅户型图

保利新江湾售楼处电话☎:400-8673-567✔✔保利新江湾营销中心电话:400-8673-567【24小时热线】保利新江湾预约热线:400-8673-567【售楼处电话】

保利新江湾售楼处电话☎:400-8673-567✔✔保利新江湾营销中心电话:400-8673-567【24小时热线】保利新江湾预约热线:400-8673-567【售楼处电话】

保利新江湾售楼处电话☎:400-8673-567✔✔保利新江湾营销中心电话:400-8673-567【24小时热线】保利新江湾预约热线:400-8673-567【售楼处电话】

保利新江湾售楼处电话☎:400-8673-567✔✔保利新江湾营销中心电话:400-8673-567【24小时热线】保利新江湾预约热线:400-8673-567【售楼处电话】

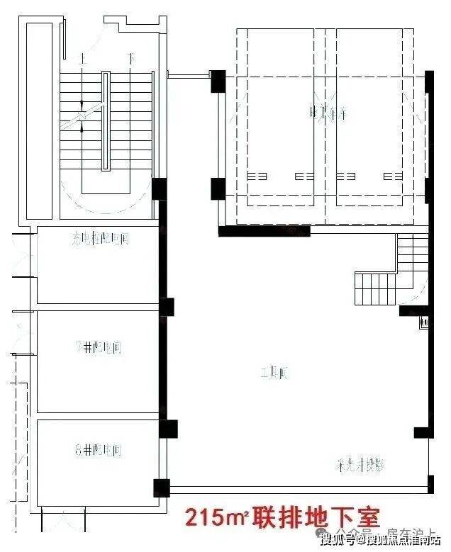
约215㎡的联排户型图

保利新江湾售楼处电话☎:400-8673-567✔✔保利新江湾营销中心电话:400-8673-567【24小时热线】保利新江湾预约热线:400-8673-567【售楼处电话】

保利新江湾售楼处电话☎:400-8673-567✔✔保利新江湾营销中心电话:400-8673-567【24小时热线】保利新江湾预约热线:400-8673-567【售楼处电话】

项目南侧不远处是杨浦德法学校,再往南就是目前新江湾城板块在售的新盘建发海宸,未来入市,相信能和建发海宸形成协同作用,共同提升新江湾城板块的居住焕新价值。

E1-08A地块总投资达到70亿元,总建筑面积达到11.9万平方米,其中地上面积达到6.7万平方米。而计划的开工日期是2025年12月20日。

按照这个时间节点推算,预计该项目最快有机会在2026年1月首开入市销售。至于价格,参考地块南侧的建发海宸,预计洋房未来可能售价在11.5万左右,别墅产品有望在13-15万价格区间。

声明:本文由入驻焦点开放平台的作者撰写,除焦点官方账号外,观点仅代表作者本人,不代表焦点立场。