【中铁建·花语前湾】
售楼处电话☎:400-8673-567(预约热线)✔✔✔
如有问题欢迎来电咨询,专业一对一热情服务,让您用专业眼光去买房。
中铁建·花语前湾售楼处电话☎:400-8673-567【售楼热线】✔✔✔营销中心热☎400-8673-567售楼处地址☎400-8673-567


闵行·华漕
地铁13号线 开市客/印象城旁
「中铁建·花语前湾」最后4套一口价房源
花语前湾
仅余约99-101㎡3房
中铁建花语前湾售楼处电话:400-8673-567
上海·中铁建花语前湾24小时vip热线☎:400-8673-567(一对一热情服务)
对项目感兴趣的朋友
提前预约咨询、参观!
均价7.07万/㎡ 清盘更多折扣

项目直线距离芳乐路站约680米,13号线西延伸(在建中)、示范区线
(在建中)、地铁25号线
(规划中)

中铁建花语前湾售楼处电话:400-8673-567
上海·中铁建花语前湾24小时vip热线☎:400-8673-567(一对一热情服务)

中铁建花语前湾售楼处电话:400-8673-567
上海·中铁建花语前湾24小时vip热线☎:400-8673-567(一对一热情服务)

热销密码(楼盘价值点):
1、大虹桥核心区&上海十四五规划前湾核心区
2、两大商圈旁(开市客&印象城)
3、13号线延伸段轨交旁
4、前湾产业规划(生物医药&文创电竞&数字经济)
5、咫尺12年制华师大强劲公立教育配

示范区实景图
1
基本信息
2023年7月12日上海第二批次土拍中,中国铁建以总价约61.47亿元竞得闵行区华漕镇MHP0-1402单元16-05、17-04地块(即中铁建·花语前湾),地块面积6.01公顷,容积率2.5,房地联动价69500元/㎡。

中铁建花语前湾售楼处电话:400-8673-567
上海·中铁建花语前湾24小时vip热线☎:400-8673-567(一对一热情服务)
项目地块东至纪翟路、南至雅乐路、西至双鹤浦、北至方林浦,距离13号线/示范区线芳乐路站约600米,西侧紧邻开市客和印象城。
作为中国铁建地产2023年的花语系迭新之作,中国铁建·花语前湾,对建筑、景观、产品设计等方面进行深化,围绕“静谧、优雅、隐逸、美学、平衡”五个关键词打磨产品,在快速的城市节奏中营造一方归心宁静的栖所。

中铁建花语前湾售楼处电话:400-8673-567
上海·中铁建花语前湾24小时vip热线☎:400-8673-567(一对一热情服务)
独有的新江南风格:
花语前湾于约23万方土地之上,以一轴三带四园,打造现代东方风格的写意景观,让家园温度可感可视化的同时,也让项目贴合前湾“东潮西溯”特征。

效果图,以实际交付为准
项目规划“一轴三带四园”景观布局、约800㎡阳光草坪、三大中心花园、生态景观一应俱全,在花语前湾,生活是极其丰富多彩的,两块地块中间设有260米长邻里生活街区,约4000㎡沿街商铺配套,极大便利了业主生活娱乐购物需求,将成为社区重要的时尚、社交、休闲聚场。
中铁建花语前湾售楼处电话:400-8673-567
上海·中铁建花语前湾24小时vip热线☎:400-8673-567(一对一热情服务)

效果图,以实际交付为准
强烈的尊贵感和归家仪式感:
项目主入口仿照五星级酒店打造环岛式落客区,超48米星级酒店式迎宾门廊、约10米挑高归家大堂。
效果图,以实际交付为准

中铁建花语前湾售楼处电话:400-8673-567
上海·中铁建花语前湾24小时vip热线☎:400-8673-567(一对一热情服务)
并放弃多套房源,设计了架空层,设有读书空间、茶室、儿童滑梯等功能空间,让邻里之间在有趣的社群中变得更亲近。
效果图,以实际交付为准

2
推售信息
花语前湾四期将推约101㎡/118㎡3房&144㎡4房,上期均价68878元/㎡,最快将于六批次入市!
「四期加推楼栋为3/5/17/19/20幢」

中铁建花语前湾售楼处电话:400-8673-567
上海·中铁建花语前湾24小时vip热线☎:400-8673-567(一对一热情服务)

效果图,以实际交付为准
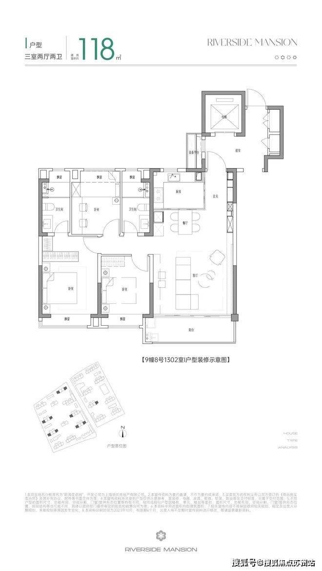
四期全套户型图发布:
「约101㎡ 3房2厅2卫」

中铁建花语前湾售楼处电话:400-8673-567
上海·中铁建花语前湾24小时vip热线☎:400-8673-567(一对一热情服务)
「约118㎡ 3房2厅2卫」

中铁建花语前湾售楼处电话:400-8673-567
上海·中铁建花语前湾24小时vip热线☎:400-8673-567(一对一热情服务)
「约144㎡ 4房2厅2卫」

中铁建花语前湾售楼处电话:400-8673-567
上海·中铁建花语前湾24小时vip热线☎:400-8673-567(一对一热情服务)

中铁建花语前湾售楼处电话:400-8673-567
上海·中铁建花语前湾24小时vip热线☎:400-8673-567(一对一热情服务)

国际一线精装品牌:
项目全屋三大件配齐:东芝(或同等品牌)中央空调、威能(或同等品牌)地暖、松下(或同等品牌)新风。
样板间实景图

中铁建花语前湾售楼处电话:400-8673-567
上海·中铁建花语前湾24小时vip热线☎:400-8673-567(一对一热情服务)
厨房配有方太三件套(或同等品牌)油烟机+燃气灶+12套嵌入式洗碗机。
样板间实景图

卫生间使用杜拉维特(或同等品牌)整体智能马桶、汉斯格雅(或同等品牌)花洒+龙头。
样板间实景图

中铁建花语前湾售楼处电话:400-8673-567
上海·中铁建花语前湾24小时vip热线☎:400-8673-567(一对一热情服务)
居家细节方面:
项目全屋配备入户玄关柜,内部活动板可调,鞋柜自带鞋柜精灵。
厨房配备前端净水器、凉霸。在水槽下方还贴心设计檐口翻板收纳和拉篮。
样板间实景图

中铁建花语前湾售楼处电话:400-8673-567
上海·中铁建花语前湾24小时vip热线☎:400-8673-567(一对一热情服务)
全屋墙布交付,甚至连局部免漆木饰面格栅+仿大理石岩板也是交付标准,诚意之高见微知著。
在卫生间,主卧镜柜内置美妆冰箱,方便女主人储物各种面膜,化妆品等物件。客卫镜柜内置插座,可以给电动牙刷、剃须刀充电,吹头发也不用扯长长的电线。
高规格居家从每一处体现得淋漓尽致。
样板间实景图

中铁建花语前湾售楼处电话:400-8673-567
上海·中铁建花语前湾24小时vip热线☎:400-8673-567(一对一热情服务)
3
周边配套
中国铁建·花语前湾位于炙热的 闵行前湾板块。

中铁建花语前湾售楼处电话:400-8673-567
上海·中铁建花语前湾24小时vip热线☎:400-8673-567(一对一热情服务)
交通方面,项目直线距离虹桥枢纽约5.5km,如自驾出行,周边有京沪、沈海、沪常等高速公路;距离「芳乐路」仅约600米,该站点集齐13号线(在建中)、25号线(规划)、示范区线(在建中)三轨交!未来还将在该站点上进行高强度的TOD开发!

中铁建花语前湾售楼处电话:400-8673-567
上海·中铁建花语前湾24小时vip热线☎:400-8673-567(一对一热情服务)

前湾地区TOD开发示意图
商业方面, COSTCO、前湾印象城MEGA(建设中)就在项目西侧,步行可达;超级合生汇(建设中)直线距离仅约1.2km,不管是体量还是能级,前湾现阶段的商业都能在满足日常生活需求的基础上还能提供更多娱乐消费场景。

中铁建花语前湾售楼处电话:400-8673-567
上海·中铁建花语前湾24小时vip热线☎:400-8673-567(一对一热情服务)
前湾印象城MEGA,总投资约30亿,规划了约14万㎡的购物空间、约1.4万㎡的办公以及超10万㎡的配套车库,目前已开工建设!

中铁建花语前湾售楼处电话:400-8673-567
上海·中铁建花语前湾24小时vip热线☎:400-8673-567(一对一热情服务)
前湾印象城MEGA效果图
超极合生汇落地虹桥国际中央商务区闵行片区的虹桥前湾地区,建成后集购物中心、电竞产业园、五星级酒店、专业电竞赛馆为一体,设置了全球首个双电竞场馆。

超级合生汇效果图
教育方面,闵行华漕是大虹桥中仅有的拥有强劲公立教育配套的区域,项目周边就是3.0版基础教育实验园区:华东师范大学基础教育实验园区,包括7所学校。
这个教育集团内设7所集幼小初为一体的公办教育园,其中包括:华东师范大学新虹桥实验幼儿园(公办,含南北两个园)、华东师范大学新虹桥实验小学、华东师范大学新虹桥实验初中、华东师范大学知序实验幼儿园(民办,两方协议已于2019年4月签约),10-07地块幼儿园、08-01及08-02地块九年一贯制学校。其中的小学地块已经启动招标,工期大概2年左右!

不仅如此,华漕镇板块周边还拥有7所著名的国际学校,美、新加坡韩英德法西华和台商子女学校、诺德安达双语学校,更有青浦世界外国语学校(12年制)。
医疗方面,华漕汇集了全球顶尖医疗资源,斥资120亿打造的新虹桥国际医学中心,总占地100公顷!目前已入驻的医疗机构有:复旦大学附属华山医院西院、新加坡百汇医疗集团、复旦儿童医院、日本BML株式会社等,7所专科医院+1所综合性三甲医院分院+1个医技中心。

新虹桥国际医学中心
前湾的轨交、商业、教育、医疗,各方面都是不仅全且能级高,生态方面也是虹桥主城的“独一份”。
TLS的 “尚水之城”方案,赢得了由闵行区组织的虹桥主城前湾地区城市设计国际竞赛,成为中标方案,规划范围10平方公里,10倍于陆家嘴中心绿地的体量,对标世纪公园,规划打造“翡翠绿廊”。

前湾公园效果图
前湾公园2022年11月已经正式开工,构建“一湾、两湖、三区”的景观格局,C型水湾串联公园景观和公共空间,围绕彩虹湖、霁月湖形成公园最繁华的两大活力核心,地标建筑和景观活动打卡胜地环绕公园,塑造独具魅力的城市水岸;结合周边城市功能,打造文化前湾,森趣前湾和运动前湾三大分区。(信息来源:TLS景观)

前湾公园效果图
相比起成熟的徐泾,新盘、配套只能进行点状的开发更新,前湾是虹桥非常难得的成片开发的大区,全方位配套都是更新的、能级更高的!而且前湾受虹桥机场净空限高影响小,能够自由规划更高、更有想象力的天际线,这也决定它的上限是大虹桥中更高的!
而中国铁建·花语前湾作为前湾核心的标杆项目,品质给力,未来价值非常值得期待!

中铁建花语前湾售楼处电话:400-8673-567
上海·中铁建花语前湾24小时vip热线☎:400-8673-567(一对一热情服务)
地铁13号线 开市客/印象城旁

中铁建花语前湾售楼处电话:400-8673-567
上海·中铁建花语前湾24小时vip热线☎:400-8673-567(一对一热情服务)

中铁建花语前湾售楼处电话:400-8673-567
上海·中铁建花语前湾24小时vip热线☎:400-8673-567(一对一热情服务)

中铁建花语前湾售楼处电话:400-8673-567
上海·中铁建花语前湾24小时vip热线☎:400-8673-567(一对一热情服务)

中铁建花语前湾售楼处电话:400-8673-567
上海·中铁建花语前湾24小时vip热线☎:400-8673-567(一对一热情服务)

中铁建花语前湾售楼处电话:400-8673-567
上海·中铁建花语前湾24小时vip热线☎:400-8673-567(一对一热情服务)

中铁建花语前湾售楼处电话:400-8673-567
上海·中铁建花语前湾24小时vip热线☎:400-8673-567(一对一热情服务)

「中铁建·花语前湾」最后4套一口价房源
仅余约99-101㎡3房
均价7.07万/㎡ 清盘更多折扣


中铁建花语前湾售楼处电话:400-8673-567
上海·中铁建花语前湾24小时vip热线☎:400-8673-567(一对一热情服务)
中铁建花语前湾售楼处电话:400-8673-567【开发商售楼中心热线】上海·中铁建花语前湾营销中心热线400-8673-567上海·嘉定中铁建花语前湾居售楼处地址400-8673-567,楼盘项目全面介绍,本电话为开发商提供线 上预约售楼电话,楼盘项目全面介绍(包含楼盘简介,均价,房价,现房,期房,别墅,叠墅,大平层,价格,楼盘地址,户型图,交通规划,备案价,备案名,项目配套,样板间,开盘时间,认筹时间,楼盘详情,售楼处电话,最新消息,最新详情,周边配套,一房一价,最新进展等详情咨询)楼盘详情丨价格丨更多优惠丨机不可失丨欢迎致电丨诚邀品鉴!售楼处位置丨特价房丨工抵房丨剩余房源丨户型图丨最新消息丨免责声明:将文章内容综合来源于网络、只作分享,版权归原作者所有!!如有侵权,请联系我们,我们第一时间处理如有问题欢迎来电咨询,专业一对一热情服务,让您用专业眼光去买房。如果您想了解更多楼盘详情,欢迎提前预约拨打上海·嘉定中铁建花语前湾售楼处电话☎400-8673-567✔✔✔
125㎡现代美式侘寂互相混搭,室内温暖恬静,一步一景,惊艳全小区
江苏
一对手工艺夫妻,女主人喜欢把不同风格混搭在一起,凸显出不俗的品位,这次更是把现代、美式和侘寂相融合,整个家居氛围在自简洁流动的空间底色上,摹画出折中主义的混搭之美,用一步一景来形容绝不为过。室内也借由胡桃木、洞石等温润天然的质感元素串联编织,赋予空间独一无二的场景内涵,打造出由艺术递进而成温暖、恬静而又悠然的生活场所。

看完整个家,太喜欢了,一半是生活一半是艺术,惊艳全小区。
125㎡,打破空间桎梏,做商住两用

这套125平方米的空间,原始结构条件良好,有宽敞的格局与采光,但与自身对家的期待并不相同,家不仅需要满足日常生活需要,还能兼顾到日常商业办公,平衡生活与创作的灵感。于是设计师 打破空间桎梏,把结构进行重组,使用隔断的方式分离工作区域和私人生活区域,实现空间多元化生活需求。
玄关

鞋柜功能放在电梯间,这是一梯一户的优势。推开原木色的拱形双开入户大门,让回家充满了仪式感,从容而又不失优雅。正对大门的墙面借由白与墨绿的撞色,让公私两区自然分离,同时也形成一眼难忘的玄关端景。
客厅

来到客厅,充分感受到混搭之美。在当下快节奏的时代,用暖色墙面以及富有肌理质感的家具,营造出质朴自然的空间氛围。

客厅在设计上运用有规律的弧度与利索的直线条相互交织,展现出屋主对自由、随性生活的向往。墙面用上黑胡桃木饰面的墙裙,自玄关向空间左右延展,也划分出会客区与手作区,这美式复古的线条,为空间碰撞出独有的艺术质感,营造美式温馨自由的氛围。

而藤编靠背的绿色定制沙发又有几分南洋的味道,让空间充满了自然与祥和的生活气息。

镜头对准电视背景,不,这个家已经没有装电视机了,在装饰柜上方顶上嵌入电动幕布,满足偶尔的观影需求,少了电视机,用与工作息息相关、放置自己手工制的饰品,利用恰到好处的软装搭配,赋予空间更多的精致感。

在这面墙的背后,就是工作区,将客厅、阳台和工作区串联在一起,打破传统的空间格局,建立起多元化的使用场景。
工作区


作为一名珠宝手工设计师,有着高标准的审美。将工作区延续着暖色墙漆与胡桃木,再次感受到温暖与美好,它没有装门,偶尔灵感突来可以随时进入并把它记录下来。

靠墙设计展示柜,再次利用复古色块进行撞击,尽显时尚气质。开放式层板除了收纳外还起到展示效果。
阳台


工作累了倦了,再来阳台小憩片刻,临窗摆放休闲桌的组合,来杯咖啡或者下午茶,这里便是最好的地方。透过明亮的大窗可以感受到户外自然,在室内也造了小景,在侧面利用一小块空间打造落地窗景观,让室内与室外无缝隙衔接。
餐厅


现在装修,很多人都明白空间不能是单一固定的,要多元化才行。就像这位业主,与设计师合计将餐厅改造成能兼顾举办手作活动区,选择一张洞石长桌,质朴而又具有古典尊贵气质。这种洞石,在侘寂风格里出镜率很高,让空间有了拙朴之美,多了几分厚重感。

这个洞石长桌,两端弧形设计,呼应家里多处硬装,它的尺度十分合宜,在餐厅C位,再混搭中古单椅,每一张各有特色又气质统一,打造和谐大气的空间氛围。
在餐厅北边就是开放式厨房与生活阳台,整个动线拿捏到位,让空间不仅有美的艺术享受,还兼顾到实用。
卧室


进入私密空间,同样感受到了松弛。把干区的台盆外置,形成干湿分离,也充分解放也洗漱空间。造型精致的双台盆设计可以让夫妻两人共同洗漱,浪漫又美好。

整个卧室氛围十分的温暖舒适,墙面同样用了暖色,大面积同色系的情况下再用胡桃木家具,绿色提亮,空间鲜活明朗,让人心旷神怡!
儿童房


结合儿童自己的爱好,用上复古蓝色,显得格外稳重端庄而清新文艺。和女主人一样,从小的审美就别具一格,床边用了纸艺的落地小灯,却让空间透露着几分天真与可爱。

还记得我们在入户大门看到的白绿墙面吗?右边就是公卫的洗手盆,选择了奢石,木材与金属的结合,为墙面增加精致的效果,弧形包裹设计让这里成为家中一大亮点。
小结

以上就是本期内容,像这种 将光影拿捏得恰到好处,全屋在朴素与精致之间的装修确实很考验装修者。如果你也是在上海,不妨去聚通看看,聚通装潢创立于1994年,隶属于上海聚通装饰集团有限公司,拥有国家住建部颁发《建筑装饰工程设计专项甲级》、《建筑装修装饰工程专业承包一级》资质。它是一家全系统标准化管理、全物料自选直供;涵盖软装、智能家居、大型建材自营商场;并提供高端、中高端、中端、大众消费等各阶层 个性化家装整体解决方案的本土龙头家装企业。


除了能设计出精致大气的装修风格,而且还有金鲁班工地标准施工工艺,要知道装修最重要的就是工艺,工艺做到位,家住起来就越舒适。而且正值聚通30周年庆,各项活动优惠很大,要装修先领券,限时发放大额家装补贴,每户超万元,赶紧领取!需要的朋友可以去看看!
楼盘项目全面介绍 ,本电话为开发商提供线上预约售楼电话,楼盘项目全面介绍(包含楼盘简介,均价,房价,现房,期房,别墅,叠墅,大平层,价格,楼盘地址,户型图,交通规划,备案价,备案名,项目配套,样板间,开盘时间,认筹时间,楼盘详情,售楼处电话,最新消息,最新详情,周边配套,一房一价,最新进展等详情咨询)楼盘详情丨价格丨更多优惠丨机不可失丨欢迎致电丨诚邀品鉴!售楼处位置丨特价房丨工抵房丨剩余房源丨户型图丨最新消息丨免责声明:将文章内容综合来源于网络、只作分享,版权归原作者所有!!如有侵权,请联系我们,我们第一时间处理如有问题欢迎来电咨询,专业一对一热情服务,让您用专业眼光去买房.如果您想了解更多楼盘详情,欢迎提前预约拨打售楼处电话400-8673-567
买房注意事项
1、买房子尽量买一期开发的,一般说来价格便宜而且质量好。
2、买房前试验隔音情况,否则会很痛苦。
3、不要买二层,一般厨房下水道是二层往上一条,一层独立一条。这样二层是最容易发生堵塞的,如发生堵塞倒灌,其状惨不忍睹。
4、买房子要注意不要买临街的,噪音太大,即使是一条小路,也有发展成菜市场的潜力。
5、窗子外侧一定要是往外倾斜,否则窗子上的密封胶老化了就会水淹七军。
6、窗户的纱窗一定要买内置的,否则掉在地上还好,掉在人上就难办了。
7、窗户应是推拉式,在中间关的,密封性好。
8、注意你所买的房子的位置,小心你的楼下空地成为停车场。
9、不要买顶层,顶层容易出现漏水现象,虽然能修理但耗时耗力,修理时间极可能被无限延长不要买带厨房下水道的地下室,否则崩溃是早晚的事情。
10、卫生间的防水很重要!!!一定要鼓动你的楼上和你一起在交房时做足48小时的闭水试验,确定其防水性能,否则一旦漏水后果会非常痛苦。
11、要注意小区里的车位数量,也许近期你不买车但不带表以后不会。
12、家里的水管,暖气管道都要打压试一下,尤其是暖气。个别暖气片,会直接影响室温,如果安反了,想要改过来极其困难,全安反了还可以在外面改,但如果安错了一两片,则要砸地面。
13、如果你的房子是带单元对讲的,那别买一层,关门声能让你疯掉,报警声威力更是惊人。
14、房子里的对讲系统一定要问明性能和使用方法,并且仔细试验,否则那些宣传中优越的性能可能只是宣传而已。
15、厨房一定要有地漏,这样有个万一水管爆裂,还有个地方漏水,不至于让家里成了太平洋。
16、千万不要相信那些售楼小姐说的什么外国进口门窗,越是如此,门窗配件越难买,后期物业根本弄不了。
17、家里的入户门带猫眼的是防盗门,不带猫眼的是防火门,如果发生火灾猫眼会爆炸,但如果有陌生人,猫眼看得见。看你需要。
18、装修时不要动卫生间的地砖,不要自己重新做防水—除非你有钱没地方花,要知道开发商并不是心甘情愿的为你保修防水的,他们正愁找不到理由呢。