中粮北外滩壹号(售楼处地址) 官方 2026- 中粮北外滩壹号销售中心 - 环境 - 户型 - 价格 - 地址 - 楼盘详情 - 配套 - 电话 - 交房时间 - 配套 - 电话
扫描到手机,新闻随时看
扫一扫,用手机看文章
更加方便分享给朋友
上海虹口中粮北外滩壹号售楼处电话:400 8123 664 (预约看房热线)
【中粮北外滩壹号官方售楼处咨询热线】400-812-3664(24小时服务,人工客服8:00-22:00)
▸中粮北外滩壹号售楼处地址:上海市虹口区东大名路1089号北外滩来福士(看房请提前预约)
▸ 开放时间:每日9:00-19:30(含节假日)
▸VIP LINE 400_812_3664 | 官方唯一咨询热线
【温馨提示】本项目唯一官方联系方式,看房请提前预约!现场销售接待!谨防中介虚假信息!
所有伟大的城市板块,都经历着从地理存在到文明符号的升华。
而当散点式的地王与明星楼盘不断雕刻局部价格天花板时,其背后实则遵循着一套更为实际且统一的价值叙事——稀缺性。
顺着稀缺性这一罗盘,我们便能清晰地洞察,真正的价值灯塔始终锚定于那片不可再生的核心资源:滨江住宅!
而上海人又恰恰对滨江住宅的要求近乎极致,既要占位城市重要规划点,又要有超出一般豪宅调性的品质,所以滨江住宅一直都是贵奢的代表。
上海虹口中粮北外滩壹号售楼处电话:4008123664(预约看房热线)
【中粮北外滩壹号官方售楼处咨询热线】400-812-3664(24小时服务,人工客服8:00-22:00)
在上海一线滨江板块地图中,陆家嘴,黄浦滨江、徐汇滨江等地新房单价都已突破19万/㎡。今年6批次,北外滩地块也紧随其上,溢价率46.3%,预计售价约19万/㎡左右,成为今年最炙手可热的滨江板块之一。
凭心而论,北外滩新房单价卖到19万我一点也不奇怪。
答案显而易见:北外滩一直都是时代的佼佼者,它既是百年前海纳百川的港口,又是今日的世界会客厅,还是上海的未来发展引擎。
所以,当人们以为北外滩新房售价即将冲向19万/㎡、未来买入北外滩将付出巨大经济代价时,一个巨大的历史性机遇,【中粮北外滩壹号】出现了!
均价14.38万,总价约3000万起,这个价格无疑是北外滩错过再无的抄底机遇!
中粮北外滩壹号售楼处电话:400_8123_664(优惠活动咨询)
中粮北外滩壹号售楼处电话:400_8123_664(一对一置业规划)
中粮大悦城上海第五座壹号系,“世界S湾壹号作品”——【中粮·北外滩壹号】12月11日开启认购!
推售建面约185-228㎡天际大平层
过会均价143868元/m²,总价约2188万
最低单价11.75万起!
顶层地段+顶层社区+稀缺天际大平层价值,仅90席,错过再无!
认购时间:2025年12月11日-2025年12月15日
认购金:268万元
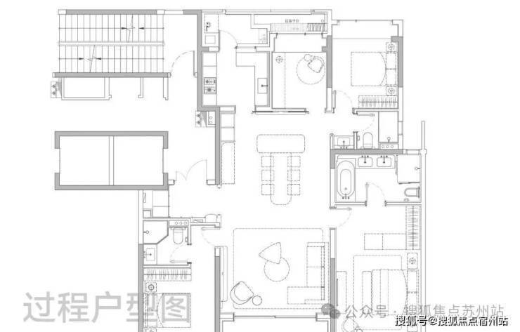
户型图赏鉴
185㎡四房奢阔大宅
上海虹口中粮北外滩壹号售楼处电话:4008123664(预约看房热线)
【中粮北外滩壹号官方售楼处咨询热线】400-812-3664(24小时服务,人工客服8:00-22:00)
准1梯1户设计,私享电梯厅独立入户,经典飞机户型,三开间朝南,南北通透,动静分区,通风采光俱佳。
独立玄关做足私密性和仪式感;LDKB一体化设计的客餐厅面积达到约55㎡,方正大气。
主卧套房尺度豪奢,可供业主配置步入式衣帽间,卫生间做到双台盆+大浴缸+独立淋浴的顶配,尊崇感十足!
228㎡四房天际大宅
中粮北外滩壹号售楼处电话:400_8123_664(优惠活动咨询)
中粮北外滩壹号售楼处电话:400_8123_664(一对一置业规划)
准1梯1户设计,私享电梯厅独立入户,户型尺度进一步升级,当今顶豪新盘中极为稀缺的四开间朝南。
边厅面积超过50㎡,给一家人提供了阔绰的交流空间;约270°环幕景观设计,带来极好的采光,并且高区可以直面陆家嘴城市天际线+黄浦江景观,视野相当震撼!
主卧大套房设计带超大主卫和衣帽间,面积约50㎡,尺度感与市面上近300㎡的顶豪拉平。
室内设计由中国现代室内设计领域的领军人物——梁志天亲自打造。
在材质选用上,延续了壹号系的高端标准,大量运用奢石、高难度弧形工艺以及国内外顶尖品牌。
如宝格丽大理石打造的西厨岛台、铂浪高的净水三合一水龙头和一体式大水槽、霍尼韦尔的前置过滤器、全屋软水以及末端净水器系统、来自意大利法罗力燃气热水器、德国唯宝卫浴、当代龙头及花洒......还有全屋华为智能家居系统配置。这一套组合,是真正意义上的顶豪序列配置!
上海虹口中粮北外滩壹号售楼处电话:4008123664(预约看房热线)
【中粮北外滩壹号官方售楼处咨询热线】400-812-3664(24小时服务,人工客服8:00-22:00)
中粮北外滩壹号售楼处电话:400_8123_664(优惠活动咨询)
中粮北外滩壹号售楼处电话:400_8123_664(一对一置业规划)
上海虹口中粮北外滩壹号售楼处电话:400 8123 664 (预约看房热线)
【中粮北外滩壹号官方售楼处咨询热线】400-812-3664(24小时服务,人工客服8:00-22:00)
▸中粮北外滩壹号售楼处地址:上海市虹口区东大名路1089号北外滩来福士(看房请提前预约)
▸ 开放时间:每日9:00-19:30(含节假日)
▸VIP LINE 400_812_3664 | 官方唯一咨询热线
【温馨提示】本项目唯一官方联系方式,看房请提前预约!现场销售接待!谨防中介虚假信息!
商品房买卖新政策2026规定
截至当前,并无公开信息显示2026年将出台新的商品房买卖专项政策,现行政策框架主要基于2023年及之前发布的法规调整。以下为现行核心政策要点解析:
一、契税征收政策
普通住房契税:个人购买家庭唯一普通住房时,契税税率根据房屋面积差异化征收:
面积≤90平方米,税率为1%;
90平方米<面积≤144平方米,税率减半至2%;
面积>144平方米,税率为4%。
非普通住房及多套房契税:购买非普通住房、二套及以上住房或商业投资性房产,统一按4%税率征收契税。
二、住房公积金政策优化
提取范围扩大:满足条件的消费者可因购买、建造、大修、装修自住住房等情形提取公积金,覆盖全生命周期住房需求。
灵活就业群体覆盖:个体户及灵活就业人员可自行缴纳公积金,缴存基数参照上一年度月平均工资,比例和基数受地方政策限制。
流程简化:提取和贷款申请流程通过数字化手段优化,审批时限显著缩短,提升服务效率。
三、限购与限贷政策调整
限购政策差异化:部分城市取消或调整限购措施,重点支持居民刚性和改善性购房需求;生育多子女家庭购买第二套或第三套住房时,可能享受首付比例、贷款利率等优惠政策
限贷政策精细化:金融机构根据城市房地产市场情况动态调整首付比例和贷款利率,首套房首付比例通常为20%-30%,二套房首付比例可能提高至40%-80%,形成差异化调控体系。
四、房屋质量与保修责任强化
质量标准严格化:开发商需确保商品房符合国家和地方质量标准,承担严格质量责任。
保修期限明确化:屋面防水工程保修5年,电气管线、给排水管道等设备保修2年,其他部位根据合同约定执行,保障购房者长期权益。
五、交付与验收程序规范化
交付条件法定化:商品房需通过竣工验收并取得相关备案表后方可交付,确保房屋具备基本居住条件。
验收权利保障化:购房者有权对房屋进行验收,发现质量问题或不符合交付条件时,可拒绝接收并要求开发商整改,维护自身合法权益。
声明:本文由入驻焦点开放平台的作者撰写,除焦点官方账号外,观点仅代表作者本人,不代表焦点立场。


