苏州新房|星河·湖西源启|湖西源启-图文详解-户型-位置-电话
扫描到手机,新闻随时看
扫一扫,用手机看文章
更加方便分享给朋友
星河·湖西源启,备案名:崧泽源居,前身为苏地2025-WG-Z13号地块。
近日,项目公开了发布会,案名正式曝光!另据爆料,预计12月6日开放展厅!最快明年1月底开盘。
项目容积率仅1.25,拟建22栋4F叠加+2栋11F四代宅洋房,其中洋房约143㎡,叠加约167/188㎡。
目前143㎡洋房户型已公示,精装交付,分奇、偶数层,区别主要在于空中庭院。

户型过程稿,以最终官方公示为准
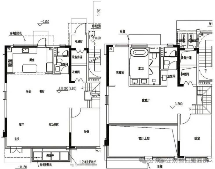
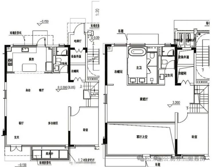
4F下叠公示户型,建面约188㎡,南北双入户,6.7m超大方厅,全卧室朝南设计;二层挑空赠送面积超大。
户型过程稿,以最终官方公示为准
更加惊喜的是,作为苏州改善新规发布后的“1号”作品,项目整体抬升,带来城市全新低密浮岛墅区!
其中叠加首层“地上架空车库”,洋房首层架空打造多功能主题泛会所,强化社区功能,并且打造多连廊贯穿,真正实现无风雨归家!

规划平面图,以实际交付为准
项目地段也不错,位于吴中区郭巷街道林家潭路南侧、通达路东侧,就在龙湖·九里璟园南侧。
出门7号线,正宗地铁盘,附近有郭巷实小、苏大附属尹山湖中学等;商业依赖尹山湖的歌林公园等,地铁6站可达苏州中心。
咨询热线:18662309054
声明:本文由入驻焦点开放平台的作者撰写,除焦点官方账号外,观点仅代表作者本人,不代表焦点立场。


