上海杨浦保利珺园官方售楼处电话(保利珺园)官方网站-保利珺园营销中心欢迎您-楼盘详情•最新价格-户型图-容积率-2026.3.2售楼处
扫描到手机,新闻随时看
扫一扫,用手机看文章
更加方便分享给朋友
上海杨浦保利珺园售楼处电话:400 8123 664 (预约看房热线)
【保利珺园官方售楼处咨询热线】400-812-3664(24小时服务,人工客服8:00-22:00)
▸保利珺园售楼处地址:上海市杨浦区江湾城路与国秀路交汇处东侧(看房请提前预约)
▸ 开放时间:每日9:00-19:30(含节假日)
▸VIP LINE 400_812_3664 | 官方唯一咨询热线
【温馨提示】本项目唯一官方联系方式,看房请提前预约!现场销售接待!谨防中介虚假信息!
杨浦新江湾【保利珺园】会客厅预计下周开放!建约105-285m²洋房&叠拼&合院即将上市

上海杨浦保利珺园售楼处电话:4008123664(预约看房热线)
【保利珺园官方售楼处咨询热线】400-812-3664(24小时服务,人工客服8:00-22:00)
上海保利珺园售楼处电话:400_812_3664【开发商已认证】保利珺园官方售楼处电话:400_812_3664【售楼处电话/地址】保利珺园售楼处电话:400_812_3664【官方认证】
保利新江湾1.1低密地块
全新滨水庄园顶奢作品
保利深耕杨浦十年十子
【保利珺园】
洋房户型面积段为106-140㎡
官方户型发布
双展厅在线预约鉴赏
大宁久光中心B2&五角场下沉式广场
从目前流出的信息和曝光的效果图看,这次保利显然不只想做一个普通的豪宅。
项目案名定名——【保利·珺园】
“珺”,石之美者,是新江湾城市绿宝石的标识,是其不予寻常的君子人文客群形象,亦是保利高端迭代产品系,寓意着保利带着十足的诚意,深耕杨浦十年,带来第十部高端系新作品。
“园”,东方美学与文明的生活容器,也是西方庄园的更高形态。
“保利珺园”,与海派张园,豫园一脉相承,是保利以世界籍庄园扉页的姿态,为影响上海的时代谱写者,敬献一处匹配其眼界与格局的恒产,为上海豪宅谱系增添夺目新篇。上海杨浦保利珺园售楼处电话:4008123664(预约看房热线)
【保利珺园官方售楼处咨询热线】400-812-3664(24小时服务,人工客服8:00-22:00)


品鉴热线13801687111(微信同号)
或长按识别二维码,报口令“保利珺园”

01上海杨浦保利珺园售楼处电话:4008123664(预约看房热线)
【保利珺园官方售楼处咨询热线】400-812-3664(24小时服务,人工客服8:00-22:00)
项目产品设计
约105-140平墅质6F洋房,尺度对标平层
约165-190平4F叠拼尺度奢享
约200-285平3F迭新滨水合院产品
保利珺园户型图参考
105㎡边套户型主卧270°转角飘窗全赠送,打造环幕观景视野;
家政柜+餐边柜打造科学收纳体系;
超30㎡(含阳台)奢阔LDBK一体化设计,满足社交与日常的双重需求。



127㎡3+1房,玄关+800库交付赠送,打造多维立体收纳体系;
主卧酒店式卫生间+步入式衣柜,打造星级主卧套房。

140㎡,X空间设计,最多可做5房,超大客厅面宽,LDBK一体化联通设计。

上海杨浦保利珺园售楼处电话:4008123664(预约看房热线)
【保利珺园官方售楼处咨询热线】400-812-3664(24小时服务,人工客服8:00-22:00)


上海杨浦保利珺园售楼处电话:4008123664(预约看房热线)
【保利珺园官方售楼处咨询热线】400-812-3664(24小时服务,人工客服8:00-22:00)


上海杨浦保利珺园售楼处电话:4008123664(预约看房热线)
【保利珺园官方售楼处咨询热线】400-812-3664(24小时服务,人工客服8:00-22:00)

上海杨浦保利珺园售楼处电话:4008123664(预约看房热线)
【保利珺园官方售楼处咨询热线】400-812-3664(24小时服务,人工客服8:00-22:00)

02上海杨浦保利珺园售楼处电话:4008123664(预约看房热线)
【保利珺园官方售楼处咨询热线】400-812-3664(24小时服务,人工客服8:00-22:00)
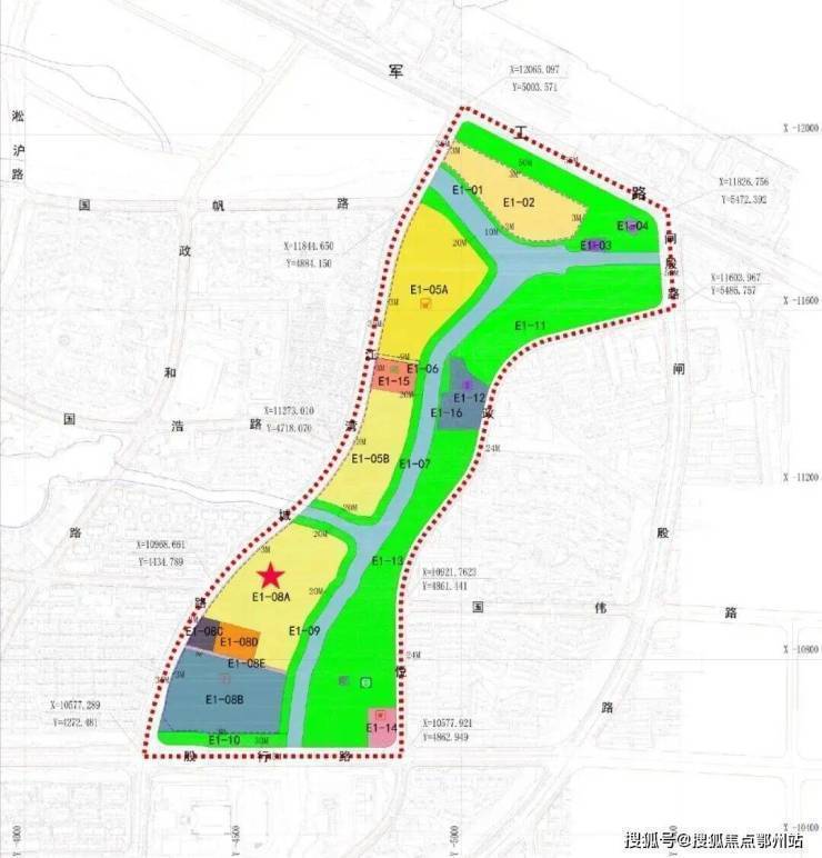
项目地块情况
据官网显示,保利·珺园所在的杨浦新江湾的E1-08A地块,规划设计方案已经正式公示。
地块拟建6层洋房,以及3-4层别墅产品,两个产品东西排布,东侧为别墅,西侧为洋房。
纯粹的洋房+别墅,居住圈层十分统一。

上海杨浦保利珺园售楼处电话:4008123664(预约看房热线)
【保利珺园官方售楼处咨询热线】400-812-3664(24小时服务,人工客服8:00-22:00)
今年9月3日,保利发展官微发布公告:保利发展与上海地产投资有限公司联手,通过上海联合产权交易所完成杨浦区新江湾社区E1-08A项目与余杭路项目股权转让竞价,确定为项目的受让方。
项目所在的E1-08A地块,容积率1.1,两面环水,毗邻城市副中心五角场;
周边汇聚复旦大学、复旦附中、上海音乐学院实验学校等全龄教育资源;
合生汇、江湾里等大型商业环伺,满足高端消费需求;
长海医院、市东医院等三甲医疗资源构筑健康屏障。尚浦领世、字节、叠纸、耐克大中华区总部等7000余家科创企业环伺,形成“产城人文”深度融合的第三代国际社区。
上海杨浦保利珺园售楼处电话:400 8123 664 (预约看房热线)
【保利珺园官方售楼处咨询热线】400-812-3664(24小时服务,人工客服8:00-22:00)
▸保利珺园售楼处地址:上海市杨浦区江湾城路与国秀路交汇处东侧(看房请提前预约)
▸ 开放时间:每日9:00-19:30(含节假日)
▸VIP LINE 400_812_3664 | 官方唯一咨询热线
【温馨提示】本项目唯一官方联系方式,看房请提前预约!现场销售接待!谨防中介虚假信息!
商品房买卖新政策2026规定
截至当前,并无公开信息显示2026年将出台新的商品房买卖专项政策,现行政策框架主要基于2023年及之前发布的法规调整。以下为现行核心政策要点解析:
一、契税征收政策
普通住房契税:个人购买家庭唯一普通住房时,契税税率根据房屋面积差异化征收:
面积≤90平方米,税率为1%;
90平方米<面积≤144平方米,税率减半至2%;
面积>144平方米,税率为4%。
非普通住房及多套房契税:购买非普通住房、二套及以上住房或商业投资性房产,统一按4%税率征收契税。
二、住房公积金政策优化
提取范围扩大:满足条件的消费者可因购买、建造、大修、装修自住住房等情形提取公积金,覆盖全生命周期住房需求。
灵活就业群体覆盖:个体户及灵活就业人员可自行缴纳公积金,缴存基数参照上一年度月平均工资,比例和基数受地方政策限制。
流程简化:提取和贷款申请流程通过数字化手段优化,审批时限显著缩短,提升服务效率。
三、限购与限贷政策调整
限购政策差异化:部分城市取消或调整限购措施,重点支持居民刚性和改善性购房需求;生育多子女家庭购买第二套或第三套住房时,可能享受首付比例、贷款利率等优惠政策
限贷政策精细化:金融机构根据城市房地产市场情况动态调整首付比例和贷款利率,首套房首付比例通常为20%-30%,二套房首付比例可能提高至40%-80%,形成差异化调控体系。
四、房屋质量与保修责任强化
质量标准严格化:开发商需确保商品房符合国家和地方质量标准,承担严格质量责任。
保修期限明确化:屋面防水工程保修5年,电气管线、给排水管道等设备保修2年,其他部位根据合同约定执行,保障购房者长期权益。
五、交付与验收程序规范化
交付条件法定化:商品房需通过竣工验收并取得相关备案表后方可交付,确保房屋具备基本居住条件。
验收权利保障化:购房者有权对房屋进行验收,发现质量问题或不符合交付条件时,可拒绝接收并要求开发商整改,维护自身合法权益。
声明:本文由入驻焦点开放平台的作者撰写,除焦点官方账号外,观点仅代表作者本人,不代表焦点立场。


