星合晋墅:双湖畔的低密生活,苏州新政下的置业良机
扫描到手机,新闻随时看
扫一扫,用手机看文章
更加方便分享给朋友
近期苏州楼市迎来一系列利好政策,公积金新政半年内累计推出15条,全面优化购房支持。多子女家庭贷款额度上浮30%-40%,最高可达210万;人才购买首套或二套房,额度最高可达225万,顶尖人才家庭最高可贷900万。首付比例统一降至15%,首套公积金贷款利率降至2.6%,二套降至3.075%。这些政策无疑为购房者减轻了经济压力,让安家梦想更加触手可及。在这样的政策背景下,星合晋墅这样的高端住宅项目,无疑是您置业升级的理想选择。
基本信息
星合晋墅,城市生活美学运营商,只定制不复制。项目拥有约50%的绿化覆盖率和约1.02的低容积率,打造宜居环境。项目业态丰富,包括7层的洋房和3层的院墅,满足不同家庭需求。主推建面约230㎡-350㎡的低密洋房,以及约400㎡-700㎡的稀缺院墅,为追求品质生活的家庭提供多样选择。
咨询热线:18662309054
18662309054
区域配套
星合晋墅周边配套齐全,让您尽享便捷生活。一站式全龄教育资源丰富,包括华林幼儿园、双湖湾教育幼儿园、翰林小学、尹山湖中学等知名学府,为孩子的成长保驾护航。医疗资源方面,双湖区域内集聚星海医院、九龙医院、独墅湖医院等权威医疗机构,全时守护家人健康。交通网络发达,近邻5号&8号地铁,金鸡湖大道、独墅湖大道、金鸡湖隧道三条黄金主轴,高效通达全城。商业配套丰富,山姆会员店、星湖天地、星月坊商业街等满足日常购物需求。休闲方面,1.6KM金鸡湖高尔夫会员专属俱乐部、3KM独墅湖公园等绿境,让您与自然为邻,收藏一座城的诗意。
品牌价值
星合控股,国际高端底蕴,为生活再设计。品牌自2003年进入苏州,深耕园区20余载,倾力打造高端住宅、奢华酒店、潮流商业标杆作品,与时代共进,全维打造国际化高端生活方式。代表作品包括苏州晋园别墅、晋合水巷邻里、晋府水巷别墅、金湖湾、洲际酒店、凯悦酒店等,每一处都是品质生活的典范。

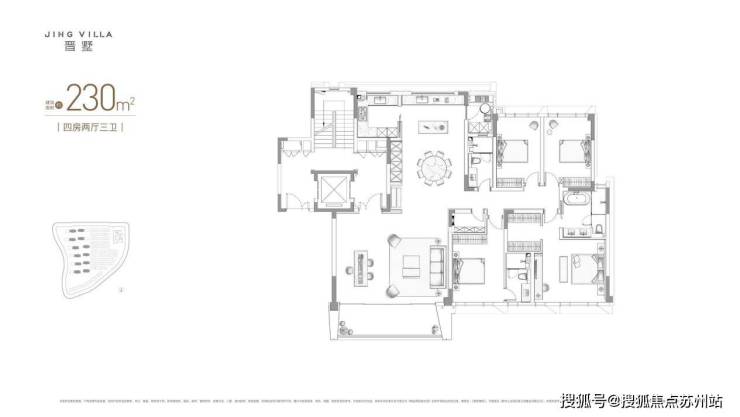
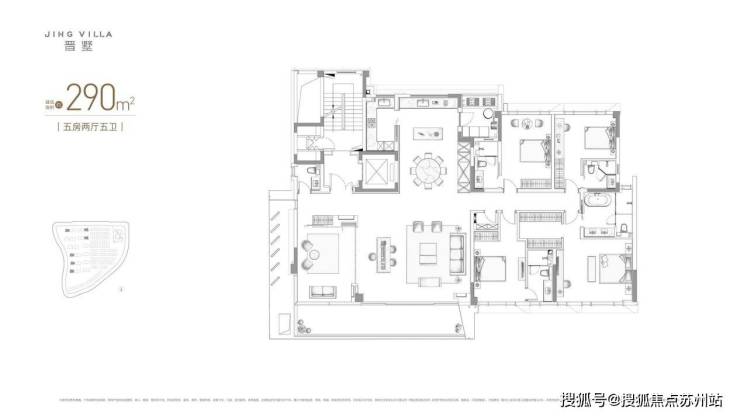
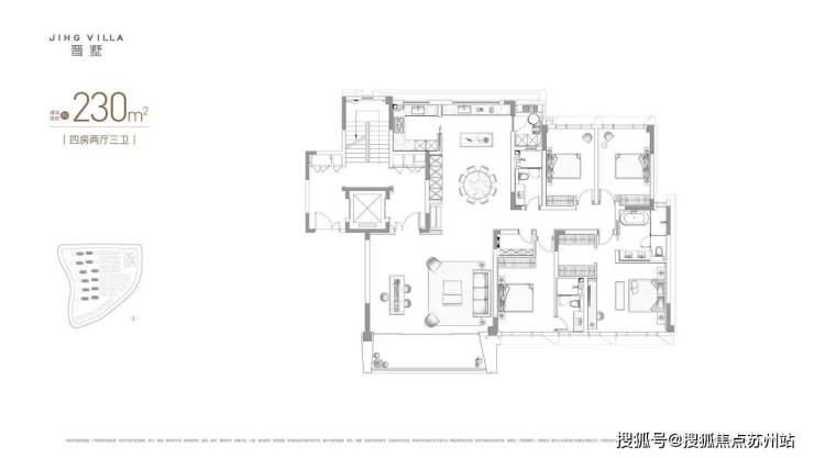
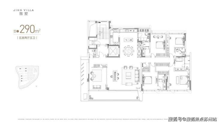
户型鉴赏
约11亩湖叙SPACE,国际生活的艺术藏馆。双湖之畔的艺术会所,是一处时光放缓、心灵栖居的所在,打造泳池、羽毛球场、高端健身、家族私宴、亲子阅读室等私享空间,演绎圈层生活范本。
从"精神场域构建"到"大宅场景空间",星合晋墅精心打造建面约230㎡-350㎡低密洋房,满足现代家庭对品质生活的追求。
联排产品更是彰显尊贵身份,为您打造专属生活空间。



优势分析
星合晋墅的优势不仅体现在硬件设施上,更在于其独特的生活理念。项目从"精神场域构建"到"大宅场景空间",全方位提升居住体验。约50%的绿化覆盖率让您仿佛置身于城市中的绿洲,低容积率保证了居住的舒适度。无论是洋房还是院墅,每一处细节都经过精心设计,满足您对品质生活的追求。在这里,您可以享受到城市与自然的完美融合,体验到国际化高端生活方式的独特魅力。
诗意栖居,预见未来生活图景
在政策利好的加持下,星合晋墅不仅是一个居所,更是对未来生活方式的精心规划。随着苏州城市发展的不断推进,双湖区域的价值将持续提升。星合晋墅凭借其优越的地理位置、完善的配套和高端的品质,将成为城市精英的理想家园。在这里,您可以预见一个更加美好的未来:清晨在湖畔散步,午后在会所享受休闲时光,傍晚与家人共度温馨时光,周末在周边商圈尽情购物,节假日在高尔夫俱乐部挥杆畅玩。星合晋墅,不仅为您提供一个家,更为您打造一种生活方式,一种对美好生活的向往与追求。
咨询热线:18662309054
声明:本文由入驻焦点开放平台的作者撰写,除焦点官方账号外,观点仅代表作者本人,不代表焦点立场。


