重磅!绿城苏州双湖地王规划来袭!打造合院、联排、洋房社区!
扫描到手机,新闻随时看
扫一扫,用手机看文章
更加方便分享给朋友
重磅!
阔别已久的苏州园区双湖绿城地王项目,批前规划出炉!
随笔者来一起看下,绿城苏州地王的规划吧:
就在昨天(2024年5月29日),绿城园区双湖项目规划批前公示出炉。
根据公示可知,绿城双湖项目拟建23栋3-7F的合院、联排及洋房社区。
拎重点:
1、双湖打造低密合院+联排+洋房
2、洋房户型建面约280平(最终以官方公示为准)
3、合院户型建面约540平(最终以官方公示为准)
4、联排户型建面约330-400平(最终以官方公示为准)
5、建面法式风格
6、御用设计goa大象操刀
效果图来如下,感觉如何?
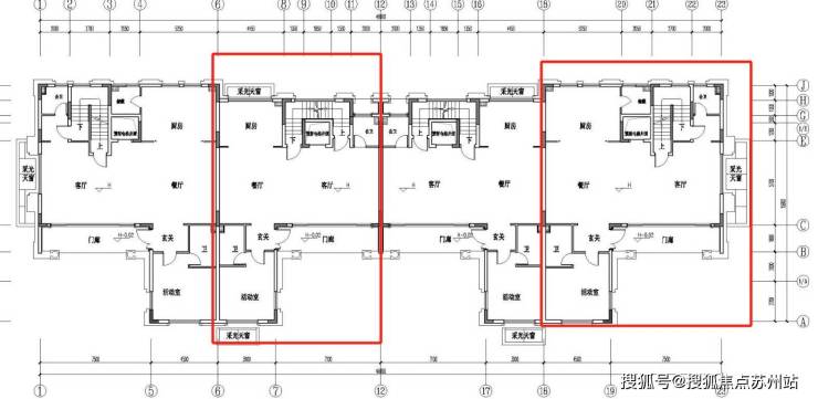
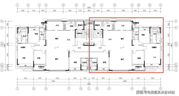
同步户型也做出了公示:
洋房户型详见下方:
联排户型详见下方:
了解完规划,再来回顾一下该宗的成交情况:
绿城双湖地块,是在今年3月27日竞拍中,经过51轮激烈竞价,最终由绿城竞得,成交总价30.8亿元,楼面价65022元/m²,溢价率18.22%。
该宗地块的成交,直接刷新了苏州的楼面价,堪称新地王。
再回到地块周边及后期价格上:
绿城双湖项目地处园区双湖富人区,可谓享有成熟的配套及优渥的自然资源,周边豪宅动辄都是千万级的。
但是基于绿城楼面价6.5万元的价格,预计上市价格传言10万+,结合目前公示的户型建面,可谓动辄就是2000万元起步。
不知这个价格,后期入市竞争力如何?
反观周边在售的二手房,价格虽说已上10万+,但是成交可谓寥寥无几。
设想一下,有2000万买绿城的洋房,还是附近看看在售的低密别墅产品呢?
对此,你怎么看?
欢迎文末发表你的看法。
声明:本文由入驻焦点开放平台的作者撰写,除焦点官方账号外,观点仅代表作者本人,不代表焦点立场。


