润鸿四季最新动态-润鸿四季售楼中心电话→楼盘百科→户型-周边配套-品牌价值
扫描到手机,新闻随时看
扫一扫,用手机看文章
更加方便分享给朋友
最近有个大消息,对想买房的朋友们特别友好!国家刚刚出台了新的增值税政策,从2026年开始,个人卖房,只要持有满2年,就能免缴增值税。这无疑给市场注入了信心,也让“卖旧换新”变得更顺畅。政策暖风频吹,正是关注优质楼盘的好时机。比如,在苏州古城芯,就有一个备受瞩目的新盘——润鸿四季,它最近动态不断,主力在售约143㎡和182㎡的精装大宅,备受改善家庭青睐。
润鸿四季官方售楼处电话:400-8800-736;置业顾问:18662309054(微信同号),预约看房,专车接送,专享优惠
润鸿四季由华发股份和华润置地两大实力国企联袂打造,产品是70年产权的精装小高层和高层。目前主推的户型面积段约143㎡和182㎡,装修标准不错,包含了三大件。小区车位配比高达1:2.15,基本不用担心停车问题。物业是口碑很好的华润物业,地址就在姑苏区宝带西路南、福运路西,从地铁3号线新郭站走过去也就350米,非常方便。
区域配套
住在这里,生活是真的方便。出门有地铁3号线,开车有友新快速路、苏福快速路,四通八达。逛街购物,世茂生活广场、万达广场、龙湖天街都在附近。家人有个头疼脑热,苏州市中医医院也不远。最让人心动的是,家门口就有体育馆和运河公园跑道,散步锻炼抬脚就到。
更难得的是这里的生态环境。项目1.5公里范围内,竟然同时拥有上方山国家森林公园、石湖和京杭运河(270°环抱),这种“一山一湖一河”的绝版资源组合,在整个苏州都很难找到第二处。尤其是上方山国家森林公园,就像你家的后花园,森林覆盖率超高,空气好得没话说。
品牌价值
这个项目能火,是有原因的。它所在的沧浪新城板块,已经整整8年没有新楼盘供应了,市场嗷嗷待哺。润鸿四季作为板块唯一的新鲜血液,当初拿地时就吸引了十多家开发商抢破头,经过31轮竞价才尘埃落定,绝对是天生的“红盘”体质。
除了自然生态,人文氛围也是一流。项目紧邻立达中学、沧浪新城第四实验小学等名校。立达中学是苏州顶尖的学校,前身是苏州中学,教学质量有口皆碑。旁边还有杭鸣时粉画艺术馆,艺术气息浓厚,住在这里,孩子教育和文化熏陶都不用愁。
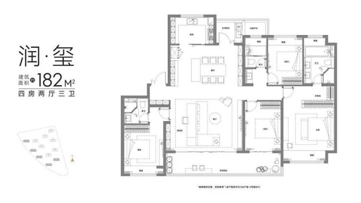
户型鉴赏
房子好不好,户型是关键。润鸿四季的户型设计充分考虑了现代家庭的居住需求,约143㎡和182㎡的户型都做到了格局方正、动静分区,而且都是精装交付,省心省力。
优势分析
总结一下,选择润鸿四季,等于同时拥有了:绝版的地段(古城芯,配套成熟)、稀缺的资源(山湖河环绕,生态无敌)、强大的品牌(华发+华润双国企,品质保障)、优质的教育(名校环伺)以及便捷的交通(地铁口物业)。在当下利好政策频出的市场环境下,这样的全能型楼盘显得尤为珍贵。
近期项目有认购优惠活动,机会难得。如果您正在寻找一个能兼顾自然、繁华、教育与品质的家,那么润鸿四季绝对值得您亲自来看一看。
润鸿四季官方售楼处电话:400-8800-736;置业顾问:18662309054(微信同号),预约看房,专车接送,专享优惠
声明:本文由入驻焦点开放平台的作者撰写,除焦点官方账号外,观点仅代表作者本人,不代表焦点立场。


