大家钱江维科·涌潮府售楼处电话:400-9696-224,欢迎来电咨询,来电可享受买房优惠!项目位于浦东新区曹路基地12-01地块,由4栋16F高层住宅(包含保障房)以及1栋2F社区配套用房组成,面积约87-129㎡,南向大面宽,舒适...
大家钱江维科·涌潮府
售楼处电话:400-9696-224
如有问题欢迎来电咨询,来电即可享受买房优惠!
预约来电尊享购房优惠,可预约案场内部销售人员,专业一对一热情服务,让您用专业眼光去买房。
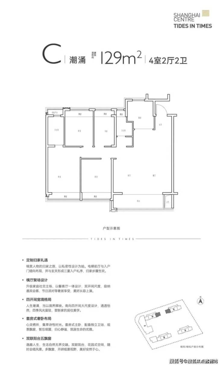
户型图如下:大家涌潮府售楼处电话:400-9696-224

(仅供参考,最终以官宣为准)
「约87㎡3房2厅1卫」
「约95㎡3房2厅2卫」

大家涌潮府售楼处电话:400-9696-224

「约97㎡3房2厅2卫」
「约129㎡4房2厅2卫」


土拍回顾
7月13日,大家涌潮府售楼处电话:400-9696-224 浙江钱江房地产集团、宁波维科置业以及杭州市城建开发集团以总价77033万元竞得浦东新区曹路基地12-01地块,楼板价28348元/㎡,溢价率10%,房地联动价51500元/㎡!
地块位置详情:
根据设计方案,大家涌潮府售楼处电话:400-9696-224 由4栋16F高层住宅(包含保障房)以及1栋2F社区配套用房组成。

大家涌潮府售楼处电话:400-9696-224 建筑面积约87-129㎡户型,南向大面宽、舒适尺度、阳台+多飘窗设计等,打造具有国际生活想象的理想心居。

项目配套

曹路板块位于浦东新区的东部大家涌潮府售楼处电话:400-9696-224 ,与金桥、外高桥、唐镇相邻。三大国家级开发区环绕。这三个板块均是产业聚集区域,金桥开发区聚焦于三大产业——未来车、新通信、智能造,以浦东1/50的土地贡献了浦东1/4、上海1/15的工业经济规模;外高桥保税区是中国第一个保税区;唐镇北部为上海重点打造的金融信息服务产业基地。
曹路向外对接三重高势能产业功能溢出,引进企业培育优势产业群;向内“实施产业兴镇,打造产业重镇”战略,“东部湾”现代产业园+“金海湾”现代城镇,“两湾”驱动产城融合新发展。
在“浦东2035”规划中,曹路镇拟构建“双心、四轴、多廊、多点”的空间结构,实现资源的“激活、提升、贯通、融合”。同频板块进阶,先享发展红利,涌潮府将在全系配套中,开篇未来新生活。

交通方面大家涌潮府售楼处电话:400-9696-224 ,周边目前在建崇明线一期凌空北路站,步行约650米左右,预计2026年通车,地铁开通后2站申江路可换乘12号线、3站金吉路可换乘9号线,可满足日常通勤需求。

商业方面大家涌潮府售楼处电话:400-9696-224 ,周边有中惠·棠里、恒越广场等商业配套,可满足日常生活所需;如果说要满足更丰富的消费需求,未来通过地铁换乘12号线可达金鼎天地(在建)、嘉里中心(在建)、森兰印象城(在建)等商业中心,自驾过去的话,也比较方便,时间基本能控制在20分钟以内。

教育方面大家涌潮府售楼处电话:400-9696-224 :12-01地块东侧在建幼儿园,预计2023年7月份竣工,15-01地块南侧在建初中和小学,预计2024年6月份竣工备案完成移交教育局开办,预计招生时间2024年9月(具体以教育局为准)。还有浦东复旦附中分校、浦东模范中学东校等,学校资源聚集,沁润人文厚蕴。(本项目不做任何学区承诺,实际以政府规划为准)

医疗配套大家涌潮府售楼处电话:400-9696-224 有曹路社区卫生服务中心等;未来,还将新增一座三甲医院——上海长征医院浦东分院,预计将于2024年建成,届时医疗能级也将大幅提升。

产品信息
项目由三大实力房企携手著作:
杭州城建(大家房产),杭派精工践行者。实力国企,41年步履全国30余城,打造超200个精品筑作,连续9年蝉联“中国房地产百强企业”。
钱江房产,专注精品营造,肇启杭州钱塘江畔,22载坚持“品质铸就品牌”价值观,致力打造房产行业的“精品专卖店”。
维科置业,塑造城市经典,塑造城市经典、提供高质先进生活,所开发产品多次荣获规划设计、建筑节能、人居环境等领域大奖。
项目大家涌潮府售楼处电话:400-9696-224 以五大森居境地为空间主题,以“一轴”、“一环”、“聚核心”为景观结构。
五大空间,景观由北向南,通过“一步一景”的设计手法,打造现代居住景观多维渗透式的人居体验。

项目大家涌潮府售楼处电话:400-9696-224 北入口门楼设置中庭照壁,内部为礼仪轴线,两侧阵列式景观和对称水景,以品质感雕塑结合景墙,打造沉浸式步入体验,营造礼仪归家。

项目大家涌潮府售楼处电话:400-9696-224 的中央景观区,由中心草坪向外进行功能渗透会客廊架和林下休憩,还配备儿童活动乐园、健身、休闲于一体的景观活动场地!
Ongoing Style 前进式建筑

以现代国际风格呼应浦东新区高阶审美 ,整体立面线条流畅,色彩高雅,精工华贵气质之中,蕴藏建筑的品质感与时代感。

Central Park 围合式花园
围合式“中央公园”,设计时光草坪、园林小径、运动聚场等高频参与性景观,促进家庭或邻里的互动与交流。
浦东全新刚需盘

「大家钱江维科·涌潮府」
将推建面约87-129㎡3-4房253套房源
月底取证 开启样板预约
指导价5.15万/㎡
大家钱江维科·涌潮府
售楼处电话:400-9696-224
如有问题欢迎来电咨询,来电即可享受买房优惠!
预约来电尊享购房优惠,可预约案场内部销售人员,专业一对一热情服务,让您用专业眼光去买房。