苏州绿城玫瑰园即将公开,园区豪宅双湖新的选择
扫描到手机,新闻随时看
扫一扫,用手机看文章
更加方便分享给朋友
万众瞩目的绿城玫瑰园爆出新消息了!明天公开城市展厅,就在金鸡湖酒店3号楼!
项目从地段配套到户型设计,样样都是苏州独一份的!
绿城玫瑰具体位于金鸡湖大道南,石莲街东,国宾东,非常难得的是它容积率仅1.02,还是双湖断供十年来的首块宅地,绝版地段断供多年才爆出的独苗,注定要被哄抢!
位置更是不用多说,北侧就是金鸡湖,一线湖景尽收眼底!

绿城玫瑰园一共打造23幢合院+联排+洋房产品,一共只有146套,非常低密、稀缺!
仅北侧四栋是7F的洋房,中间大部分是联排产品,合院分布在小区东侧。

设计上也很有看点,绿城玫瑰园将由goa大象设计,经典的法式石材外立面,暖色色调为主,对标上海前滩百合园,光看效果图就能感受到它的贵气!

绿城玫瑰园效果图

上海前滩百合园
装标方面,之前要求是分割销售单元为单层的住宅,为全装修,且装标不低于5000元/平,毋庸置疑的豪宅配置!

绿城玫瑰园在苏州的富人区,周边全是清一色苏州10万+顶豪,世茂铜雀台、湖滨四季等,可惜一直没再有新项目入市,绿城玫瑰园无疑是给了苏州富豪们一个新的机会!
配套更是无可挑剔,地铁5号线金湖站,金鸡湖学校、李公堤等各种配套应有尽有,含金量极高,放在整个省内都是独一份!
此外,户型方面也曝光了一些消息,洋房、联排、合院每一种都做的非常优秀!
1、洋房
洋房分布在小区北侧,数量也不多只有四栋总高都是7F。两梯两户,首层层高3.6米,其余楼层层高3.3米。

据传,后期均价大概率在9W+,洋房户型是250平起步,总价段在2000万+。
四房三卫的户型,进门独立玄关,客厅开间约6.35米,中西双厨带家政间,北侧还设计了一个茶室。
南向双套房,次套带明卫并且朝南;主卧有独立的衣帽间,卫生间双台盆,并且淋浴间浴缸都有。

2、联排
小区绝大多数产品都是联排,一共17栋都是三层结构,分布在西侧、南侧及中间区域,首层层高3.7米,2层3.3米,3层3.2米,屋顶为坡面。一栋楼有4户。

据传联排中间户面积约330平,边户400平左右,后期均价会在10W+。
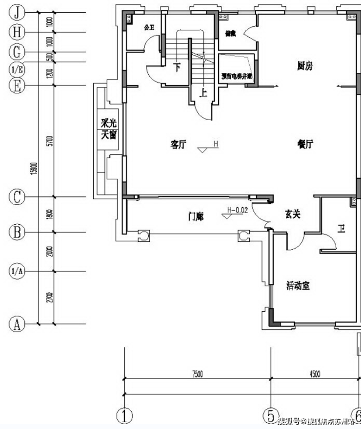
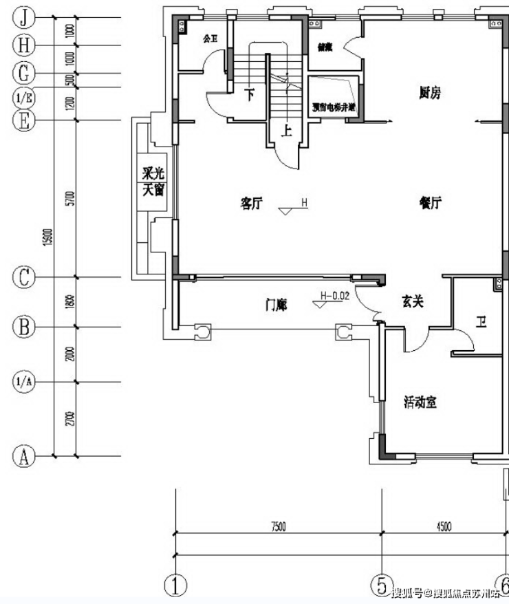
边户一层户型如下,主要是室内公区部分,南向入户,整体面宽约12米,门廊连接玄关,另外玄关外还有一个活动室带卫生间。
室内主要是餐客厅以及厨房和卫生间,静区应该安排在楼上。

3、合院
合院从规划看应该只有两栋,最大户型有850㎡,大概率4000万起步,沿湖大合院预计8000万!
双湖合院、一线临湖……绿城玫瑰园从一开始就注定少不了关注度,无论是从品牌、产品本身,还是绝版地段来看,它在今年的一众项目里都极具竞争力,但注定只能被少数人持有!
毕竟对有钱人来说,价格不是问题,产品有没有特色、能不能配上这个价格才是最重要的。
作为目前苏州最值得关注的几大项目之一,绿城玫瑰园的进展也是非常快,明天就要公开城市展厅了,到时候会有更多最新信息释放!
绿城玫瑰园咨询电话:18662309054
声明:本文由入驻焦点开放平台的作者撰写,除焦点官方账号外,观点仅代表作者本人,不代表焦点立场。


