苏州限售取消,星合晋墅开启品质生活新篇章
扫描到手机,新闻随时看
扫一扫,用手机看文章
更加方便分享给朋友
近日,苏州住建部门发布重磅利好消息:即日起,取消苏州市区范围内新建商品住房2年限售政策。这一苏州限售取消举措无疑为有改善性住房需求的市民带来了福音,让置业选择更加灵活自由。在这样的苏州新建商品住房限售政策背景下,我们为您推荐一处兼具品质与格调的住宅项目——星合晋墅,让您在政策利好的东风下,开启理想生活的新篇章。
基本信息
【星合晋墅】城市生活美学运营商 只定制 不复制
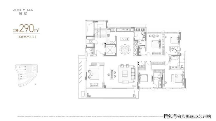
星合晋墅是一个真正懂生活的项目,它拥有约50%的绿化覆盖率,这意味着小区里到处都是绿意盎然的景色,就像住在公园里一样。容积率只有约1.02,居住密度低,空间开阔,让人感觉特别舒适自在。项目由7层的低密洋房和3层的院墅组成,主推建面约230㎡-350㎡的苏州低密洋房,以及约400㎡-700㎡的稀缺院墅。这样的面积段,无论是三代同堂还是追求品质生活的精英家庭,都能找到心仪的家。
咨询热线:18662309054
18662309054
区域配套
星合控股 国际高端底蕴 为生活再设计
星合控股可不是一般的开发商,他们自2003年就扎根苏州,在园区深耕了20多年,一直致力于打造高端住宅、奢华酒店和潮流商业的标杆作品。他们与时代共同进步,全方位打造国际化高端生活方式。说到他们的代表作,那可不少:苏州晋园别墅、晋合水巷邻里、晋府水巷别墅、金湖湾,还有洲际酒店、凯悦酒店等等,每一个都是苏州人耳熟能详的地标。
约11亩湖叙SPACE 国际生活的艺术藏馆
这个双湖区域之畔的艺术会所,真是一个让人放松心灵的好地方。想象一下,在忙碌的生活中,有一个能让你放慢脚步、心灵栖息的所在。这里有泳池可以畅游,有羽毛球场挥洒汗水,有高端健身区保持活力,还有家族私宴空间招待亲朋好友,亲子阅读室更是孩子们的天堂。这里不仅仅是设施齐全,更是一种圈层生活的典范,让您的生活品质更上一层楼。
全维优质配套随心享 约3公里黄金繁华境
一站式全龄教育 书香涵养未来 对于有孩子的家庭来说,教育是最关心的。星合晋墅周边涵盖了从幼儿园到初中的知名学府,华林幼儿园(东华林街)、双湖湾教育幼儿园、翰林小学、尹山湖中学等,一站式解决孩子的教育问题,让孩子在书香环境中成长。
优质医疗资源 全时护航健康 健康是最大的财富。在双湖区域内,聚集了星海医院、九龙医院、独墅湖医院等权威医疗机构,为家人健康保驾护航,让您住得安心。
双轨三轴枢纽 高效通达全城 出行便利是现代生活的基本需求。项目靠近5号和8号地铁线路,还有金鸡湖大道、独墅湖大道、金鸡湖隧道这三条黄金主干道,无论您想去哪里,都能轻松到达,让通勤不再是烦恼。
文娱商圈荟萃 国际生活的烟火气 生活不能只有工作,还需要有烟火气。周边有山姆会员店满足一站式购物需求,星湖天地、星月坊商业街等提供丰富的餐饮娱乐选择,让您的生活多姿多彩。
与公园为邻 收藏一座城的诗意 谁不向往诗意的生活?项目距离1.6公里的金鸡湖高尔夫会员专属俱乐部和3公里的独墅湖公园等休闲绿地很近,周末约上三五好友,或是在绿意盎然中散步,或是挥杆高尔夫,都是不错的选择。
品牌价值
从"精神场域构建"到"大宅场景空间"
星合晋墅建面约230㎡-350㎡苏州低密洋房
户型鉴赏
联排产品



优劣势分析
随着苏州限售取消,像星合晋墅这样的苏州高端住宅项目将迎来更好的发展机遇。项目位于双湖区域之畔,拥有稀缺的低密洋房和院墅产品,周边配套完善,交通便利,教育资源丰富,医疗资源充足。随着苏州城市建设的不断推进,星合晋墅所在区域的潜力将进一步释放,为业主带来资产增值的可能。同时,星合控股20多年的开发经验和国际化高端生活方式的打造理念,也将为业主提供更加优质的生活体验。在这里,您不仅拥有一个家,更拥有一种苏州高端生活方式,一种与城市共成长、与时代同前行的生活态度。
咨询热线:18662309054
声明:本文由入驻焦点开放平台的作者撰写,除焦点官方账号外,观点仅代表作者本人,不代表焦点立场。


