目前户型资料出来了,但还没有公布,从官方公示的两大户型图来看,北京金隅奥体项目全部大四房、双套卧设计。苏州园区紫金·翡丽甲第咨询热线:18118152573【同微信】在建轨交6号线(2024年6月通车)中心大…
继展厅正式公开之后
紫金·翡丽甲第迎来最新消息
打造户型约190/225/260㎡三种
项目预计6月份首开,价格在6.5w+
打造了6-9F纯低密洋房社区
由北京金隅&保利置业联合开发
目前正在验资,验资金额500w
苏州园区 紫金·翡丽甲第
咨询热线:18118152573【同微信】
0 1
北京金隅地块规划出炉
拟建16栋6-9F洋房产品
继柏悦展厅正式公布之后,园区低密纯洋房北京金隅奥体项目再爆新动态。
打造户型约190/225/260㎡三种
项目预计6月份首开,价格在6.5w+
目前正在验资,验资金额500w
项目拟建 16幢6-9F纯洋房,业态纯粹,带下沉式高端会所。
据小道消息,项目将 采用苏州TOP级装标、很多东西都是前所未有,刷新认知的。
奥体北京金隅项目,是去年11月29日 北京金隅总价28.96亿竞得,成交楼面价39027元/平,是苏州土拍取消地块最高价限制后的最高楼面价。

地块明确要求精装标准做到 5000元/㎡以上,容积率1.5。
项目外立面采用 大面积玻璃+深色铝板+浅色铝板+浅灰色石材组成,大堂层高 3.6m, 层高为3.15m。

苏州园区 紫金·翡丽甲第
咨询热线:18118152573【同微信】
0 2
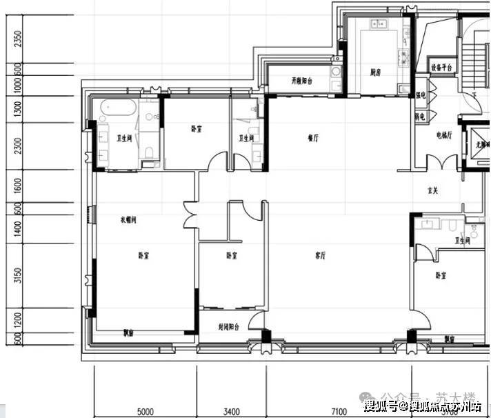
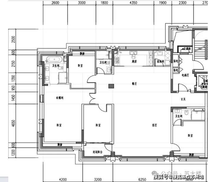
全部4房3卫设计
目前户型资料出来了,但还没有公布,从官方公示的两大户型图来看,北京金隅奥体项目全部大四房、双套卧设计。
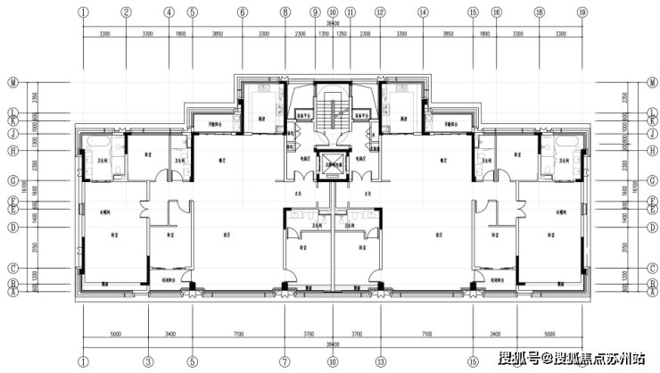
3号楼标准层户型

该户型四房三卫两厅设计
南向四开间约 19.2米,餐客厅开间 约7.1米
南阳台同样无墙垛设计
主卧开间 约5米,其他房间也 在3米左右

2号楼标准层户型

该户型四房三卫两厅设计
南向面宽 约17.3米,客厅面宽约 6.25米
无墙垛子母双阳台,双套房设计
主卧开间 约4.2米

北京金隅奥体项目位于中心大道北、西洛巷南、锦溪街东。地块西侧为儿童医院,与售罄的绿城云庐一路之隔。
|航拍时间:2023年12月6日

该地块北侧:菁星公寓、绿城云庐
地块南侧:空地
地块西侧:河流、唐宁府、儿童医院、丰茂幼儿园
地块东侧:空地


从位置上来看,该项目靠近唐宁府,永旺+邻里中心均不远,未来购物不愁。

苏州园区 紫金·翡丽甲第
咨询热线:18118152573【同微信】
在建轨交6号线(2024年6月通车)中心大道东地铁口约500米左右,不管是自驾还是地铁出行便捷。
教育上面,附近有新加坡国际学校、园区海归人才子女学校、外国语学校和星洲学校。从2022年的施教范围来看,地块属于为星汇学校(注明:新房不确定学区)。
休闲娱乐方面,方洲公园、白塘生态植物园都很近。

项目不远处就是近几年园区陆陆续续交付的上东区、仁恒海和云庭项目,无一不是千人摇。而近年的热销盘颐和源璟、绿城云庐(之前备案均价4.995w/平)也在附近。
此次金隅项目将与 保利合作开发,由绿城设计院设计,社区有恒温泳池会所,将用最高成本打造,有品质地标之意,同时价格也有可能是园区的新房新高。
苏州园区 紫金·翡丽甲第
咨询热线:18118152573【同微信】